Grundriss eines Einfamilienhauses, Feedback

4,40 Stern(e) 8 Votes
Zuletzt aktualisiert 06.10.2025
Sie befinden sich auf der Seite 6 der Diskussion zum Thema: Grundriss eines Einfamilienhauses, Feedback
>> Zum 1. Beitrag <<

Y

ypg

West ist Richtung Nachbarn, von denen weiß ich, das die was ziemlich großes planen. Von daher haben wir derzeit in die Richtung nicht soviel Drang.
Ich rede auch nicht vom Aufenthalt, sondern von Licht durch Fenster
Fenster: Notiert.
... während ja alle Fenster überarbeitet gehören. In Schlafräumen sowie Bädern würde ich definitiv keine Bodenfenster einplanen, statt dessen 2 Meter breite Brüstungsfenster.
Ok, ich KANN Büro/Gast nicht kombinieren,
Ok, habe verstanden! Ist denn dort ein Schrank zur Unterbringung erlaubt?
Und gibt es überhaupt Schlafgäste? Die wenigen können ggf auch oben im Multiraum schlafen?! Unten dann nur Büro.
 
11ant

11ant

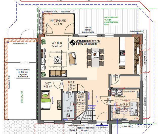
Auch wenn an diesem Bauvorschlag nicht "alles falsch" ist, erscheint er mir doch als lehrbuchmäßiges Beispiel einer Zeichenknechtqualität. Ich bin jetzt seit einhundert Monaten hier, habe damals noch ein ganzes Jahr zurückgeblättert, und in meiner Hitliste der häßlichsten Häuser hat dieses auf Platz 1 keine ernsthafte Konkurrenz. Vor allem der Flachdachwintergarten ist elegant wie der Halsbolzen von Herman Munster. Ich halte ihn als untergeordnetes Bauteil auch für befreiungsfähig, schließlich gehört ein "Gewächshausdach" zu den Kernmerkmalen eines ernsthaften Wintergartens. Ich persönlich hätte beim Lesen des Bebauungsplanes vorgezogen, weiter nach einem Grundstück zu suchen. Gemeinden, die kein Maß kennen, gehören mit Desinteresse bestraft, statt daß man da noch seinen Lohnsteuersitz nimmt.
 
G

GeraldG

Ich hätte die Speisekammer nach unten verschoben. Die ist so dann recht groß, man könnte auch noch eine Abtrennung in die Speisekammer machen und von der anderen Seite mit einer weiteren Tür als Besenkammer o.ä. planen. Genauer konnte ich es in Paint nicht machen, ich denke man sieht was ich meine.
Grundriss eines Hauses mit Wohnbereich, Wintergarten, Gästezimmer, Diele, Küche, WC, HWR, Terrasse.
 
H

haydee

Lass die zweite Tür die nimmt dir nur Platz. Was soll in die Speisekammer? Einfach ein Regalsystem ala Ivar oder auch ein Gefrierschrank. Bei letztem schau mal ob die Tür vom Gefrierschrank aufgeht. Ein paar Zentimeter brauchst du Luft.

Wenn du mit den Plänen „spielst“ nimm immer deine vorhandene oder gewünschte Möblierung mit tatsächlichen Maßen.
 
M

MachsSelbst

Verzichtet auf die zweite Dusche und macht das Arbeitszimmer kleiner und die Kinderzimmer größer. 12,8m², das ist schon arg wenig.
Bedenke, dass da irgendwann mal ein 16jähriger seine Tage verbringt, Kinder bleiben nicht immer klein...
 
Zuletzt aktualisiert 06.10.2025
Im Forum Grundrissplanung / Grundstücksplanung gibt es 2510 Themen mit insgesamt 87169 Beiträgen


Ähnliche Themen zu Grundriss eines Einfamilienhauses, Feedback
Nr.ErgebnisBeiträge
1Schalter für Rollläden am Fenster oder an der Tür? 38
2Grundriss mit Speisekammer innenliegend - Was beachten? 14
3Versteckter Durchgang in Speisekammer - Erfahrungen gesucht - Seite 228
4Grundriss: Speisekammer oder größere Küche? Erfahrungen? - Seite 314
5Nicht-bodentiefe Fenster im Wohnzimmer unmodern? Welche Vorhänge? 17
6Grundrissfrage, Treppe, Fenster, Ausrichtung 12
7Grundriss Einfamilienhaus geplant, Fenster gefallen uns - Seite 543
8Reedkontakt Alarmanlage Fenster. Wie habt ihr das gelöst? - Seite 212
9Umbau Kinderzimmer - Fenster in zwei Fenster aufteilen? 20
10Bodentiefe Fenster - wie Sofa stellen? - Seite 212
11Einbruchschutz - WK2 auf WK3 Fenster aufrüsten - Meldeanlage? 65
12Praxistaugliche Größe für Fenster und Rollladen 13
13Tür nach innen oder außen aufgehend? Was ist normal? - Seite 432
14Grundriss Neubau Einfamilienhaus: Fenster/Türen/Innenwände Größe/Anordnung ok? - Seite 220
15Neubau einer ca. 8x11 Doppelhaushälfte, Einschätzung Grundriss und Fenster - Seite 635
16Bungalow 135qm: Grundriss + Fenster - Seite 10104
17Fenster aus Polen oder Bosnien? - Seite 424
18Höhe Zaun zum Nachbarn und Fenster in der Grenzbebauung - Seite 259
19OG Stadtville optimieren. Fenster Bodentief - Seite 7104
20Fenster & Türen einbau nicht normgerecht - Seite 328

Oben