Einfamilienhaus mit ebenerdiger Einliegerwohnung auf Hang

4,90 Stern(e) 14 Votes
Zuletzt aktualisiert 19.11.2025
Sie befinden sich auf der Seite 24 der Diskussion zum Thema: Einfamilienhaus mit ebenerdiger Einliegerwohnung auf Hang
>> Zum 1. Beitrag <<

hanghaus2000

hanghaus2000

Ich dachte Dir waren die Dachterrassen zu gross. ca. 130 m2 das geht ins Geld.

Dann kommst aber auf FFH 211 m. Steigung der Auffahrt wird dann schwierig unter 15% zu bleiben.
ein Kaestchen ist 1 m.



Blaues, mehrstöckiges Haus mit Dach, Gelb- und Grünflächen und diagonaler Schnitt.
 
hanghaus2000

hanghaus2000

Kannst Du mal Schnitte, Grundrisse und Lageplan einstellen? Falls Du kein snipping tool hast gehen auch Fotos.

Was sagt denn der Bebauungspaln zu Einfriedungen?
 
V

Ventreri

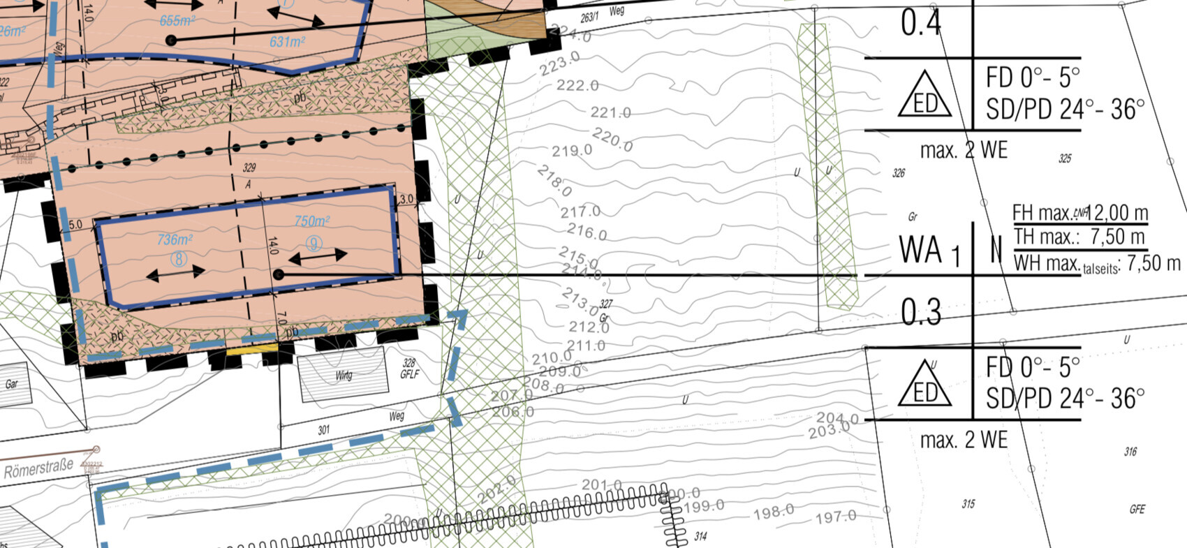
Also der Bebauungsplan sagt, dass das in Ordnung geht (abgesehen von der Tatsache, dass er die Zwischenstufe hätte begrünen müssen). Nur an öffentliche Verkehrsflächen angrenzende Einfriedungen sind geregelt.

Zu Stützmauern:

„Stützmauern
Stützmauern sind zulässig. Ist die Stützmauer höher als 1,50 m, ist diese in der Höhe zu teilen und die obere Hälfte um mindestens 0,50 m zurück zu setzen, die dadurch entstehende Stufe ist zu begrünen. Stützmauern sind aus Naturstein/Muschelkalk zu erstellen, entweder in Gabionen oder als Blocksteinsatz.“


Mich irritiert viel mehr der Passus, dass ich anscheinendeine Befreiung brauche, wenn ich das Gelände mehr als 1,5 m aufschütte bzw abtrage.

„Aufschüttungen und Abgrabungen
Aufschüttungen und Abgrabungen
(§ 74 Abs. 3 Nr. 1 Landesbauordnung)
Aufschüttungen und Abgrabungen von mehr als 1,5 m des natürlichen Gelände- verlaufs sind nicht zulässig. Dabei ist darauf zu achten, dass der natürliche Ge- ländeverlauf nicht wesentlich geändert wird. Die Geländeverhältnisse der Nach- bargrundstücke sind zu berücksichtigen.
Ausnahmsweise können nach Prüfung der Bauvorlage auch Aufschüttungen und Abgrabungen von mehr als 1,5 m zugelassen werden.“


Die vorhandenen Grundrisse halten jetzt mal her, können aber obsolet werden, sobald der Architekt bessere Vorschläge macht. Das LRA sagte, ich muss die vorgezogene Garage/Terrasse begrünen und in Anthrazit streichen, damit die Abgrenzung zum Haus stärker ist. Dann bekämen wir eine Befreiung für die vorgeschriebene Wandhöhe von 7,5 m. Das Thema mit der Bezugshöhe hab icu immer noch net genau verstanden (Schnittpunkt vorhandenes Gelände) aber das LRA meinte, damit hat er weniger ein Problem solange wir darauf achten, dass das Haus net so groß wirkt.

Mehr als 10 % möchte ich für die Auffahrt eigentlich nicht haben. Lieber noch wären mir 8 %. Man muss halt bedenken, dass Schwiegereltern, Kinder, Besuch über diese lange Zufahrt laufen werden.

Ich sende noch ein paar Fotos vom Grundstück selbst. Langsam mach ich mir echt Gedanken, ob das alles so eine schlaue Idee war.

PS: wir besuchen am Sonntag in Fellbach Lechner Massivhaus, die Häuser aus Ton machen. Hier gibts schon einige Erfahrungen zu ihnen, da bin ich mal gespannt, was dabei raus kommt. Zapf Garagen sind angeblich eine Tochterfirma v denen und den Keller bauen sie auch selbst. Erfahrungen darüber könnt ihr gern teilen.

Lageplan eines Baugrundstücks mit Gebäudeumriss, Geländekonturen und Zufahrtswegen


Architekturplan Hanglage: Bebauung mit Hausgrundriss, Gelände und Maßen


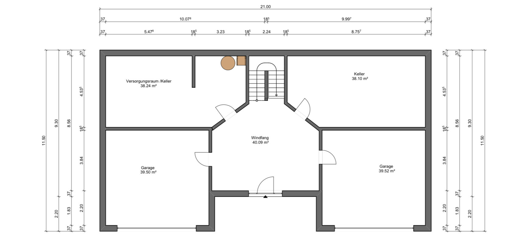
Bodenplan Keller: Windfang in Mitte, Treppe, zwei Garagen, Versorgungsraum und Keller.


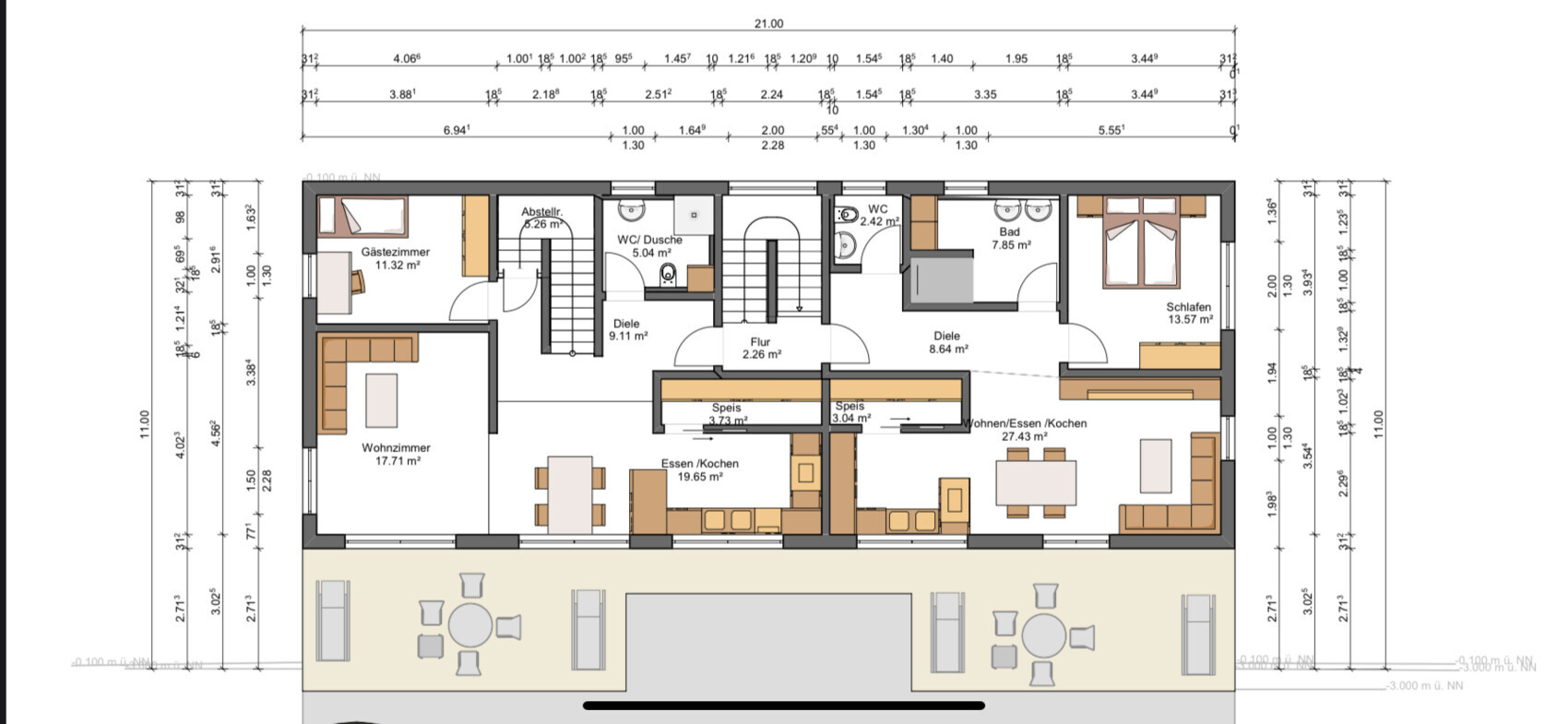
Grundriss eines Wohnhauses: Wohnzimmer, Küche, Essbereich, Schlafzimmer, Gästezimmer und Terrasse.


Grundriss eines Hauses mit drei Kinderzimmern, Bad, Diele, Ankleide und großer Terrasse.


Moderne weiße Villa mit zwei Garagen, Terrassen und geparkten Autos an Hanglage.


Steinerne Stützmauer aus Quadern am Hang, von kahlen Bäumen umgeben, grünes Gras davor.


Baustelle mit gelbem Kran, Container und Bauholz auf grasbewachsenem Hang, Bäume im Hintergrund.


Schwarzer SUV fährt eine kurvige Straße, flankiert von Bäumen und Häusern im Hintergrund.


Schräger Aushub am Hang mit Steinmauer, orange Bagger; Garage mit zwei gelben Toren
 
Zuletzt bearbeitet:
Y

ypg

Zu dem Stützmauerthema kann ich nichts beitragen. Aber was auffällt: eine, zwei Speis, die kaum einen Mehrwert haben, und keine richtige Garderobe, sondern nur eine Nische.
Ich würde die Speis radikal einkürzen und mit dem Rest einen AB generieren, der als Garderobe mitbenutzt werden kann.
Insgesamt finde ich an dem Entwurf nicht so viel Gefälliges: Eingangsbereich viel zu groß, Treppe als merkwürdigen Fokus da hinten im Dunkeln, schmale Küche, kein Essbereich, eher eine Essecke, die den Zugang zur Terrasse blockiert (Platz für eine Ummöblierung gibt es da nicht wirklich), Seniorenwohnung kaum Stellfläche für Kleiderschrank und der Allraum ist ja irgendwie auch nicht nett.
 
hanghaus2000

hanghaus2000

Super danke.

Mein Entwurf beruecksichtigt Alle Vorgaben obwohl ich die nicht kannte. Bauen mit dem Hang ist das Schluesselwort.

Von 8% Steigung kannst Dich verabschieden. das geht mit dem Hang nicht. Ausser Du baust die Garage weiter unten und richtest dann einen Fahrstuhl ein.

Wie hoch ist die Stuetzmauer im Norden? Da sind mehr als 1,5 m Gelaende ausgeglichen.

Die Befreiungen bekommst vermutlich. Hat der im Norden ja auch bekommen. Das LRA will ja auch leben. Ich habe damals fuer die Befreiung 700 Euro bezahlt.
 
Zuletzt aktualisiert 19.11.2025
Im Forum Bauland / Baurecht / Baugenehmigung / Verträge gibt es 3159 Themen mit insgesamt 42905 Beiträgen


Ähnliche Themen zu Einfamilienhaus mit ebenerdiger Einliegerwohnung auf Hang
Nr.ErgebnisBeiträge
1Planung der Auffahrt für großes Hanggrundstück - 25% Steigung 43
2Problem mit LRA: Standort Wärmepumpe 31
3Auffahrt erstellen mit 25% Steigung? - Seite 223
4Stützmauern bei Hanglage laut Bebauungsplan verboten? 13
5Einfriedungen Definition - Seite 330
6Steigung bei Hofeinfahrt? 16
7Steigung Garageneinfahrt zu steil? 10
8Steigung Hofeinfahrt / Höhenunterschied - Seite 220
9Bebaute Fläche: Gehören Garage / Carport zur bebauten Fläche? 19
10Haus und Garage - Wie am besten auf den Grundstücken platzieren? - Seite 267
11Ausrichtung Haus und Garage auf dem Grundstück - Seite 218
12Ausrichtung Einfamilienhaus + Garage bei West-Ost Grundstück mit Strasse im Westen 18
13Grundriss Einfamilienhaus mit Garage - Seite 218
14Grundstück - Baufenster - Lage von Haus und Garage - Seite 244
15auf welchen dieser Grundrisse können wir weiter aufbauen? - Seite 2287
16Ideen für Anbau über Garage zusätzlicher Wohnraum 24
17Schwarzbau ohne Mindestabstand auf Nachbargrundstück - Seite 445
18Nachbar Erdung und Drainage auf unserem Grundstück 41
19Mauer auf Grundstücksgrenze - Seite 345
20Probleme mit Bauamt wegen Anböschen, Stützmauern! 27

Oben