Einfamilienhaus mit ebenerdiger Einliegerwohnung auf Hang

4,90 Stern(e) 14 Votes
Zuletzt aktualisiert 20.11.2025
Sie befinden sich auf der Seite 46 der Diskussion zum Thema: Einfamilienhaus mit ebenerdiger Einliegerwohnung auf Hang
>> Zum 1. Beitrag <<

V

Ventreri

Witzig, dass Du das heute schreibst, wo mir ein paar Fehler aufgefallen sind, die der Architekt anpassen wird. Wir haben nur noch das Hauptbad im OG neu angeordnet, sonst bleibt alles wie gehabt.

Baustellenschalung mit roten Metallrahmen und blauen Paneele, Gerüstarbeiten und Werkzeuge am Boden.


Baugrube mit hohen Betonwänden, Stacheldraht am Rand, Kran im Himmel über der Baustelle


Rote Schalungswände mit Stahlstützen bilden eine Eckwand; Leiter rechts, Bauwerkzeuge am Boden.


Baustelle mit Bewehrungsstahl, Bauarbeitern, Holzformen und Dämmplatten am Fundament.


Bewehrungsstahlnetze liegen auf der Bauplatte; Arbeiter kniet beim Verlegen der Stahlstäbe.
 
V

Ventreri

Das wie gehabt wuerde mich mal Interessieren. Kannst Du mir die # des Beitrags sagen. Ich mag nicht die 46 Seiten durchsuchen.
Ich suche sie dann nachher raus, sorry, dass ich grad kurz angebunden bin.
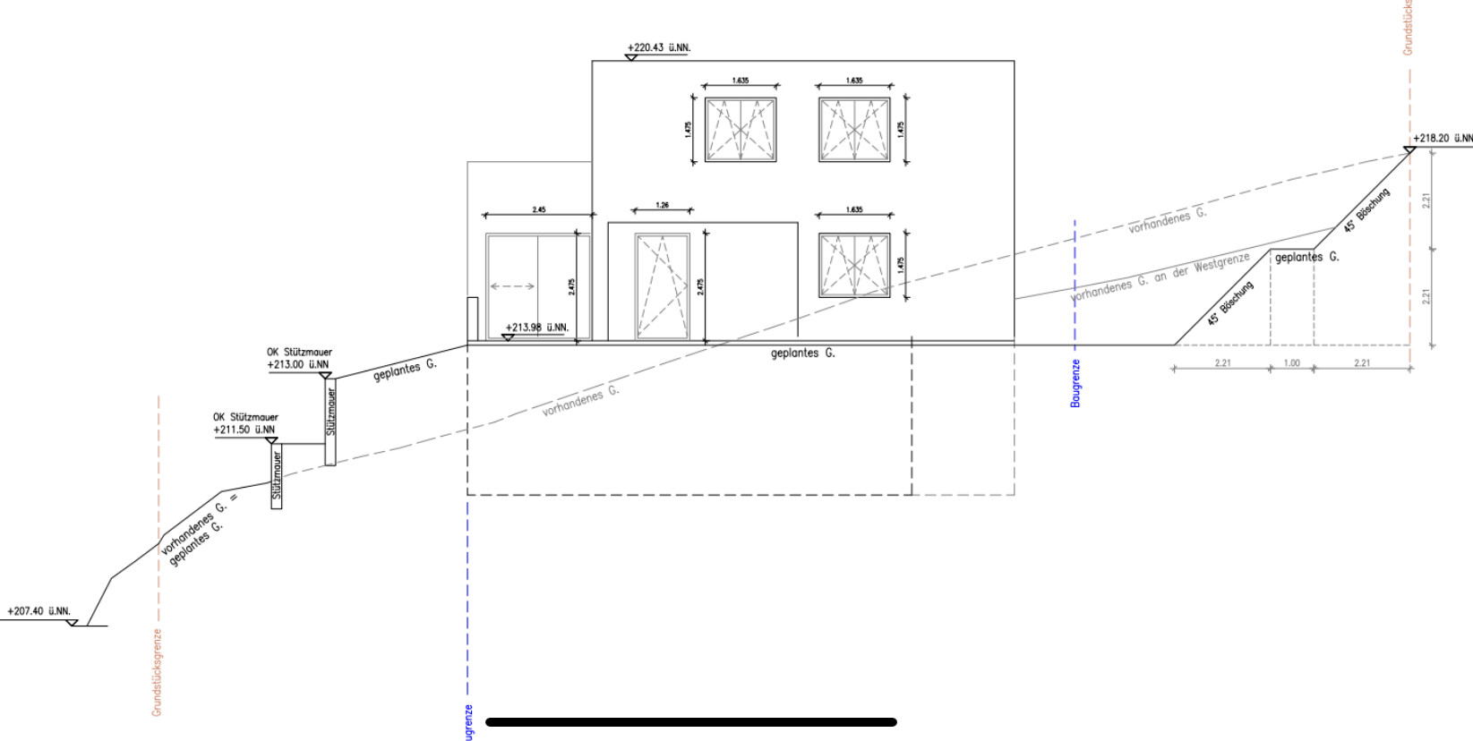
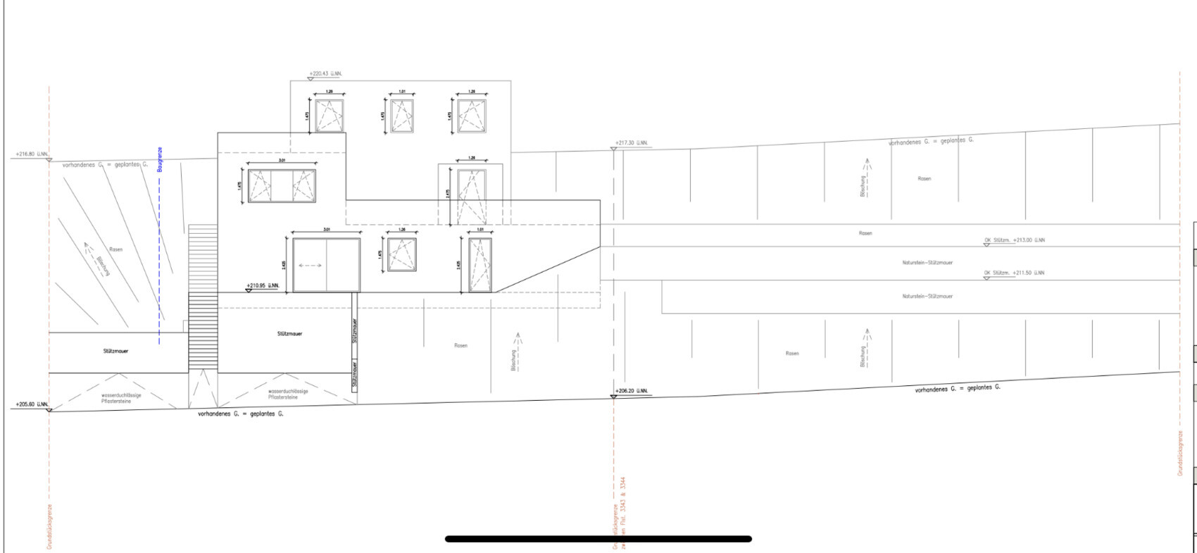
Fakt ist, dass zB die Stützmauer des Gartens weiter hinten ist als geplant, sonst hätte ich eine 3. Reihe gebraucht. Das wiederum hat zur Folge, dass die Außentreppe v Straße zu Garten nimmer so umsetzbar ist, wie gedacht etc.
 
V

Ventreri

Ich hab’s einfach mal abfotografiert, hab die aktuelle Planung nämlich net gefunden. Die Außentreppe v Straße zu Garten fehlt wie gesagt u die Stützmauer ist 2-3 m hinter der geplanten Stelle (quasi in einer Flucht zur Bodenplatte)

Grundriss eines Hauses: Zimmeraufteilung (Schlafen, Bad, Speise, Wohnküche), Flur, Treppe, Terrasse.


Architekturgrundriss: zweigeschossiges Haus mit Fenstern, Tür, Gelände- und Grundstücksgrenze.


Technische Seitenansicht eines mehrstöckigen Gebäudes mit Fenstern, Treppen und Stützmauern.


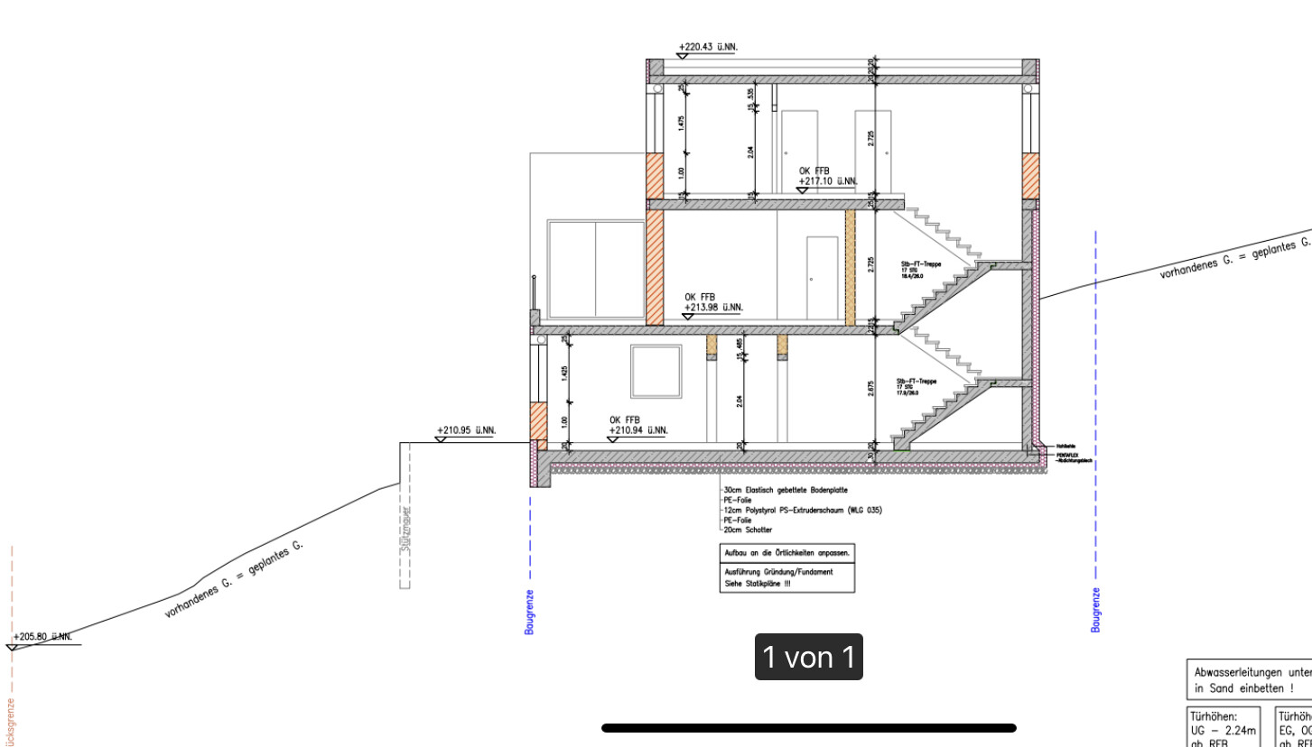
Querschnitt eines dreigeschossigen Gebäudes mit Treppenhaus, Wänden und Bodenplatten.


Grundriss: Treppenhaus, Flur, Bad, Abstellraum, drei Kinderräume, Terrasse links.


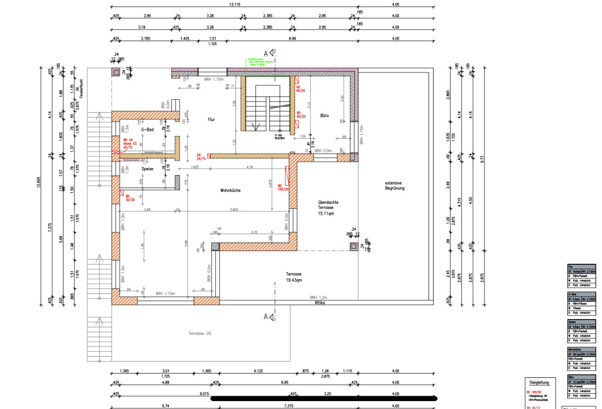
Grundriss eines Gebäudes mit Wohnküche, Flur, Büro, Speise, G-Bad und Terrasse UG


Grundriss eines Hauses: Schlafzimmer, Bad, Flur, Wohnküche, Abstellraum, Terrasse.
 
H

hanghaus2023

Da hoffe ich mal, das Dir da das Geld nicht ausgeht. Hast denn wenigstens die Finanzierung noch zu vernünftigen Konditionen bekommen?
 
V

Ventreri

Da hoffe ich mal, das Dir da das Geld nicht ausgeht. Hast denn wenigstens die Finanzierung noch zu vernünftigen Konditionen bekommen?
Das war schon anstrengend, die Finanzierung gescheit zu bekommen. Da haben wir mehrere Monate herumgetan u natürlich am am 21.01.22 die Unterlagen des Energieberaters bekommen, am Montag, dem 24.1. wars dann zu spät für die KfW Förderung u lauter so lustige Sachen

Dieses Projekt in der heutigen Zeit ist natürlich äußerst sportlich - egal, was man gerechnet hat, man liegt daneben. Deshalb muss ich auch schauen, dass kein Geld verbrannt wird. Bin aber guter Dinge, dass sich alles ausgeht. Die größte Variable waren die Erdarbeiten, die haben wir fertig - somit ist alles besser kalkulierbar.
 
Zuletzt aktualisiert 20.11.2025
Im Forum Bauland / Baurecht / Baugenehmigung / Verträge gibt es 3159 Themen mit insgesamt 42905 Beiträgen


Ähnliche Themen zu Einfamilienhaus mit ebenerdiger Einliegerwohnung auf Hang
Nr.ErgebnisBeiträge
1Stützmauer im Garten bauen: Schalungssteine oder L-Steine? 62
2Wärmepumpe besser im Haus oder im Garten? 38
3Stützmauer mit Streifenfundament und Schalsteinen kaskadieren 18
4Finanzierung ohne Eigenkapital mit Sicherheit?? 52
5Finanzierung Hausbau machbar - Seite 547
6Finanzierung auf 10 Jahre mit 5% Sondertilgung 60
7Finanzierung für Hauskauf / Hausbau realisierbar? - Seite 1068
8Finanzierung machbar in aktueller Situation ? Einfamilienhaus 140 m² inkl. Keller - Seite 423
9Ungeplante Stützmauer - Seite 220
10Stützmauer mit Schalung selber erstellen - Seite 228
11Hang mit Stützmauer auffangen - Höhenangabe 12
12Fundament für Stützmauer 1,5m hoch aus großen Quadersteinen. 25
13Nachbar baut Stützmauer auf meinem Grundstück. Was tun? 87
14Hohe Stützmauer - welche Optionen 11
15Nachbar baute Fundamente für Stützmauer auf unser Grundstück 10
16Stützmauer bauen ca. 2,50m hoch 11
17Stützmauer für die Stützmauer!? Habt ihr Ideen? 36
18Einhaltung der Baugrenzen bei Außentreppe 13
19Außentreppe/Treppenaufgang Bungalow 22
20Katzensicherer Garten 16

Oben