Bungalow Grundriss Max. 140 m² - Masse laut der Norm ok?

4,40 Stern(e) 5 Votes
A

Ala34

Bebauungsplan/Einschränkungen: kein Bebauungsplan §34 Umfeld Doppelhaushälfte, Bungalow etc.
Grösse des Grundstücks: 1056 m²
Hang: nein
Wohngebiet
Anzahl Stellplatz: 2
Dachform: Walmdach
Stilrichtung: Bungalow klassisch
Ausrichtung: Ost-Süd
Maximale Höhen/Begrenzungen: -

Anforderungen der Bauherren
Stilrichtung, Dachform, Gebäudetyp: Landhausstil, Bungalow, Walmdach
Keller, Geschosse; nein, 1 geschossig
Anzahl der Personen: 2, 35 Jahre
Raumbedarf: 4 Zimmer
Büro: Homeoffice
Schlafgäste pro Jahr: 2-4
offene oder geschlossene Architektur: offen
konservativ oder moderne Bauweise: modern
offene Küche, Kochinsel: Ja
Anzahl Essplätze: 2
Kamin: Ja
Balkon, Dachterrasse: nein
Garage, Carport: Ja
Nutzgarten, Treibhaus: Ja

Hausentwurf
Von wem stammt die Planung: Do-it-Yourself/ Scanhaus Marlow Marlow
Was gefällt besonders? Warum? Überdachte Terrasse, Luftraum, eigener Privatbereich
Was gefällt nicht? Warum? kleiner Hauswirtschaftsraum,
Preisschätzung lt Architekt/Planer: 270.000 €
Persönliches Preislimit fürs Haus, inkl Ausstattung: 300.000 €, 350.000 € inkl. Nebenkosten
favorisierte Heiztechnik: Erdwärmepumpe mit Tiefenbohrung

Durchgehender Blick Haustür in den Garten mit Flügeltür

Was ist die wichtigste/grundlegende Frage zum Grundriss in 130 Zeichen zusammengefasst?

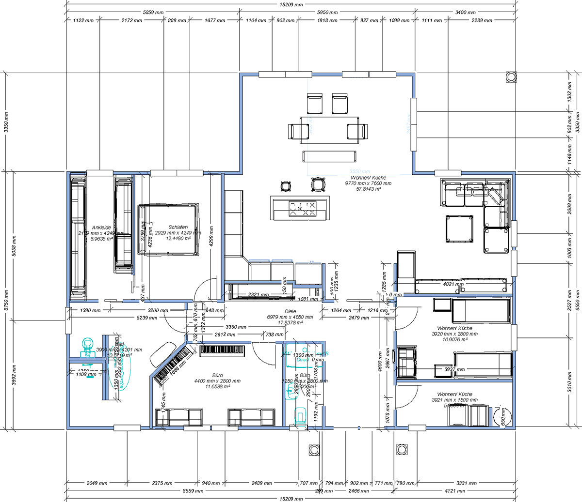
Grundriss gefällt, sind die Maße laut Norm ok?
Ist der Luftraum machbar. Statik?
Aufteilung ok? Wohnfläche soll Max. 140 m² betragen, was nicht einfach mit 4 Zimmern vereinbar war.

Danke im Voraus.
 

Anhänge

kaho674

kaho674

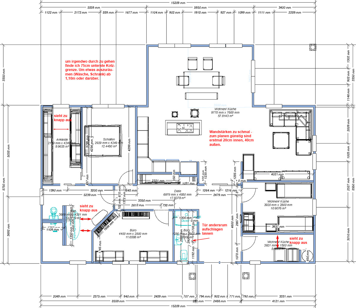
Anmerkungen siehe Bild.
Luftraum kann ich leider nichts sagen, habe aber schon größere in Planung gesehen - also warum nicht?
Schräge im Büro würde ich vermutlich rausnehmen zu Gunsten des Bades. Tische im Büro vielleicht gegenüber in die Mitte - gibt richtig schönes Büro-Feeling.


Detaillierter Grundriss eines Einfamilienhauses mit Wohnküche, Schlafzimmer, Büro und Bad
 
11ant

11ant

kbt09

kbt09

Hmm, was heißt Ost-West-Lage? Nordpfeil auf dem Grundriss und eine möglichst genordete Grundrissskizze sind immer hilfreich.

4 Zimmer ...
- Schlafzimmer
- Büro
- Gästezimmer?
- Wohnen/Essen/Kochen?

Und Vermaßung umstellen .

Küche, wenn so wie geplant ein Side By Side Kühlschrank stehen soll, dann steht der mit der Kühlteilseite ungünstig zur Küche.
 
Zuletzt aktualisiert 11.12.2025
Im Forum Grundrissplanung / Grundstücksplanung gibt es 2550 Themen mit insgesamt 88439 Beiträgen


Ähnliche Themen zu Bungalow Grundriss Max. 140 m² - Masse laut der Norm ok?
Nr.ErgebnisBeiträge
1Grundriss Bungalow - Was gibt es zu beachten? - Seite 6164
2Grundriss Bungalow 125qm konisches Grundstück - Seite 239
3Grundriss Neubau Bungalow 100 qm 46
4Grundriss Bungalow mit Satteldach - Optimierungspotential? 24
5Grundriss Bungalow auf schon genutztem Grundstück 108
6Grundriss Bungalow 160-170qm mit Keller - Seite 16175
7Grundriss-Optimierung 175qm Bungalow auf 579qm Grundstück 15
8Grundriss-Hilfe für Bungalow benötigt - Seite 333
9Grundriss Bungalow mit Einliegerwohnung - Grundriss Feedback 70
10Bungalow Grundrissplanung - Ideen? 76
11Grundrissplanung Bungalow mit Keller - 140qm - leichter Hang 90
12Einfamilienhaus Neubau 160qm Grundriss - Bitte um Feedback 22
13Meinungen zum Grundriss Bungalow - Seite 642
14Entwurf Grundriss Bungalow - Eure Meinungen bitte! - Seite 214
15Grundriss 120qm bungalow Einfamilienhaus - Seite 215
16Ideen Meinungen zu Bungalow 131 Grundriss gefragt 19
17Bungalow Grundriss ~16x9.5m ( außen ) in 1000m² mit Altbestand - Seite 13102
18Grundriss Bungalow 140 qm (Walmdach) 34
19Bungalow Grundriss 3 Personen, 130qm, bitte Meinungen… - Seite 26167
20Grundriss Bungalow 172 m2 in Brandenburg südlich von Berlin - Seite 11120

Oben