Bungalow Grundriss Max. 140 m² - Masse laut der Norm ok?

4,40 Stern(e) 5 Votes
Zuletzt aktualisiert 07.01.2026
Sie befinden sich auf der Seite 6 der Diskussion zum Thema: Bungalow Grundriss Max. 140 m² - Masse laut der Norm ok?
>> Zum 1. Beitrag <<

A

Ala34

Deshalb sag ich ja: lasst einen anderen Entwurf planen. Bungalows können auch anders als diese L-Form-Flure.
Alternative wäre Wohnzimmer als Durchgang zu den anderen Zimmern. Das kommt aus diversen Gründen (die ich hier nicht anzuführen brauche) nicht infrage. Wir favorisieren zudem den Flur, da Einbauschrank als Stauraum vorhanden und der Eingangsbereich großzügig bei Besuch sein soll, damit man sich dort nicht auf die Füße tritt. In unser derzeitigen Wohnung ist das leider so und untragbar. Wir haben uns von Viebrockhaus inspirieren lassen (Edition 500 B). Es wird gute Gründe geben, warum der Bungalow mit L-Flur angeordnet ist.

Sage ich auch .. anderen Entwurf ... dazu wäre aber jetzt doch mal ein genordeter Lageplan mit Maßen und Zufahrtsmöglichkeiten relevant.

Denke nämlich auch, da kann man mehr rausholen ... und warum muss Büro im Privatbereich sein?
Ich habe den genordeten Lageplan mal beigefügt. Dort ist das Haus nicht eingezeichnet. Die Ausrichtung soll Richtung Osten, da im Süden eine Doppelhaushälfte steht.

Das Arbeitszimmer soll aus verschiedenen Gründen separat sein, vor allem werde ich keine Gäste oder Kunden durch das Ankleidezimmer führen wollen, oder? Selbst wenn es ein Kinderzimmer sein sollte, ist es doch suboptimal, dass das Kind erst durch das Ankleidezimmer der Eltern muss?
 
Zuletzt bearbeitet:
A

Ala34

Jetzt versteh ich das mit dem Luftraum. In der Ansicht, das sind Fenster und keine Solaranlage?
Mit welchem Heizungstyp baut ihr denn? Könnt ihr auf Solar verzichten?
Zu den Südlichen Dachfenstern hatten wir letzteWoche einen Thread, da hat der TE nach Wärmeschutz gefragt. Das ist bei südlichen Dachfenstern nämlich nicht so einfach, da die Wärme wieder aus dem Haus zu bekommen.
Wir haben selbst das WZ nach oben offen und ein schönes Fenster unter dem Giebel. Das reicht für Belichtung und Effekt. Im Sommer muss man die Südseite dicht machen können. Es bilden sich schnell 27 Grad im Haus.
Genau, das sind Dachfenster. Wir verzichten auf Solaranlage, da wir mit Erdwärmepumpe und Photovoltaikanlage planen. Die kommt auf die Süd-West Seite.
Die Dachfenster liegen Richtung Osten und werden mit Außenrollladen beschattet.

Heller Innenraum mit vier quadratischen Dachfenstern in einer erhöhten Deckenöffnung.


Modernes Wohnzimmer mit grauer Eckcouch, Kamin, TV-Bereich, Couchtisch und Pflanzen.


Wohnzimmer mit großen Dachfenstern, Vorhängen, dunkelgrauem Sofa, Kissen und Couchtisch.


Lageplan: Parzellen mit Nummern, Straßen und ein gestricheltes Grundstückspolygon; Nordpfeil.


Modernes Einfamilienhaus mit Backsteinfassade, großen Glasfronten und Holzterrasse auf grünem Rasen.
 
Zuletzt bearbeitet:
A

Ala34

Den würde ich da ohnehin eher als "offene Dachuntersicht" bezeichnen. Vermutlich haben sie ihn ebensowenig verstanden wie ich - wieso ist der da ausgerechnet über etwa 60% des Eßzimmers gewünscht ?; was soll der da (bei einem Giebel und verglast hätte ich es verstanden) ? - dennoch: wie haben sie erläutert, warum es nicht so gehen soll ?
Müßig zu erklären, warum man sich einen Luftraum wünscht. Natürlich um Helligkeit und Großzügigkeit zu bewirken. Gerade in der Küche fehlt es ja an einem Fenster.
60%, damit die Dachflächenfenster mittig sind. Der Luftraum sollte genau über dem Essplatz sein. Siehe Foto.

Angeblich kann die Decke dort nicht offen gestaltet werden, da die Dachbinderkonstruktion auf dem Holzständerwerk aufsetzt.
 
Zuletzt bearbeitet:
A

Ala34

Aha. Und wo ist die Terrasse? Ist sie bei dem Schlafzimmer, vor dem Erker oder zw Erker und WZ?
und mir fällt auf, dass viele Fragen an Dich gestellt wurden, die noch offen sind.
Was sind das für Räume planrechts unten?

Der Gastraum? Mit 2 Betten? ist auch recht lieblos.
2,20 in der Ankleide wäre mir zu schmal (nicht, dass ich dick wäre oder so )
Dafür ist mir der Wohnbereich, also der Allraum zu sehr Halle: vom Sofa schaut man auf die Küche, das kann man geschickter anordnen. Der Platz, der in den anderen Räumen benötigt wird, ist hier zu viel und unnötig, auch wenn es großzügig sein soll. Letzteres geht auch anders.
Welche Fragen sind noch offen?
Terrasse legt zwischen Erker und Wohnzimmer in Ost-Süd Ausrichtung.
Rechts unten wird nur Technik untergebracht. Daher planen wir noch einen weiteren Waschraum.

Gästezimmer wurde nur im Plan mit 2 Betten gekennzeichnet. Auch das ist nur als Entwurf zu sehen und die Möbel können variieren.

Die Trennung des Wohnraums wird durch den Kamin erfolgen, in einem 2 Personen Haushalt ist der offene Küchen- und Wohnbereich so erwünscht.
 
Zuletzt bearbeitet:
11ant

11ant

Müßig zu erklären, warum man sich einen Luftraum wünscht.
Nein, mir war auch erst nicht klar, daß es Dachflächenfenster darstellen soll (da ich sie im Grundriss nicht sehe).

Angeblich kann die Decke dort nicht offen gestaltet werden, da die Dachbinderkonstruktion auf dem Holzständerwerk aufsetzt.
Jein, das schließt sich nicht zwingend aus. Man hätte in diesem Bereich dann allerdings sichtbare Binder.

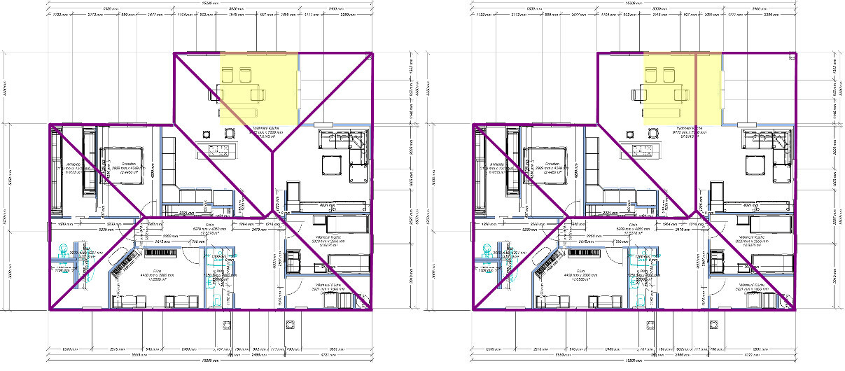
Anhängend mein Änderungsvorschlag für den Dachstuhl (links wie bisher geplant; gelb jeweils der gewünschte Luftraum; rechts die Variante). Wenn man den Dachabschnitt über Essplatz und gedecktem Freisitz als Sattel ausführen würde - sonst kann es beim Walmdach bleiben - wäre alternativ zu Doppelflügelfenster eine Giebelverglasung machbar:


Zwei Hausgrundrisse nebeneinander mit violetten Linien und gelbem Raum oben links


 
Y

ypg

Das Arbeitszimmer soll aus verschiedenen Gründen separat sein, vor allem werde ich keine Gäste oder Kunden durch das Ankleidezimmer führen wollen, oder? Selbst wenn es ein Kinderzimmer sein sollte, ist es doch suboptimal, dass das Kind erst durch das Ankleidezimmer der Eltern muss?
Naja, wenn man aber Input für Verbesserungen haben möchte, dann gehören solche Spezifika schon im Ersten Thread genannt. Frage mich aber, warum das Büro in der Privatzone untergebracht werden soll, wenn es Besucher gibt, wie Du sagst.
Ich verstehe das irgendwie nicht, und anscheinend bist Du genervt, weil man hier die Voraussetzungen erfragt.

Es hat auch keiner den Vorschlag gemacht, das Büro oder Kunden durch die Ankleide zu lotsen.
Für Dich mag es alles gesetzt sein, wir aber schauen uns das ganze Jahr über Entwürfe an und denken auch mal außergewöhnlich bzw nicht „von Stange“, wie es Viebrockhaus macht.

Schau Dir mal die Bungalows bei Danwood an, nur mal um den Faden zu werfen, dass diese Bungalows auch anders aussehen können.
Scanhaus Marlow Marlow hat auch aufgeholt: da hie und da ne Wand geschoben oder weggelassen, hat man gleich ein anderes Lebensgefühl in den eigenen Wänden. Aber das weißt Du ja selbst.
 
Zuletzt aktualisiert 07.01.2026
Im Forum Grundrissplanung / Grundstücksplanung gibt es 2565 Themen mit insgesamt 88780 Beiträgen


Ähnliche Themen zu Bungalow Grundriss Max. 140 m² - Masse laut der Norm ok?
Nr.ErgebnisBeiträge
1Scanhaus Marlow Erfahrungen, Preise? - Seite 536
2Viebrockhaus Erfahrungen? Viebrockhaus Preise? 68
3Viebrockhaus Erfahrungswerte? 18
4Kontrollierte-Wohnraumlüftung bei Viebrockhaus, Heiztechnik 25
5Batteriespeichersystem von Viebrockhaus, lohnt es sich kaufen? 16
6Viebrockhaus Lüftungsanlage / Nibe Wärmepumpe? 16
7Neues Viebrockhaus V5 zum Einführungspreis 11
8Wärmepumpe Nibe 735G Viebrockhaus Stromverbrauch zu Hoch 11
9Passender Baupartner - Viebrockhaus, Kern, weitere? 26
10Holz oder Stein-auf-Stein? Weberhaus oder Viebrockhaus? 105
11Massivhaus Anbieter in Hamburg Alternative zu Viebrockhaus? 19
12Viebrockhaus - Photovoltaikanlage 11
13Viebrockhaus vs Kern-Haus vs Weton bei Hochwasser und NRW.Bank 15
14Verschattung der Dachfenster im Wohnzimmer - Erfahrungen / Tipps? 28
15Reinigung hoher, schwer zugänglicher Dachfenster Galerie? 12
16Grundriss für 150qm Einfamilienhaus mit Wohnzimmer nach Norden - Seite 321
17Dachfenster oder künstliche Beleuchtung als Alternative? 14
18Verträge unterschrieben - Zweifel innerhalb der Rücktrittsfrist - Seite 325
19Wir wollen bauen. Empfehlenswerte Firmen Raum Hamburg gesucht 21
20Hausbau Fertighaus oder Massivhaus? Erfahrungen Preislicher Rahmen - Seite 4127

Oben