Stadtvilla dezent modern 218qm

4,80 Stern(e) 8 Votes
Zuletzt aktualisiert 21.11.2025
Sie befinden sich auf der Seite 5 der Diskussion zum Thema: Stadtvilla dezent modern 218qm
>> Zum 1. Beitrag <<

Marco180

Marco180

Dann zeig´ doch ´mal zum Vergleich den (unveränderten) Bestand als Basis.
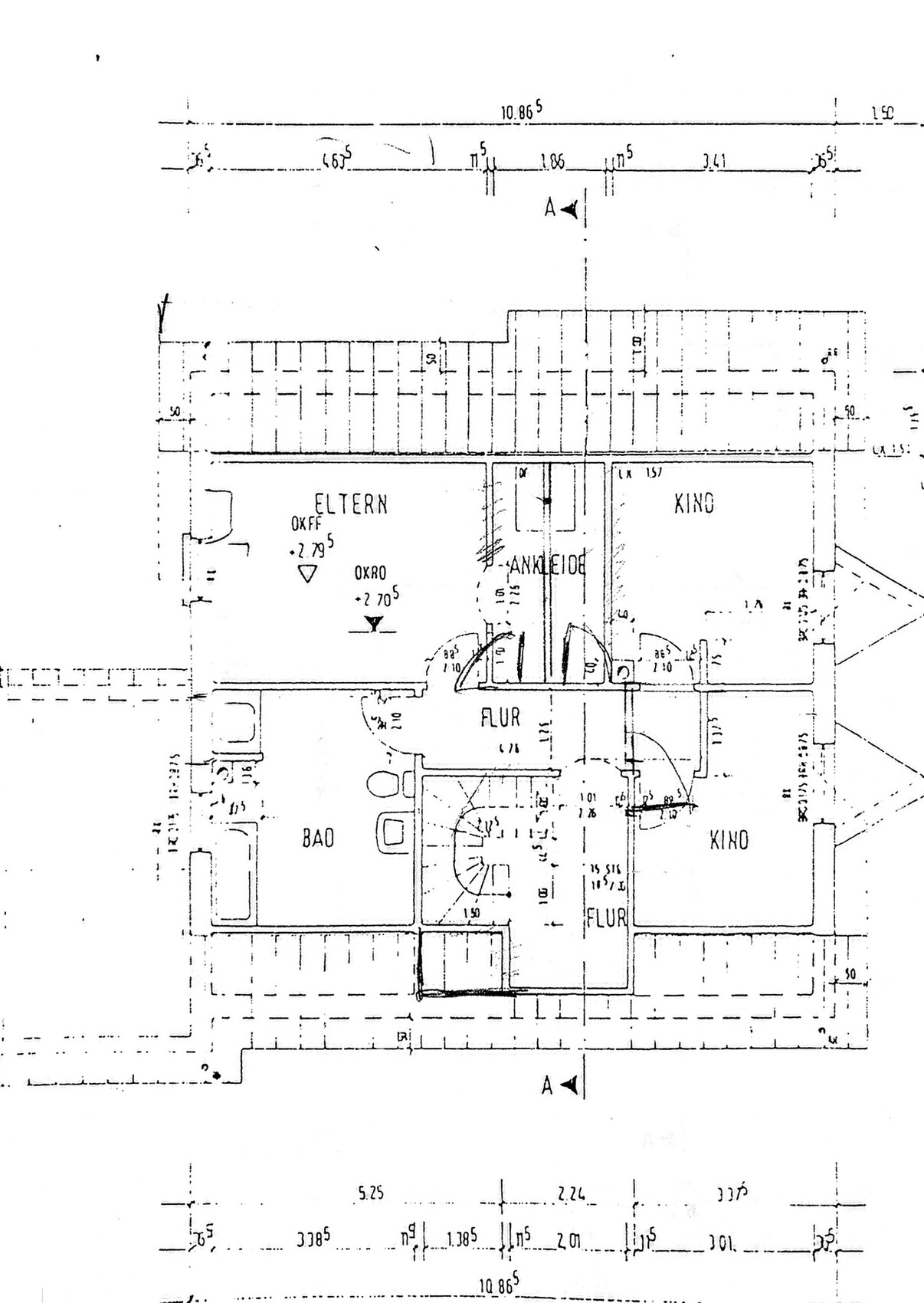
Gute Idee. Anbei unser derzeitiger Grundriss. 1,5 Geschosse mit Krüppelwalmdach.
Abweichungen ggü Grundriss:
- Küche offen und weit hineingezogen
- Treppe viertelgewendelt ohne diese beiden störenden Wände EG/ OG
- keine Ankleide im OG

Ansonsten vielleicht eine Klarstellung bzgl. Neubauprojekt.
Das OG sowie ein Großteil des EG gefallen uns sehr gut.
Die Garderobe habe ich vergrößert. Danke für diesen Hinweis.
Der Wohn-Essbereich ist mir weiterhin noch zu "uninspiriert"
Obwohl die Teilbereiche: Küche, Lichteinfall und Terrassenüberdachung passen.





Zweidimensionaler Grundriss eines Hauses mit Wohnbereich, Küche, Essbereich, Garage und Flur

Grundriss eines Wohnhauses: Eltern- und Kinderzimmer, Flur, Bad und Treppe.



Draufsicht-Grundriss eines Wohn- und Arbeitsbereichs mit Möbeln und Maßlinien.
 
Marco180

Marco180

Neu OG statt alt DG hast Du vergessen
genau

Hier ist noch der Grund, warum wir den Küchen- /Essbereich gern größer haben möchten.
Derzeit ist es trotz der Gesamtgröße des EG eher zu eng und gleichzeitig mein Homeoffice-Bereich.
Der Wohnbereich dafür zu groß. Und alle diese Möbel (ausser Küche natürlich) müssen harmonisch integriert werden. Licht muss ausreichend sein und die Terrasse erreichbar. Ich hoffe das konkretisiert meine Herausforderung.



Offener Küchen- und Essbereich mit Holztisch, Stühlen, Insel und Pflanzen



Offenes Wohnzimmer mit roten Ledersofas, Holzschränken, Glasdurchgang, runder Teppich, Spieltisch.
 
Zuletzt bearbeitet:
Pinky0301

Pinky0301

Hihi, wir haben auch die Hülsta-Möbel, aber in Nussbaum. Genau die gleiche TV-Wand und auch das Sideboard
 
C

Curly

ich würde in der neuen Küche nicht auf die Ecke unten links verzichten. Dort kann man gut Kaffeemaschine oder andere Küchengeräte hinstellen.

LG
Sabine
 
Marco180

Marco180

@Pinky0301, exzellenten Möbelgeschmack habt Ihr
@Curly, Danke für den Hinweis. haben wir derzeit genau so, aber der Abschluss der Küchenmöbel gestaltet sich optisch schwerer, Siehe Bild Nr. 3, Eine Spinner-Idee von mir ist dort noch einen verdeckten Zugang zu Hauswirtschaftsraum zu schaffen. Also quasi durch die Schranktür.

Das EG hat jetzt als Highlight einen Kamin über die zentrale Außenecke erhalten. Ich kann mir das Optisch als Blickfang sowie Verbinder zwischen den Raumteilen recht gut vorstellen. Der Zug läuft auch eleganterweiser im OG durch die Ankleide, und stört somit nicht.


Grundriss: offener Wohnbereich mit Esstisch, Kücheninsel und rotem Sofa.



Offener Wohn- und Essbereich mit Holztisch, Kamin und roten Sofas, Blick zum Garten



Heller Wohnraum mit Kücheninsel, Esstisch aus Holz und Stühlen; Kamin rechts im Raum.
 
Zuletzt bearbeitet:
Zuletzt aktualisiert 21.11.2025
Im Forum Grundrissplanung / Grundstücksplanung gibt es 2535 Themen mit insgesamt 87982 Beiträgen


Ähnliche Themen zu Stadtvilla dezent modern 218qm
Nr.ErgebnisBeiträge
1Platzierung der Möbel im Wohnzimmer im Grundriss 10
2Plan, wie findet ihr den Grundriss??? 13
3Grundriss Stadtvilla 11.00x11.00m - Seite 219
4Bewertung Grundriss ca. 160 qm Einfamilienhaus EG/OG ca. 800 qm Grundstück 33
5Grundriss Halboffene Küche mit großem Essbereich - Detailfragen - Seite 212
6Türanschlag zum Wohn/-Essbereich und Beleuchtung Küche 13
7Wie findet ihr diesen Grundriss? - Seite 211
8Grundriss die IV! :-) 18
9Meinungen zum Grundriss EG 10
10Eure Meinung zum Grundriss für das EG 28
11Grundriss Einfamilienhaus mit Doppelgarage und Terrasse - Seite 219
12Grundriss für Einfamilienhaus 12
13Ideenfindung für Grundriss 120m2 Einfamilienhaus 12
14Findet ihr den Grundriss unserer Stadtvilla so Ok? 46
15Meinung zum Grundriss / Zwei verbesserungswürdige Punkte. 17
16Grundriss-Planung: Bungalow ~130m² - Seite 758
17Wieder mal ein Grundriss zur Kritik. 34
18Grundriss 200qm mit integriertem Wintergarten und Galerie - Seite 332
19Bitte um Meinung zum Grundriss 12
20Grundriss im Villenstil - Seite 221

Oben