Unser Grundriss im EG ist sehr ähnlich aufgebaut (das "Zimmer" im EG ist halt bei uns der Hauswirtschaftsraum). Daher gefällt mir euer Grundriss recht gut

. Wir haben auch diesen langen Wohn-Ess-Bereich und werden diesen ebenso möblieren wie im EG-Grundriss in Beitrag #10. Dass in der Mitte etwas leerer Platz übrig bleibt, finde ich nicht schlimm, ganz im Gegenteil. Allerdings ist unser Haus etwas kleiner und somit sind die Abmessungen vom Wohn-Ess-Bereich bei uns 9,51 x 4,01 m, der reine Wohnbereich bis zur Tür ist allerdings "nur" 3,87 m lang (bei euch über 1 m mehr). Da wir aber auch noch Kommoden/Vitrinen o.Ä. im Wohn-Ess-Bereich an die Wand stellen werden, rückt der Esstsich bei uns noch mehr in den Raum rein und somit wird der leere Platz noch geringer.
Ich finde es gut, dass diese "Problematik" hier angesprochen wird aber letztendlich entscheidet der persönliche Geschmack und wenn es euch gefällt... dann macht es so. Wir werden wie gesagt auch so bauen und finden das ganz und gar nicht schlimm

. Wenn du magst, schau mal in meinem Thread, da habe ich unsere Grundrisse auch gepostet.
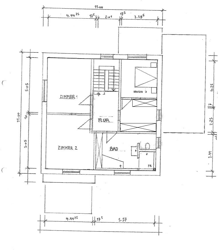
Die Treppe könnte mit insgesamt 2,01 m Breite allerdings schon etwas schmal werden. Unsere Treppe wird 2,26 m breit werden.
Den Zugang zum Schlafzimmer werden wir auch über die Ankleide realisieren, auch in etwa so aufgebaut wie in dem möblierten OG-Grundriss in #10.