
11ant
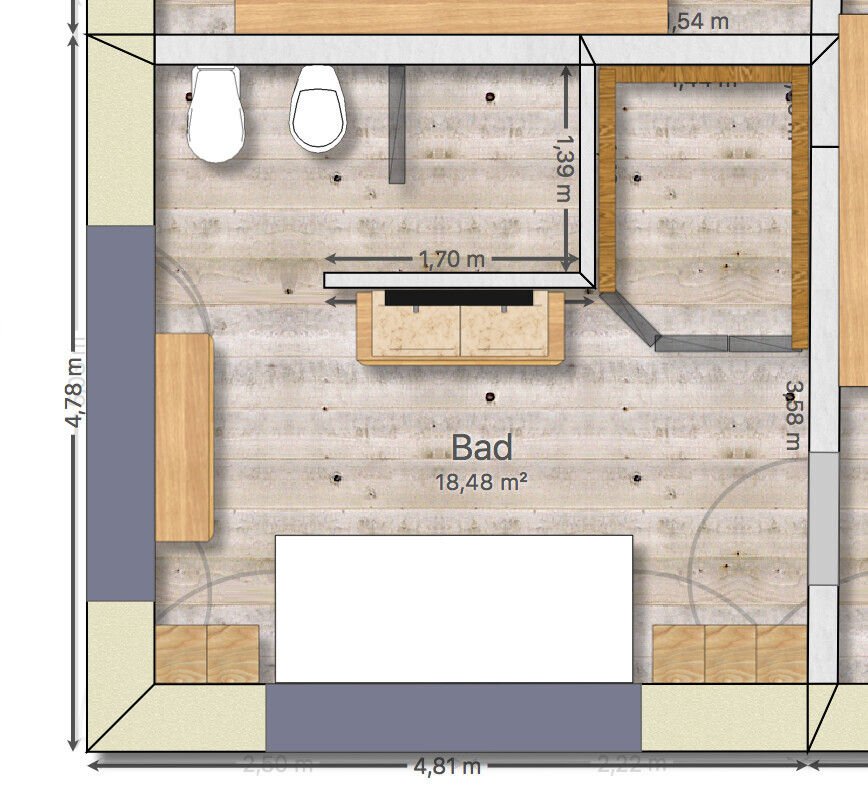
Dreck akkumuliert in Ecken, und mehr Größe birgt meist auch eine faire Chance, die Räume verschachtelungs- und damit eckenärmer zu arrangieren. Was beim Putzen Zeit kostet, ist den Besen da zu drehen, wo kaum Wendekreis dafür da ist.das musst du vor allem auch alles sauber halten.
Was nützt es mich, wenn der Saugroboter sich abreagiert :-(Mit Saugroboter ist das sogar noch entspannter.