
11ant
Ich hatte im alten Thread https://www.hausbau-forum.de/threads/Herausforderung-Grundriss-für-unschoene-grundstueckform-Hilfe.32565/page-5#post-353766 im Grunde "abschließend" alles gesagt, was es m.E. zu diesem Entwurf zu sagen gibt, fasse es aber gerne hier nochmals zusammen:
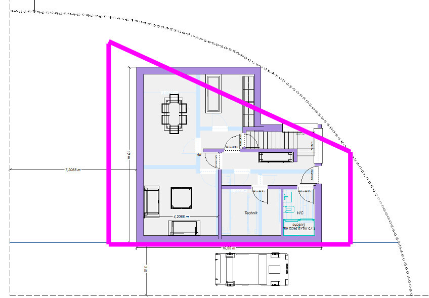
Das "Fundament" des Entwurfes ist ein unglücklich gewähltes Paradigma: der TE wähnt eine gerade Grundstücksseite als edelste Gartenseite und ist bemüht, für deren Freihaltung die (größtmöglich ausgeschöpfte) bebaute Fläche mit so wenig "Verschnitt" wie irgend möglich in die "runde Ecke" des Grundstücks zu drücken. Er nimmt an, er täte sich einen Gefallen, wenn er jeden Quadratzentimeter Grundflächenzahl der Grundstückskante folgen läßt, um somit den gesamten "Grundstückrest" als zusammenhängende Gartenfläche zu gewinnen. Tatsächlich "erringt" er damit jedoch einen Pyrrhussieg, d.h. holt sich nutzlose Restflächen ins Haus hinein und bezahlt dies mit einer schwierigen Grundrißgeometrie. Hier wird quasi wörtlich genommen, das erste Haus für einen Feind zu bauen.
Schon die ersten drei Grundannahmen waren falsch, nämlich:
1. maximale Grundflächenausreizung mache glücklich und
2. es sei seliger, der Erholungsfläche die günstigere Geometrie zu lassen (Pastorenstück) und lieber die Baufläche damit herauszufordern sowie daß
3. nur eine Kongruenz von Haus- und Grundstücks-Umrißlinie die bestmöglich ungeschmälerte Flächen-Restmenge für den Garten ließe;
nun setzt der TE noch einen vierten Irrgedanken obendrauf: nämlich daß Irrgedanke Numero Drei "optimiert" wäre, wenn man den Viertelkreis streng "gerundet" anlegte, statt als Vieleck nur näherungsweise.
Diese "Verbesserung" bringt aber zweitens wenig - selbst eine Feinwaage schlägt da kaum aus - und erstens nur dann überhaupt einen Vorteil, wenn man im Mittelpunkt dieser Kreissegmentlinie (also da wo man den Zirkel einpiekst) gleichzeitig auch den Fokus anlegte, in dem des Grundrisses Pudelkern läge.
Als Einziges "(pyrrhus)optimiert" sind nun stattdessen die neuralgischen Punkte, wo spitz zulaufende Restflächen komplikationsschwangere Anschlussdetails ergeben. Tauglich sehe ich hier allein Katjas Entwürfe - und auch dies nur von der Kubatur her, die Aufgabe "was muß mein Haus beinhalten, und für wen" muß der TE nach wie vor Ersteinmal lösen. Das wäre der eigentliche erste Schritt, nicht "wie nutze ich mein teures Grundstück nach der Devise lieber den Magen verrenkt als dem Wirt ´was geschenkt" !
Der Architekt ist wohl auch zu sehr der vom TE ausgegebenen falschen Marschrichtungsparole gefolgt und hat entstprechend aus einer Vorlage einer glatten Sechs (Thema verfehlt) eine Sechs plus (Thema verfehlt aber mehr Übung erkennbar) gemacht. Mein relativer Favorit ist die von Katja zeichnerisch dargestellte L-Grundform (die auch das Grundstück qualitativ schon´mal weit besser nutzte, also nicht nur eine Haus-Verbesserung wäre) und mein absoluter Favorit wäre wohl, Yvonnes Vorschlag folgend eine gerade Ostseite mit rechtwinkling angeschlossener Nord- und Südseite zu bauen und die Westseite den Grundstücksbreiten folgend entweder als L oder schräg verlaufend anzulegen.
Das "Fundament" des Entwurfes ist ein unglücklich gewähltes Paradigma: der TE wähnt eine gerade Grundstücksseite als edelste Gartenseite und ist bemüht, für deren Freihaltung die (größtmöglich ausgeschöpfte) bebaute Fläche mit so wenig "Verschnitt" wie irgend möglich in die "runde Ecke" des Grundstücks zu drücken. Er nimmt an, er täte sich einen Gefallen, wenn er jeden Quadratzentimeter Grundflächenzahl der Grundstückskante folgen läßt, um somit den gesamten "Grundstückrest" als zusammenhängende Gartenfläche zu gewinnen. Tatsächlich "erringt" er damit jedoch einen Pyrrhussieg, d.h. holt sich nutzlose Restflächen ins Haus hinein und bezahlt dies mit einer schwierigen Grundrißgeometrie. Hier wird quasi wörtlich genommen, das erste Haus für einen Feind zu bauen.
Schon die ersten drei Grundannahmen waren falsch, nämlich:
1. maximale Grundflächenausreizung mache glücklich und
2. es sei seliger, der Erholungsfläche die günstigere Geometrie zu lassen (Pastorenstück) und lieber die Baufläche damit herauszufordern sowie daß
3. nur eine Kongruenz von Haus- und Grundstücks-Umrißlinie die bestmöglich ungeschmälerte Flächen-Restmenge für den Garten ließe;
nun setzt der TE noch einen vierten Irrgedanken obendrauf: nämlich daß Irrgedanke Numero Drei "optimiert" wäre, wenn man den Viertelkreis streng "gerundet" anlegte, statt als Vieleck nur näherungsweise.
Diese "Verbesserung" bringt aber zweitens wenig - selbst eine Feinwaage schlägt da kaum aus - und erstens nur dann überhaupt einen Vorteil, wenn man im Mittelpunkt dieser Kreissegmentlinie (also da wo man den Zirkel einpiekst) gleichzeitig auch den Fokus anlegte, in dem des Grundrisses Pudelkern läge.
Als Einziges "(pyrrhus)optimiert" sind nun stattdessen die neuralgischen Punkte, wo spitz zulaufende Restflächen komplikationsschwangere Anschlussdetails ergeben. Tauglich sehe ich hier allein Katjas Entwürfe - und auch dies nur von der Kubatur her, die Aufgabe "was muß mein Haus beinhalten, und für wen" muß der TE nach wie vor Ersteinmal lösen. Das wäre der eigentliche erste Schritt, nicht "wie nutze ich mein teures Grundstück nach der Devise lieber den Magen verrenkt als dem Wirt ´was geschenkt" !
Der Architekt ist wohl auch zu sehr der vom TE ausgegebenen falschen Marschrichtungsparole gefolgt und hat entstprechend aus einer Vorlage einer glatten Sechs (Thema verfehlt) eine Sechs plus (Thema verfehlt aber mehr Übung erkennbar) gemacht. Mein relativer Favorit ist die von Katja zeichnerisch dargestellte L-Grundform (die auch das Grundstück qualitativ schon´mal weit besser nutzte, also nicht nur eine Haus-Verbesserung wäre) und mein absoluter Favorit wäre wohl, Yvonnes Vorschlag folgend eine gerade Ostseite mit rechtwinkling angeschlossener Nord- und Südseite zu bauen und die Westseite den Grundstücksbreiten folgend entweder als L oder schräg verlaufend anzulegen.