Grundriss Bungalow 125qm konisches Grundstück

5,00 Stern(e) 7 Votes
Zuletzt aktualisiert 18.11.2025
Sie befinden sich auf der Seite 7 der Diskussion zum Thema: Grundriss Bungalow 125qm konisches Grundstück
>> Zum 1. Beitrag <<

F

forrestde

Hallo zusammen,
wir hatten zwischenzeitlich die Möglichkeit im gleichen Baugebiet das Grundstück zu wechseln, weil ein Eckgrundstück am Feldrand wieder freigeworden ist. Ich habe mit dem Grundriss planen weitergemacht und würde diesen Thread dafür weiter nutzen.

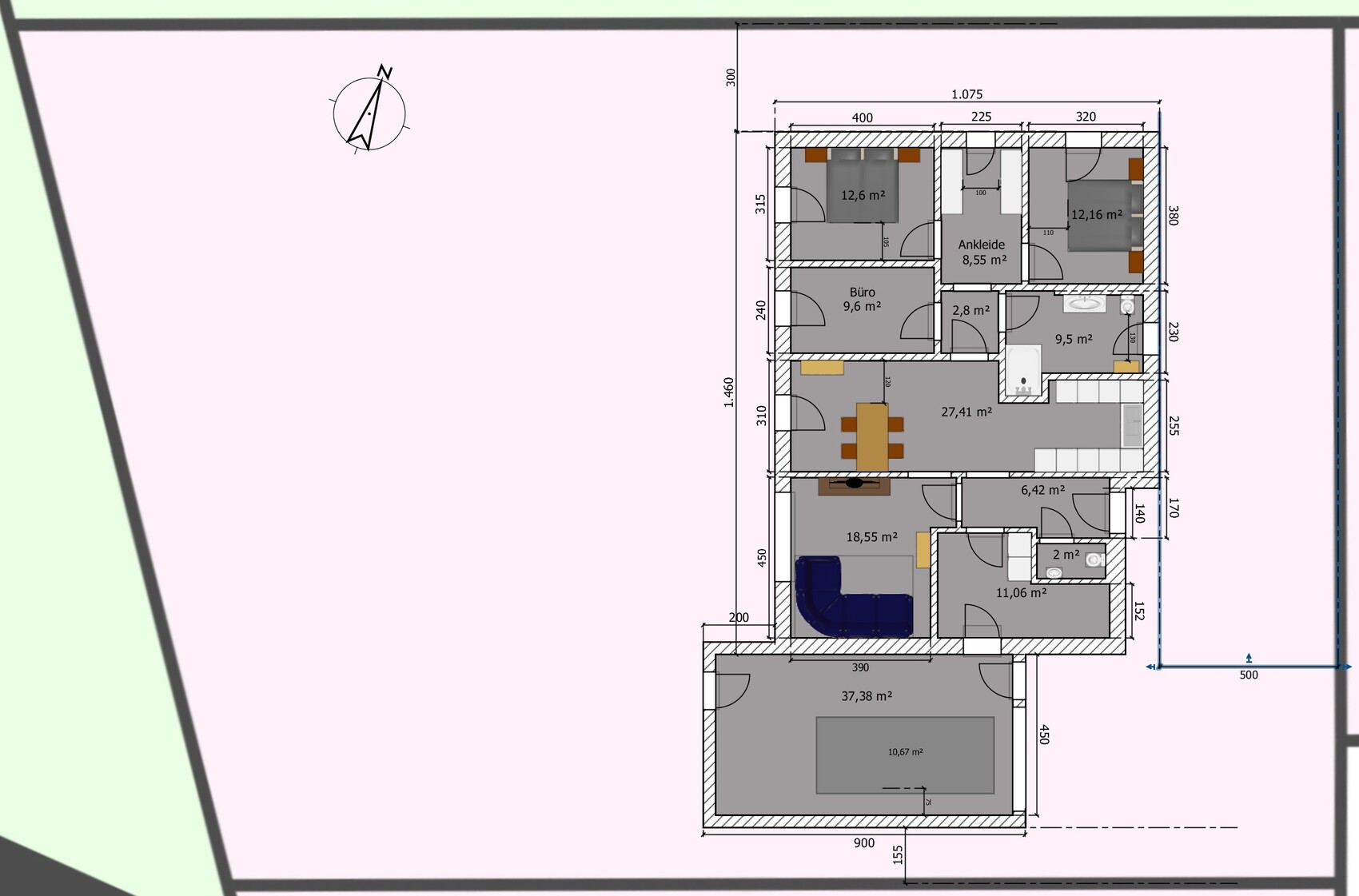
Im ersten Bild seht ihr das Grundstück (das Bild ist genordet), die Zufahrt ist im Osten (4m breit).
Auf den Bildern 2 und 3 seht ihr den geplanten Grundriss.

Was uns gut gefällt:
- Vom Eingangsbereich Sichtachse ins Wohnzimmer und auf die Terrasse
- Separater Essbereich
- Wohnzimmer auch separat (kein Durchgangszimmer)
- Zugang über Garage in den Hauswirtschaftsraum (wegen Hund)
- Gemeinsames Ankleidezimmer für beide Schlafzimmer. Das größere Schlafzimmer ist das Haupt-Schlafzimmer, das kleinere ist das Zweit-Schlafzimmer oder Gästezimmer. Aktuell würde das Zweit-Schlafzimmer dauerhaft genutzt werden, weil einer der Herren unsäglich schnarcht (ich leider).
- In dem Entwurf komme ich auf ca. 121 m² Wohnfläche, was gut ist, weil wir sparen wollen/müssen

Der Eingangsbereich mit Hauswirtschaftsraum und Gäste-WC könnte vielleicht noch geschickter gelöst werden.

Ich würde mich über Feedback von Euch freuen.
Danke und viele Grüße
Grundriss eines Hauses mit Wohnzimmer, Küche, Bad, Garage, Schlafzimmer, Ankleide.

Grundriss eines Hauses mit Wohnzimmer, Küche, Bad und Schlafzimmer sowie Flächenangaben.

Lageplan der Parzellen 78, 79 und 80 mit Flächenangaben in Quadratmetern
 
Y

ypg

weil ein Eckgrundstück am Feldrand wieder freigeworden ist.
Gab es mit dem anderen Grundstück Probleme? Warum der Wechsel? Wegen Feldrandlage? Und warum kann man die Feldrandlage im Haus nur erahnen und nur durch ein zwei Fenster erhaschen?
Was uns gut gefällt:
- Vom Eingangsbereich Sichtachse ins Wohnzimmer und auf die Terrasse
- Separater Essbereich
- Wohnzimmer auch separat
Vom Eingangsbereich Sichtachse ins Wohnzimmer und auf die Terrasse
Die von Dir genannte Sichtachse ist keine, da eine Tür dazwischen ist
Wohnbereich offen, der Rest geschlossen
Erklärt sich bei Dir der Sinneswandel zur Trennung von WZ und Essbereich? Bei mir so nicht.

Ich sag es mal so: wenn Du so weiter machst, dann wird der Hausbau auch nächstes Jahr nicht durchgeführt werden. Du juckelst mit Deinen selbstgemalten Bungalowentwürfen schon ein halbes Jahr herum, nimmst keine Kritik an, setzt immer wieder neu an, aber mit den immer wieder gleichen Fehlern. Hast Du denn schon mal einen GU mit ins Boot geholt? Deine Müh ist doch umsonst, wenn der günstige Unternehmer so etwas nicht baut?!
Ich persönlich finde das Grundstück von der Ausrichtung sehr viel schlechter als das andere. Wenn der Feldrand für Dich das Plus ist, dann frage ich mich, warum. Anhand des Entwurfes ist kein Feldrand einbezogen.
Gleiches Dilemma wie vor einem halben Jahr: schmaler dunkler Flur, keine Garderobe. Dann kommt ein mega langer Raum, 10 Meter lang, aber schmal, der für die Küche noch schmaler wird. Eine schmale Terrassentür. 3,10: das Maß ist eine Kampfansage an jeden Essbereich. Ankleide der anderen Art: Ü8qm für 2 Kleiderschränke, der Rest für 3 Türen.
Von O bis O ist das Haus dunkel, weil es keine Südfenster gibt.
Das ist mein Feedback, mehr gibt es nicht.
 
11ant

11ant

Ich habe mit dem Grundriss planen weitergemacht
Oh Gott, warum nur ?
Ich sag es mal so: wenn Du so weiter machst, dann wird der Hausbau auch nächstes Jahr nicht durchgeführt werden. Du juckelst mit Deinen selbstgemalten Bungalowentwürfen schon ein halbes Jahr herum, nimmst keine Kritik an, setzt immer wieder neu an, aber mit den immer wieder gleichen Fehlern. Hast Du denn schon mal einen GU mit ins Boot geholt? Deine Müh ist doch umsonst, wenn der günstige Unternehmer so etwas nicht baut?!
Ich persönlich finde das Grundstück von der Ausrichtung sehr viel schlechter als das andere. Wenn der Feldrand für Dich das Plus ist, dann frage ich mich, warum. Anhand des Entwurfes ist kein Feldrand einbezogen.
Gleiches Dilemma wie vor einem halben Jahr:
Da kann ich mich nur anschließen. Ich sehe hier keinen Fortschritt, ewig grüßt das Murmeltier Mk I Release 4.7.11 - das ist ja keine Schande, wenn man beruflich etwas anderes macht, aber: es macht wenig Spaß, Dir beim Aufderstelletreten zuzuschauen. Falls es eine Evolution der Entwürfe gegeben haben sollte, hast Du zumindest einen Spirit beachtlich kontinuierlich gehalten. Es atmet Stillstand.
 
E

Evolith

Da wir ja auch in einem Bungalow leben nochmal die Sachen, die einen Bungalow toll machen, oder deftig versauen:
- Achte auf deine Flurgestaltung! In einem Bungalow läufst du oft durch Flure, denen sollte man etwas Schönheit gönnen.
- Eine schöne Raumgestaltung bekommst im Bungalow am ehesten in L-Form hin. So entzerrst du den Wohnbereich vom Schlafbereich.
- verzichte auf unnötige Türen! Das macht das Innere nur zu dunkel. Diese dumme kleine Tür vom Wohnzimmer zum Schlafbereich ist sowas von unnötig! Da der Flur so krass klein ist, werdet ihr die ständig ausgehängt haben, da ihr sonst die Türen ständig dem Entgegenkommenden an die Rübe knallt.
- Versuche so wenig Wände und Winkel wir möglich zu erzeugen. Gerade einfache Strukturen machen es angenehm fürs Auge und hell.


Ich finde deinen Entwurf ganz fürchterlich und ungemütlich. Erinnert mich sehr an den alten Bauernhofbungalow meiner Großeltern.
 
Zuletzt aktualisiert 18.11.2025
Im Forum Grundrissplanung / Grundstücksplanung gibt es 2536 Themen mit insgesamt 87961 Beiträgen


Ähnliche Themen zu Grundriss Bungalow 125qm konisches Grundstück
Nr.ErgebnisBeiträge
1Ideen Meinungen zu Bungalow 131 Grundriss gefragt 19
2Grundriss Bungalow 140qm - Anregungen? - Seite 293
3Grundriss Bungalow auf schon genutztem Grundstück 108
4Grundriss-Planung: Bungalow ~130m² - Seite 758
5Entwurf Grundriss Bungalow Meinungen - Seite 322
6Grundriss mit Garage auf Grundstück realisierbar? - Seite 429
7Bungalow Grundriss ~16x9.5m ( außen ) in 1000m² mit Altbestand - Seite 13102
8Grundriss-Hilfe für Bungalow benötigt 33
9Grundriss Bungalow 172 m2 in Brandenburg südlich von Berlin - Seite 11120
10Findet ihr den Grundriss unserer Stadtvilla so Ok? 46
11Grundriss Bungalow 140 qm 26
12Grundriss Bungalow ca. 160m2 Wohnfläche - Seite 220
13Grundrissplanung Bungalow ca. 150m² - Was haltet ihr davon? 23
14Grundriss Einfamilienhaus 240m², 2 Vollgeschosse ohne Keller, Massiv 47
15Grundriss Bungalow mit Einliegerwohnung - Grundriss Feedback 70
16Grundriss Bungalow 160-170qm mit Keller - Seite 4175
17Grundriss-Planung und Platzierung - Einfamilienhaus ca. 200qm auf 900qm Grundstück - Seite 255
18Grundriss Schlafzimmer, Ankleide und Bad en Suite 36
19Grundriss für 137m^2 Bungalow Optimierung - Seite 740
20Grundriss 120qm bungalow Einfamilienhaus - Seite 215

Oben