Grundriss - Haus mit Einliegerwohnung

4,30 Stern(e) 3 Votes
Zuletzt aktualisiert 22.11.2025
Sie befinden sich auf der Seite 3 der Diskussion zum Thema: Grundriss - Haus mit Einliegerwohnung
>> Zum 1. Beitrag <<

S

soleifly

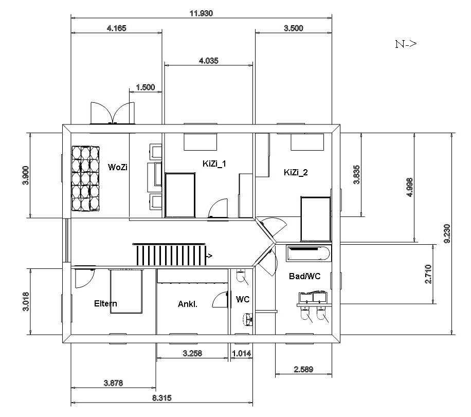
Nun das OG. Ring frei!

An E.Curb - ich rechne ja nicht mit Lob oder dergleichen, sondern mit (konstruktiver) Kritik und die ist ja in Foren oft hart.

Grundriss eines Hauses: Wohnzimmer, Elternzimmer, Ankleide, zwei KiZi, Bad/WC, WC, Treppe.
 
K

kritik

hi, so richtig bin ich in der kürze der zeit durch deinen Grundriss nicht durch gestiegen, aber als Tipp möchte ich dir geben, dass du mal deine vorhandenen Möbel ausmisst, damit du ein Gefühl bekommst, wie gross Möbel sind... z.b ein Schrank mit offenen und geschlossenen Türen, bzw. wie viel Platz du davor benötigst...

auch wichtig ist der Platzbedarf im Bad... dein wc im Schlafzimmer ist ein Schlauch... gut 3 Meter lang und einen breit... kann funktionieren... ist aber schon so eng, dass es im Krankheitsfall mit Gehhilfe (Krücke) zu eng ist...
beim Bett braucht man in der regel ca. 75 cm davor um aufzustehen... weniger ist zwar machbar aber eher schlecht...
Türanschläge immer mindestens 10 aus der ecke raus, Türen immer in de Raum öffnen, nicht in den Flur.
grundsätzlich solltest du dich mal für die Bauentwurfslehre von neufert interessieren... da findet man fast alles vermessen vor... von der gabel bis zu Kongresszentrum... Bäder... Schlafzimmer, Kinderzimmer Küchen und so weiter. da dürftest du Hilfe finden um dir einen eigenen plan zu zeichnen, der maßlich passt.
denn maße sind leidergottes entscheidend... ob du 1,00 m oder 1,20 m hast, ist doch ein gewaltiger unterschied.

die Entwurfslehre findet man in der regel in der Buchhandlung.

wenn du die Planung selbst in die Hand nimmst hast du einen gewaltigen aufwand vor dir, aber da dur dir schon ne CAD Software besorgt hast... bist du ja schon auf dem weg voran...


Viel Erfolg!


grundsätzlicher Tipp: entzerre dein Gebäude. versuche es im Grundriss so einfach wie möglich zu halten und vermeide, nach Möglichkeit schräge wände, die sind immer irgendwie unschön und machen den Raum kaputt.
 
B

Bauexperte

Hallo,

Ich will aber dennoch noch selber probieren.
Das kann ich nachvollziehen; wollen die meisten Bauherren

Du solltest aber verinnerlichen, dass die Möglichkeit besteht, dass - wenn ein gelernter Planer sich Deines BV annimmt - von Deinen Ideen nicht mehr viel übrig bleiben wird. Manchmal sieht eine Idee - wenn bspw. nur die Wandstärken angepasst wurden - nicht mehr so dolle aus

Freundliche Grüße
 
K

kritik

Des Weiteren solltest du dir, sofern du schon ein Grundstück hast, den Bebauungsplan des zugehörigen Gebietes einmal genau anschauen, der die Festsetzungen enthält wie:

Grundflächenzahl /Geschossflächenzahl - Wie groß darf die Grundfläche bzw. die Geschossfläche im Verhältnis zum Grundstück sein. ... 400m² Grundstück Grundflächenzahl 0,2 = 80 m² Grundfläche Haus, sprich Außenmaße Haus = 8 x 10 m...

Anzahl der Vollgeschosse... was ein Vollgeschoss ist, ist abhängig von dem Bundesland, in dem du bauen willst... findet man in der Landesbauordnung, meistens aber 0,75 der Grundfläche EG, oder 2/3 (immer Außenmaße bzw. im DG Schnittkante bei 2,30 m Höhenlinie mit Außenkante Dachhaut... siehe hierzu den schnitt...

sowie Dachform, Farben, gestalterische Festsetzungen eben.
Alles was nicht im Bebauungsplan verankert ist schriftlich oder zeichnerisch, wir durch die Baunutzungsverordnung geregelt... gibts beim dtv Verlag.

bei einem Gebäude ist Einliegerwohnunug solltest du dir auch die stellplatzVO der jeweiligen Stadt besorgen... sie regelt, wie viele Stellplätze du auf deinem Grundstück nachweisen solltest... kann sonst ne böse Überraschung geben.

zu Wandstärken... gehe im OG von 11,5 cm Wandstärke aus im EG meistens auch, ausser der Trennwand vom Wohnzimmer zur Treppe, die dürfte mit 17,5 cm hinlangen... könnte auch noch die Wand zu Gäste-WC und Hauswirtschaftsraum betreffen... auf Seiten der Einliegerwohnung ist es ebenfalls die wohnzimmertrennwand, die so verquer über eck läuft... ebenfalls 17,5 cm... die tragen nämlich denn die decken... hier würde ich allerdings gewaltig entzerren, den schrägen Kram weglassen, die wand zwischen Bad und schlafen grade hoch laufen lassen und dem Schlafzimmer so mehr Platz geben. der Rest wäre sonst verschenkte Fläche .

ach so und der HAR/Hauswirtschaftsraum sollte eine Grundfläche von circa 8 m² haben, besser mehr, wegen Heizung und Hausanschlüssen... und verwinkelt sollte er auch nicht sein...
 
Zuletzt bearbeitet:
K

kritik

das Prinzip des offenen Wohnens finde ich vom Grundsatz nicht schlecht, auch die Idee, das im og fortzusetzen kann spannend sein...
allerdings müsstest du beim og noch mal ran.
 
Zuletzt aktualisiert 22.11.2025
Im Forum Grundrissplanung / Grundstücksplanung gibt es 2535 Themen mit insgesamt 87989 Beiträgen


Ähnliche Themen zu Grundriss - Haus mit Einliegerwohnung
Nr.ErgebnisBeiträge
1Grundflächenzahl/Geschossflächenzahl bei Grundstück ohne Bebauungsplan: Wie kalkulieren? Erfahrungen? 18
2Staffelgeschosshaus 23x30m Grundstück mit Grundflächenzahl 0,25 25
3Grundriss Bungalow 125qm konisches Grundstück - Seite 739
4Grundriss-Verbesserungsvorschläge für Einfamilienhaus an Südhang - Seite 763
5Grundflächenzahl/Geschossflächenzahl bei Bebauungsplan von 1968 11
6Grundriss Bungalow auf schon genutztem Grundstück 108
7Erster Grundriss Einfamilienhaus - Eure Ideen auch zum Grundstück - Seite 333
8Wohnungsbau auf bestehendes Gebäude - Grundstück der Eltern - Seite 319
9Einfamilienhaus 150m2 Grundriss + Planung auf dem Grundstück 24
10Grundriss-Planung und Platzierung - Einfamilienhaus ca. 200qm auf 900qm Grundstück - Seite 255
11Grundriss Schlafzimmer, Ankleide und Bad en Suite 36
12Regelungen bei Bebauungsplan Erfahrungen? 22
13Grundriss 1,5 geschossiges Haus mit Kapitänsgiebel auf knapp 200m² 89
14Grundriss Bungalow ca. 140-150m² - Bitte um Feedback 14
15Grundriss Bungalow ca. 160m2 Wohnfläche - Seite 220
16Einfamilienhaus 165qm ohne Keller - Meinungen zum Grundriss 16
17Grundriss-Planung, 2 Vollgeschosse, ca. 130-140 qm ohne Keller 192
18Grundrissoptimierung Einfamilienhaus mit Keller auf kleinem Grundstück 178
19Einfamilienhaus Neubau 160qm Grundriss - Bitte um Feedback 22
20Grundriss mit Garage auf Grundstück realisierbar? - Seite 429

Oben