
kbt09
Gefällt mir gut und eine sinnvolle Splitlevel-Anwendung *daumenhoch*
WC-Problematik .. ich würde da keinen Vorraum abtrennen, sondern eine sehr geräuschdämmende Tür wählen, das WC aber auch nicht größer machen.
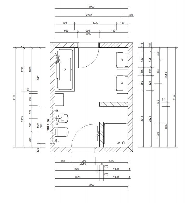
Elternbad, das würde ich schnellstmöglichst genau planen .. schöne große Dusche und dann erst die genaue Fensterposition festlegen. Frage auch, ob das Fenster vom Bad unbedingt bodentief sein muss. (Gäste im Garten und jemand im Bad)
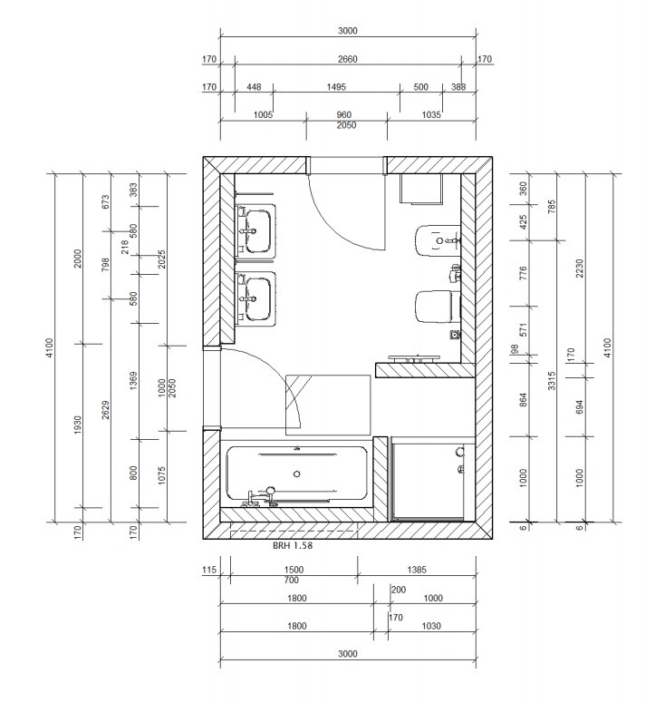
Fenster vom Kinderbad finde ich zu breit ... hier sollte auch erst mal eine sinnvolle Badmöblierung stattfinden. Evtl. dort dann sehr schmales bodentiefes Fenster. Denn auch hier finde ich eine Dusche von mind. 90x90 sinnvoll.
Gedanke Sauna an Dachterrasse, dann vielleicht eine Duschvorrichtungsmöglichkeit dort oben vorsehen, evtl. auch als Außendusche.
WC-Problematik .. ich würde da keinen Vorraum abtrennen, sondern eine sehr geräuschdämmende Tür wählen, das WC aber auch nicht größer machen.
Elternbad, das würde ich schnellstmöglichst genau planen .. schöne große Dusche und dann erst die genaue Fensterposition festlegen. Frage auch, ob das Fenster vom Bad unbedingt bodentief sein muss. (Gäste im Garten und jemand im Bad)
Fenster vom Kinderbad finde ich zu breit ... hier sollte auch erst mal eine sinnvolle Badmöblierung stattfinden. Evtl. dort dann sehr schmales bodentiefes Fenster. Denn auch hier finde ich eine Dusche von mind. 90x90 sinnvoll.
Gedanke Sauna an Dachterrasse, dann vielleicht eine Duschvorrichtungsmöglichkeit dort oben vorsehen, evtl. auch als Außendusche.