ᐅ Haus mit Dachterrasse in Passau
Erstellt am: 16.11.15 20:37
Hallo zusammen!
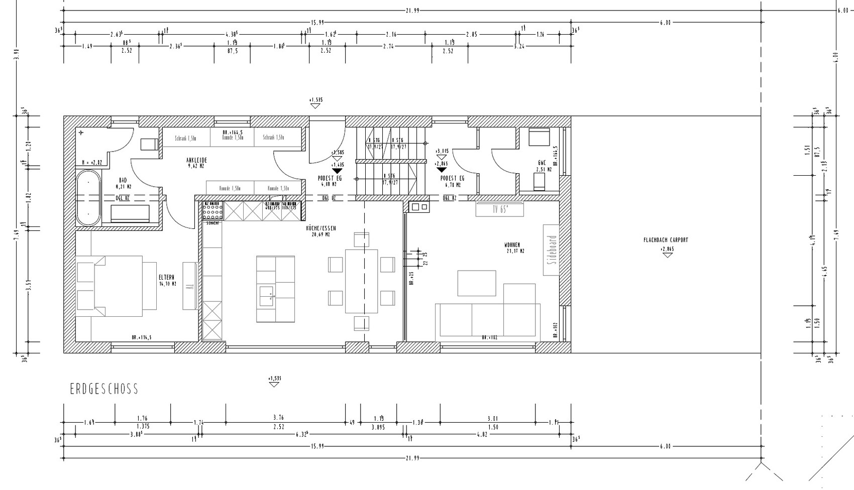
Da wir nun einige Tage den Entwurf unseres Architekten auf uns wirken haben lassen und nun auch das EG nach unseren Vorstellungen angepasst haben, will ich nun auch euch den Grundriss vorstellen. Baubeginn soll im Idealfall nächstes Jahr sein, letztlich sind wir aber nicht wirklich in Eile.
Die Pläne sind ein 2. Vorentwurf unseres Architekten mit einer ersten Kostenschätzung. Leider noch ohne Maße. Der erste Entwurf diente lediglich der Veranschaulichung dass mit unserem 1. geplanten Budget unsere Träume nicht zu verwirklichen sind .
Bebauungsplan/Einschränkungen
Größe des Grundstücks => ca. 450-500 m² (Steht noch nicht fest, das Grundstück bekommen wir von meinen Eltern geschenkt und sind uns noch nicht ganz einig, wie die zukünftigen Grenzen verlaufen sollen.
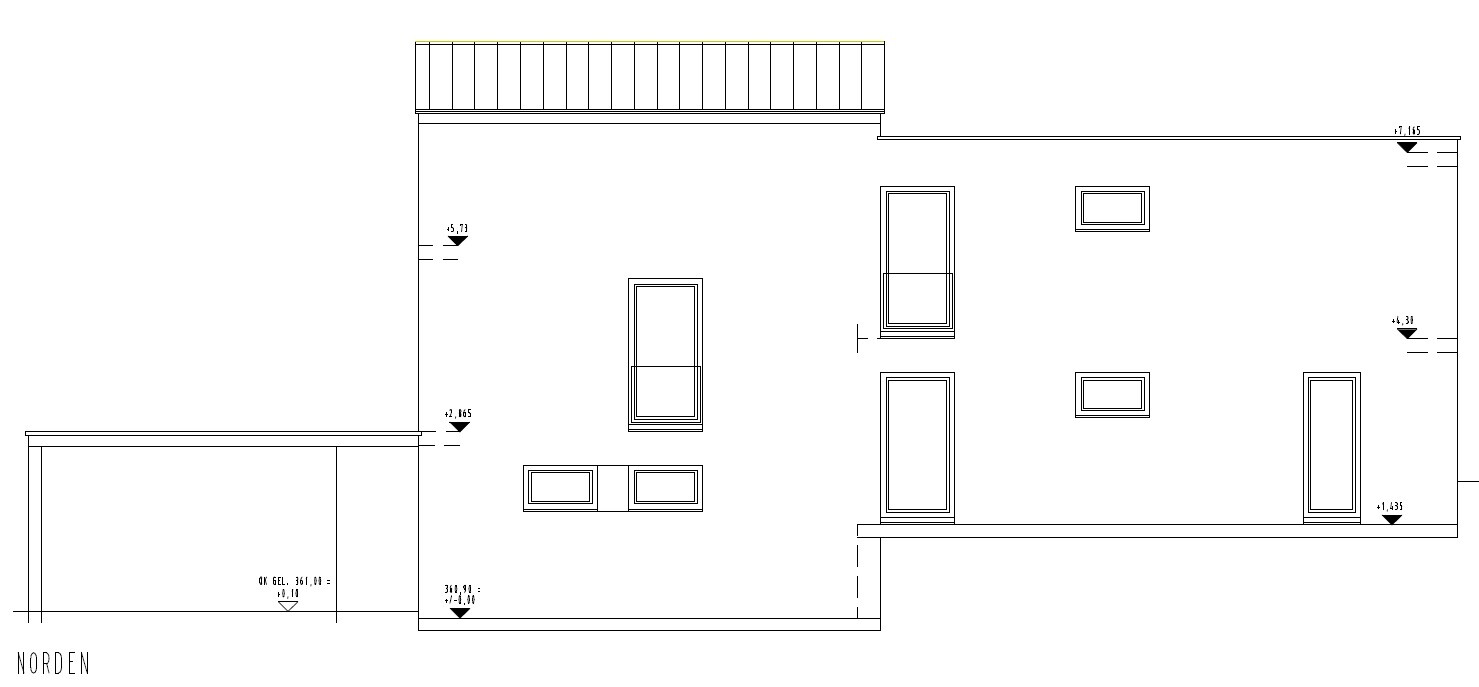
Hang => leichte Hanglage von West nach Ost. (ca. 1m auf die Hauslänge)
[I]Das Haus hat nahezug ideale Nord/Süd Ausrichtung. Der Eingang + Carport und Einfahrt befindet sich demnach im Norden.[/I]
- Es gibt keinen Bebauungplan
Anforderungen der Bauherren:
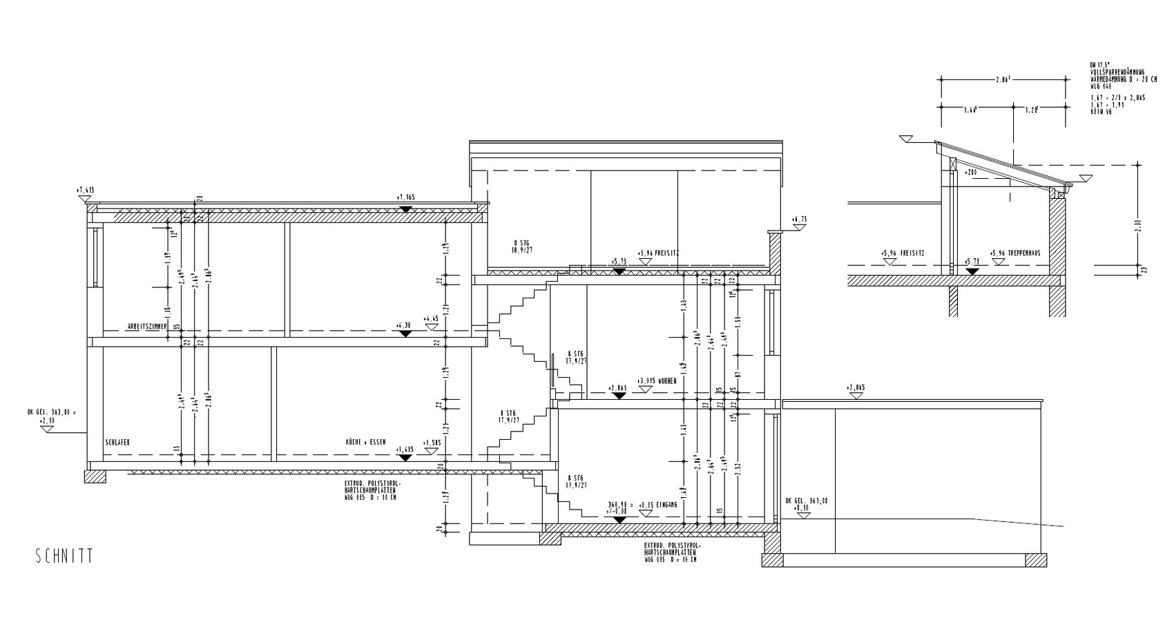
Stilrichtung, Dachform, Gebäudetyp => Flachdach mit Dachterrasse
Außenmaße => [I]11,80m x 7,2m mit einem Erker von 4,4m x 1,5m (keine Vorgabe von uns)
[/I]
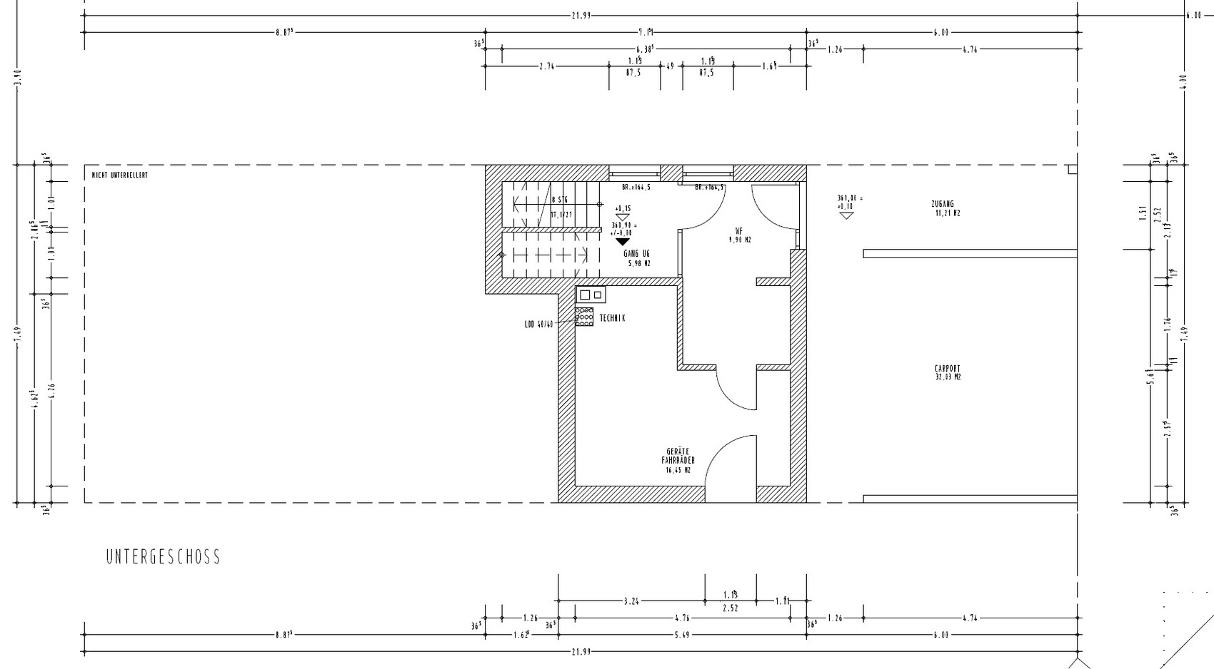
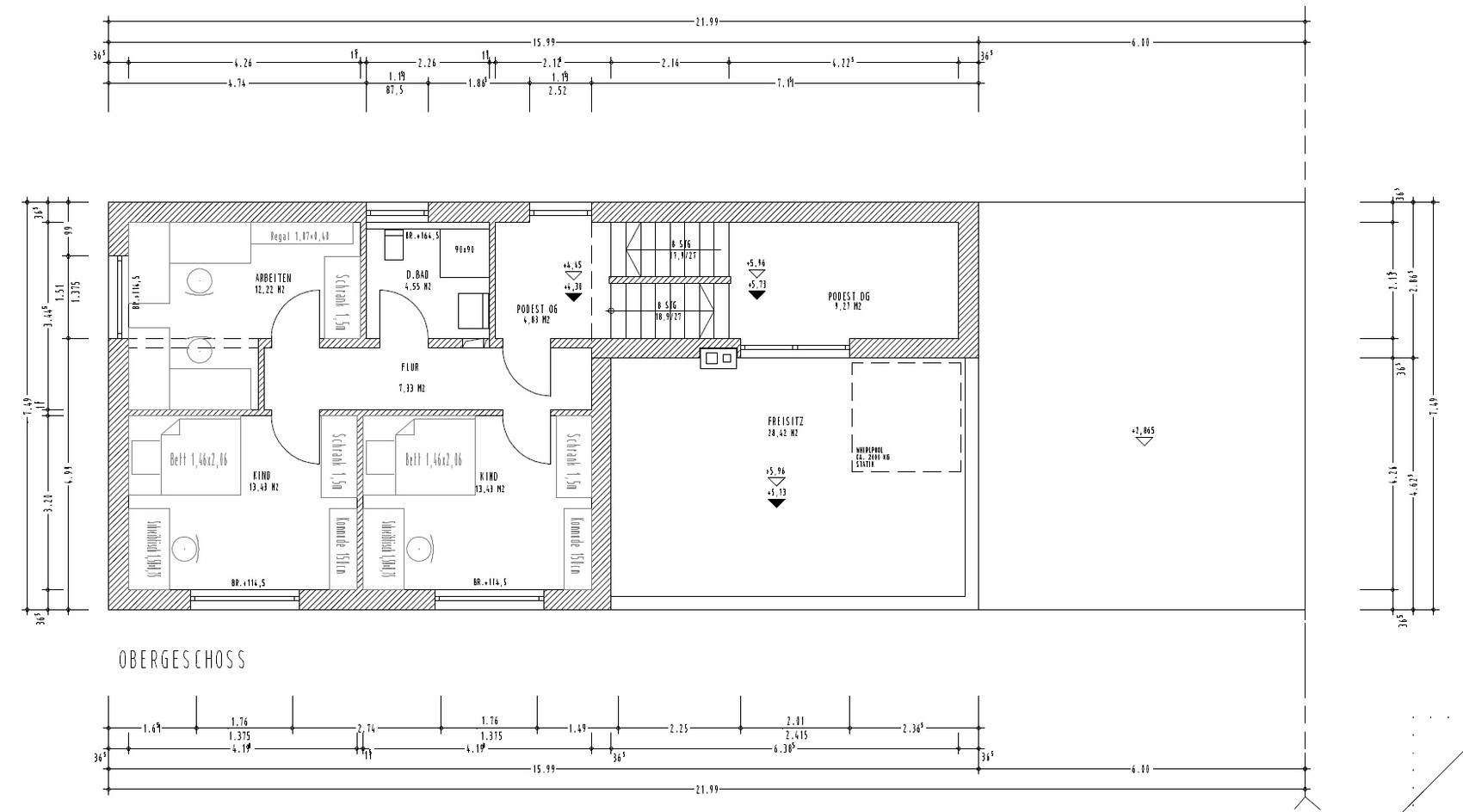
Keller, Geschosse => Keller mit Einliegerwohnung + 2 Vollgeschosse + Dachterrasse
Anzahl der Personen, Alter => 2 Erwachsene in Hauptwohneinheit + in naher Zukunft 2 Kinder + 1 Person in Einliegerwohnung
Büro: Familiennutzung oder Homeoffice? => Meine Frau ist Lehrerin, wird also regelmäßig auch was daheim machen müssen, Ich werde zukünftig bis zu 4 Tage die Woche Homeoffice arbeiten.
offene oder geschlossene Architektur => Offener Wohn-/Koch-/Essbereich
konservativ oder moderne Bauweise => moderne Bauweise
offene Küche, Kochinsel => offen ja, aber ohne Insel (wenn möglich ohne Hängeschränke)
Anzahl Essplätze => 6-10 Personen (Tisch mit 2,4x1,0m + 8-10 Stühle)
Kamin => Unsicher (Frau ja, ich nein - Tendenz geht zu nein)
Musik/Stereowand => nein
Balkon, Dachterrasse => Dachterrasse
Garage, Carport => 2x Carport
Nutzgarten, Treibhaus => nein
Hausentwurf
Von wem stammt die Planung:
- Architekt unseres Vertrauens.
Was gefällt besonders?:
- offene Küche, Kubus auf dem Dach mit überdachter Dachterrasse, kleiner Hauswirtschaftsraum im EG für Waschmaschine und Trockner
Was gefällt nicht/Was ist noch optimierungsbedürftig?:
UG - Kelleraufteilung muss noch optimiert werden für einen Technikraum.
EG - Soll von West nach Ost komplett gespiegelt werden, außerdem haben wir Angst, dass das Wohnzimmer mit 3,5m Breite schlauchförmig wirkt. Ich will die Couch an die Nordseite stellen, den TV an die Südseite.
OG - 45° Wände beim Kinderbad
favorisierte Heiztechnik:
- Gastherme/Solar vs. Wärmepumpe (Luft/Wasser oder Erdwärme) Noch völlig unsicher, erst mal soll der Grundriss stehen, dann wird die Heizlast berechnet.
Wenn Ihr verzichten müsst, auf welche Details/Ausbauten
… könnt Ihr verzichten:
erst mal Carport und Kellerausbau, sowie Ausbau der Kinderzimmer + Kinderbad, da Kinder noch nicht vorhanden sind) Sonst hätten wir schon gern alles drinnen
… könnt Ihr nicht verzichten:
- Offener Wohnbereich im EG, Einliegerwohnung, Dachterrasse
Da sich unser Architekt nun bis Anfang Dezember in Urlaub befindet, ist bei uns nun grad bisschen Pause, die wir dafür genutzt haben, das EG zu unseren Vorstellungen umzuformen.
[I][I]
Wir überlegen nun, die Länsseite um min. 50cm (am liebsten 1,0m) zu verlängern um das Wohnzimmer von 3,5m Breite auf 4,0m/4,5m Breite zu erweitern (haben das Gebäude um 1m verlängert). [/I]
Wir haben es von West nach Ost gespiegelt, um vom Wohnzimmer eine Größere räumliche Trennung zur Einliegerwohnung zu bekommen. Außerdem haben wir eine Nische für nen Side-by-Side Kühlschrank eingeplant - die halt leider zu Kosten des eh schon kleinen Hauswirtschaftsraum´s geht.
Es tut mir leid, dass noch keine Bemaßung dabei ist, die Reiche ich baldestmöglich nach, für´s erste kann ich euch Maße nennen, wenn ihr welche Wissen wollt.
Nun zur Kostenschätzung vom Architekten:
Erschließung: 7.000€
Vermessung: 2500€
Haupthaus 285.000€
Carport 12.000€
Kontrollierte Wohnraumlüftung 10.000€ (von uns gewünscht)
Sonnenschutz 7.500€
Deckenspotleuchten 2.000€ (von uns gewünscht)
Geländeflächen 2.500€
Befestigte Flächen 20.000€
Küche 15.000€
Kamin 7.000€ (von uns ursprünglich gewünscht, nun unsicher)
Architektenleistungen ca. 29.000€[/I]
Sonderfachleute, Statik, Brandschutz, Energieeinsparverordnung ca. 11.000€
Gesamt: 410.500€
In seiner Kalkulation nimmt er für die Gebäudekosten einen Kalkulationswert von 326€/m³ inkl. Mwst. umbauten Raum an.
Die Wohnfläche liegt momentan bei ca. 156m² + ca 38m² Einliegerwohnung + 30m² NF im Keller.
Nur auf die Wohnfläche umgerechnet wäre das ein Preis von ca. 1.470€/m² Wohnfläche
Rechnet man sämtliche Kosten ein, kommt man auf 2.110€/m².
Erscheint euch das realistisch?
Was sagt ihr zu dem Entwurf? Was würdet ihr verbessern?
Ich freue mich auf eure Vorschläge!
Grüße Mathias





Da wir nun einige Tage den Entwurf unseres Architekten auf uns wirken haben lassen und nun auch das EG nach unseren Vorstellungen angepasst haben, will ich nun auch euch den Grundriss vorstellen. Baubeginn soll im Idealfall nächstes Jahr sein, letztlich sind wir aber nicht wirklich in Eile.
Die Pläne sind ein 2. Vorentwurf unseres Architekten mit einer ersten Kostenschätzung. Leider noch ohne Maße. Der erste Entwurf diente lediglich der Veranschaulichung dass mit unserem 1. geplanten Budget unsere Träume nicht zu verwirklichen sind .
Bebauungsplan/Einschränkungen
Größe des Grundstücks => ca. 450-500 m² (Steht noch nicht fest, das Grundstück bekommen wir von meinen Eltern geschenkt und sind uns noch nicht ganz einig, wie die zukünftigen Grenzen verlaufen sollen.
Hang => leichte Hanglage von West nach Ost. (ca. 1m auf die Hauslänge)
[I]Das Haus hat nahezug ideale Nord/Süd Ausrichtung. Der Eingang + Carport und Einfahrt befindet sich demnach im Norden.[/I]
- Es gibt keinen Bebauungplan
Anforderungen der Bauherren:
Stilrichtung, Dachform, Gebäudetyp => Flachdach mit Dachterrasse
Außenmaße => [I]11,80m x 7,2m mit einem Erker von 4,4m x 1,5m (keine Vorgabe von uns)
[/I]
Keller, Geschosse => Keller mit Einliegerwohnung + 2 Vollgeschosse + Dachterrasse
Anzahl der Personen, Alter => 2 Erwachsene in Hauptwohneinheit + in naher Zukunft 2 Kinder + 1 Person in Einliegerwohnung
Büro: Familiennutzung oder Homeoffice? => Meine Frau ist Lehrerin, wird also regelmäßig auch was daheim machen müssen, Ich werde zukünftig bis zu 4 Tage die Woche Homeoffice arbeiten.
offene oder geschlossene Architektur => Offener Wohn-/Koch-/Essbereich
konservativ oder moderne Bauweise => moderne Bauweise
offene Küche, Kochinsel => offen ja, aber ohne Insel (wenn möglich ohne Hängeschränke)
Anzahl Essplätze => 6-10 Personen (Tisch mit 2,4x1,0m + 8-10 Stühle)
Kamin => Unsicher (Frau ja, ich nein - Tendenz geht zu nein)
Musik/Stereowand => nein
Balkon, Dachterrasse => Dachterrasse
Garage, Carport => 2x Carport
Nutzgarten, Treibhaus => nein
Hausentwurf
Von wem stammt die Planung:
- Architekt unseres Vertrauens.
Was gefällt besonders?:
- offene Küche, Kubus auf dem Dach mit überdachter Dachterrasse, kleiner Hauswirtschaftsraum im EG für Waschmaschine und Trockner
Was gefällt nicht/Was ist noch optimierungsbedürftig?:
UG - Kelleraufteilung muss noch optimiert werden für einen Technikraum.
EG - Soll von West nach Ost komplett gespiegelt werden, außerdem haben wir Angst, dass das Wohnzimmer mit 3,5m Breite schlauchförmig wirkt. Ich will die Couch an die Nordseite stellen, den TV an die Südseite.
OG - 45° Wände beim Kinderbad
favorisierte Heiztechnik:
- Gastherme/Solar vs. Wärmepumpe (Luft/Wasser oder Erdwärme) Noch völlig unsicher, erst mal soll der Grundriss stehen, dann wird die Heizlast berechnet.
Wenn Ihr verzichten müsst, auf welche Details/Ausbauten
… könnt Ihr verzichten:
erst mal Carport und Kellerausbau, sowie Ausbau der Kinderzimmer + Kinderbad, da Kinder noch nicht vorhanden sind) Sonst hätten wir schon gern alles drinnen
… könnt Ihr nicht verzichten:
- Offener Wohnbereich im EG, Einliegerwohnung, Dachterrasse
Da sich unser Architekt nun bis Anfang Dezember in Urlaub befindet, ist bei uns nun grad bisschen Pause, die wir dafür genutzt haben, das EG zu unseren Vorstellungen umzuformen.
[I][I]
Wir überlegen nun, die Länsseite um min. 50cm (am liebsten 1,0m) zu verlängern um das Wohnzimmer von 3,5m Breite auf 4,0m/4,5m Breite zu erweitern (haben das Gebäude um 1m verlängert). [/I]
Wir haben es von West nach Ost gespiegelt, um vom Wohnzimmer eine Größere räumliche Trennung zur Einliegerwohnung zu bekommen. Außerdem haben wir eine Nische für nen Side-by-Side Kühlschrank eingeplant - die halt leider zu Kosten des eh schon kleinen Hauswirtschaftsraum´s geht.
Es tut mir leid, dass noch keine Bemaßung dabei ist, die Reiche ich baldestmöglich nach, für´s erste kann ich euch Maße nennen, wenn ihr welche Wissen wollt.
Nun zur Kostenschätzung vom Architekten:
Erschließung: 7.000€
Vermessung: 2500€
Haupthaus 285.000€
Carport 12.000€
Kontrollierte Wohnraumlüftung 10.000€ (von uns gewünscht)
Sonnenschutz 7.500€
Deckenspotleuchten 2.000€ (von uns gewünscht)
Geländeflächen 2.500€
Befestigte Flächen 20.000€
Küche 15.000€
Kamin 7.000€ (von uns ursprünglich gewünscht, nun unsicher)
Architektenleistungen ca. 29.000€[/I]
Sonderfachleute, Statik, Brandschutz, Energieeinsparverordnung ca. 11.000€
Gesamt: 410.500€
In seiner Kalkulation nimmt er für die Gebäudekosten einen Kalkulationswert von 326€/m³ inkl. Mwst. umbauten Raum an.
Die Wohnfläche liegt momentan bei ca. 156m² + ca 38m² Einliegerwohnung + 30m² NF im Keller.
Nur auf die Wohnfläche umgerechnet wäre das ein Preis von ca. 1.470€/m² Wohnfläche
Rechnet man sämtliche Kosten ein, kommt man auf 2.110€/m².
Erscheint euch das realistisch?
Was sagt ihr zu dem Entwurf? Was würdet ihr verbessern?
Ich freue mich auf eure Vorschläge!
Grüße Mathias
EG halte ich für überarbeitungswürdig ... beide Fassungen . Beachte nur mal den Weg aus der Küche auf die Terrasse .. Slalom. Wobei .. Hanglage, die Originalzeichnung zeigt die Terrasse links im Westen .. also komplett durchs Wohnzimmer zur Terrasse.
Wirklich soviel Entfernung von Sofa zu TV?
Und warum kann das WZ nicht über der Einliegerwohnung liegen? Das mit der räumlichen Trennung verstehe ich nicht.
Küche, der Side By Side Kühlschrank in der Nische braucht vermutlich links auch mehr Abstand zur Halbinsel .. die ich hier auch nicht für ideal halte. Sie wird zum Ablageplatz verkommen, da nicht sinnvoll in die Küchenarbeit eingebunden.
Einliegerwohnung .. wer soll da wohnen? Mal versuchen zu möblieren. Der Windfand dort ist eher einengend, da er noch nicht mal Platz für Garderobe bietet.
Kinderbad mit Wanne vorm Fenster. Fenster schlecht zu putzen und, wenn das Teenager werden bzw. die Kinder ins Duschalter kommen, immer in der Wanne vorm Fenster duschen?
Ob Büro im DG so sinnvoll ist? Ok, es ist ruhig, allerdings, wenn dann Kinder da sind, ist es auch ganz schön weit vom Schuß. Oder, wenn der Postbote 3x klingelt
Evtl. mal überlegen, das DG als Wohnzimmer zu gestalten, dafür dort ein wenig größer zu werden und das Büro, evtl. als 2 kleinere Büros, mit ins EG zu setzen. Dazu dann einen großzügigen Koch/Essraum.
Wirklich soviel Entfernung von Sofa zu TV?
Und warum kann das WZ nicht über der Einliegerwohnung liegen? Das mit der räumlichen Trennung verstehe ich nicht.
Küche, der Side By Side Kühlschrank in der Nische braucht vermutlich links auch mehr Abstand zur Halbinsel .. die ich hier auch nicht für ideal halte. Sie wird zum Ablageplatz verkommen, da nicht sinnvoll in die Küchenarbeit eingebunden.
Einliegerwohnung .. wer soll da wohnen? Mal versuchen zu möblieren. Der Windfand dort ist eher einengend, da er noch nicht mal Platz für Garderobe bietet.
Kinderbad mit Wanne vorm Fenster. Fenster schlecht zu putzen und, wenn das Teenager werden bzw. die Kinder ins Duschalter kommen, immer in der Wanne vorm Fenster duschen?
Ob Büro im DG so sinnvoll ist? Ok, es ist ruhig, allerdings, wenn dann Kinder da sind, ist es auch ganz schön weit vom Schuß. Oder, wenn der Postbote 3x klingelt
Evtl. mal überlegen, das DG als Wohnzimmer zu gestalten, dafür dort ein wenig größer zu werden und das Büro, evtl. als 2 kleinere Büros, mit ins EG zu setzen. Dazu dann einen großzügigen Koch/Essraum.
Mal off Topic:
Ich habe das Gefühl, dass zur Zeit vermehrt Architekten den willigen Bauherren eine Einliegerwohnung schmackhaft machen wollen, damit Kosten aufgefangen werden.
Da wird man mit dem Wusch schwanger, endlich unabhängig ein eigenes Haus zu besitzen, und dann lacht man sich Ballast mit einem Mitbewohner an. Hier kann diese Wohnung noch nicht einmal ein gebrechliches Elternteil aufnehmen. Da sollte man sich mal selbst fragen, in welchem Lebensstadium man sich eine Einraum-Wohnung unter einer 4-köpfigen Familie mieten würde. Als Party- oder Aupairraum allerdings ok.
Dann würde ich an Eurer Stelle mal die Feierabende durchspielen. Lehrerin sitzt oben und arbeitet, Mann kommt mit Weisswein hoch (Rotwein gibt über 2 Etagen Flecke), und will mit Ihr romantisch den Sonnenuntergang schauen. Frau noch nicht fertig. Er geht wieder runter, sie relaxt dann anschliessend kurz im Bad, geht runter... an Dachterrasse nicht mehr zu denken (Sonne ist auch untergegangen und Rasen muss noch gesprengt werden) Man nimmt sich vor, die DT doch nun wirklich mal öfter zu benutzen, stellt dann fest, dass viel Platz für Pflanzkübel da ist, aber da ist ja noch der Garten, der Arbeit macht ...
Wenn die Kinder da sind, ist der Rasen eh Favorit, die DT wird dann später von den Heranwachsenden zum Rauchen benutzt. ...
Ich will sagen: man stellt es sich immer so schön vor mit der DT, aber Ihr habt da noch eine viel bessere Terrasse... im EG, weil nah am Kühlschrank und dem Gartenraum, die sicherlich nicht so zugig ist wie eine Dachterrasse nun mal ist
Und ein Tipp: streicht das Wort Gast aus der Planung - ansonsten macht das Finanzamt Ärger
Ansonsten finde ich den Entwurf ganz ok.
Ich habe das Gefühl, dass zur Zeit vermehrt Architekten den willigen Bauherren eine Einliegerwohnung schmackhaft machen wollen, damit Kosten aufgefangen werden.
Da wird man mit dem Wusch schwanger, endlich unabhängig ein eigenes Haus zu besitzen, und dann lacht man sich Ballast mit einem Mitbewohner an. Hier kann diese Wohnung noch nicht einmal ein gebrechliches Elternteil aufnehmen. Da sollte man sich mal selbst fragen, in welchem Lebensstadium man sich eine Einraum-Wohnung unter einer 4-köpfigen Familie mieten würde. Als Party- oder Aupairraum allerdings ok.
Dann würde ich an Eurer Stelle mal die Feierabende durchspielen. Lehrerin sitzt oben und arbeitet, Mann kommt mit Weisswein hoch (Rotwein gibt über 2 Etagen Flecke), und will mit Ihr romantisch den Sonnenuntergang schauen. Frau noch nicht fertig. Er geht wieder runter, sie relaxt dann anschliessend kurz im Bad, geht runter... an Dachterrasse nicht mehr zu denken (Sonne ist auch untergegangen und Rasen muss noch gesprengt werden) Man nimmt sich vor, die DT doch nun wirklich mal öfter zu benutzen, stellt dann fest, dass viel Platz für Pflanzkübel da ist, aber da ist ja noch der Garten, der Arbeit macht ...
Wenn die Kinder da sind, ist der Rasen eh Favorit, die DT wird dann später von den Heranwachsenden zum Rauchen benutzt. ...
Ich will sagen: man stellt es sich immer so schön vor mit der DT, aber Ihr habt da noch eine viel bessere Terrasse... im EG, weil nah am Kühlschrank und dem Gartenraum, die sicherlich nicht so zugig ist wie eine Dachterrasse nun mal ist
Und ein Tipp: streicht das Wort Gast aus der Planung - ansonsten macht das Finanzamt Ärger
Ansonsten finde ich den Entwurf ganz ok.
Danke erst mal für eure Antworten!
- Ja, richtig. Der Weg von der Küche zur Terrasse ginge dann durch das Wohnzimmer. War bei uns auch schon ein Punkt, sind aber letztlich zu der Meinung gelangt, dass wir das als nicht schlimm empfinden.
- Entfernung Sofa zu TV ist mit 6,40m tatsächlich bisschen weit. Allerdings ermöglicht es mir dadurch auch die Umsetzung einer potenziellen Leinwand + Beamer.
- Bzgl der Räumlichen Trennung: In die Einliegerwohnung zieht eine fremde Person ein. Durch diesen Abstand hat er Ruhe vor uns und wir Ruhe vor ihm - vor allem Abends.
Die Küche vom Architekten war nur mal ein Beispiel. Schon allein wegen der Theke kommt die so nicht für uns in Frage. Im Anhang mal eine ältere Version von uns und ein 3D-Bild der aktuellen Halbinsel. Meine Frau hätte halt gern so ne Sitzbank - der Sinn und nutzen sei mal dahin gestellt
Wenn ich von der Linken Kante der Kühlschranknische 10cm Platz zu der Halbinsel lasse, sollte das doch reichen, oder?
Die Insel sollte in der Tat als Stellfläche dienen, um den eigentlichen Arbeitsbereich nicht mit den täglichen Dingen wie Kaffeemaschine, Wasserkocher, Soda-Stream voll zu stellen. Zusätzlich bietet es noch mehr Stauraum in den Unterschränken, welchen wir aufgrund der nicht vorhandenen Hochschränke eh benötigen würden.
Aber das ist wie gesagt nur ein erster Entwurf von uns. werden dazu auch Zeitnah mal nen Küchenplaner aufsuchen. Es ging uns vor allem mal darum, die Größe der zukünftigen Küche bisschen einschätzen zu können.
Die Einliegerwohnung ist tatsächlich noch stark verbesserungswürdig. Durch die eventuelle Verlängerung des Hauses lässt sich das Vorlauf auch zu ner kleinen 2-Zimmer-Wohnung machen. Aber dazu gleich mehr.
Auch im Kinderbad gleiches Spiel wie mit der Küche des Architekt: das war ein Erstbeispiel, was für uns so sicher nicht in Frage kommen wird. Badewanne kommt nur ins Elternbad, Kinderbad reicht ne Dusche, WC und 1 Waschtisch. Problem wird dann wohl nur, dass an der Stelle der Badewanne die Dusche hinkommt und somit das Fenster dort nicht möglich wird.
Dann wär das das einzige Fenster an der Nordseite, was wohl auch bisschen komisch wird...
Der Grundgedanke mit dem Büro im OG liegt an meinem Homeoffice. Bei 3-4 Tagen in der Woche ist das echt ne Menge Zeit, die ich darin verbringe und da stelle ich es mir echt toll vor, dort oben in Ruhe arbeiten zu können. Außerdem entstünde wohl ein ganz anderes Nutzungsverhalten der Dachterrasse, da man ins Büro auch locker nen kleinen Untertischkühlschrank reinbekommen dürfte und dadurch eben nicht für jedes Getränk nach unten gehen muss. Trotzdem Bleibt der Weite Weg nach oben, aber das haben nun mal alle Dachterrassen gemein.
Für uns überwiegt da halt einfach der Vorteil der Dachterrasse gegenüber des Gartens:
Völliger Sichtschutz gegenüber der Nachbarn
Tolle Aussicht über das Inntal nach Österreich
Es ist vom Architekten angedacht, den Teil links vom Treppenhaus zu überdachen und auch windgeschützt auszuführen. (Alternativ Vorlauf Büro links vom Treppenhaus, Überdachter Freisitz rechts von der Treppe)
Außerdem wollen wir uns dort oben die Möglichkeit vorhalten einen Whirlpool und evtl sogar eine kleine Gartensauna aufzustellen.
Mir ist bewusst, dass es sehr oft zu falschen Hoffnungen kommt, wenn man gleichzeitig nen Garten und ne Dachterrasse hat. Jedoch kommt es auch darauf an, was man aus der Dachterrasse macht.
Wenn das nur begehbar ist, Vorlauf noch paar Pflanzen, dann bin ich auch der Meinung, dass man nicht wirklich viel Zeit darauf verbringen wird.
Wenn ich allerdings überlege, dass ich dort oben eben mit Whirlpool, Sitzecke, Kühlschrank, Grill und Gartendusche so ziemlich alles Ermöglichen kann wie unten, dafür aber noch den Ausblick und die enorme Privatsphäre habe, welche ich im Garten eben nicht völlig sicherstellen kann, dann muss ich persönlich nicht lange überlegen.
Das wäre in der Tat eine interessante Option, die sich für mich Spannend anhört. Ginge halt dann zu Lasten des großen offenen Bereiches im EG. Mal schauen, ob ich das meiner Frau schmackhaft machen kann, danke!
Werden so bald wie möglich nachgereicht. Momentan habe ich aber keinen Scanner zur Hand.


kbt09 schrieb:
EG halte ich für überarbeitungswürdig ... beide Fassungen . Beachte nur mal den Weg aus der Küche auf die Terrasse .. Slalom. Wobei .. Hanglage, die Originalzeichnung zeigt die Terrasse links im Westen .. also komplett durchs Wohnzimmer zur Terrasse.
Wirklich soviel Entfernung von Sofa zu TV?
Und warum kann das WZ nicht über der Einliegerwohnung liegen? Das mit der räumlichen Trennung verstehe ich nicht.
- Ja, richtig. Der Weg von der Küche zur Terrasse ginge dann durch das Wohnzimmer. War bei uns auch schon ein Punkt, sind aber letztlich zu der Meinung gelangt, dass wir das als nicht schlimm empfinden.
- Entfernung Sofa zu TV ist mit 6,40m tatsächlich bisschen weit. Allerdings ermöglicht es mir dadurch auch die Umsetzung einer potenziellen Leinwand + Beamer.
- Bzgl der Räumlichen Trennung: In die Einliegerwohnung zieht eine fremde Person ein. Durch diesen Abstand hat er Ruhe vor uns und wir Ruhe vor ihm - vor allem Abends.
kbt09 schrieb:
Küche, der Side By Side Kühlschrank in der Nische braucht vermutlich links auch mehr Abstand zur Halbinsel .. die ich hier auch nicht für ideal halte. Sie wird zum Ablageplatz verkommen, da nicht sinnvoll in die Küchenarbeit eingebunden.
Die Küche vom Architekten war nur mal ein Beispiel. Schon allein wegen der Theke kommt die so nicht für uns in Frage. Im Anhang mal eine ältere Version von uns und ein 3D-Bild der aktuellen Halbinsel. Meine Frau hätte halt gern so ne Sitzbank - der Sinn und nutzen sei mal dahin gestellt
Wenn ich von der Linken Kante der Kühlschranknische 10cm Platz zu der Halbinsel lasse, sollte das doch reichen, oder?
Die Insel sollte in der Tat als Stellfläche dienen, um den eigentlichen Arbeitsbereich nicht mit den täglichen Dingen wie Kaffeemaschine, Wasserkocher, Soda-Stream voll zu stellen. Zusätzlich bietet es noch mehr Stauraum in den Unterschränken, welchen wir aufgrund der nicht vorhandenen Hochschränke eh benötigen würden.
Aber das ist wie gesagt nur ein erster Entwurf von uns. werden dazu auch Zeitnah mal nen Küchenplaner aufsuchen. Es ging uns vor allem mal darum, die Größe der zukünftigen Küche bisschen einschätzen zu können.
kbt09 schrieb:
Einliegerwohnung .. wer soll da wohnen? Mal versuchen zu möblieren. Der Windfand dort ist eher einengend, da er noch nicht mal Platz für Garderobe bietet.
Die Einliegerwohnung ist tatsächlich noch stark verbesserungswürdig. Durch die eventuelle Verlängerung des Hauses lässt sich das Vorlauf auch zu ner kleinen 2-Zimmer-Wohnung machen. Aber dazu gleich mehr.
kbt09 schrieb:
Kinderbad mit Wanne vorm Fenster. Fenster schlecht zu putzen und, wenn das Teenager werden bzw. die Kinder ins Duschalter kommen, immer in der Wanne vorm Fenster duschen?
Auch im Kinderbad gleiches Spiel wie mit der Küche des Architekt: das war ein Erstbeispiel, was für uns so sicher nicht in Frage kommen wird. Badewanne kommt nur ins Elternbad, Kinderbad reicht ne Dusche, WC und 1 Waschtisch. Problem wird dann wohl nur, dass an der Stelle der Badewanne die Dusche hinkommt und somit das Fenster dort nicht möglich wird.
Dann wär das das einzige Fenster an der Nordseite, was wohl auch bisschen komisch wird...
kbt09 schrieb:
Ob Büro im DG so sinnvoll ist? Ok, es ist ruhig, allerdings, wenn dann Kinder da sind, ist es auch ganz schön weit vom Schuß. Oder, wenn der Postbote 3x klingelt
Der Grundgedanke mit dem Büro im OG liegt an meinem Homeoffice. Bei 3-4 Tagen in der Woche ist das echt ne Menge Zeit, die ich darin verbringe und da stelle ich es mir echt toll vor, dort oben in Ruhe arbeiten zu können. Außerdem entstünde wohl ein ganz anderes Nutzungsverhalten der Dachterrasse, da man ins Büro auch locker nen kleinen Untertischkühlschrank reinbekommen dürfte und dadurch eben nicht für jedes Getränk nach unten gehen muss. Trotzdem Bleibt der Weite Weg nach oben, aber das haben nun mal alle Dachterrassen gemein.
Für uns überwiegt da halt einfach der Vorteil der Dachterrasse gegenüber des Gartens:
Völliger Sichtschutz gegenüber der Nachbarn
Tolle Aussicht über das Inntal nach Österreich
Es ist vom Architekten angedacht, den Teil links vom Treppenhaus zu überdachen und auch windgeschützt auszuführen. (Alternativ Vorlauf Büro links vom Treppenhaus, Überdachter Freisitz rechts von der Treppe)
Außerdem wollen wir uns dort oben die Möglichkeit vorhalten einen Whirlpool und evtl sogar eine kleine Gartensauna aufzustellen.
Mir ist bewusst, dass es sehr oft zu falschen Hoffnungen kommt, wenn man gleichzeitig nen Garten und ne Dachterrasse hat. Jedoch kommt es auch darauf an, was man aus der Dachterrasse macht.
Wenn das nur begehbar ist, Vorlauf noch paar Pflanzen, dann bin ich auch der Meinung, dass man nicht wirklich viel Zeit darauf verbringen wird.
Wenn ich allerdings überlege, dass ich dort oben eben mit Whirlpool, Sitzecke, Kühlschrank, Grill und Gartendusche so ziemlich alles Ermöglichen kann wie unten, dafür aber noch den Ausblick und die enorme Privatsphäre habe, welche ich im Garten eben nicht völlig sicherstellen kann, dann muss ich persönlich nicht lange überlegen.
kbt09 schrieb:
Evtl. mal überlegen, das DG als Wohnzimmer zu gestalten, dafür dort ein wenig größer zu werden und das Büro, evtl. als 2 kleinere Büros, mit ins EG zu setzen. Dazu dann einen großzügigen Koch/Essraum.
Das wäre in der Tat eine interessante Option, die sich für mich Spannend anhört. Ginge halt dann zu Lasten des großen offenen Bereiches im EG. Mal schauen, ob ich das meiner Frau schmackhaft machen kann, danke!
BeHaElJa schrieb:
Wirklich gefallen will es mir nicht - das geht besser (besonders wenn individuell von einem Architekten für euch geplant)
Kannst du uns ein paar Maße spendieren?
Werden so bald wie möglich nachgereicht. Momentan habe ich aber keinen Scanner zur Hand.
ypg schrieb:
Mal off Topic:
Ich habe das Gefühl, dass zur Zeit vermehrt Architekten den willigen Bauherren eine Einliegerwohnung schmackhaft machen wollen, damit Kosten aufgefangen werden.
Da wird man mit dem Wusch schwanger, endlich unabhängig ein eigenes Haus zu besitzen, und dann lacht man sich Ballast mit einem Mitbewohner an. Hier kann diese Wohnung noch nicht einmal ein gebrechliches Elternteil aufnehmen. Da sollte man sich mal selbst fragen, in welchem Lebensstadium man sich eine Einraum-Wohnung unter einer 4-köpfigen Familie mieten würde. Als Party- oder Aupairraum allerdings ok.Das mit der Einliegerwohnung stammt nicht von unserem Architekten sondern von uns. Das Bauvorhaben entsteht in sehr zentraler Lage in Passau - Fußläufig 5-10 Minuten zur Uni (Studenten), ins Klinikum (Jungärzte) und zu mehreren Schulen (Referendare).
Meine Eltern vermieten nebenan seit 25 Jahren 4 kleinere Apartments mit 20-30m² und diese standen in der Zeit lediglich ca. 3-4 Monate leer.
Mit hochwertigem Standard, eigenem Gartenanteil und in dieser Lage sind nach Recherchen locker 10€ Kaltmiete pro m² drinnen.
Wenn es dann noch möglich ist, dass wir den KFW 55 Standard erreichen wären somit ab nächstes Jahr wahrscheinlich allein für die Einliegerwohnung 100.000€ KFW-Kredit möglich.
Dem nicht genug, durch die Tilgungsfreie Zeit des KFW-Kredits könnten wir auch noch ein Privatdarlehen über 50.000€ in den ersten 5-7 Jahren tilgen, welches wir Zinslos erhalten könnten.
Was ich sagen will:
Auf 20 Jahre gesehen bringt mir die Wohnung wohl Mieteinnahmen von ca. 80.000€, dazu noch die Zinserleichterung von 2. KfW und Privatdarlehen.
Dagegen stehen die Mehrkosten für die Erstellung der Einliegerwohnung, aber nach ersten Kalkulationen brauch ich da nicht lange überlegen, ob das in unserem Gebiet finanziell sinnvoll ist oder nicht.
Bleibt das Argument, dass man nen Fremden zu sich ins Haus holt. Das ist richtig.
Ist das allerdings klug durchdacht, bekommen wir von dem Mieter wohl nicht viel mie und er auch nicht von uns. Muss halt jeder für sich selbst abwägen, ob einem die finanziellen Vorteile wichtiger Sind, als das Freistehende Haus für sich allein.
ypg schrieb:
Dann würde ich an Eurer Stelle mal die Feierabende durchspielen. Lehrerin sitzt oben und arbeitet, Mann kommt mit Weisswein hoch (Rotwein gibt über 2 Etagen Flecke), und will mit Ihr romantisch den Sonnenuntergang schauen. Frau noch nicht fertig. Er geht wieder runter, sie relaxt dann anschliessend kurz im Bad, geht runter... an Dachterrasse nicht mehr zu denken (Sonne ist auch untergegangen und Rasen muss noch gesprengt werden) Man nimmt sich vor, die DT doch nun wirklich mal öfter zu benutzen, stellt dann fest, dass viel Platz für Pflanzkübel da ist, aber da ist ja noch der Garten, der Arbeit macht ...
Wenn die Kinder da sind, ist der Rasen eh Favorit, die DT wird dann später von den Heranwachsenden zum Rauchen benutzt. ...
Ich will sagen: man stellt es sich immer so schön vor mit der DT, aber Ihr habt da noch eine viel bessere Terrasse... im EG, weil nah am Kühlschrank und dem Gartenraum, die sicherlich nicht so zugig ist wie eine Dachterrasse nun mal ist Siehe oben, es kommt immer darauf an, was man aus der DT macht. Aber ich bin da ganz bei dir, dass es in Zeiten von Kleinkindern durchaus dazu führen kann, dass die DT vernachlässigt wird. Allerdings gibt es auch noch ein Leben nach Kleinkindern
Meine Frau ist da auch eher skeptisch, was sich allerdings mittlerweile gelegt hat, nachdem ich ihr die Möglichkeiten aufgezeigt hab.
Da ich die DT aber auf jeden Fall will, kommen wir da wohl nicht drum rum, dass auszuprobieren in dem Glauben, dass wir zu den wenigen gehören, die sowas dann auch wirklich nutzen, nicht böse gemeint.
ypg schrieb:
Und ein Tipp: streicht das Wort Gast aus der Planung - ansonsten macht das Finanzamt Ärger
Ansonsten finde ich den Entwurf ganz ok.Das auf alle Fälle, aber der Termin mit dem Steuerberater (auch wegen der Einliegerwohnung und Zinnskosten derer) steht erst noch an. Danke!
Ich will mich jetzt auf keinen Fall resistent zeigen, hoffe, das kommt auch nicht so rüber. ops:
Was denkt ihr bzgl der Kostenschätzung des Architekten, kommt das so hin?
Danke! Grüße
Ähnliche Themen