
kbt09
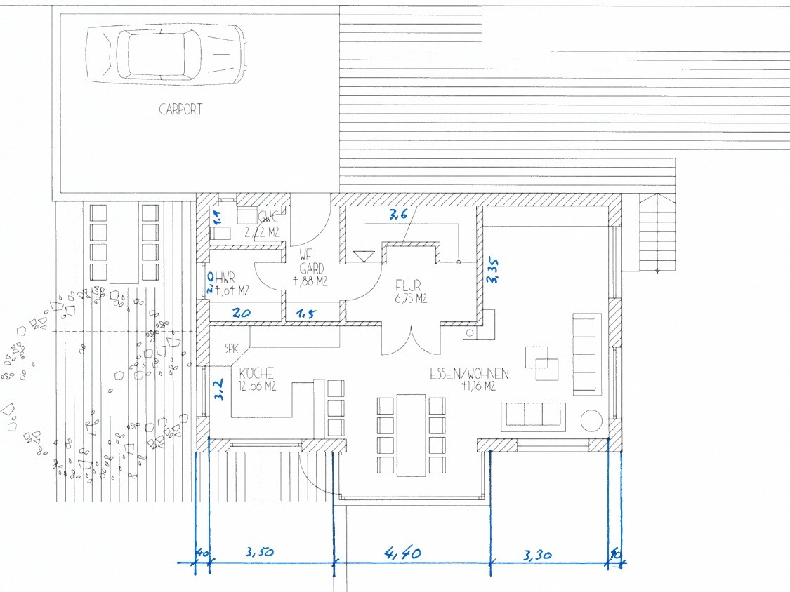
Die Küche halte ich für mehr als unpraktisch. Die Sitzbank bietet ja nun gar keine Kommunikation mit den Arbeitenden in der Küche.
Und 10 cm neben einem Side By Side Kühlschrank reichen in aller Regel nicht. Sieh dir mal von ein paar Side By Side Kühlschrank die Zeichnungen an. Meist braucht man so ca. 30 cm um die Türen soweit zu öffnen, dass man die Schubladen entnehmen kann.
Sobald man Kinder hat, ist der ewige Weg Garten / Küche (schnell was trinken usw.) immer durchs Wohnzimmer nicht so dolle. Auch Grillabende mit Freunden sind mit der Küche neben der Terrasse ein schönes Vergnügen.
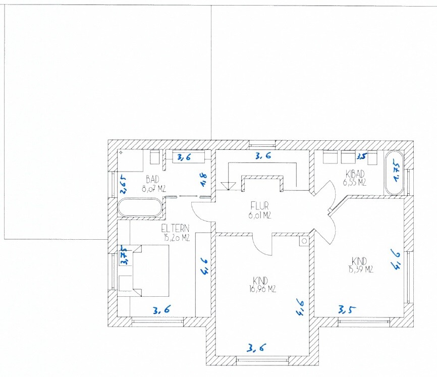
Und das mit der "Störung" durch Einliegerwohnung im Wohnbereich verstehe ich nicht. Wenn das ordentlich gebaut ist, sollte man da nichts mitbekommen, wenn die Einliegerwohnung unter dem Wohnzimmer liegt.
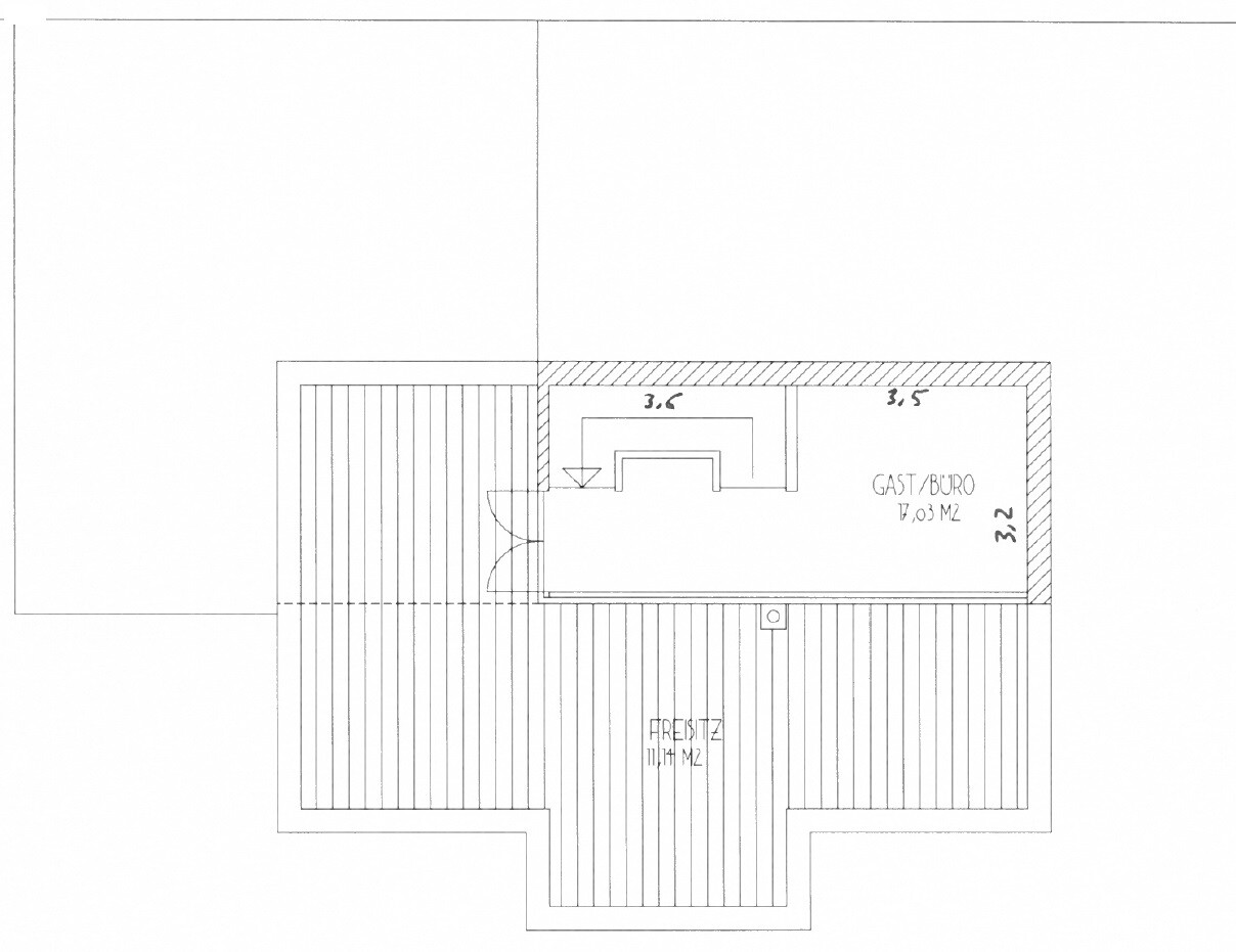
Gerade bei deiner geplanten Dachterrassennutzung wäre eigentlich ein eher privater Raum im DG besser. Whirlpool muss ordentlich geplant werden (Gewicht), Wasserablauf usw.
Und 10 cm neben einem Side By Side Kühlschrank reichen in aller Regel nicht. Sieh dir mal von ein paar Side By Side Kühlschrank die Zeichnungen an. Meist braucht man so ca. 30 cm um die Türen soweit zu öffnen, dass man die Schubladen entnehmen kann.
Sobald man Kinder hat, ist der ewige Weg Garten / Küche (schnell was trinken usw.) immer durchs Wohnzimmer nicht so dolle. Auch Grillabende mit Freunden sind mit der Küche neben der Terrasse ein schönes Vergnügen.
Und das mit der "Störung" durch Einliegerwohnung im Wohnbereich verstehe ich nicht. Wenn das ordentlich gebaut ist, sollte man da nichts mitbekommen, wenn die Einliegerwohnung unter dem Wohnzimmer liegt.
Gerade bei deiner geplanten Dachterrassennutzung wäre eigentlich ein eher privater Raum im DG besser. Whirlpool muss ordentlich geplant werden (Gewicht), Wasserablauf usw.