Haus mit Dachterrasse in Passau

4,10 Stern(e) 13 Votes
Zuletzt aktualisiert 21.11.2025
Sie befinden sich auf der Seite 5 der Diskussion zum Thema: Haus mit Dachterrasse in Passau
>> Zum 1. Beitrag <<

M

matte

Da ich nicht alle Anhänge an einen Post packen konnte, hier noch die Ansichten, Lageplan und 3D-Bilder.
 

Anhänge

M

matte

Keiner eine Meinung/Vorschlag?

Hab mal die die Pläne als Bilder angehängt. Ist wohl einfacher, als jede PDF runter zu laden.


Grundriss eines Hauses mit Küche/Essen, Eingang, WC, Abstellraum und Treppe.

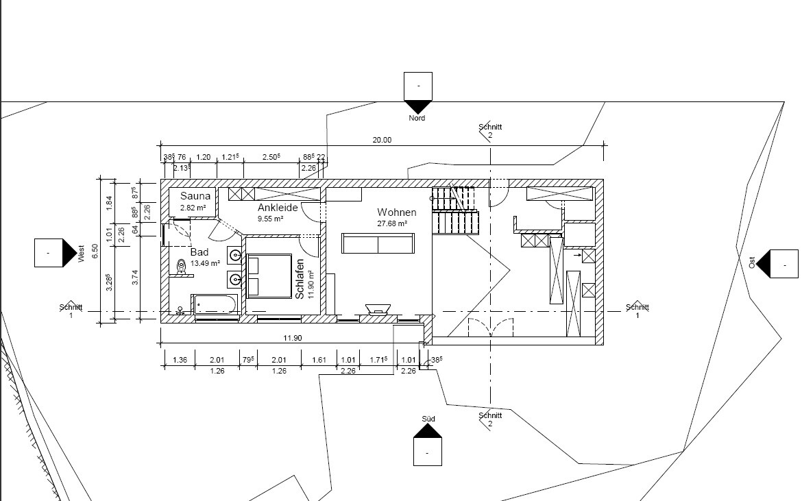
Grundriss eines Hauses mit Wohnen, Schlafen, Bad, Ankleide und Sauna; Nord/Süd/Ost/West.

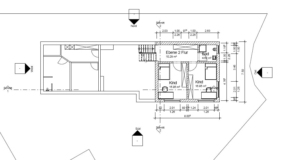
Grundriss eines Obergeschosses mit Flur, Bad und zwei Kinderzimmer.

Grundriss eines Gebäudes mit Technik, Lager, Gast/Büro und Ebene 3 Flur.

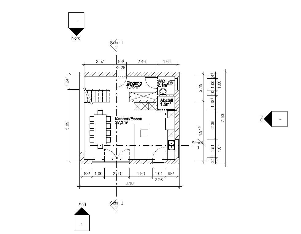
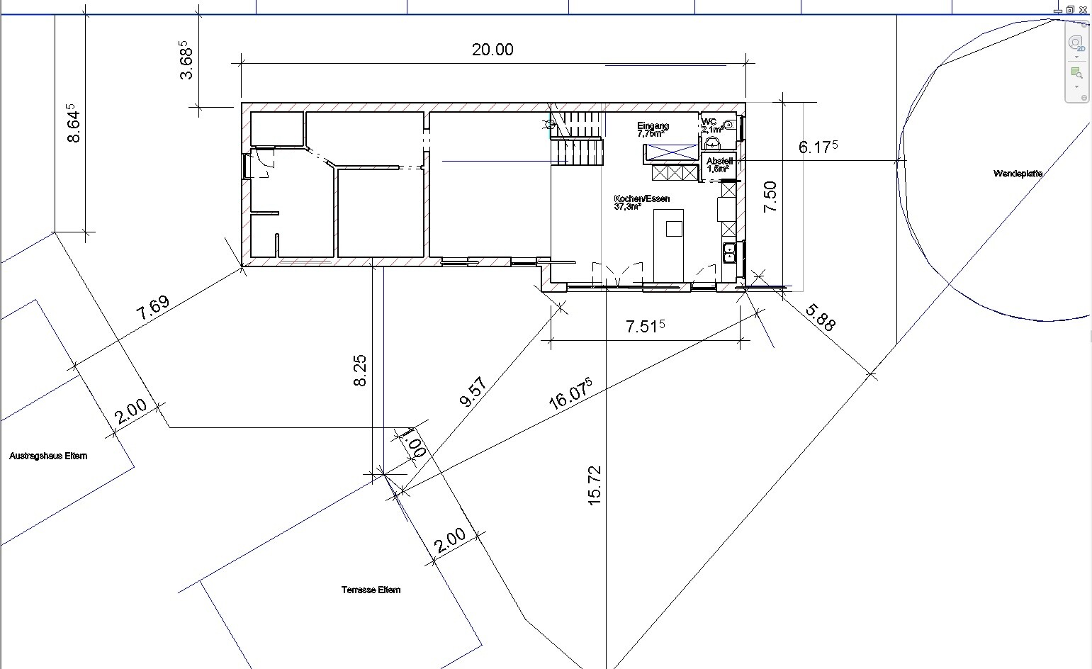
Grundriss eines Hauses mit Kochen/Essen, Eingangsbereich und Maßangaben.

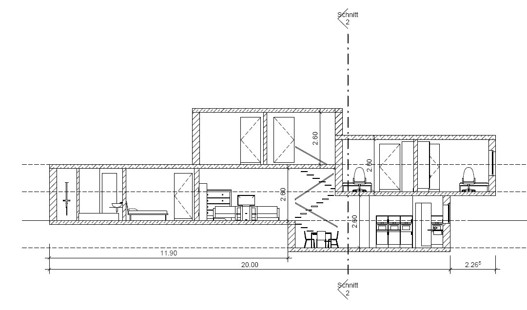
Architektonischer Längsschnitt eines Hauses: Schlafzimmer, Küche, Treppe und Bäder.

Moderne weiße Mehrvolumen-Villa mit flachen Dächern, großen Fenstern, auf grünem Gelände

Architektenzeichnung eines zweigeschossigen Hauses mit Fenstern und Schnittlinien

Moderne Architekturzeichnung eines Wohnhaus-Ensembles auf abschüssigem Gelände mit Fenstern und Türen.

Technische Zeichnung: Rechteckiges Haus auf unebenem Boden, vertikale Schnittebene durch Gebäude.
 
L

Legurit

Sieht teurer und kompliziert aus. Soll es Holzrahmenbau werden?
Mag Splitlevel gern - ist es bei euch denn sinnvoll?
Gefühlt ist es viel Verkehrsfläche und es wirkt unruhig. Von der Aufteilung find ich es nicht schlecht - wobei die Kinder halt durch alle Räume turnen müssen. Ankleide würde ich ein Oberlicht spendieren - sonst hat das so Höhlenflair.
 
M

matte

Holzrahmenbau? Der Architekt meinte, dass sich das von den Kosten nicht so groß unterscheidet von einem konventionellem Bau. Auch wenn ich im Internet oft das Gegenteil gelesen habe, glaube ich ihm dass. Denn er hat schon öfter solche Häuser gebaut und kam da mit den kalkulierten Kosten immer hin.

Da ja das Gelände auf die Hauslänge einen Höhenunterschied von ca. 1,5-2m hat, bietet es sich sehr an.

Was meinst du mit viel Verkehrsfläche und unruhig?
Das mit den Kindern ist uns auch schon aufgefallen, aber die Pille müssten und würden wir wohl schlucken.

Klasse Idee mit dem Oberlicht. Das war mir ein großer Dorn im Auge, dass dort kein Tageslicht rein kommt. Danke!
 
M

matte

Nach fast genau 3 Monaten melde ich mich hier mal zurück mit Neuigkeiten.
Vorab, Es hat sich eine Menge getan, weshalb ich mich entschuldigen möchte, schon im frühesten Stadium unserer Planung Pläne eingestellt zu haben, welche dann immer wieder komplett verworfen wurden

Nun hatten wir aber Anfang der Woche einen Termin bei unserem Architekten und seit dem arbeitet er an den Plänen für die Bauantragstellung.
Da ich die Pläne noch nicht habe, aber frühzeitig Änderungen veranlassen können möchte, stelle ich nun meine Pläne ein. Dies entspricht auch dem Stand, welcher dann beantragt wird.
Also verzeiht mir bitte die nicht so korrekte Darstellung und Bemaßung.

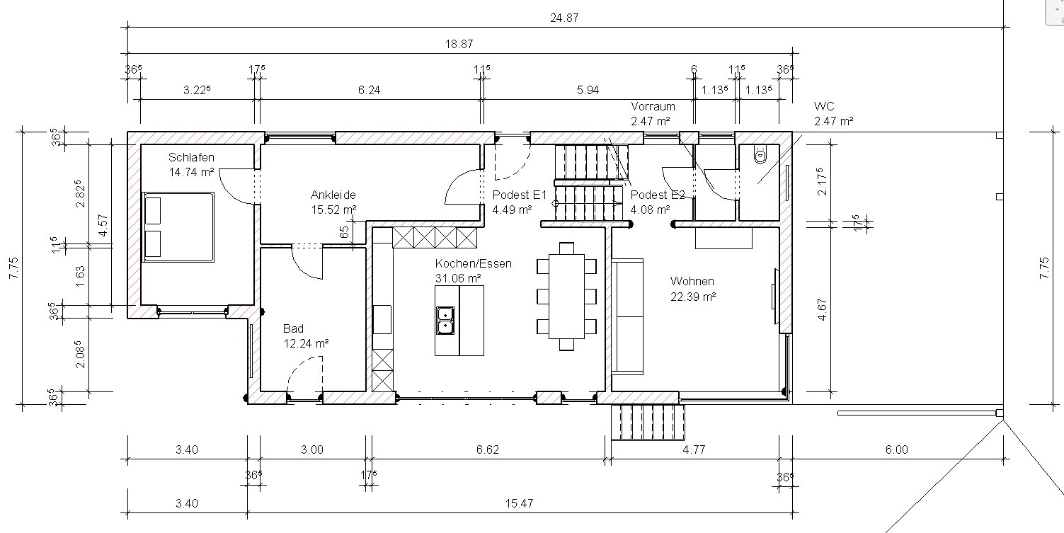
Es wird bei uns nun ein Split-Level Haus, welches wir auch von unten betreten, auch wenn wir das ursprünglich nicht wollten.
Eine andere Zugangsmöglichkeit ist mit dem Ausgang zur Nordterrasse zwar möglich, aber um den Vorteil auch wirklich nutzen zu können, müsste man nördlich des Hauses eine Art Rampe bauen, um auch mit dem Auto hoch fahren zu können. Das führt zu enormen Kosten und außerdem hätten wir dann eine Einfahrt mit 15% Gefälle, welche wir jedes mal rückwärts runter oder hoch fahren müssten.
So müssen wir zwar alle Einkäufe eine halbe Ebene hoch tragen, allerdings können wir das im Trockenen machen. Noch dazu müssen wir bei jetziger Planung keinen einzigen Meter Schnee schaufeln, da wir so kein Stück Gehweg hätten.

Als Terrasse ist eine große im Süden und eine kleinere im Norden für den Hochsommer geplant.
Beide sind in unmittelbarer Nähe zur Küche.
Für die Dachterrasse haben wir nun eine Art Vorraum, in dem wir im Winter die Gartenmöbel und Pflanzen lagern können und nicht alles in den Keller runter schleppen müssen (Der Raum wird Vorlauf iwann dann mal einer Sauna zum Opfer fallen)
Außerdem sollte dort Platz für eine kleine Küchenzeile mit Kühlschrank sein, so sollte die Dachterrasse auch besser ins tägliche Leben eingebunden werden.

Die Kinderzimmer hätten wir uns gern ein bisschen größer gewünscht, allerdings ist das Aufgrund der Gebäudegeometrie nur mit Überhängen möglich.
Wir sind da noch am überlegen, ob es Vorlauf sinnvoll wäre, die Südwand der Kinderzimmer ein kleines Stück nach Süden zu verlegen, damit die Zimmer ein bisschen größer werden.
Es entstünde dann zwar ein Überhang, allerdings würde der auch im EG seinen Zweck als Sonnenschutz im Sommer + Teilweiser Überdachung der Südterrasse erfüllen.
Das müssen wir noch abklären, momentan sieht es allerdings nicht danach aus.

Das Gäste-WC im EG wollten wir unbedingt mit 2 Türen vom Wohnraum abgegrenzt haben, um eine Geräusch/Geruchs-Schleuse zu haben.
Lösungsvorschlag vom Architekten wäre hier die Wand vom Podest zum Vorraum als Glaswand auszuführen.
Alternative wäre hier noch, den Vorraum und das WC als einen Raum zusammen zu fassen, allerdings hätten wir dann wieder nur eine Türe zwischen Klo und Wohnraum

Kochen/Essen und Wohnen sind miteinander über eine Art Galerie verbunden, welche durch eine Glasbrüstung auch offen gehalten wird.

Die Badmöblierung haben wir noch nicht festgesetzt, kommt erst noch.

Was fällt euch sonst noch auf? Ich hab mir die letzten 3 Monate wirklich den Kopf zerbrochen, allerdings sieht man irgendwann den Wald vor lauter Bäumen nicht mehr

Über Rückmeldungen wäre ich daher sehr dankbar!

Grüße!

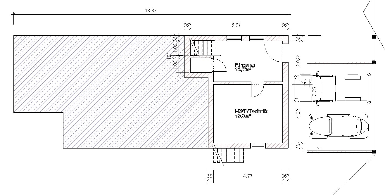
Grundriss eines Hauses mit Eingang, HWR/Technik, Treppe und Garage mit zwei Autos


Grundriss eines Hauses mit Schlafen, Ankleide, Bad, Kochen/Essen, Wohnen, WC und Treppe.


Grundriss eines Hauses mit Gast/Büro, Bad, zwei Kinderräumen und Dachterrasse.


Moderne zweistöckige Hausansicht auf Hang mit großen Fenstern, Treppen und Bäumen.


Moderne Villa auf Hang mit Garage links und vielen Fenstern.


Schnitt durch ein mehrstöckiges Haus: Treppen, Wohn- und Schlafräume, Garage mit Auto


Moderne weiße Villa mit Flachdächern, Terrasse, Carport und Garten.


Moderne weiße Villa mit großen Fensterfronten, Garten und Baum links.
 
andimann

andimann

Moin, da hat sich ja was getan. Der Haustyp muss euch gefallen, meins wäre es nicht, aber es ist ja für euch, nicht für mich!

Was mir beim ersten Blick auffällt.

Tür in den HWTR nach rechts oder links schieben. Dann kannst du da gescheit einen Garderobenschrank stellen, derzeit nicht.
Wo willst du in der Ankleide Schränke stellen? Da ist alle nur Türen und Nischen von weniger als 60 cm. Das ist keine Ankleide, sondern ein reines Durchgangszimmer!
Die Tür ins Elternbad ist anscheinend nur 78 cm breit?!
Die doppelte Tür/Wand vor dem WC ist echt übertrieben. Es gibt ordentlich dicke Türen, da hört man nichts mehr. Oder esst ihr nur Bohnen?

Wie soll das Elternbad aussehen? von der Größe her schreit das nach der klassischen T-Lösung, aber dafür passt die Position von Tür und Fenster nicht.

Viele Grüße,

Andreas
 
Zuletzt aktualisiert 21.11.2025
Im Forum Dach gibt es 805 Themen mit insgesamt 6705 Beiträgen


Ähnliche Themen zu Haus mit Dachterrasse in Passau
Nr.ErgebnisBeiträge
1Kostenplanung Einfamilienhaus inkl. Grundstück, Nebenkosten, Architekten - Seite 332
2Pfiffige Schlafzimmer Idee mit Ankleide gesucht - Seite 219
3Erstkontakt und Vorstellung unserer Pläne 10
4Vorschläge vom Architekten enttäuschend - Wie weiter? - Seite 232
5HOAI oder warum Architekten kein Interesse haben..... - Seite 438
63D Hausmodell vom Architekten von Allkauf Haus 20
7Kosten für Teilaufstockung und Flachdach mit Dachterrasse Erfahrungen? - Seite 217
8Ungefähre Kosten für Gebäudeplanung durch einen Architekten 15
9Planung durch GU oder freien Architekten? 22
103. Grundriss-Entwurf Neubau Einfamilienhaus 220qm 2 Vollgeschosse Dachterrasse - Seite 561
11Grundriss Einfamilienhaus Hanggrundstück mit Terrasse / Dachterrasse 18
12Planung Dachterrasse - Welche Kosten entstehen? 17
13 Küchenplanung mit tiefen Fenster - Seite 643
14Türen: lichte Höhe 13
15Fenster / Türen / Garderobe 13
16Kontrollierte-Wohnraumlüftung: Luftspalt unter den Türen erforderlich? 27
17Das leidige Thema viel benutzter Türen bei Küchenschränken 16
18Ikea BRUSALI - Türen re und li passen nicht - Zapfen zu kurz? 10
19Ikea Pax Auli/Färvirk Türen - Schubladen stoßen vor Schiebetür 14
20Ikea Faktum Dämpfung für Türen verfügbar? - Seite 212

Oben