Grundrissplanung Einfamilienhaus an Südhanglage

4,10 Stern(e) 8 Votes
Zuletzt aktualisiert 03.01.2026
Sie befinden sich auf der Seite 12 der Diskussion zum Thema: Grundrissplanung Einfamilienhaus an Südhanglage
>> Zum 1. Beitrag <<

face26

face26

@freakbetty herzlich willkommen im Forum

Jetzt schüttelst Dich mal und dann fängst noch mal von vorne an.

Da war nichts unverschämt und nichts persönlich. Dass man mal stichelt und auch mal direkter und etwas markiger eine Antwort bekommt, damit muss man schon rechnen in einem Internetforum.
Leider fehlt der Ton und daher darf man nicht jede Aussage gleich auf die Goldwaage legen, erst recht nicht, wenn anstatt des Tons sogar noch ein Augenzwinkern dazu gesetzt wird.
Wenn so ne dünne Haut hast wirst nicht weit hier kommen.

Also noch mal von vorne und nicht gleich einschnappen dann merkst, dass die meisten es nicht böse meinen und im Gegenteil eher helfen wollen...sogar die Dickhäuter hier!
 
G

Guido1980

Habe heute neue Grundrissentwürfe bekommen … was haltet ihr davon?

Die Anordnung der Türen ist noch nicht finalisiert bzw. teilweise auch falsch oder gar nicht dargestellt … es geht erst mal primär um die Raumaufteilung.

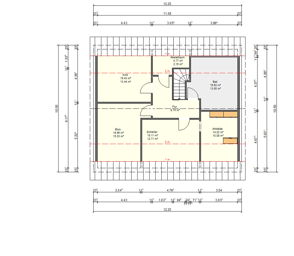
Grundriss eines Dachgeschosses mit Flur, Schlafen, Kind, Büro, Ankleide, Bad und Abstellraum.


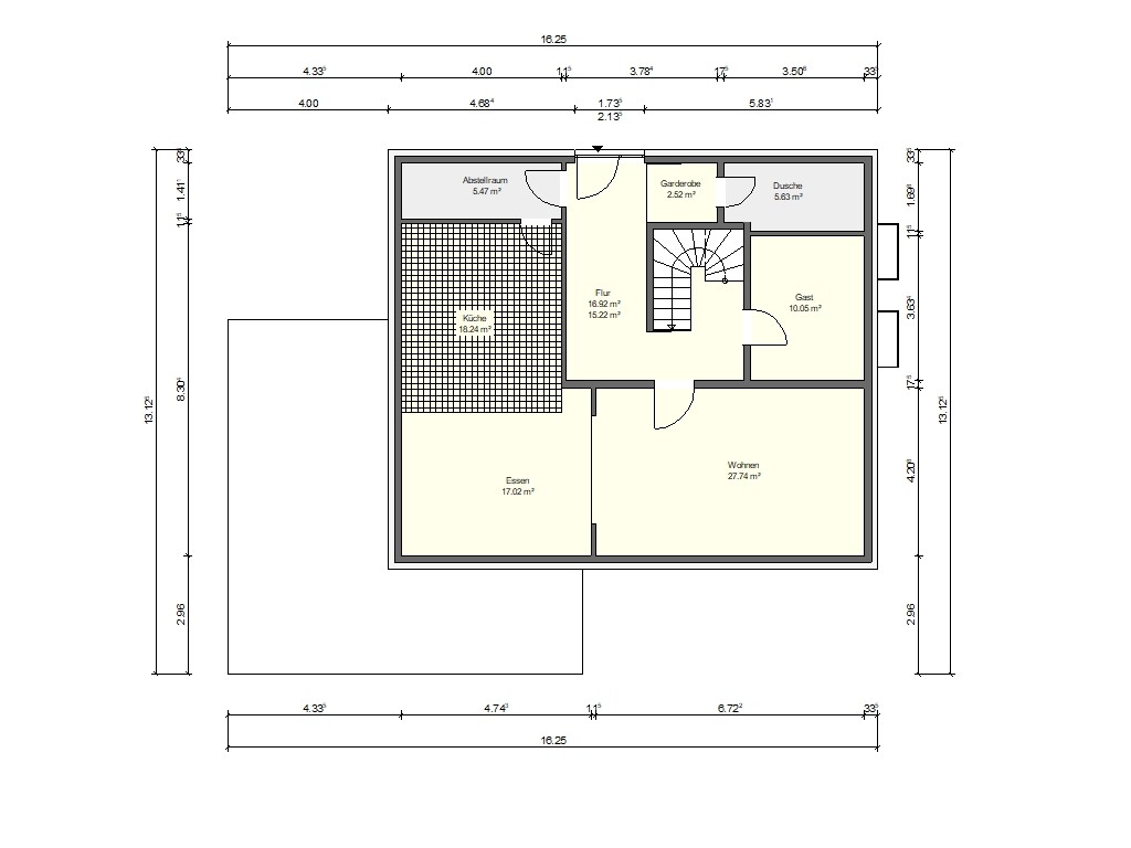
Grundriss: Flur, Küche, Essen, Wohnen, Abstellraum, Garderobe, Dusche, Gästezimmer und Treppe.


Grundriss Kellergeschoss mit Flur, Fitnessbereich, Dusche und Heizraum


Schnitt durch ein mehrstöckiges Gebäude mit Treppenhaus, Keller und Erdreich.


Schnitt durch ein zweigeschossiges Haus mit Satteldach, Keller und Erdreich
 
kaho674

kaho674

Ich find's zumindest etwas besser, als den ersten Versuch, da man wenigstens ans Bett treten kann. Die Ankleide ist aber schon irgendwie [freundlich ausgedrückt] "komisch". Schrank mitten im Raum - echt? Und das Abstelldingens ist ein Raum fast komplett unter der 2m Linie. Hmm. Ich hoffe, Ihr könnt Euch das ein bisschen vorstellen und seid später nicht enttäuscht.

Garderobe ist zu klein. Speisekammer zu schmal.

Alle anderen Kritikpunkte haben sich nicht verändert (Lage der Räume + Garage). Also geh ich mal davon aus, dass Ihr es so haben wollt.

In der Küche fehlt ne Tür, aber die wurde vermutlich nur vergessen. Die Dusche im Keller muss man auch durch den Abfluss erreichen.

Wieso jetzt doch keine Gauben oder Giebel? Zu teuer? Ich fand die bei dem Bebauungsplan echt sinnvoll.
 
Y

ypg

Wo ist denn da eine Verbesserung? Das Kind zieht in 4 Jahren aus, und dann hat man oben ein Schlafzimmer als Durchgangsraum, nur mit Dachflächenfenstern, wo das Bett noch nicht mal an der Wand stehen kann und der Abstellraum kaum begehbar ist. Logisch wäre hier eher, Schlafzimmer und Ankleide zu tauschen, damit das Schlafzimmer zumindest ein vernünftiges Fenster in vernünftiger Ost-Lage bekommt.
Komische Versatze/Versätze in den Räumen... Bad, Büro... das kann man doch eigentlich mit Gewinn gerade ziehen. Wie kann ein Architekt so etwas leisten?
Was mag das wohl in der Küche angedeutet mit den Fliesen bedeuten?
Gast geht um die Treppe herum, um zur Toi zu kommen (wohlgemerkt waren es 10 x Besuche im Jahr), die Garderobe wurde nur so genannt, kann aber nur ein paar Haken oder Schuhkippen beherbergen, die Küche hat keinen Zugang... Küche, Ess und Wohnen hat ü60qm, durchschnittlich 20qm mehr als ein Haus in Standardgröße, aber ich sehe keinen Gewinn. Sogar das Gästezimmer ist mit 10qm nicht gerade räumlich...
Keller hat einen fast unbedeutenden Fluranhängsel, da würde man doch normal einkürzen und den Heizraum von dem Keller aus begehen?
Und war jetzt mit dem Fitnessraum auch ne Sauna? Dann muss man als Fitnesssaunagänger durch den sandigen Hausflur, wo man tagtäglich das Auto reinfährt und von unten nach oben geht mit Straßenschuhen, um im Wellnessfieber die Toilette oder Dusche zu benutzen.
Ich sehe da den ersten Grundriss, nur etwas verändert.
Für mich alles irgendwie im Ansatz nicht logisch durchdacht.
Und die Durchführung: viele Kanten, wo keine sein müssen.

P.s. Ich habe jetzt nicht mehr alles durchgelesen... nach einem Monat hat man nicht mehr im Kopf, ob es ein richtiger Architekt ist oder warum die Anfahrt von anderer Seite als der Eingang ausgeführt wird...
Wie kann es sein, dass ein Planer nicht gleich die Fenster und die Türen sinnvoll setzt?
 
Zuletzt bearbeitet:
kbt09

kbt09

Und die Treppe ins OG mit dem Überbau durchs Bad funktioniert meiner Meinung nach gar nicht und das zeigt der Schnitt - oranger Bereich:

Querschnitt eines mehrstöckigen Gebäudes mit Treppenhaus; orange Tür im Mittelbereich.
 
Zuletzt aktualisiert 03.01.2026
Im Forum Grundrissplanung / Grundstücksplanung gibt es 2563 Themen mit insgesamt 88708 Beiträgen


Ähnliche Themen zu Grundrissplanung Einfamilienhaus an Südhanglage
Nr.ErgebnisBeiträge
1Fenster / Türen / Garderobe 13
2Hausplan von Architekt 2 Geschosse mit Keller 18
3Grundrissplanung Keller, EG + DG 12
4Einfamilienhaus ohne Keller - Diskussion Grundriss 19
5Grundriss Neubau Einfamilienhaus: Fenster/Türen/Innenwände Größe/Anordnung ok? - Seite 220
6Grundrissplanung: Badezimmer Dusche 47
7Kalkulation Einfamilienhaus mit 175m² Wohnfläche, Keller und Doppelgarage - Seite 1379
8Grundriss Einfamilienhaus ohne Keller/Schlafzimmer und Bad im EG - Seite 427
9Grundrissoptimierung Einfamilienhaus in Hanglage Eingeschossig + Keller - Seite 232
10Grundriss, Hausanordnung EFW 150m2, Keller + Einliegerwohnung - Feedback erwünscht 67
11Einfamilienhaus mit Keller und Doppelgarage 9,2x11m Grundriss-Plan optimieren 20
12Ideen zu Entwurf für Einfamilienhaus mit Keller - Seite 647
13Findet ihr den Grundriss unserer Stadtvilla so Ok? 46
14Pfiffige Schlafzimmer Idee mit Ankleide gesucht 19
15Fenster Brüstungshöhe 130 im Schlafzimmer / Arbeitszimmer? - Seite 1593
16Idee Schlafzimmer - Bett / Schrank Anordnung 32
17Dusche direkt am Fenster - kompatibel oder inkompatibel? - Seite 422
18Grundriss 180qm plus Keller - 12,40mx9,04m 21
19Jetzt der finale Grundriss - 189qm ohne Keller; Stadtvilla - Seite 424
20Planung Einfamilienhaus 195m² mit Keller und Satteldach in NRW 13

Oben