G
Guido198004.03.19 20:17Bebauungsplan/Einschränkungen
Größe des Grundstücks 639 m2 Es handelt sich um Grundstück Nr. 1 des Exposés
Hang ja Südhang
Grundflächenzahl 0,4 (50 % Überschreitung ist ausgeschlossen) => bei dieser Planung 0,3873
Geschossflächenzahl 0,5 => bei dieser Planung 0,376 (hier sind aber ggf. noch "Aufenthaltsräume" für den Keller zu berücksichtigen, falls das Bauamt das so einschätzt)
Baufenster, Baulinie und -grenze es gibt eine Baugrenze mit folgenden Grenzabständen: Nord 3 m, Ost 3 m, Süd 5 m und West 8 m
Randbebauung mit Nebenanlagen zulässig, Max. 15 m insgesamt bzw. Max. 9 m auf einer Grenze
Anzahl Stellplatz Doppelgarage + evtl. 1 Carport mit einem Stellplatz an der Nordseite
Geschossigkeit 1,5 Geschosse und ein Kellergeschoss
Dachform Satteldach 28° - 35°
Stilrichtung modern
Ausrichtung Richtung Süden, das heißt First West-Ost quer zum Hang bzw. mit Dachflächen Richtung Nord und Süd
Maximale Höhen/Begrenzungen Traufe maximal 3,50 m ab Oberkante Fertigfußboden EG, maximale Firsthöhe 8,50 m ab Oberkante Fertigfußboden EG
weitere Vorgaben
Anforderungen der Bauherren
Stilrichtung, Dachform, Gebäudetyp modern weiß verputzt mit Satteldach mit maximaler Neigung und dunklen Dachziegeln
Keller, Geschosse Keller mit Fitness/Wellness-Raum
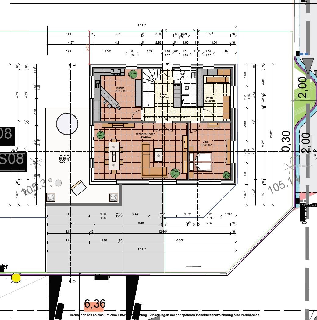
Erdgeschoss Wohn- und Essbereich + Gästezimmer, Obergeschoss Schlaf- Ankleidezimmer, Büro, Kinderzimmer, Bad
Anzahl der Personen, Alter drei Personen, 2 x 38 1 x 16 Jahre alt
Raumbedarf im EG, OG Grundrisse liegen bei, Wohnfläche ca. 170 m2 + 75 m2 Kellergeschoss
Büro: Familiennutzung oder Homeoffice? Homeoffice
Schlafgäste pro Jahr 10
offene oder geschlossene Architektur offen
konservativ oder moderne Bauweise modern
offene Küche, offen gerne mit Kochinsel
Anzahl Essplätze min. 6
Kamin ja im Wohnzimmer und ggf.. im Fitness- / Wellnessraum
Musik/Stereowand ja
Balkon, Dachterrasse ja, Balkon im OG Richtung Westen, Terrasse auf Doppelgarage in Süd-/West Ausrichtung
Garage, Carport ja Doppelgarage mit Zufahrt von Süden an das KG anbindend und aufgesetzter Terrasse in Süd-Westausrichtung
Nutzgarten, Treibhaus nein, evtl. kleiner Gemüsegarten
weitere Wünsche/Besonderheiten/Tagesablauf, gern auch Begründungen, warum dieses oder das nicht sein soll gerne eine kleine Gartenhütte, evtl. ein fest eingebauter Gartenpool, Gartenteich, Fitnessraum evtl. mit Sauna und Whirlpool
Hausentwurf
Von wem stammt die Planung: mir selbst
-Planer freier Architekt
-Architekt erster Termin beim Architekten hat stattgefunden, Konzept liegt vor (siehe Bilder)
-Do-it-Yourself nein, Vergabe schlüsselfertig, evtl. einzelne Gewerke fremdvergeben bzw. Eigenleistung oder Gewerke einzeln vergeben
Was gefällt besonders? Warum? Südhanglage mit Ausblick
Was gefällt nicht? Warum? Größe des Grundstücks etwas klein, aber alternativlos
Preisschätzung lt Architekt/Planer: 2000 €/m2 Wohnfläche, Grundstück 83000 €
Persönliches Preislimit fürs Haus, inkl Ausstattung: 600.000 € (ohne Grundstück)
favorisierte Heiztechnik: k.A.
Wenn Ihr verzichten müsst, auf welche Details/Ausbauten
-könnt Ihr verzichten: Gartenpool
-könnt Ihr nicht verzichten: Doppelgarage mit aufgesetzter Terrasse
Warum ist der Entwurf so geworden, wie er jetzt ist? Weil er so den Wünschen entspricht und zu dem Grundstück passt
Standardentwurf vom Planer? Nein! Individuell geplant
Entsprechende/Welche Wünsche wurden vom Architekten umgesetzt? Doppelgerarage mit aufgesetzter Dachterrasse
Was haltet ihr davon bzw. gibt es Verbesserungsvorschläge?










Größe des Grundstücks 639 m2 Es handelt sich um Grundstück Nr. 1 des Exposés
Hang ja Südhang
Grundflächenzahl 0,4 (50 % Überschreitung ist ausgeschlossen) => bei dieser Planung 0,3873
Geschossflächenzahl 0,5 => bei dieser Planung 0,376 (hier sind aber ggf. noch "Aufenthaltsräume" für den Keller zu berücksichtigen, falls das Bauamt das so einschätzt)
Baufenster, Baulinie und -grenze es gibt eine Baugrenze mit folgenden Grenzabständen: Nord 3 m, Ost 3 m, Süd 5 m und West 8 m
Randbebauung mit Nebenanlagen zulässig, Max. 15 m insgesamt bzw. Max. 9 m auf einer Grenze
Anzahl Stellplatz Doppelgarage + evtl. 1 Carport mit einem Stellplatz an der Nordseite
Geschossigkeit 1,5 Geschosse und ein Kellergeschoss
Dachform Satteldach 28° - 35°
Stilrichtung modern
Ausrichtung Richtung Süden, das heißt First West-Ost quer zum Hang bzw. mit Dachflächen Richtung Nord und Süd
Maximale Höhen/Begrenzungen Traufe maximal 3,50 m ab Oberkante Fertigfußboden EG, maximale Firsthöhe 8,50 m ab Oberkante Fertigfußboden EG
weitere Vorgaben
Anforderungen der Bauherren
Stilrichtung, Dachform, Gebäudetyp modern weiß verputzt mit Satteldach mit maximaler Neigung und dunklen Dachziegeln
Keller, Geschosse Keller mit Fitness/Wellness-Raum
Erdgeschoss Wohn- und Essbereich + Gästezimmer, Obergeschoss Schlaf- Ankleidezimmer, Büro, Kinderzimmer, Bad
Anzahl der Personen, Alter drei Personen, 2 x 38 1 x 16 Jahre alt
Raumbedarf im EG, OG Grundrisse liegen bei, Wohnfläche ca. 170 m2 + 75 m2 Kellergeschoss
Büro: Familiennutzung oder Homeoffice? Homeoffice
Schlafgäste pro Jahr 10
offene oder geschlossene Architektur offen
konservativ oder moderne Bauweise modern
offene Küche, offen gerne mit Kochinsel
Anzahl Essplätze min. 6
Kamin ja im Wohnzimmer und ggf.. im Fitness- / Wellnessraum
Musik/Stereowand ja
Balkon, Dachterrasse ja, Balkon im OG Richtung Westen, Terrasse auf Doppelgarage in Süd-/West Ausrichtung
Garage, Carport ja Doppelgarage mit Zufahrt von Süden an das KG anbindend und aufgesetzter Terrasse in Süd-Westausrichtung
Nutzgarten, Treibhaus nein, evtl. kleiner Gemüsegarten
weitere Wünsche/Besonderheiten/Tagesablauf, gern auch Begründungen, warum dieses oder das nicht sein soll gerne eine kleine Gartenhütte, evtl. ein fest eingebauter Gartenpool, Gartenteich, Fitnessraum evtl. mit Sauna und Whirlpool
Hausentwurf
Von wem stammt die Planung: mir selbst
-Planer freier Architekt
-Architekt erster Termin beim Architekten hat stattgefunden, Konzept liegt vor (siehe Bilder)
-Do-it-Yourself nein, Vergabe schlüsselfertig, evtl. einzelne Gewerke fremdvergeben bzw. Eigenleistung oder Gewerke einzeln vergeben
Was gefällt besonders? Warum? Südhanglage mit Ausblick
Was gefällt nicht? Warum? Größe des Grundstücks etwas klein, aber alternativlos
Preisschätzung lt Architekt/Planer: 2000 €/m2 Wohnfläche, Grundstück 83000 €
Persönliches Preislimit fürs Haus, inkl Ausstattung: 600.000 € (ohne Grundstück)
favorisierte Heiztechnik: k.A.
Wenn Ihr verzichten müsst, auf welche Details/Ausbauten
-könnt Ihr verzichten: Gartenpool
-könnt Ihr nicht verzichten: Doppelgarage mit aufgesetzter Terrasse
Warum ist der Entwurf so geworden, wie er jetzt ist? Weil er so den Wünschen entspricht und zu dem Grundstück passt
Standardentwurf vom Planer? Nein! Individuell geplant
Entsprechende/Welche Wünsche wurden vom Architekten umgesetzt? Doppelgerarage mit aufgesetzter Dachterrasse
Was haltet ihr davon bzw. gibt es Verbesserungsvorschläge?
Positiv ... alle wichtigen Informationen im ersten Beitrag ... das muss man auch mal hervorheben, weil das ja leider so oft nicht klappt. Daher schon mal *Daumen hoch*
----------------------------------
Das Kinderzimmer ist mir auch aufgefallen ... zusammen mit Kniestockhöhe und 2-m-Linie kein so schönes Zimmer.
Bad im OG würde mich auch mal die Planung interessieren.
Ankleide und Elternschlafzimmer mit Südausrichtung ...hm, insbesondere Schlafzimmer .. Bettposition? Ankleide, da fallen die Fensterbreite mit Wandstücken rechts und links, die nach weniger als 65 cm aussehen auf.
Ich kann zwar verstehen, warum Eingang eher Nordseite, aber Besuch hat es da nicht einfach
Wo soll denn mal ein Gartenpool hin? Wäre es nicht gut, wenn der über Fitness-Raum erreichbar wäre?
Generell fehlt mir die angedachte Einrichtung.
----------------------------------
Das Kinderzimmer ist mir auch aufgefallen ... zusammen mit Kniestockhöhe und 2-m-Linie kein so schönes Zimmer.
Bad im OG würde mich auch mal die Planung interessieren.
Ankleide und Elternschlafzimmer mit Südausrichtung ...hm, insbesondere Schlafzimmer .. Bettposition? Ankleide, da fallen die Fensterbreite mit Wandstücken rechts und links, die nach weniger als 65 cm aussehen auf.
Ich kann zwar verstehen, warum Eingang eher Nordseite, aber Besuch hat es da nicht einfach
Wo soll denn mal ein Gartenpool hin? Wäre es nicht gut, wenn der über Fitness-Raum erreichbar wäre?
Generell fehlt mir die angedachte Einrichtung.
kbt09 schrieb:
Positiv ... alle wichtigen Informationen im ersten Beitrag ... das muss man auch mal hervorheben, weil das ja leider so oft nicht klappt. Daher schon mal *Daumen hoch*Ja, fast ...(Historie)
https://www.hausbau-forum.de/threads/Positionierung-efh-auf-Grundstück.30085/
https://www.hausbau-forum.de/threads/traufhoehe-und-Dachform-bei-der-neubauplanung.30028/
kbt09 schrieb:
Generell fehlt mir die angedachte Einrichtung.Das geht mir ebenso. Ibs. Wohnesskoch mit immerhin 66 qm "leer" ist ein bißchen abstrakt vorzustellen. In der Garage könnte das Tor gegen den Stützpfeiler dengeln (der aber mindestens da steht, wo der Antrieb am günstigsten hinge). Ich greife da mal das Mantra meiner Anregung auf, wohlwollend über Einzeltore nachzudenken.https://www.instagram.com/11antgmxde/
https://www.linkedin.com/company/bauen-jetzt/
Das mit dem Eingang verstehe ich auch nicht so ganz.
Gäste würden ja wohl als erstes vor eurer Garage parken. Dann dürfen die zurück auf die Straße und nach oben gehen zum Eingang? Finde ich unglücklich.
Den Eingangsbereich finde ich großzügig, aber durch die wandnahen Türen (Haustüre und Zugang Essen) Ist ne Garderobe nicht so ohne ohne Probleme zu platzieren.
Ich wollte ja noch sagen, dann kann man sie unter die Treppe stellen, aber das geht ja wegen dem Keller auch nicht.
Also entweder wird ins Treppenauge ne Garderobe gestellt, dann könnte man sich den einladenden Eingangsbereich sparen, oder an die Wand Richtung Wohnen, da passt sie aber iwie auch nicht hin.
Die Türe zum Gästezimmer würde ich nach unten schieben, bündig mit der Treppe.
Der kleine quadratische Vorraum nützt dem Flur überhaupt nichts, schlägt man den dem Gästezimmer zu, ist die Türe wenigstens nicht mehr so im Weg bei ner Möblierung des Raumes.
Auch mir fehlt in dem riesigen EG ne Besenkammer/Abstellraum o.ä. Insgesamt ist das für mich einfach nur groß.
Die Küche Ist weitest möglich vom Eingang weg (egal, ob Eingang im UG oder der Haustüre im EG)
Von der Terrasse allerdings auch.
Ich würde hier ernsthaft drüber nachdenken, Wohnen mit der Küche zu tauschen.
Dann könnte man Vorlauf ne Abstellkammer nördlich der Küche setzen. Dazu dann ne Türe von der Küche in den Flur, sowie ne Türe auf die Terrasse.
Im OG erschließen sich mir die Prioritäten nicht.
Die Ankleide bekommt den Sahneplatz und das Kind wird mit der Nordseite und Nichtmal 13m² abgespeist. Bei nem Haus mit 250m² ist das schon ne Ansage. Büro und Kind zu Tauschen kommt nicht in Frage?
Wie oft wird denn das Büro bei euch wirklich genutzt?
Wozu dient eigentlich das Hallenbad mit 16m²?
Das Schlafzimmer stell ich mir dafür ziemlich eng vor. Das Doppelbett in Verbindung mit der Dachschräge dürfte bei der Raumgröße für Probleme sorgen.
Sorry, nicht böse gemeint, aber meins wärs absolut nicht.
Bei der Hausgröße erwarte ich, dass es an keiner Stelle zu eng ist.
Hier wird an den falschen Stellen gespart (Keine Abstellmöglichkeit im EG, Garderobe, Schlafzimmer, Kinderzimmer) und an den falschen Stellen geklotzt.
Allein das Treppenhaus hat über 40m² (!) und da ist die Galerie noch nicht mal mitgerechnet.
Ich denke, man könnte das Haus ohne Probleme 30-40m² kleiner Kriegen, ohne wirklich was davon zu merken.
Bei eurem Budget wäre das wohl auch nicht die blödeste Überlegung. Bei der Hausgröße habt ihr nämlich bestimmt auch andere Vorstellungen als einfache Grundausstattung, da dürfte es in Verbindung mit Hang, Dachterrasse, Keller, Doppelgarage, Balkon auch bei eurem Budget knapp werden.
Gäste würden ja wohl als erstes vor eurer Garage parken. Dann dürfen die zurück auf die Straße und nach oben gehen zum Eingang? Finde ich unglücklich.
Den Eingangsbereich finde ich großzügig, aber durch die wandnahen Türen (Haustüre und Zugang Essen) Ist ne Garderobe nicht so ohne ohne Probleme zu platzieren.
Ich wollte ja noch sagen, dann kann man sie unter die Treppe stellen, aber das geht ja wegen dem Keller auch nicht.
Also entweder wird ins Treppenauge ne Garderobe gestellt, dann könnte man sich den einladenden Eingangsbereich sparen, oder an die Wand Richtung Wohnen, da passt sie aber iwie auch nicht hin.
Die Türe zum Gästezimmer würde ich nach unten schieben, bündig mit der Treppe.
Der kleine quadratische Vorraum nützt dem Flur überhaupt nichts, schlägt man den dem Gästezimmer zu, ist die Türe wenigstens nicht mehr so im Weg bei ner Möblierung des Raumes.
Auch mir fehlt in dem riesigen EG ne Besenkammer/Abstellraum o.ä. Insgesamt ist das für mich einfach nur groß.
Die Küche Ist weitest möglich vom Eingang weg (egal, ob Eingang im UG oder der Haustüre im EG)
Von der Terrasse allerdings auch.
Ich würde hier ernsthaft drüber nachdenken, Wohnen mit der Küche zu tauschen.
Dann könnte man Vorlauf ne Abstellkammer nördlich der Küche setzen. Dazu dann ne Türe von der Küche in den Flur, sowie ne Türe auf die Terrasse.
Im OG erschließen sich mir die Prioritäten nicht.
Die Ankleide bekommt den Sahneplatz und das Kind wird mit der Nordseite und Nichtmal 13m² abgespeist. Bei nem Haus mit 250m² ist das schon ne Ansage. Büro und Kind zu Tauschen kommt nicht in Frage?
Wie oft wird denn das Büro bei euch wirklich genutzt?
Wozu dient eigentlich das Hallenbad mit 16m²?
Das Schlafzimmer stell ich mir dafür ziemlich eng vor. Das Doppelbett in Verbindung mit der Dachschräge dürfte bei der Raumgröße für Probleme sorgen.
Sorry, nicht böse gemeint, aber meins wärs absolut nicht.
Bei der Hausgröße erwarte ich, dass es an keiner Stelle zu eng ist.
Hier wird an den falschen Stellen gespart (Keine Abstellmöglichkeit im EG, Garderobe, Schlafzimmer, Kinderzimmer) und an den falschen Stellen geklotzt.
Allein das Treppenhaus hat über 40m² (!) und da ist die Galerie noch nicht mal mitgerechnet.
Ich denke, man könnte das Haus ohne Probleme 30-40m² kleiner Kriegen, ohne wirklich was davon zu merken.
Bei eurem Budget wäre das wohl auch nicht die blödeste Überlegung. Bei der Hausgröße habt ihr nämlich bestimmt auch andere Vorstellungen als einfache Grundausstattung, da dürfte es in Verbindung mit Hang, Dachterrasse, Keller, Doppelgarage, Balkon auch bei eurem Budget knapp werden.
Ähnliche Themen