Grundrissplanung Einfamilienhaus an Südhanglage

4,10 Stern(e) 8 Votes
Zuletzt aktualisiert 20.11.2025
Sie befinden sich auf der Seite 17 der Diskussion zum Thema: Grundrissplanung Einfamilienhaus an Südhanglage
>> Zum 1. Beitrag <<

E

Escroda

Ist ein Giebel laut Baurecht ein Dachaufbau?
Bei Katjas Entwurf handelt es sich um ein Zwerchhaus. Für den Begriff gibt es - wie so oft - keine baurechtliche Legaldefinition. Die Rechtsprechung geht aber davon aus, dass es sich bei Zwerchhäusern nicht um Dachaufbauten handelt. Daher sehe ich 1.3. der örtlichen Bauvorschriften nicht anwendbar. Diese schließen Zwerchgiebel auch nicht aus.
Während die Dachneigung im erlaubten Bereich zu sein scheint, dürfte die Traufhöhe allerdings überschritten sein. Die Genehmigungsfähigkeit ist also zweifelhaft, zumindest mit der Genehmigungsbehörde abzustimmen.
 
11ant

11ant

Zur Einfahrtssituation sehe ich keine Alternative, und finde die Lösung so wie geplant gar nicht schlecht. Viel aus ihren Cabrios zu Euch hoch gaffen werden die Nachbarn da eh nicht. Eventuell läßt sich da mit drehbaren Lamellen etwas auf die Brüstung setzen, Wind wird da nicht weniger Thema sein als Blicke (ohne Ausblicke zu behindern).

Der orange Bereich ... dort steht man auf der Treppe und stößt an den Fußboden vom Bad.
Aua. Das sehe ich leider auch so. Schön, daß die Planerschelte ´mal vom TE kommt statt von mir

Ich würde das Kind nach unten legen, das ist bei Einzug 18 Jahre, ....!
Mit "eigenem Reich" bleibt es dann allerdings auch noch länger

Man darf dem Architekten auch sagen „mach mal neu, das gefällt mir nicht“.
Ein Architekt schuldet einen genehmigungsfähigen Entwurf. Die Gegenleistung für sein Honorar ist insofern unabhängig davon erbracht, ob die Bauherren den Entwurf auch schön finden. Erst recht schuldet er nicht, auf Katjas Entwurf aufsetzend zu optimieren.

ob man aufgrund des ebenfalls beiliegenden Auszug aus dem Bebauungsplan überhaupt einen Giebel in der Form bauen darf, da "Dachaufbauten" einen Mindestabstand von 1,5 m von der unteren Dachkante haben müssen.
Ein Zwerchhaus (= eine "Gaube", wenn sie auf der Hauswand statt auf dem Drempel - den man mit dem Kniestock ja vermeidet - aufsetzt) meint dieser Bebauungsplan klar nicht. Ich sehe es dort möglich, aber nicht als "Aufbau" zu nennen. Aus meiner Sicht ist das ein Dachteil mit einem Nebenfirst.
 
kaho674

kaho674

Einer geht noch.

Kind im UG - mit 18 Jahren wollt ich das auch. Garage Nordosten - ebenerdig zur Haustür - wenig versiegelte Fläche für Wege. Autos nicht im Haus gibt Ruhe.
Terrasse mal konsequent zum Kuschel-Garten ausgerichtet und nicht wie sonst auf dem Präsentierteller. Eltern-Schlafzimmer mit Südbalkon.

- Whirlpool - check
- Kamin - check
- Wäscheschacht - wichtiger Bonus
- Speisekammer - check
- Sauna - check
- Kamin im WZ möglich - check - (noch nicht eingezeichnet)


Grundriss eines Hauses mit Wohnzimmer, Essbereich, Küche, Bad, Schlafzimmer, Treppe und Garage.



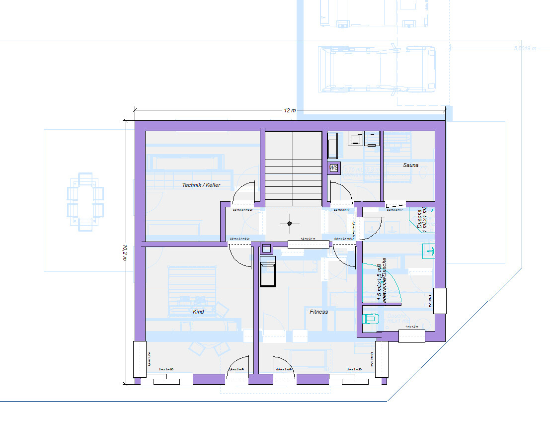
Grundriss eines Gebäudekomplexes: Räume Technik/Keller, Kind, Fitness, Sauna und Dusche.


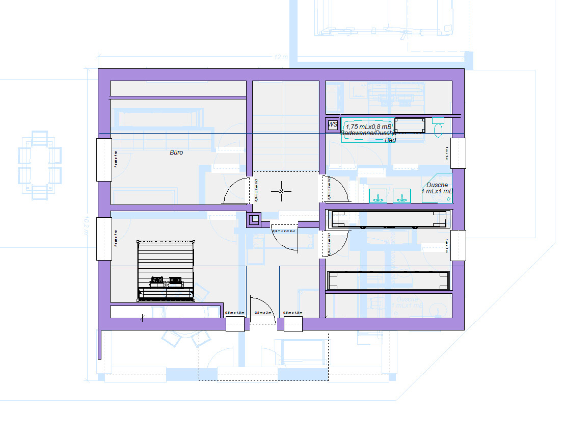
Grundriss eines Wohnhauses: Büro, Schlafzimmer, Bad mit Dusche; Flur, weitere Räume.


3D-Modell eines zweistöckigen Hauses mit Satteldach, Balkon und Garageanbau auf grünem Gelände


3D-Rendering eines Hauses mit Garage, graue Fassade und drei Dachfenstern.

Zweistöckiges Haus mit dunklem Dach, drei Dachfenster, Anbau links, Terrasse mit Holztisch.
 
T

tumaa

@kaho674 gut gelungen........ würde es persönlich besser finden, wenn nur eine Tür zum Wohnbereich wäre, die Tür genau dann gegenüber der Treppe und beide Türen weg ?

Wird TV geschaut ?
 
Y

ypg

persönlich besser finden, wenn nur eine Tür zum Wohnbereich wäre, die Tür genau dann gegenüber der Treppe und beide Türen weg ?

Wird TV geschaut ?
Zur Zeit völlig egal. Es sind Beispiele, wie man bauen könnte... es ist hier nichts in Stein gemeißelt, noch muss man Kleinigkeiten diskutieren.

Ein Architekt schuldet einen genehmigungsfähigen Entwurf. Die Gegenleistung für sein Honorar ist insofern unabhängig davon erbracht, ob die Bauherren den Entwurf auch schön finden
In welcher Welt lebst Du heute?
Ein Architekt nach HOAI abgerechnet schuldet mir mehr als nur einen genehmigungsfähigen Entwurf, sondern auch einen, der mir zusagt.
Nach Deiner Aussage könnte ein Architekt einfach einen Flair zeichnen und die Rechnung beipacken. Nene... lach
Ich hoffe, morgen biste wieder ausgeschlafen
 
Zuletzt aktualisiert 20.11.2025
Im Forum Grundrissplanung / Grundstücksplanung gibt es 2535 Themen mit insgesamt 87978 Beiträgen


Ähnliche Themen zu Grundrissplanung Einfamilienhaus an Südhanglage
Nr.ErgebnisBeiträge
1Einfamilienhaus,Zwei Varianten Grundriss vom Architekt 39
2Entwurf Einfamilienhaus mit Garage/Carport - bitte um Bewertung 22
3Grundriss EFH165 qm erster Entwurf - Architekt unzufrieden - Seite 474
4Bau Garage auf Grenze geht lt. Architekt nicht. 11
5Tür Haus/Garage: Nebeneingangstür als Brandschutztür? - Seite 327
6Hörmann T30 Tür zwischen Wohnhaus & Garage - U-Wert - Seite 211
7Erster Entwurf Einfamilienhaus 150m² mit Keller 38
8Einfamilienhaus - Meinungen zu unserem Entwurf - Seite 19159
9Einfamilienhaus Entwurf - ca. 160-170qm / Innovatives Satteldach - Seite 671
10Einfamilienhaus ca. 185qm - Erster Entwurf - Verbesserungsvorschläge? 17
11Erst-Entwurf vom Architekten - Optimierung 28
12Grundrissplanung für eine Stadtvilla mit Garage 46
13Hausbau 2.0 - erster Grundriss-Entwurf - Seite 12155
14Entwurf EFH, 2 Vollgeschosse, Satteldach, kein Keller, Doppelgarage - Seite 331
15Grundriss Bungalow 150qm mit Garage - Seite 1379
16Grundriss mit Stift auf Papier - Kritik erwünscht 40
17Technikraum in Garage einbauen? Ist dies möglich? - Seite 335
18Grundriss erster Entwurf - Meinungen erwünscht 21
19Entwurf Grundriss Bungalow Meinungen 22
20Entwurf Grundriss: Planung Erdgeschoss - Seite 227

Oben