Grundriss im Endstadium: Gibts hier noch Potential?

4,30 Stern(e) 4 Votes
Zuletzt aktualisiert 18.12.2025
Sie befinden sich auf der Seite 2 der Diskussion zum Thema: Grundriss im Endstadium: Gibts hier noch Potential?
>> Zum 1. Beitrag <<

kaho674

kaho674

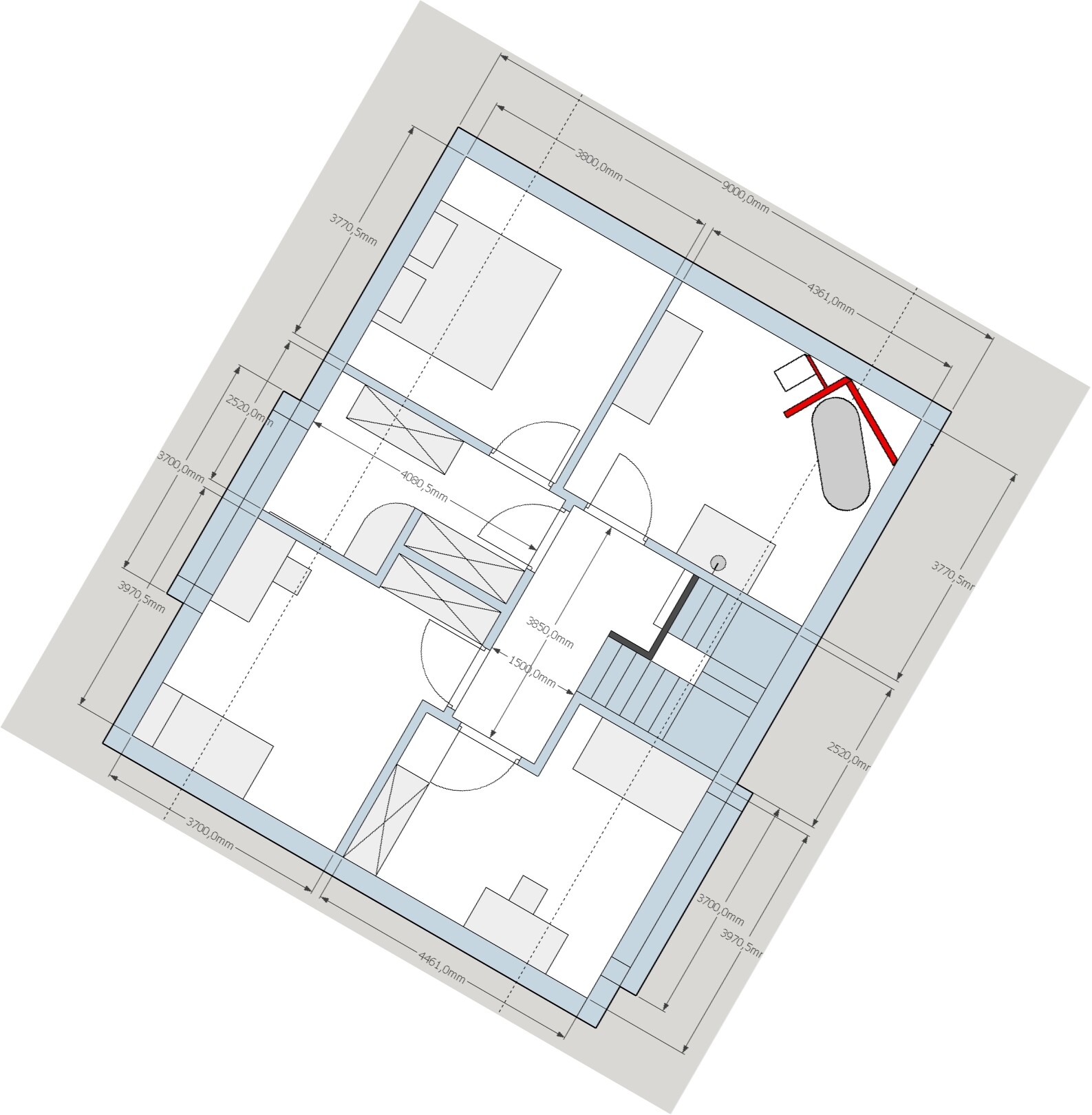
Ankleide funktioniert nicht. Treppe ist noch fraglich - nenn mal Geschosshöhe und Maße der Treppe.
Zugang des WZ im EG nur über Küche könnte auf Dauer nerven und wirkt auch nicht sehr einladend. Wer bekommt hier wie viel von der Gaube und warum? Lichtschacht am Keller braucht ein Warnschild wegen Sturzgefahr im Garten. Fenster im WZ viel zu wenig. Kinderzimmers sehr ungleich verteilt. Aber sonst...
 
kbt09

kbt09

Ich unterschreibe bei Kaho und ergänze, dass zwar sehr schön Kleiderschranknischen geplant wurden, allerdings dürften die alle zu knapp sein. Ich habe mal rausgemessen und sie sind alle nur knapp 60 cm. Wenn aber gegen diese Schranknische eine Tür öffnet, sollte man besser 70 cm planen. Pax-Schränke sind z. B. mit Schiebetüren 66 cm tief.

Treppenbedenken habe ich auch, dazu müßte man mal einen Schnitt sehen.

Irgendwie kann ich wieder nicht auf dem Grundriss erkennen, wo Nord ist (es ist äußerst mühsam immer erst wieder den Text zu lesen und dann zu versuchen den dem Grundriss zuzuordnen). Das Grundstück erkenne ich auch nicht.

Küchenplanung .. Kochfeld so in der Ecke sollte man überlegen, wer da steht, blockiert 3 Unterschränke.
Fensterform in der Küche finde ich ungewöhnlich, einerseits etwas sprossig und dann unten feste Brüstungselemente. Stilistisch passt das nicht gut zusammen. G-Küche würde ich überdenken und dann Fenster genau planen, wenn ein passendes Küchenlayout gefunden ist. G-Küchen haben oft den Nachteil, dass du im Grunde immer an der Wand lang machst und in der Mitte dann eine große Tanzfläche hast .

Minibad im EG, da würde ich mal überprüfen, es schmaler zu machen, aber quer über die gesamte Strecke dort. Dann entsteht eigentlich auch besserer Dielenschrankplatz.

Ansonsten kann ich eure Must-Haves sehr gut nachvollziehen .
 
M

modder

Genial, vielen Dank für rege Beteiligung
Die Ankleide ist in der Tat blöd, da müssten wir den Schrank unter der Schränke etwas kürzer machen. Das leicht runde ist eine Sitzbank und daneben ein Spiegel an der Wand. Meine Freundin will sich unbedingt hinsetzten können beim ankleiden.
Zugang zum Wohnzimmer haben wir schon wo anders gehört, dass das evtl. blöd sein könnte. Wir könnten noch eine Tür direkt in den Flur machen, da weiß ich aber nicht, ob es so nicht etwas gemütlicher ist, da man die Tür vom Flur kommend nie im Blick hätte von der Couch aus.
Wo wir zusätzliche Fenster im Wohnzimmer hinbekommen wissen wir leider nicht Hat da jemand eine Idee?

Zur Giebelverteilerung folgendermaßen: Wir wollten diese erst asymetisch machen, aber da hat die Zimmerei gesagt, das wäre nicht so toll. Besser ist es Wände direkt mittig zu machen, oder komplett in einen Raum zu setzen. Daher ist der linke zu 50% über der Ankleide und 50% über den Kinderzimmer und der Rechte mit der vollen Breite auf dem Kinderzimmer. Grundrissmäßig hat das westliche Kinderzimmer ca. 1m² weniger Grundfläche. Das Rechte ist aber quasi ein vollwertiger Raum, durch den Giebel.
Auf den Lichtschacht soll oben ein Zaun kommen, damit da niemand reinfallen kann.

@kbt09
An die Kleierschranknieschen kommen vorn jeweils eine Doppel-Schiebetür mit Spiegelfront. Dann werden Ablageflächen direkt an den Wänden befestigt. Dadurch werden die beiden Schränke quasi Teil des Hauses. Aber ja, es müssen auf jeden Fall feste Türstopper am Boden montiert werden. Diese Schranklösung hatte ich als ich in den USA war und bin seither total begeistert davon. Die Schranktiefe kann man dann ja durch die Montage der Schiebetür individuell festlegen.

Die Treppe habe ich im Sketchup durchgeplant, da ist jede Stufe mind. 2,30m von der Decke weg.
Rohbauhöhe EG: 2,65m -> fertige Geschosshöhe 2,5m
Decke wird eine CLT-Verbunddecke in 14cm + 15cm Fußbodenaufbau.
Heißt die Treppe muss 2,5+0,14+0,15m = ~2,80m überwinden. Macht bei 18,7cm Stufen genau 15 Stufen. In den Keller sogar nur 14 Stück. In den Grundrissen Bild ist die Trittbreite 26x100cm

Unser Haus ist ca. 30grad gedreht, sodass ca. unten rechts im Grundriss Süden ist.
Ich kann leider keine akkuraten Pfeile einzeichnen, daher habe ich Grundrisse mal gedreht.
Eine Planung der Küche haben wir auch angehangen, da wir selbst gespannt waren, ob das so funktionieren wird. Die Küchenoberfläche soll bis in die Fenster gehen und die Fenster sollen einen Kämpfer (Festverglasung) an der Unterseite bekommen, damit man das Fenster auch auf machen kann, ohne vorher sämtlichen Kleinkram von der Arbeitsfläche räumen zu müssen.

Das Minibad müssen wir wohl wirklich noch einmal überdenken, da der Flur über 4m breit ist an der Stelle von der Garderobe

Architektur-Grundriss eines Hauses: Küche mit L-förmiger Arbeitsplatte, Essbereich, Türen und Treppe.


Grundriss eines Innenraums mit Zimmern, Türen, Möbeln, Treppe; Bad rechts mit Badewanne.


Offene Küche mit Holz-Arbeitsplatten, Backofen, Spüle; Esstisch und Stühle; Glastüren im Hintergrund.


Moderne Küche mit dunkler Holzarbeitsplatte, Insel, Spüle, Backofen und Esstisch.
 
kbt09

kbt09

Genau das meine ich .. beachte mal die Laufwege .. beachte den Platz zwischen Spüle und Kochfeld = Hauptarbeitsfläche und beim Kochen zu Zweit steht aber schon jemand am Kochfeld, also Hauptarbeitsfläche schlecht nutzbar. Backofen direkt neben der Wand kann zu Bedienungsproblemen führen. Auf jeden Fall sollte man den Platz für 2 Hochschränke neben dem Fenster ruhig ca. 130 bis 135 cm breit machen. Dann sieht es nicht gequetscht aus.

Ich verstehe schon, warum das feste Brüstungselement. aber, wie hoch wird das Fenster? Und, soll es so viergeteilt sein? Dann eher überlegen es wirklich viergeteilt zu machen, also 4 Flügel, so dass man zum Lüften etc. immer nur die oberen Flügel öffnet, zum Fensterputzen aber auch die unteren Flügel öffnen kann.

Sinnvoller als die Spüle direkt vorm Fenster ist Arbeitsfläche direkt vorm Fenster und die Spüle nur viertel bis halb, so dass z. B. Wasserhahn nicht vorm Fenster sein muss. Denn man steht mehr an der Arbeitsfläche als an der Spüle, braucht aber die Spüle für schnellen Zugriff auf Wasser. Und, man hat mehr von der Arbeitsfläche, die in die Fensterleibung geht, wenn keine Spüle davor ist.

Sitzplätze an der Halbinsel mit erhöhtem Tresen. Ich tendiere zu überstehender Arbeitsplatte, damit hat man dann z. B. eine schöne umgehbare Buffetanrichtefläche und weniger Schmutzstellen wie zB. die Halterungen der erhöhten Tresenplatte.
 
T

toxicmolotof

Die Spüle über Schubladen funktioniert nicht (außer mit toten Blenden).

In meinen Augen mindesten 1 Hochschrank zu wenig (oder Speisekammer/Lager in der Nähe).

Die Erklärung sieht manchmal ganz toll aus, praktisch ist das aber Meistens doch nicht.
 
M

Matthew03

Ich finde neben dem zurecht angesprochenen Wohnzimmer vor allem auch den Eingangsbereich viel zu dunkel...am besten neben zusätzlichem Fenster den Vorschlag zu zusätzlichem Zugang Wohnzimmer beherzigen und dort mit Glaselement arbeiten.
 
Zuletzt aktualisiert 18.12.2025
Im Forum Grundrissplanung / Grundstücksplanung gibt es 2552 Themen mit insgesamt 88519 Beiträgen


Ähnliche Themen zu Grundriss im Endstadium: Gibts hier noch Potential?
Nr.ErgebnisBeiträge
1Grundriss für 150qm Einfamilienhaus mit Wohnzimmer nach Norden 21
2Grundriss Satteldachhaus 172 qm - Bitte um eure Meinungen 23
3Grundriss-Optimierung | Doppelhaushälfte am Hang mit 192m² Wohnfläche - Seite 1387
4Grundriss - Anregungen & Kritik erwünscht! - Seite 226
5Grundrissfrage, Treppe, Fenster, Ausrichtung 12
6Wohnzimmer: Wie Sofa, TV und Schränke stellen? 32
7Nicht-bodentiefe Fenster im Wohnzimmer unmodern? Welche Vorhänge? - Seite 217
8Eure Meinungen zu unserem Grundriss und Angebot - Seite 322
9Mal wieder Grundriss - Fertighaus kurz vor Bauantrag 22
10Grundriss-Entwurf Stadtvilla mit Doppelgarage - Seite 238
11Bitte Meinungen zum Altbau-Grundriss 19
12Unser Grundriss-Entwurf für ein günstiges Haus - Seite 50348
13Grundriss Neubau Satteldachhaus 145 qm, 9 x 11,5 m, kurz vor Bauantrag - Seite 332
14Grundriss Doppelhaushälfte mit Pultdach und Balkonterrasse - Feedback - Seite 549
15Durchsicht Grundriss-Planung Einfamilienhaus mit Vollgeschossen 15
16Eure Meinung zum Grundriss für das EG 28
17 Küchenplanung mit tiefen Fenster - Seite 343
18Grundriss Planung 135-150qm, Bodenplatte, Baulücke 15
19Erste Grundriss-Planung Einfamilienhaus 190m2 - Seite 664
20Grundriss 142 m² Eure Meinung ist gefragt? :) - Seite 218

Oben