Grundriss im Endstadium: Gibts hier noch Potential?

4,30 Stern(e) 4 Votes
Zuletzt aktualisiert 20.12.2025
Sie befinden sich auf der Seite 14 der Diskussion zum Thema: Grundriss im Endstadium: Gibts hier noch Potential?
>> Zum 1. Beitrag <<

kaho674

kaho674

Barcelona von Rensch-Haus - Kniestock 63cm - ich hab schon mal den Eingang versetzt und das Haus gespiegelt. Ob hier allerdings die Podesttreppe Platz findet - keine Ahnung. Küche und ehemaliges Büro kann man bei Bedarf tauschen.


Dachgeschoss-Grundriss: zentraler Flur mit Treppen, mehrere Zimmer, Bad, Küche und Wohnzimmer.

Von oben gezeichneter Grundriss: Wohnzimmer, Essbereich, Küche, Bad, Flur, Treppenhaus.
 
M

modder

(adsbygoogle = window.adsbygoogle || []).push({});​
Eine Diskussion ohne OG wird wohl wenig Feedback bringen, weil es nahezu sinnlos ist. Ich sehe auch nicht, dass man bei der gewünschten Zimmerzahl im OG mit dieser Grundfläche auch nur annähernd auskommt, da der Kniestock dafür zu niedrig ist.
4 Zimmer immer noch zu viel im OG? Ankleide ist ja nur ein "halbes". Das heißt es müssen rund 72m² (Kniestock auf 1,30m "bereinigt") verteilt werden. Es soll ja ein kleines Einfamilienhaus werden und kein Königspalast. Ich habe schon in Wohnungen gewohnt mit weniger Quadratmetern.

Hier der Grundriss vom OG. Das große graue ist eine Sauna, die in der Wand verschwindet:

Grundriss eines Hauses mit Innenräumen, Türen, Treppenhaus, Möbeln und Maßangaben


Bad: 15,6m²
Sauna: 5,7m² (bei 2m Höhe 4,2m²)
Kinderzimmer: 20,3m²
Flur: 6,2m²
Schlafzimmer: 13,7m²
Ankleide: 10,8m²

Warum siehts so aus?
- Giebel für Räume genutzt die man oft nutzt
- Schlafzimmer nicht an Treppe oder Kinderzimmer anliegend
- sehr schöner Ausblick von Sauna aus
- Kinderzimmer nun sehr großzügig, dafür extra Büroraum im Keller

An diesem Rensch-Haus haben wir uns fürs EG orientiert

@ypg
Gehts bitte etwas konkreter? zu großzügig die Küche?

schönen Sonntag zusammen
 
kaho674

kaho674

Ich find's nicht schlecht. Das EG war aber nicht so meins. Die Ansichten werden sicher auch noch interessant. Mal schauen wo das hin führt.
 
M

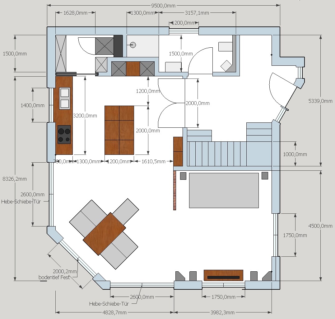
modder

Wir haben heute noch ein wenig im EG optimiert. Die Küche ist etwas zusammengeschrumpft in der Länge, dafür jetzt mit nur einer Insel aber Waschbecken am Fenster. Kühlschrank und Backofen/Mikro sind in der Wand mit Ablagefläche dazwischen. Zusätzlich gibts noch eine Speisekammer, wo auch unser Gefrierschrank steht.


Grundrissplan eines Wohnbereichs: Küche links, Essbereich unten, Treppen und Türen, Maßlinien


Gute Nacht zusammen
 
kaho674

kaho674

Mir gefällt es, bis auf den schrägen Eingangsbereich. Was genau soll der bringen? Dieses Miniteil braucht dann ein Dach, was aufwendig und unverhältnismäßig teuer wird. Die Schräge am Esstisch würde bei mir auch noch raus fliegen, aber das ist Geschmackssache.
 
Zuletzt aktualisiert 20.12.2025
Im Forum Grundrissplanung / Grundstücksplanung gibt es 2552 Themen mit insgesamt 88530 Beiträgen


Ähnliche Themen zu Grundriss im Endstadium: Gibts hier noch Potential?
Nr.ErgebnisBeiträge
1Kinderzimmer und Schlafzimmer - Welche Größe ist zu empfehlen? - Seite 256
2Grundriss Bungalow 150qm geschlossene Küche, überdachte Terrasse 40
3Grundrissplanung Hanghaus mit 5 Kinderzimmer - Seite 26370
4Rensch-Haus Erfahrungen und Preise - Fertighaushersteller - Seite 458
5Hanse Haus oder Rensch-Haus Niederbayern 34
6Kommentare zur Grundriss-Planung erwünscht - Seite 29344
7Besonderer Grundriss oder langweilig mit Keller? - Seite 320
8Größe vom Schlafzimmer und Kinderzimmer - Seite 338
9Schallschutztür Schlafzimmer / Kinderzimmer 23
10Pfiffige Schlafzimmer Idee mit Ankleide gesucht 19
11Grundriss Schlafzimmer, Ankleide und Bad en Suite - Seite 336
12Grundriss Schlafzimmer mit Bad und Ankleide 62
13Vollgeschoss oder mit Kniestock ? 20
14Grundrissplanung Einfamilienhaus (Stadtvilla) ca.140m² (3 Kinderzimmer) 42
15Einfamilienhaus ~190qm, drei Kinderzimmer, ohne Keller - Feedback wäre mega - Seite 219
16Einfamilienhaus 172qm mit Garage und Sauna - Seite 654
17Neubau Einfamilienhaus 160-170qm, 3 Kinderzimmer 39
18Einfamilienhaus, 3 Kinderzimmer, 2 Bäder, ca. 10,5x10,5 m2 - Seite 331
19Grundriss 3 Kinderzimmer Einfamilienhaus - Potenziale? 43
20Grundriss Einfamilienhaus 155m², ohne Keller, 3 Kinderzimmer, 1 Büro 38

Oben