Dann ist es doch das beste, wenn Du mal Eure Möbel einzeichnest und hier einstellst.
Ist in Arbeit!
Zum Festpreis kommt erfahrungsgemäß nochmal einiges dazu. Mir fällt zb auf, dass der Keller ein Nutzkeller ist, ihr ihn aber zu Wohnzwecken, zumindest einen Raum, nutzen wollt. Das würde ich unbedingt mit dem GU abklären, was da auf Euch zukommt.
Ist im Festpreis enthalten; der Kellervorraum und das Büro - im Plan als "Werken" - bekommen Fußbodenheizung, Holzfußboden und verputzte Wände.
Kücheninsel würde ich noch tiefer machen und ja, der Raum ist groß genug.
Was meinen Sie mit tiefer? Länger? Also dass sie über das Wandende hinausragt? Oder breiter?
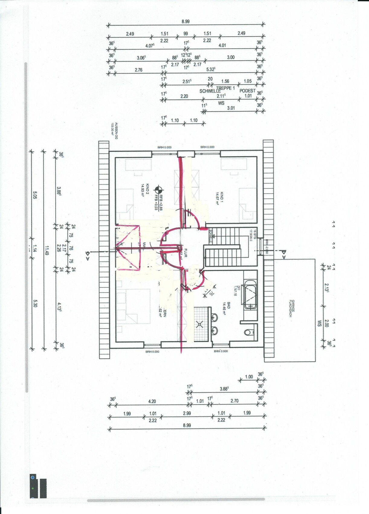
Und, uups, ich sehe gerade den großen Fehler

Das Bad entwässert über dem Sofa!
Insofern: Dachgeschoss tauschen. Kinder in den Osten zum Garten, Bad und Schlafzimmer in den Westen. Es ist so, wie es ist. Die Treppe sollte das Problem nicht sein.
Habe ich eigentlich beim Bauunternehmen extra angefragt und die Rückmeldung bekommen dass dies kein Problem sei. Die Geräusche wären so gering dass man sie kaum wahrnehmen würde wenn man auf dem Sofa sitzt.
Sehen Sie das anders? Wegen den Geräuschen oder noch aus einem anderen Grund?
Wäre schade wegen der Westsonne in den Kinderzimmern. Morgens sind die ja eh nicht zu Hause.
Ansonsten presch ich mal mit dem Gedanken vor:
Haus noch weiter nach hinten, Garage vorziehen bis an die 5 Meter-Baugrenze, zw Garage und Eingang den 2. Stellplatz (so wie das jetzt ist, ist es blöd und berechtigt in einigen Bundesländern nicht erlaubt) und an eine SW-Terrasse denken, die von der Küche erreichbar ist. Ich finde nämlich, dass dieser Aspekt, abends beim Grillen auf der Abendterrasse möglichst nah bei der Küche zu sitzen, überhaupt keine Beachtung hat in diesem Entwurf. Ich würde SW in der Grundstücksecke Richtung Straße noch eine schöne Sundowner-Terra anlegen. Zwei Stühle oder Bank für Euch reicht. Aber den Grill sehe ich eher an der Küche. Wenn das Haus (noch) weiter zum Osten geschoben wird, wird man jeder Grundstücksecke und jedem menschlichen Bedarf gerecht.
Schöne Idee, werden wir auf jeden Fall diskutieren. Da die Küche ja im Westen liegt könnte man tatsächlich die Fenster mit einer Terrassentür entsprechend anpassen. Danke!
Vion daher könnte ein Tausch Küche=WZ richtig gut sein, zumal auch TV gut positioniert sein soll, das wäre dort sicher besser, weil weniger Sonneneinstrahlung. Ein WZ braucht eh weniger Fenster, sofern es oft/überwiegend als TV-Zimmer genutzt wird.
Von den Maßen her wird das aber schwierig wenn man im groben Grundriss bleiben möchte oder?
Die Küche hat eine Breite von 3,635 m, etwas zu wenig für ein Wohnzimmer. Das Wohnzimmer ist aktuell mit einer Breite vom 4,13 m geplant.
wenn das Haus im Lageplan genordet ist , würde das bedeuten, euch schmilzt die Butter in der Küche. Wäre mit zu viel des Guten. Die Küchenwürde auch planoben rechts gut passen, die Maße sind ja identisch.
...
Das EG wird zum Gewächshaus, viel zu viel Glas, viele Quadratmeter mit nix drin. Tisch, Stuhl, Couch, TV und Klavier (in der Sonne?) und laut.
Ja, der Lageplan ist genordet, somit ist die Küche auf der Südseite. Maße sind jedoch nicht identisch. Breite Küche aktuell 3,635 m und Wohnzimmer 4,13 m.
Vllt könnten wir die Hebeschiebetür weglassen und dafür eine Terrassentür näher an die Küche legen. Zumal der Ausblick von der Schiebetür höchst wahrscheinlich auf eine drei Meter entfernte Garage fallen würde.
Im EG sind überall Raffstores als Beschattungsmaßnahme geplant.
Variante 2 nochmal optimiert:
Vielen Dank, ich versuche es gerade nachzuzeichnen und eigene Möbel einzuzeichnen.