Grundriss im Endstadium: Gibts hier noch Potential?

4,30 Stern(e) 4 Votes
Zuletzt aktualisiert 22.11.2025
Sie befinden sich auf der Seite 8 der Diskussion zum Thema: Grundriss im Endstadium: Gibts hier noch Potential?
>> Zum 1. Beitrag <<

M

modder

Also könnten wir wenigstens mit 90 rumprobieren?!
dadurch dass wir südseite Hangaufwärts haben und Nordseite hangabwärts wäre es natürlich schöner, wenn der EG-Fußboden so hoch wie möglich ist. Würden wir den Kniestock oben um 25 cm vergrößern, müsste im gleichen Zuge der EG Fußboden weiter nach unten. Mit diesen 25cm würde er dann genau mit der Geländekannte Nordseitig abschließen. Heißt für uns wir müssen unsere Terrasse noch weiter abgraben und das EG ist quasi etwas tiefer.
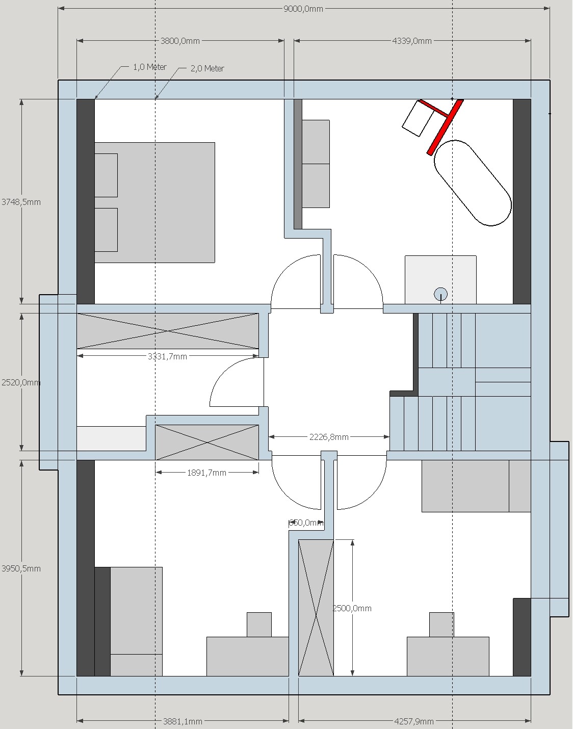
Ich habe überall mal auf 1m "abgekoffert" also eine Drempelwand eingezogen. Der 2. Giebel ist erst mal noch drin, könnte man auch wie im anderen Kinderzimmer einfach nen 1,30m Drempel rein und das Bett davor.

Wie ist das mit den 65cm Ecken im Schlafzimmer und Kinderzimmer, ist sowas komisch wenn man in den Raum kommt?

Anbei mal noch ein Entwurf von mir und eine Zeichnung für den Kniestock so wie er erlaubt ist.

Grundriss eines Gebäudes mit zwei Zimmern, Türen, Möbeln und Maßangaben.


Technische Zeichnung eines diagonalen Dachbalkens mit Maßangaben in mm und rotem Fundamentblock
 
Zuletzt bearbeitet:
kaho674

kaho674

Anbei mal noch ein Entwurf von mir und eine Zeichnung für den Kniestock so wie er erlaubt ist.
Auf jeden Fall eine Verbesserung, finde ich.

Das Zusammenlegen der Ankleide mit dem Schlafzimmer von Yvonne hat sicher den Hintergrund, großzügige Räume mit dem Gefühl von mehr Bewegungsfreiheit zu schaffen. Außerdem würde so der "wertvolle" 3. Giebel mit in einem Hauptzimmer integriert und nicht zum Nebenschauplatz degradiert. Aber wenn Euer Tagesablauf nicht dazu passt, würde ich deswegen nicht lange fackeln.

Was ich an Deinem Entwurf nicht so mag, wenn man die Tür öffnet und erst mal gegen eine Wand läuft. Auch so eine abgeschrägte Dusche find ich nicht gerade prickelnd.

Bei wie viel cm ist die 1m-Grenze bei Dir (einschließlich Außenwand)?
 
M

modder

Ja, größeres Raumgefühl ist auf jeden Fall etwas tolles, aber hier wird wohl die Praktikabilität gewinnen. Zumal ich meine Freundin viel mehr mag, wenn Sie nicht auf mich sauer ist, weil ich schon wieder was im Schlafzimmer vergessen hatte
1m Grenze liegt Innenmaß 32,7cm + Außenwand 34,45cm = ~67cm

#Edit
ja, so ein großes Schlafzimmer wäre schon klasse
 
M

modder

Die Zeit wie lange man seinen eigenen Beitrag bearbeiten kann ist nur sehr kurz hier im Forum, oder?
Anbei noch ein Entwurf mit nur einem extra Giebel und Dusche am Schlafzimmer dran. Die Schränke in den Kinderzimmern sind echt groß, da passt bestimmt auch ne Menge Spielzeug rein

Auch wenn so ein klein wenig Raum verloren geht, finde ich es schöner, wenn die Wand nach der Treppe schräg ist. Das wirkt für mich etwas freundlicher

Draufsicht-Grundriss eines Gebäudes mit mehreren Räumen, Türen, Treppen, Möbeln und Maßangaben.


Dann habe ich die Wand der Ankleide noch etwas zurück in den Flur gezogen um den Schlafzimmereingang zu verbessern. Gibt dann einen 38cm "Tunnel" an dem einen Kinderzimmer.

Grundriss eines Gebäudeteils mit mehreren Räumen, Türen, Treppen und Möbeln, Größenmaße.
 
Zuletzt bearbeitet:
Zuletzt aktualisiert 22.11.2025
Im Forum Grundrissplanung / Grundstücksplanung gibt es 2535 Themen mit insgesamt 87982 Beiträgen


Ähnliche Themen zu Grundriss im Endstadium: Gibts hier noch Potential?
Nr.ErgebnisBeiträge
1Größe vom Schlafzimmer und Kinderzimmer - Seite 338
2Kinderzimmer und Schlafzimmer - Welche Größe ist zu empfehlen? - Seite 256
3Grundriss erster Entwurf - Meinungen erwünscht - Seite 321
4Gauben Abstand Außenwand oder Dach 16
5Neubau Einfamilienhaus ca.220qm, 2. Entwurf Stadtvilla - Seite 259
6Pfiffige Schlafzimmer Idee mit Ankleide gesucht 19
7Schallschutztür Schlafzimmer / Kinderzimmer 23
8Kalkulation Einfamilienhaus mit 175m² Wohnfläche, Keller und Doppelgarage - Seite 979
9Grundriss Schlafzimmer, Ankleide und Bad en Suite - Seite 336
10Grundriss Schlafzimmer mit Bad und Ankleide 62
11Entwurf - alle Richtungen bei Neubau vom Einfamilienhaus 91
12Einfamilienhaus - Meinungen zu unserem Entwurf - Seite 11159
13Kniestock Danwood Haus in Schleswig-Holstein - Was geht maximal? - Seite 323
14Grundrissplanung Einfamilienhaus (Stadtvilla) ca.140m² (3 Kinderzimmer) - Seite 742
15Grundrissplanung / Entwurf Einfamilienhaus Flachdach mit Doppelgarage - Seite 587
16Einfamilienhaus mit 190qm - Was hält ihr von dem Entwurf? Feedback? 51
17Grundrissplanung ca. 200qm (3 Kinderzimmer + Schlafen) - Seite 529
18Einfamilienhaus, ~160m², Bauhausstil; Erster Entwurf nach unseren Wünschen 420
19Grundrissplanung: Badezimmer Dusche 47
20Neubau Einfamilienhaus 160-170qm, 3 Kinderzimmer 39

Oben