Grundriss HAUS FÜR ZWEI" auf etwa 150qm stellt sich vor

4,80 Stern(e) 13 Votes
Zuletzt aktualisiert 04.10.2025
Sie befinden sich auf der Seite 18 der Diskussion zum Thema: Grundriss HAUS FÜR ZWEI" auf etwa 150qm stellt sich vor
>> Zum 1. Beitrag <<

P

pagoni2020

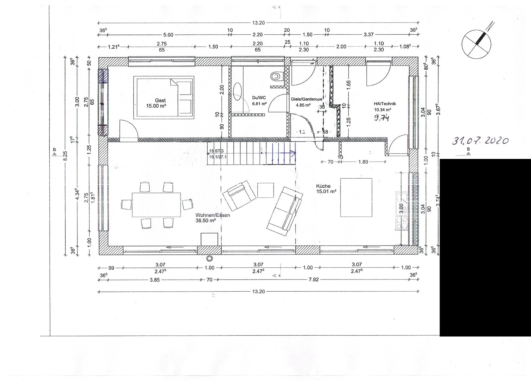
Ich sehe gerade, dass ich EG und OF falschherum benannt habe; werds gleich mal korrigieren.

ür meine Wohn- und Hauslogik hast du dich in die falsche Richtung entwickelt.
Jau, ich geb den Anschiss direkt weiter an die Planerin im Haus-
Leben auf zwei Etagen
- Gast direkt am Wohnbereich und läuft zum WC durch diesen
...das ist der Preis für den Seeblick, den wir akzeptieren. Unser großes WZ hier ist nicht allzuoft benutzt, eher das kleine WZ, im, neuen Haus wäre das dann beim Kamin im EG.
Gast ist immer Familie, daher ist das für uns ok so; wir hatten es vorher auch schon mit Zugang aus dem Flur geplant uns dann aber bewusst hierfür entschieden.
Schlafzimmer im Süden
......stimmt, ist nicht optimal, es liegt aber dich eher Westen und das Bad am südlichen Eck.

- Gast im Süden, oder hast du 300 Tage Gäste ?
Nö eher 20 Tage, das ist eher mein Zimmer für TV, Musik etc.; es liegt doch aber nicht im Süden????
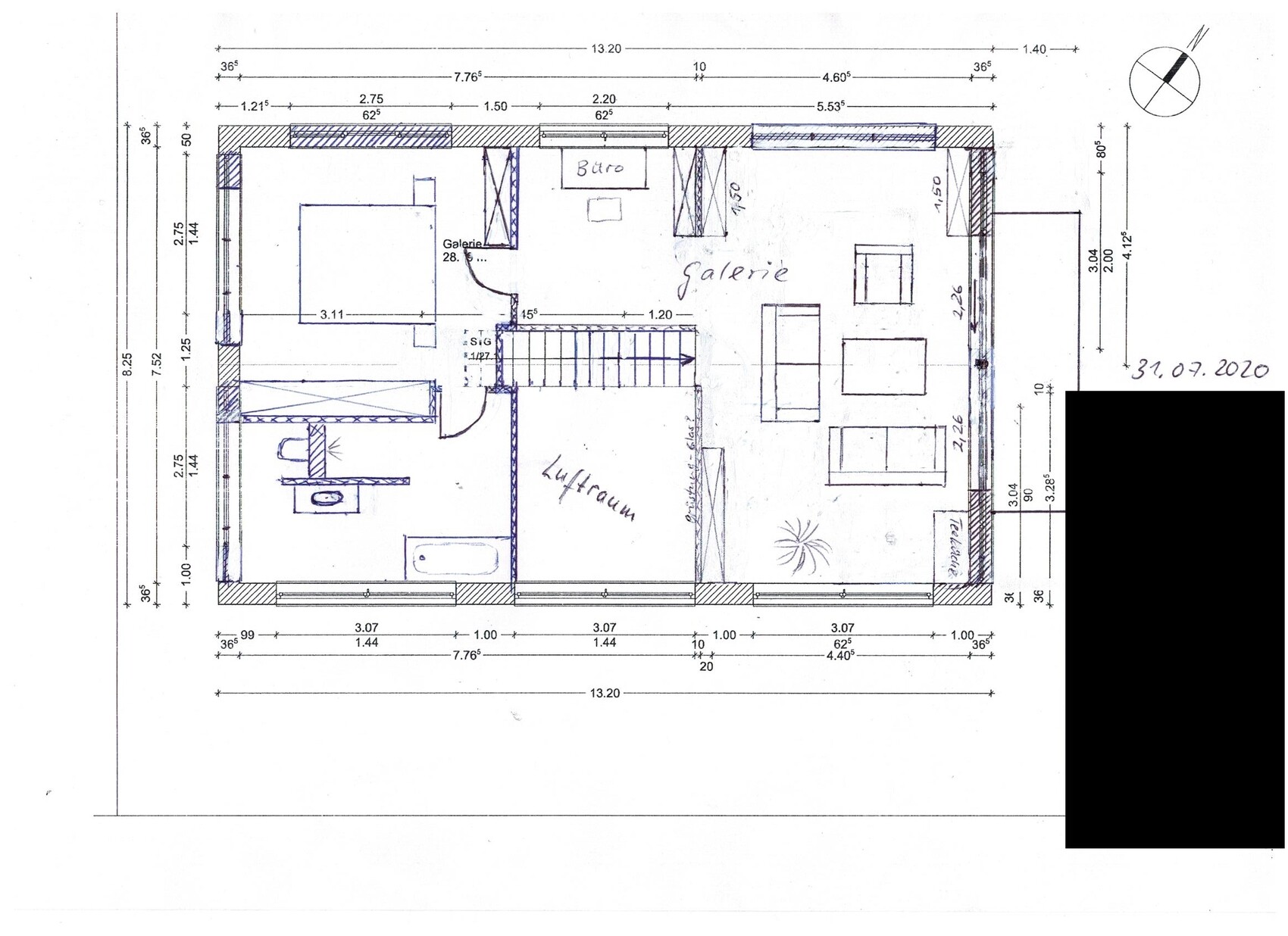
die große coole Galerie ist weg und damit die Haus- und Raumwirkung.
....das macht mir ehrlich gesagt auch etwas Sorgen, weshalb ich ja klares Feedback hören möchte; noch ist das Fax nicht geschickt-

Danke Dir - wird diskutiert !
 
P

pagoni2020

Nö, mach´ doch lieber einen sauberen Relaunch, so ist das nicht Fisch und nicht Fleisch: 1. entweder kann man sich den Luftraum leisten oder es fehlt an einem dreiviertel Meter, um in der Treppenachse dieses halbgare "zwei Stufen überbauen, aber für die dritte dann die Schlafzimmer-Bad-Suite an der Treppe den Bauch einziehen lassen" zu vermeiden; 2. auch die Eingangssituation des Hauswirtschaftsraum mit der an die Wand geklatschten Tür und dem in die Küchenzeile vorverschwenkten Laufweg ist mehr Auauau als Eieiei des Kolumbus. Und irgendwie ist auch der "Charme" des Baukörpers als Fake eines Industriekleinhallen-Umbaus nicht so recht der Traum meiner eingeschlafenen Füße. Dreh´ mal den Reduktionsmuspegel ein bißchen runter. So wirkt mir das strukturell zu pseudoskelettbauig. Da ist dann praktisch nicht mehr erheblich, daß mir die Ansichten so schwarz in dunkelstgrau zu unleserlich sind, als daß ich sie noch detailliert reflektieren könnte.
...was im Klartext für Einfachanwender wie unsereins bedeutet ?
 
H

hampshire

Fenster zum See:
Wir haben Glasfaltwände von Solarlux zum Tal und davor etwa 1m Balkon als "Absturzsicherung". Die Faltwände falten nach außen, sodass im Innenraum nie etwas im Weg stehen kann. Diese Lösung könnte für einen wunderbaren Seeblick führen.
Gast:
Statt den Gast mit ins Haus zu nehmen kann man diesen ja auch in ein "Gästehaus" auslagern. Genehmigungsfrei ginge das beispielsweise mit einem "Schäferwagen". Je nach Anspruch und Ausführung gibt es diese schon ab 5000€ - preis bis zum Tinyhouse auf Rädern natürlich wie immer nach oben offen. Der Gast bekommt einen Schlüssel für die Toilette im EG. Diese ist ergänzt durch eine Dusche (sonst bin ich ja immer dagegen) - und gut ist.
 
Y

ypg

jetzt Dokumente EG und OG korrekt benan
Ist das jetzt die Zwischen- bzw Endplanung?
Ich muss zugeben, dass ich den Thread irgendwann nicht mehr verfolgt habe.
Dennoch muss ich sagen: er erschließt sich mir überhaupt nicht.
Die Treppe ist doch zu kurz?
Von der Küche zum Essbereich an einer möblierten Engfront vorbeischlängeln, um zum Essbereich zu kommen? Chill-Area im doppelten Durchgangsbereich (Treppe und erwähnter Essbereich)
Gast muss auch daran vorbei... einmal das Haus durchqueren, um auf Toi zu gelangen.
Küche abgehakt, damit der Hauswirtschaftsraum zu begehen ist...
Die Badewanne und die Dusche, so wie gesetzt, lassen gerade mal noch Twiggy zur Toi laufen (man achte auf die Breite des Bades von 2,20 und eine Wanne von 180x80 )
Wenn ich das alles fehlinterpretiere, dann sorry.
Aber das wären alles Punkte, die zu ändern wären, wenn es um Neubau geht.
 
Nida35a

Nida35a

@pagoni2020
ich denke ihr habt jetzt lange und ausführlich geplant und für euch eine Lösung, die Lösung kneift aber noch an den genannten Punkten, mindestens Feintuning sollte noch kommen. Wir haben damals von diesem Planungsstand bis zur Erstellung der Bodenplatte noch oft geändert.
Macht mal jetzt die Probe mit euren Grundforderungen, kann dieser Grundriss das alles ?
Meine Logik wäre Schlafzimmer nach Nordosten,
Kamin Chill und TV Zimmer nach Südwesten (kalt, Kamin, Abendsonne),
WZ zentral mit Esszimmer und Küche.
Wie hoch sind die Fenster oben an der Seite, vom Fußboden 1,2m hoch ?
 
Zuletzt aktualisiert 04.10.2025
Im Forum Grundrissplanung / Grundstücksplanung gibt es 2509 Themen mit insgesamt 87151 Beiträgen


Ähnliche Themen zu Grundriss HAUS FÜR ZWEI" auf etwa 150qm stellt sich vor
Nr.ErgebnisBeiträge
1 Ratschläge und Tipps zu Hausgrundriss (Einfamilienhaus 1,5 Geschosse) - Seite 453
2Grundrissfrage, Treppe, Fenster, Ausrichtung 12
3 Küchenplanung mit tiefen Fenster 43
4OG Stadtville optimieren. Fenster Bodentief - Seite 13104
5Grundrissplanung Stadthaus 150qm mit Satteldach 6 Zimmer - Seite 19150
6Türanschlag zum Wohn/-Essbereich und Beleuchtung Küche 13
7Bodengleiche Dusche mit Fenster in der Nähe 13
8Dusche direkt am Fenster - kompatibel oder inkompatibel? - Seite 422
9Wohnen/Essen/Küche: Wie wohnt ihr oder werdet ihr wohnen? - Seite 752
10Geschlossene oder offene Küche ? 11
11Unser Grundriss, Wohn-Essbereich - Eure Meinung - Seite 216
12Probleme bei der aufteilung Küche, Essen , Wohnen 16
13 2 Vollgeschosse, Durchgang Garage, Hauswirtschaftsraum unter Treppe 25
14Grundriss Stadtvilla / Anordnung Fenster, Feedback erwünscht - Seite 216
15Grobe Schnitzer im Grundriss? Küche zu klein? - Seite 639
16Grundrissplanung: Badezimmer Dusche 47
17Heizung in Küche "notwendig"? - Seite 435
18REH - Grundrissplanung - Küche zu klein - Seite 430
19Nicht-bodentiefe Fenster im Wohnzimmer unmodern? Welche Vorhänge? 17
20Grundriss Einfamilienhaus 150qm - Fenster- und Badplanung - Seite 218

Oben