Grundriss HAUS FÜR ZWEI" auf etwa 150qm stellt sich vor

4,80 Stern(e) 13 Votes
Zuletzt aktualisiert 20.11.2025
Sie befinden sich auf der Seite 2 der Diskussion zum Thema: Grundriss HAUS FÜR ZWEI" auf etwa 150qm stellt sich vor
>> Zum 1. Beitrag <<

P

pagoni2020

Von außen sehr hübsch.

Innen sehe ich auf die schnelle das sehr lange Wohnzimmer das einfach zu schmal ist.
Wenn man mich hätte machen lassen........wir wollten bei ca. 150qm enden und haben an einigen Stellen abgeknapst......größer wäre schöner, aber das gilt leider auch für andere Bereiche auch. Dann bin ich wieder bei meinen 200qm, die ich ja nicht mehr will.
Hm.....
 
A

Alessandro

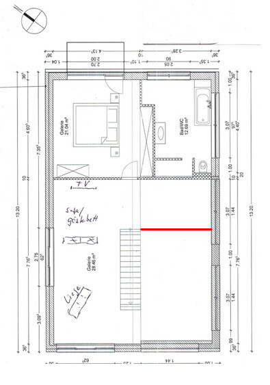
das OG verstehe ich nicht ganz...
Die Treppe führt in einen großen offenen Raum? Das Bett steht mitten im Schlafzimmer ohne Rückwand?
Wo ist der Zugang zum Bad?
 
P

pagoni2020

Ups...sorry.
Da wurde etwas noch nicht eingefügt bzw. nur teilweise beschrieben.
Der Bereich oberhalb Esszimmer+Wohnzimmer ist Luftraum, man geht nach er Treppe also nach rechts weg.
Dort unterteilen wir dann mit unseren mobilen Möbeln USM-Haller den Bereich Liege und TV mit dazugehörigem TV-Sofa bzw. Gästebett. Das ist ein nettes Teilvon RUF mit klappbarem Alutisch und das wird dann sowohl TV- als auch Gästebett (Enkel etc.)
Zugang im Bad erfolgt mit HILTI. Nein, auch das fehlt. Der Eingangt ist aus dem Schlafzimmer im hinteren Bereich beim Fenster.
Badplanung springt täglich Hin und Her.....
Hinter dem Bett ist Nichts eingezeichnet, jedoch kommt dorthin eine Ytongwand oder passendes Möbel. Im Grunde haben wir das von hier nachgebaut. Möbel kommen ja mit.
Sorry nochmals, wir habens im Kopf aber es landet noch nicht Alles auif dem Plan bis wir endgültig wissen, wie es werden woll.
 
P

pagoni2020

Na das bruhigt mich aber......Ohne Quatsch, ich seh, dass Du einen guten Geschmck hast und trotz des fortgeschrittenen Alters mit gleichzeitigem Stzarrsinn höre ich mir sehr gerne andere Meinungen an. Noch sind wir noch davor und können ändern. Daher.....immer her damit, wenn etwas auffällt oder ne Idee entsteht.
 
A

Alessandro

einzig dass kein Fernseher im WZ Platz findet würde mich stören.

Außerdem würde ich die Galerie verkleinern um eine gemütlichere Optik zu schaffen.
Dann hättest du oben noch einen kleinen Flur für eine Kommode, Arbeitsplatz oder du ordnest sogar Schlafzimmer und Bad anders an.


Grundriss eines Hauses: Schlafzimmer, Wohnzimmer, Bad, Treppe; rote Linie markiert.
 
Zuletzt aktualisiert 20.11.2025
Im Forum Grundrissplanung / Grundstücksplanung gibt es 2535 Themen mit insgesamt 87978 Beiträgen


Ähnliche Themen zu Grundriss HAUS FÜR ZWEI" auf etwa 150qm stellt sich vor
Nr.ErgebnisBeiträge
1was für Farben für das Schlafzimmer ? - Seite 744
2Ankleide/Schlafzimmer Problem - Grundrissdiskussion 25
3Grundrissfrage, Treppe, Fenster, Ausrichtung - Seite 212
4Gestaltung Schlafzimmer - Seite 335
5Treppe Grundriss Planung, Auftritt und Unterzug - Seite 221
6Extra-Bad vom Schlafzimmer oder doch Abstellraum? - Seite 429
7Stadtvilla mit gerader Treppe, offene moderne Bauweise, 140m² - Seite 318
8Treppe im Wohnzimmer als Hype - Pro & Contra? - Seite 426
9Umfrage Ikea-Möbel im neuen Haus - Kastenmöbel, Polster, usw. - Seite 435
10Idee Schlafzimmer - Bett / Schrank Anordnung 32
11Grundriss Einfamilienhaus ohne Keller/Schlafzimmer und Bad im EG - Seite 327
12Grundriss Einfamilienhaus barrierefrei fürs Alter mit Eltern-Schlafzimmer im EG - Seite 744
13Grundriss Schlafzimmer, Ankleide und Bad en Suite 36
14Grundrissfrage: Tausch gerader Treppe durch L-Treppe 31
15Eure Meinung zum Grundriss für das EG - Seite 428
16Schlafzimmer auf der Südseite zu warm? 18
17Heizung Kinderzimmer,schlafzimmer und Bad 14
18Grundriss Elternbad und Durchgang zu Schlafzimmer 13
19Pfiffige Schlafzimmer Idee mit Ankleide gesucht 19
20Größe vom Schlafzimmer und Kinderzimmer - Seite 238

Oben