Grundriss HAUS FÜR ZWEI" auf etwa 150qm stellt sich vor

4,80 Stern(e) 13 Votes
Zuletzt aktualisiert 20.11.2025
Sie befinden sich auf der Seite 17 der Diskussion zum Thema: Grundriss HAUS FÜR ZWEI" auf etwa 150qm stellt sich vor
>> Zum 1. Beitrag <<

P

pagoni2020

Unsere Planungsphase war doch schon abgeschlossen....und nun das:
Erster Entwurf (#1), komplette Veränderungen nach Forumsgemecker in (#67) und dann unser letzter Entschluss (#82).
Nachdem wir all Eure Kommentare nochmals gelesen haben ist nun doch diese neue Idee entstanden, die wir unserem GU am Montag zur Änderung geben möchten. Auch wenn die Umplanung ein paar € kosten kann wollen wir es doch noch überlegen.
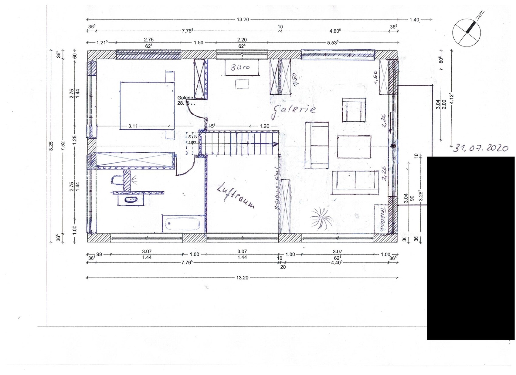
Letztlich geht es insbes. auch um den seitlichen, unverbaubaren Seeblick im OG, der bislang vom Schlafzimmer auch ganz gut möglich war.

Im inzwischen verworfenen Entwurf #67 hatte uns aber doch auch unser WZ im OG vor einer Fensterfront mit Seeblick gut gefallen, besser und flexibler als im Schlafzimmer, weil im WZ-Fenster freier planbar sind. Ergo sind wir nun auf die glorreiche Idee gekommen, diese WZ-Idee aus #67 aufzunehmen und einen Teil des vorhandenen Luftraumes zu opfern bzw. die Geschossdecke im OG etwas zu erweitern.
Dadurch könnten Bad und Schlafzimmer gespiegelt werden und es entstünde der neue, großzügige Wohnzimmer-/Loungebereich (dann auch für mögl. Gäste/Familienbesuch dann nutzbar) mit einer großen, noch zu planenden Glasfront, die zwar nach Nord-Ost zeigt, aber eben grob i.R. dem kleinen See und unverbaubar ist.

Es blieben jetzt aber nur noch ca. 12qm Luftraum über dem Esszimmer bzw. Lümmelbereich vor dem Kamin (je nach möblierung), dafür gewinnen wir mehr an (nicht unbedingt benötigter) Wohnfläche im OG aber insbes. eben den freien Blick aus diesem offenen Raum.

Neben Fragen nach Sinn/Unsinn sowie Gefallen/Nichtgefallen würden wir uns auch über Ideen freuen hinsichtlich der angemessenen Fenstergestaltung an dieser Giebelseite vom WZ. Natürlich möchte man maximalen Blick, auf der anderen Seite will man auch nicht überziehen. Derzeit ist noch offen, ob wir diesen WZ-Raum nach oben offen halten oder dort auch eine Decke einziehen lassen.

Aktuell ist vor dem Giebel ein Schlafzimmer-Balkon geplant; mit dem neu entstehenden WZ stellt sich nun die Frage, ob man den Balkon nicht ganz weglässt und eine breite Fensterfront, z.B. Schiebeelemente mit Absturzsicherung oder unten Festglas und darüber großzügige Befensterung plant, sodass man quasi auf dem Sofa wie im Freien sitzen könnte, der Balkon mit Stühlen etc. also wegfallen kann.

Wie ist Eure Meinung zu der neuen Änderung im OG?
Auswirkungen durch den geringeren Luftraum?
Welche Fensterideen (Größe, Funktionen?), aktuell ist eine erste Idee eingezeichnet in der Ansicht

Vier Fassaden eines modernen dunklen Gebäudes: Nordwest-, Südwest-, Südost- und Nordostansicht.


Grundriss eines Wohnhauses: links Schlafzimmer, rechts Wohnzimmer, zentrale Galerie, Büro, Treppe.


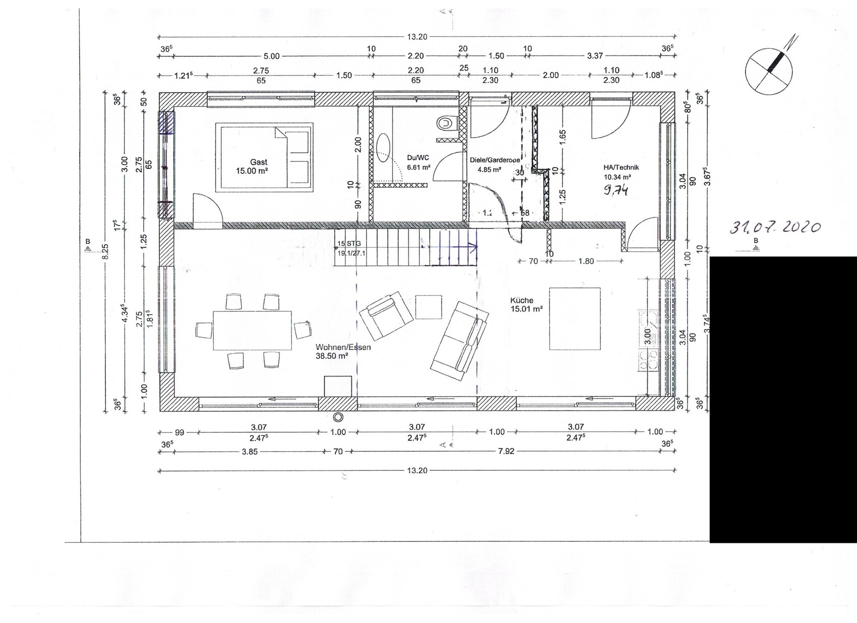
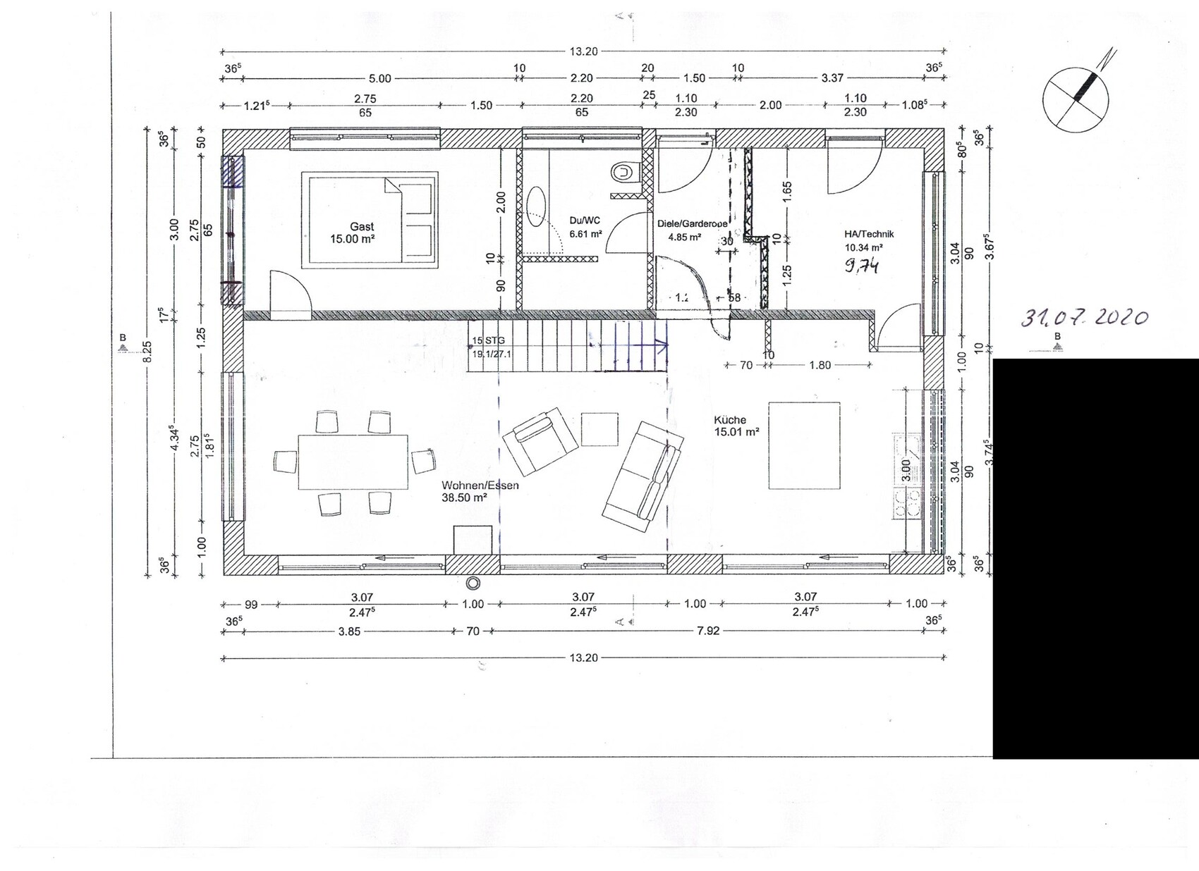
Grundriss EG: Gästezimmer, Diele, Du/WC, Küche, Wohnen/Essen, Technikraum.
 
H

haydee

Die Idee mit den Fenstern gefällt mir.
@hampshire hat meine ich für euch passende verbaut. Bin mir nicht sicher ob normale Schiebetüren sinnvoll sind.
absturzsicherung muß hin, die darf aber nicht stören. Glas? @Muc1985 hatten wir nicht bei dir das Thema?
 
P

pagoni2020

Die Idee mit den Fenstern gefällt mir.
@hampshire hat meine ich für euch passende verbaut. Bin mir nicht sicher ob normale Schiebetüren sinnvoll sind.
absturzsicherung muß hin, die darf aber nicht stören. Glas? @Muc1985 hatten wir nicht bei dir das Thema?
Danke, die Zeichnerin wirds freuen-
Vorbehaltlich der baulichen Vorgaben für die Fenster stellt sich nebenbei die Frage nach Balkon ja/nein bzw. ob wir diese Kosten einfach sparen und die Fenster frei gestalten, ohne genau auf die Mark zu schauen.
Wir setzen also auf den Sofas und schauen raus, ergo sollten querverlaufende Streben bedacht sein, die aber auch nicht in Augenhöhe entstehen, wenn man nicht sitzt-
Vor allen Dingen, was und wie geöffnet, Schiebetür oder nein etc. fällt uns schwer, da zu viele Optionen möglich wären.
 
H

haydee

Mir gefällt die Fensterfront ohne Balkon gut. Möglichst ganz offen ein Traum. Schöner als ein kleiner Balkon
 
11ant

11ant

Nö, mach´ doch lieber einen sauberen Relaunch, so ist das nicht Fisch und nicht Fleisch: 1. entweder kann man sich den Luftraum leisten oder es fehlt an einem dreiviertel Meter, um in der Treppenachse dieses halbgare "zwei Stufen überbauen, aber für die dritte dann die Schlafzimmer-Bad-Suite an der Treppe den Bauch einziehen lassen" zu vermeiden; 2. auch die Eingangssituation des Hauswirtschaftsraum mit der an die Wand geklatschten Tür und dem in die Küchenzeile vorverschwenkten Laufweg ist mehr Auauau als Eieiei des Kolumbus. Und irgendwie ist auch der "Charme" des Baukörpers als Fake eines Industriekleinhallen-Umbaus nicht so recht der Traum meiner eingeschlafenen Füße. Dreh´ mal den Reduktionsmuspegel ein bißchen runter. So wirkt mir das strukturell zu pseudoskelettbauig. Da ist dann praktisch nicht mehr erheblich, daß mir die Ansichten so schwarz in dunkelstgrau zu unleserlich sind, als daß ich sie noch detailliert reflektieren könnte.
 
Nida35a

Nida35a

@pagoni2020
für meine Wohn- und Hauslogik hast du dich in die falsche Richtung entwickelt. Wenn ich deine Grundrisse einzeln bewerte, erfolgt das Feintuning für mich aus #68. Was stört mich am aktuellen um ihn nicht an Nummer 1 zu sehen
- Leben auf zwei Etagen
- Gast direkt am Wohnbereich und läuft zum WC durch diesen
- Schlafzimmer im Süden
- Gast im Süden, oder hast du 300 Tage Gäste ?
- die große coole Galerie ist weg und damit die Haus- und Raumwirkung.
Es gefällt mir das Riesenfenster zum See, darüber offen und Dreiecksfenster bis unter den Dachfirst.
Ich habe eben einen anderen Geschmack und bin dabei voll auf Funktion und Ergonomie bedacht.
Und von der Ergonomie kneifen mir genau die benannten Punkte, das Haus ist noch nicht fertig
Gruß Nida
 
Zuletzt aktualisiert 20.11.2025
Im Forum Grundrissplanung / Grundstücksplanung gibt es 2535 Themen mit insgesamt 87978 Beiträgen


Ähnliche Themen zu Grundriss HAUS FÜR ZWEI" auf etwa 150qm stellt sich vor
Nr.ErgebnisBeiträge
1Stadtvilla Fensterfront - Viel Luftraum und reisen Fenster! 24
2Unser Grundriss-Entwurf für ein günstiges Haus 348
3Neubau Einfamilienhaus ca.220qm, 2. Entwurf Stadtvilla - Seite 259
4Grundriss erster Entwurf - Meinungen erwünscht - Seite 321
5Einfamilienhaus-Grundriss Entwurf - Seite 223
6Ankleide/Schlafzimmer Problem - Grundrissdiskussion 25
7Entwurf - alle Richtungen bei Neubau vom Einfamilienhaus 91
8Grundriss-Entwurf Stadtvilla Feedback - Seite 213
9Haus-Entwurf Einfamilienhaus - Zukünftig als Zweifamilienhaus trennbar - Seite 572
10Erster Entwurf Grundriss Einfamilienhaus (ca. 200qm) - Bitte um Feedback - Seite 646
11Meinungen zu unserem Grundriss Entwurf erwünscht - Seite 670
12Einfamilienhaus - Meinungen zu unserem Entwurf - Seite 11159
13Verbindung Schlafzimmer / Ankleidezimmer / Bad - Seite 216
14Grundrissplanung / Entwurf Einfamilienhaus Flachdach mit Doppelgarage 87
15Einfamilienhaus mit 190qm - Was hält ihr von dem Entwurf? Feedback? 51
16Einfamilienhaus, ~160m², Bauhausstil; Erster Entwurf nach unseren Wünschen 420
17Erst-Entwurf vom Architekten - Optimierung 28
18Entwurf Einfamilienhaus mit ca. 168m² Feedback - Seite 537
19Bodentiefe Fenster oder Doppelflügeltüre mit franz. Balkon? - Seite 225
20Entwurf für Anbau/Umbau von Einfamilienhaus zu ZFS 17

Oben