Grundriss HAUS FÜR ZWEI" auf etwa 150qm stellt sich vor

4,80 Stern(e) 13 Votes
Zuletzt aktualisiert 20.11.2025
Sie befinden sich auf der Seite 23 der Diskussion zum Thema: Grundriss HAUS FÜR ZWEI" auf etwa 150qm stellt sich vor
>> Zum 1. Beitrag <<

P

pagoni2020

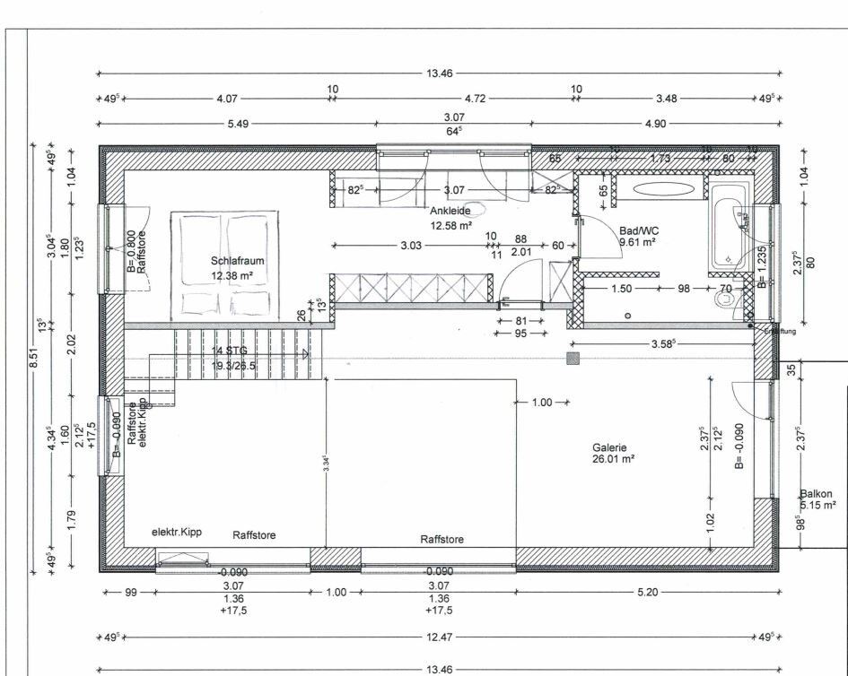
Irgendwie passt die Zeichnung in #105 nicht zur Treppenposition. Kläre uns doch bitte auf :)
Huch....da hatte sich doch nochmal Einiges verändert. Wir haben es so oft gedreht und gewendet.....irgendwann war dann auch klar, dass die Treppe ein Podest bekommt wg.der Funktion oben.

Grundrissplan eines Hauses mit Wohnbereich, Küche und Gästezimmer


Detaillierter Grundriss eines Hauses mit Schlafzimmer, Bad, Galerie und Balkon.
 
D

driver55

Einen Preis gewinnt dieser Grundriss aber nicht. :rolleyes: Auch wenn er nur für 2 ist.
Bekommt dieser „Wohn/Ess/Kochschlauch“ auch Möbel? 12,21 x 4,34 (die letzten 4 m nur mit 3,43). Wäsche quasi durch Wohnen…
 
Y

ypg

Huch....da hatte sich doch nochmal Einiges verändert.
Zum Glück. Die Letzten hätten ja gar keine Kü-Zeile zugelassen, die Gästezimmertür störte im Essbereich bzw der Gast hätte dadurch, oben wäre das Schlafzimmer auch Durchgangszimmer usw. Das Möbelproblem sehe ich auch noch mit dem Sofa und der Treppe, aber letztendlich wollt ihr ja das WZ im OG nutzen. Nicht wahr?
Ich bin gespannt … ich hoffe, ihr seid Weihnachten drin. Oder wie ist der Plan?
 
P

pagoni2020

Zum Glück. Die Letzten hätten ja gar keine Kü-Zeile zugelassen, die Gästezimmertür störte im Essbereich bzw der Gast hätte dadurch, oben wäre das Schlafzimmer auch Durchgangszimmer usw. Das Möbelproblem sehe ich auch noch mit dem Sofa und der Treppe, aber letztendlich wollt ihr ja das WZ im OG nutzen. Nicht wahr?
Ich bin gespannt … ich hoffe, ihr seid Weihnachten drin. Oder wie ist der Plan?
Es ist ja so, dass wir unsere Möbel mitnehmen und diese von den Maßen her dort bereits eingeplant sind, auch die Küche wird 1:1 dort aufgestellt. Das mit dem Möbelproblem/Treppe hatten wir auch Dank konstruktiver Kritik hier auf dem Schirm und haben nun für uns zwei versch. Einrichtungsvarianten, eine sogar ohne Esszimmer. Das mag nicht jeder verstehen aber wir haben wirklich versucht, die Dinge unseren wirklich individuellen Lebensgewohnheiten anzupassen.
Ein festes Wohnzimmer oder auch Esszimmer haben wir nicht sondern eher versch. Inseln für Kaffee hier oder Frühstück da, hinzukommt ein großzügig überdachter Außenbereich, in dem ich sogar im Winter meist das Essen zubereite bzw. grille + brate sowieso.
Wir müssen hier in 14 Tagen raus und wollen keinesfalls zwischenwohnen, zumindest die Möbel sollen dort im Gästezimmer abgestellt werden. Das ist der Mindestanspruch eines eigentlich anderen Planes, der sich durch den Ärger mit dem Bau so aber wohl noch umsetzen lässt. Zwei Zimmer oben bekommen wir wohl noch fertig, danach werden die Bauarbeiter rausgewohnt.
Auf Deine Frage nach dem Grundriss hatte ich gestern Abend zuerst das Gefühl, das nicht mehr öffentlich einzustellen, da mein Tank an Negativerlebnissen mit dem Bau bereits lange voll ist. Ich hatte aber die Diskussionen in meinem Thread als gewinnbringend empfunden und war wirklich dankbar für die auch teilw. klare Kritik VOR der Festlegung. Eben weil ich dafür wirklich dankbar bin und sehr gerne offen diskutiere gehört es sich für mich so, dass ich den weiteren Verlauf dann auch zeige, selbst wenn es mir dann eigentlich bereits zu intim wird. Ich tue es nicht, um etwas herzuzeigen, sondern den seinerzeit beteiligten Usern auch die weitere Entwicklung nicht vorzuenthalten; das ist quasi ein Dankeschön an sie für ihre rege Teilnahme und auch ihre Zeit.
Nach dem Einbau der Treppe sind wir hier mit den Handwerkern, mit denen wir inzwischen eher freundschaftlich bekannt sind, haben wir hier einen schöenen Abend verbracht, der mir die Treppe und das Haus noch oder besser gesagt wieder etwas besser gefallen lässt, nachdem wir großen Ärger zu erleben hatten. Letztendlich kennen wir jetzt bereits einige Ecken und Kanten, die wir hätten anders machen können oder sollen, soviel Klarheit tragen wir schon in unserem Kopf; es ist es aber unserer speziellen Situation geschuldet, warum, wo und wie wir gebaut haben, dass es nun so geworden ist bzw. noch wird.
Wir sind Beide so, dass wir es schaffen, uns an den hier wenigen, positiven Erlebnissen wieder ins Licht zurück bringen können, da braucht es keinen dahergelaufenen Lichtausbläser, er dieses gleich wier auspustet.
@ypg den Grundriss habe ich heute Nacht alleine wegen Deiner Nachfrage eingestellt aus den o.g. Gründen des von mir so verstandenen Anstandes und als Dank für Deine stets klare Meinung, auch wenn mir mein Bauchgefühl sagte, ich solle das lassen...... !!!
 
Zuletzt bearbeitet:
Y

ypg

Vielen Dank! Ist doch alles gut :)
Ich stehe auch zu meinem Grundriss, auch wenn er Krücken hat. Jeder setzt seinen Schwerpunkt und Fokus auf sein Bauchgefühl, was dann keiner in einem Forum nachvollziehen kann.
Muss auch nicht - es geht ja nur um den Gewinn aus einer Diskussion - was man dann daraus macht, ist einem selbst überlassen.
 
Zuletzt aktualisiert 20.11.2025
Im Forum Grundrissplanung / Grundstücksplanung gibt es 2535 Themen mit insgesamt 87978 Beiträgen


Ähnliche Themen zu Grundriss HAUS FÜR ZWEI" auf etwa 150qm stellt sich vor
Nr.ErgebnisBeiträge
1Treppe im Flur, Grundriss steht eigentlich schon :o( 20
2Frage zu Grundriss, insbesondere Treppe 13
3Treppe Grundriss Planung, Auftritt und Unterzug 21
4Platzierung der Möbel im Wohnzimmer im Grundriss 10
5Wie findet ihr unseren Grundriss??? 21
6Grundriss Doppelhaushälfte (7x10) - Euer Know-How ist gefragt - Seite 534
7Grundriss Einfamilienhaus mit Satteldach, 1,5 Geschossig - Verbesserungen? - Seite 9124
8Grundriss Stadtvilla 160qm - Bitte um Tipps! - Seite 10284
9Grundriss Einfamilienhaus OWL ca. 150qm mit Ostgarten - Seite 2175
10Unser Grundriss-Entwurf für ein günstiges Haus - Seite 22348
11Grundriss Neubau Einfamilienhaus optimieren - Seite 646
12Erste Grundriss-Planung Einfamilienhaus 190m2 - Seite 664
13Grundriss MGH 200QM - Bewertung Ideen - Seite 764
14Grundriss 9x11.30m, 4 Personen, 2 Büros 27
15Grundriss Hausentwurf (Zugang an Böschung) - Seite 321
16Grundriss-Verbesserungsvorschläge für Einfamilienhaus an Südhang - Seite 763
17Wie findet ihr diesen Grundriss? - Seite 211
18Grundriss die IV! :-) - Seite 318
19Meinungen zum Grundriss EG 10
20Grundriss über 200qm - Was haltet die Experten davon? 13

Oben