
kbt09
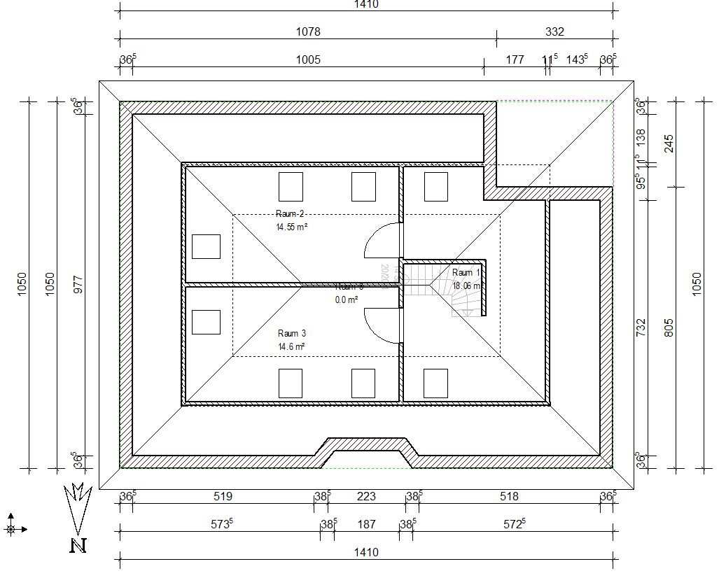
Nee .. oder? Die Treppe muss ja dann an der Ecke Richtung Hauswirtschaftsraum losgehen, damit man unter dem Dach noch mit Stehhöhe ankommt. Damit wird der Raum Gast/Arbeiten im EG dann aber sehr unnutzbar.
Ist fürs Dach wirklich ein Giebel geplant?
Hmm .. ich finde das nicht ausgereift. Jetzt eine Dachluke, die nur eng und schlecht nutzbar ist, also auch ein Loch in der Decke. Und für die Treppe würdet ihr ja auch noch ein Loch vorbereiten - oder?
Die Terrasse .. da stehen dann Stühle oder eine Bank vor dem bodentiefen Fenster zum Wohnzimmer Max. 120 cm breit, da es ja noch in der geschützten Ecke sein soll, man aber auch aus der Esszimmer-Terrassentür noch rauskommen soll.
Wollt ihr diese eingezeichnete freistehende Wanne im Hauptbad? Zum Duschen dann ins andere Bad?
Ist fürs Dach wirklich ein Giebel geplant?
Hmm .. ich finde das nicht ausgereift. Jetzt eine Dachluke, die nur eng und schlecht nutzbar ist, also auch ein Loch in der Decke. Und für die Treppe würdet ihr ja auch noch ein Loch vorbereiten - oder?
Die Terrasse .. da stehen dann Stühle oder eine Bank vor dem bodentiefen Fenster zum Wohnzimmer Max. 120 cm breit, da es ja noch in der geschützten Ecke sein soll, man aber auch aus der Esszimmer-Terrassentür noch rauskommen soll.
Wollt ihr diese eingezeichnete freistehende Wanne im Hauptbad? Zum Duschen dann ins andere Bad?
Mich überzeugt das ganze Konzept nicht, es erscheint mir einiges so unausgegoren und nicht konsequent durchdacht.Was gefällt nicht? Warum?: Hauswirtschaftsraum zu klein, geht aber nicht anders, da wir unsere Küche mitnehmen.