Grundriss 2 Vollgeschosse KFW 55, 136 qm Flachdach

4,90 Stern(e) 9 Votes
Zuletzt aktualisiert 21.11.2025
Sie befinden sich auf der Seite 14 der Diskussion zum Thema: Grundriss 2 Vollgeschosse KFW 55, 136 qm Flachdach
>> Zum 1. Beitrag <<

M

motorradsilke

@ypg @11ant @pagoni2020 @motorradsilke @hampshire Hättet ihr denn konkrete Grundrisse, die ihr uns eher ans Herz legen würdet, weil dort bestimmte Fails einfach nicht gemacht wurden? Ich meine, ihr scheint ja schon viel gesehen zu haben und habt einen kleinen Einblick in unsere Vorstellungen bekommen. Wir sind auch bereits mehrmals umgezogen und konnten uns mit jeder Wohnung arrangieren. Häuser haben wir noch nicht bewohnt. Daher gibts vielleicht ein paar Grundregeln, die manche Grundrisse einfach mitrbingen und auf denen wir aufsetzen können. Würde mich vor dem Reset gerne von euch inspirieren lassen...
Nein, habe ich nicht für 2geschossige Häuser, weil wir einen Bungalow gebaut haben. Ich kann dir nur sagen, wie wir vorgegangen sind:
1. Musterhausgrundrisse ansehen. Da gibt es viele funktionierende Grundrisse, auch wenn sie nicht 100% gefallen.
2. Überlegen, was mir an diesen Grundrissen gefällt und was nicht.
3. Überlegen, was mir wichtig ist. Bei uns gab es einige Dinge, die quasi gesetzt waren, wie großer Eingangsbereich mit genügend Platz zum Anziehen auch für min. 2 Leute gleichzeitig, Kamin, bodentiefe Dusche, Toilette gleich am Eingang, große Fensterfront nach Süden zum Garten, keine Durchgangszimmer, alles so offen wie möglich…
4. Daraus habe ich einen Grundriss erstellt und hier eingestellt. Es gab einige Tipps, die gut waren und die ich dann eingearbeitet habe. Zusätzlich habe ich den Grundriss im Freundes- und Verwandtenkreis zur Diskussion gestellt. Über die Tipps, die ich da bekommen habe, habe ich nachgedacht und teils umgesetzt, teils verworfen, weil sie nicht zu uns passten oder nicht umsetzbar waren.
5. Dann habe ich Wände geschoben, bis uns alles gefallen hat bzw. bis es einen Kompromiss aus Gefallen und Machbarem gab. Z.B. hätte ich unser Bad lieber nach hinten raus gehabt oder den Haupteingang von der Seite. Ging aber nicht mit den anderen Vorgaben.
Daraus ist dann ein Haus geworden, in dem wir uns seit 8 Wochen sehr wohl fühlen.
Unser Hauswirtschaftsraum ist knapp 9 qm gross. Da passt alle Technik gut rein, dazu ein grosses regal, 3 m lang, raumhoch und 60 tief, für Malersachen und Vorräte. Waschmaschine und Trockner nebeneinander mit sich daraus ergebener Arbeitsfläche, und ein Wäschetrockner kann auch noch hingestellt werden, wenn unbedingt nötig. Ich habe aber bei den Installateuren dabei gestanden und darauf geachtet, dass sie nur wirklich an dem für sie geplanten Platz installieren. Aber Deko, Koffer u.ä. würde ich da nicht mehr unter bekommen.
 
Zuletzt bearbeitet:
B

bortel

bin ich hier der einzige, der 2,13m für Fensterhöhren sehr mickrig findet?
Habe mich bei meinen 2,26m schon etwas geägert...
 
M

Mansion

... Bist Du denn noch da @Mansion ?
Guten Morgen, ja noch da, war bloß nicht am Rechner am Wochenende :) Das Gussek Haus Murano kommt unseren Vorstellungen schon sehr nahe. Mit dem dunklen innenliegenden Flur hadere ich da ein bisschen. Das könnte man vllt mit Innenverglasung zu dem Hauswirtschaftsraum lösen.
Dann versuche ich noch, was @11ant zurecht angemerkt hat, zu klären, wie sehr die Höhenunterschiede unsere Planung beeinflussen.
 
W

Würfel*

Im Gegensatz zu den Anderen finde die quer liegende gerade Treppe gut, um das schlauchige Haus (insbesondere den schlauchigen Allraum) zu unterbrechen und Bereiche zu separieren. Gerade wenn du nicht vom Sofa auf den Esstisch und die Küche gucken willst. Die Laufrichtung der Treppe würde ich aber in jedem Fall drehen, um sie im Flur starten zu lassen. Ich glaube auch, dass man mit einer offenen Treppe und Kindern nicht unbedingt glücklich wird. Unter der Treppe würde ich dann Stauraum / Speisekammer machen.

Südseite in der Küche großzügig verglasen ab Arbeitsplatte.

Oben finde ich den Flur auch zu groß und für mich gehören die Kinder nach Süden und die Eltern in den kühlen ruhigen Norden. Deshalb würde ich das da spiegeln.

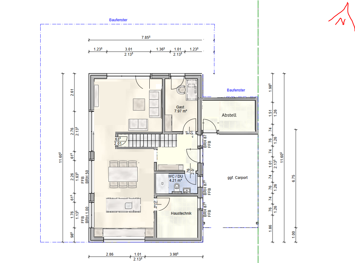
Haus auf jeden Fall nen Meter nach links schieben, sonst hängt dir jeder Postbote am Auto. Dann hinter Stellplatz oder Carport einen 4 m breiten Abstellraum für Dinge, die auch kalt gelagert werden können. Notfalls selbst isolieren und Frostwächter reinhängen.

Und hier eine Idee wie das aussehen könnte:

EG: Haustechnik größer mit normaler Tür, mehr Platz für Garderobe, größere Küche, etc.

Grundriss eines Hauses: Wohnzimmer, Küche, Gastzimmer, Abstellraum, WC/DU, Haustechnik, Carport.


OG: Kinderzimmer größer und in den Süden, Flur zu Gunsten mehr Schrankstellfläche verkleinert, Bad gefälliger. Nur die separierte (aber auch platzfressende) Ankleide wäre weg.


Grundriss eines Hauses mit mehreren Zimmern, Bad, Küche, Treppe und Carport.
 
Zuletzt aktualisiert 21.11.2025
Im Forum Grundrissplanung / Grundstücksplanung gibt es 2535 Themen mit insgesamt 87978 Beiträgen


Ähnliche Themen zu Grundriss 2 Vollgeschosse KFW 55, 136 qm Flachdach
Nr.ErgebnisBeiträge
1 2 Vollgeschosse, Durchgang Garage, Hauswirtschaftsraum unter Treppe - Seite 225
2Einfamilienhaus 130-140 m² Grundriss Planung 173
3Standard-Grundriss für Stadtvilla mit 130qm - Seite 425
4Grundriss Bungalow 160-170qm mit Keller - Seite 16175
5Grundriss Familienhaus in Randlage mit freien Sicht - Seite 22153
6Eure Meinung zum Grundriss für das EG - Seite 528
7Grundriss Einfamilienhaus, ca. 200qm ohne Keller - Einschätzung - Seite 25172
8Wie findet ihr diesen Grundriss? - Seite 211
9Grundriss Stadtvilla / Feedback Statik, Anordnung - Seite 228
10Frage zu Grundriss, insbesondere Treppe 13
11Treppe Grundriss Planung, Auftritt und Unterzug 21
12Grundriss-Planung: Bungalow ~130m² - Seite 758
13Grundriss Einfamilienhaus Satteldach 1 Vollgeschoss 140qm - Seite 245
14Grundriss kein konkretes Einfamilienhaus ca. 200m² mit 2 Wohnungen - Seite 1069
15Grundriss Haus, Verbesserungen / Vorschläge 1,5 geschossig - Seite 322
16Grundriss für 200qm Stadtvilla - Wünsche umsetzbar? - Seite 498
17Wie findet ihr unseren Grundriss??? 21
18Grundriss Entwurf Neubau Einfamilienhaus - Grundstück 610qm - Meinungen erwünscht - Seite 850
19Grundriss MGH 200QM - Bewertung Ideen - Seite 764
20Grundriss Neubau Einfamilienhaus optimieren - Seite 646

Oben