Grundriss Einfamilienhaus, ca. 200qm ohne Keller - Einschätzung

4,70 Stern(e) 3 Votes
Zuletzt aktualisiert 25.11.2025
Sie befinden sich auf der Seite 25 der Diskussion zum Thema: Grundriss Einfamilienhaus, ca. 200qm ohne Keller - Einschätzung
>> Zum 1. Beitrag <<

S

Slammer0909

Hier sind wir wieder dabei, dass ich alles haargenau belegen muss, wieso ich es so haben möchte.

Teilung hin oder her, wir möchten einen Raum, viele nennen es Hauswirtschaftsraum, was auch immer, diesen einen Raum wollen wir als Zwischentrakt zwischen Haus und Garage. Über den kommen wir dann ins Haus, da hängen unsere Jacken etc.
Deshalb sollte es damals bei dir nicht so sein. Zusätzlich wegen der Trennung EG/OG, erstrangig für die Kinder/Familie.

Sollte es mal so kommen, und es wird fremdvermietet, ist das mit dem Partyraum sicherlich blöd. Gut hingegen dann wieder, das ich meine zweite Treppe habe!

Die Küche könnte in das südwestliche Kinderzimmer. Dort sind 4,8 Zimmerbreite vorhanden. Wenn das dann zu klein ist, muss die Partei da ganz einfach mit klarkommen oder fliegt raus!
Aktuell ist meine Küche in unserem 140qm Haus Nichtmal 4,8m lang. Selbst im EG bei unserer jetzigen Planung ist die Küche gerade keine 4,8m lang.
natürlich ist sie dann als L ausgeführt. Ich bin der abschließenden Meinung, dass dann oben 4,8m Küchenzeile ausreichen muss.

Wie gesagt, liegt das bei mir aber auch gar nicht im Focus.
Und trotzdem wollen wir den Hauswirtschaftsraum von der Garage aus begehbar und nur von da aus und vom Flur innen natürlich.

Damit müsste wohl oder übel auch der Architekt klarkommen.
 
S

Slammer0909

Mich würde auch interessieren, wie ihr wohnt? Jeder hat da andere Sichtweisen/Lebensgewohnheiten.
Die kann man anderen aber nicht aufzwingen.

bei ypg kenne ich den Grundriss, aber die anderen nicht. Tut hier vielleicht auch nichts zur Sache, müsst ihr auch nicht preisgeben,wenn ihr nicht wollt.
Aber ich lebe auf dem Dorfe und nicht in der Stadt. Nachteil: längere Wege zur Arbeit, nicht so gute Anbindung etc. Vorteil: Ich kann aufgrund dieser Tatsache etwas größer bauen, weil es die Grundstücke hergeben.

Wenn ich in meinem bzw. auch der älteren Generation Bekanntenkreis mich umschaue, haben viele 200qm. Meine Eltern nur 130 im amerikanischen halbgeschossigen Stil (die Garagen ebenerdig IM Haus, halbe Treppe runter Halbkenner mit Heizung, Abstellraum und Partykeller, halbe Treppe hoch dann das EG, wieder halbe Treppe hoch = Raum über der Garage, in unserem Fall die Kinderzimmer.
Zusätzlich zu den 130qm haben meine Eltern aber den Keller, dann haben sie einen Wintergarten angebaut und den Dachboden ausgebaut.
Klar bin ich da gut groß geworden, aber das zeigt auch, dass eben ohne die Anbau/ und Ausbaudinge der Platz nicht gereicht hätte.

Unsere Nachbarn haben die gespiegelte Doppelhaushälfte mit 140qm. 2 Kinder, 2 Katzen, 1 Hund. Das Ding ist rappelvoll. Wäsche wird auch dem Flur getrocknet, Hauswirtschaftsraum bis unters Dach mit Regalen voll, jede Ecke voll ausgenutzt. Klar geht das auch, aber ICH möchte es eben nicht so haben.

Schwiegereltern (bzw. Vater) haben 163qm, aber voll unterkellert mit Waschraum, Partyraum, WC, + 2 Extraräume.

Und so geht das weiter.

Klar ist, meine 20qm Flur sind irgendwie verschwenderisch. Wobei es ja im neusten Entwurf nur noch 17-18qm sind.
20qm Hauswirtschaftsraum lässt sich drüber streiten. Würden wohl auch 15 reichen, aber was solls.

Wohnzimmer finde ich grenzwertig klein, gerade die Länge von nur 6-max7m stört mich etwas.

Den Rest finde ich voll oK. OG Flur ist einerseits verschwenderisch, andererseits verschwendet die Treppe oder eine etwaige Galerie keinen Platz. Ich setze den Platz lieber direkt für die Räume um.

Der neuere Entwurf mit Eingang im Westen bietet weniger Flur unten, gleichen Flur oben, größeres WC unten, Rest nahezu unverändert. ach ja , der Hauswirtschaftsraum ist kleiner, das dürfte aber keinen Einwand mit sich bringen.
Die exakte Position der Fenster gilt es dann natürlich auch noch zu finden, damit es vom Süden und Westen her ansprechend aussieht.
Die Ostseite ist eh nicht zu sehen, soll aber natürlich auch vernünftig aussehen.

Ich denke, das funktioniert auch. Links Westen das Badezimmerfenster. Dann Haustürelement mit schmalen Fensterelementen am Rand, dann evtl. Doppelfenster Küche.
Im OG dann Kinderzimmerfenster über Doppelfenster der Küche, Bad OG über Eingangsbereich , Waschraum oben wird leider ein Problem...
Eine Ansicht hatte ich ja bereits mal hier gezeigt.Davon ausgehend kann man sich die Veränderungen ja vorstellen.
 
kbt09

kbt09

Slammer, du liest immer nur das, was du willst.

Es ist schon ein Unterschied für die Planung, ob dieser Raum dann im Trennungsfall nur von einer EG-Partei nutzbar sein soll .. denn dann muss man den Rest so planen, dass dies eingehalten wird. Und Ziel ist ja, sich mal von vorgegebenen Raumaufteilungen zu lösen. Und das war deine bisherige Aussage .. und dann schlägst du hier auf und sagst, "die obere Partei kann doch die Küche im EG mit nutzen" .. und da fragt man sich, welche der vielen Wünsche/Voraussetzungen etc. denn welche Priorität hat.

Ich bin ja kein Fan davon, wenn man sich ein großzügiges Haus plant, da im Hinterkopf schon eine Teilung im Sinn zu haben. Und, da würden halt auch evtl. ein paar andere Optionen frei werden.
 
S

Slammer0909

Naja die Treppe in Haustürnähe ist das einzige, was sicherheitshalber vorgesehen sein müsste grob gesagt.

Der Raum, über den wir ins Haus gehen, soll nur für EG sein. Das wäre da die Marschrichtung. Weil soll ich mir bei einer evtl Vermietung den Hauswirtschaftsraum mit den anderen teilen? Sicherlich nicht.
Macht also so oder so Sinn, in meinem Augen.

So nun zum dritten Entwurf.

Finde ich auf eine Art nicht schlecht, aber kann ich aus div. Gesichtspunkten nicht besser leben, als mit meinen Entwürfen.
Treppe könnte man 90° drehen und direkt an die Haustür. Die Garderobe entsprechend etwas nach Rechts.
Problem ist nur, so ich die Garage zu klein. Und wenn sie größer wird, rutscht zwangsweise die Haustür nach unten, was mit dem Bad kollidiert.
Auf diese essenzielle Sache wie den Garagenwerkraum (oder entsprechend viel Platz vor den Autos) möchte ich aber nicht zu Gunsten einer mittigen Haustür im Norden verzichten.

Das ist so und ich weiß ja, das du mir da sicherlich auch nicht böse bist und nicht jeden Wort so hart aufgefasst wird.
Wohnen/Essen/Küche über L, finde ich gut.
Bei mir kann ich allerdings von der Küche in den Garten bzw. auf die Terrasse (laufen und schauen). Hier würde ich nur auf die Küche schauen können. Klar geht das, finde ich bei mir aber besser.

Im Wohnzimmer stehe ich auf eine große Wohnwand/Hifiwand oder auch auf einen TV an der Wand hängend. Jedenfalls sollen daneben noch meinen großen Standlautsprecher und mein Subwoofer passen. Ebenfalls eine herabfahrbare Leinwand wäre gut, wie ich finde.

Ich bin kein Fan von "den TV in irgendeine Ecke stellen", wo er halt hinpasst.
Bei Schwiegereltern blickt man über den TV direkt auf die Terrasse, also als wäre bei mir TV Wand und Sofa gespiegelt.
TV steht so leicht schräg im Raum, darum Blumen und Dekokrams.
Allerdings wäre das nichts für mich. Dafür verzichte ich ja sozusagen sogar auf den Blick vom Sofa aus zum Garten raus.
Manch einer könnte es jetzt wieder entkräften, dass es von da ja mehr Sinn macht als aus der Küche, aber jetzt habt ihr auch dazu meine Meinung.
Wenn ich Sofa + Blick auf Garten brauche, setze ich mich an die Ostwand (von innen natürlich ) und schaue links zum Garten, gerade auch über Esstisch in die Küche und wenn mich die Nachrichten parallel interessieren kurz nach rechts.
Also wieder alle Optionen offen.

Mir ist klar, dass, wenn die Treppe weiter innen sein könnte, das wesentlich mehr Handlungsspielraum schafft. Auch ist die Treppe dann nicht im sogenannten "Schmutzbereich".

Aber ich möchte mir das gerne offen halten, wenn ich so ein großes Haus baue. Viele Wände kann man ändern, eine Treppe nur schwer.

Sollte mich ein Entwurf umhauen, und die Treppe kann nicht am Eingang sein, stimmt mich das evtl. um. Aber ich selbst habe es bisher nicht geschafft.

Es gibt viele schöne Grundrisse, wenn diese auf meine Gegebenheiten umgebaut werden müssen ,sehen diese allerdings anders aus!

PS: den Grundriss muss ich aber noch im Detail ansehen, bin noch nicht lange zu hause.
 
nathi

nathi

In der letzten Generation hat man groß gebaut, ja. Allerdings war das vor der ersten Ölkrise, Heizkosten spielten keine Rolle, man brauchte nicht zu dämmen und so war der qm billig.
Das Thema ist ja hier noch gar nicht angesprochen worden, oder? Soll der Partyraum in der thermischen Hülle liegen? Die Garage ja vermutlich nicht, also müsste in dem Fall entsprechend gedämmt werden und natürlich eine entsprechende Tür dazwischen sitzen.
 
kbt09

kbt09

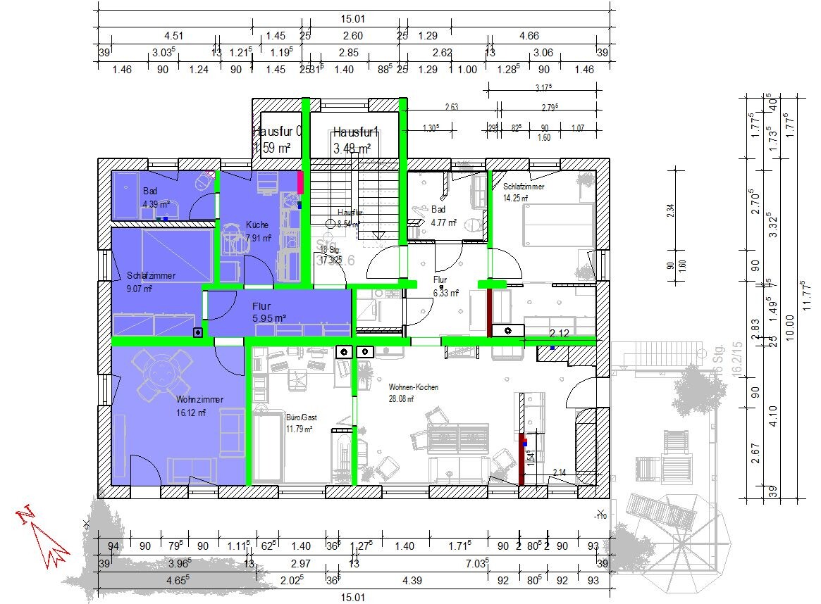
Ich lebe allein in einer 66qm Wohnung und arbeite von zuhause. Die Wohnung bietet kombiniertes Gäste/Arbeits/Bügelzimmer alles mit schön verstecktem Stauraum, Schlafzimmer mit Schrankzimmer (gut 300 cm Schrank), "großem" (28 qm) Wohn/Ess/Kochzimmer, kleines Bad mit großer bodenebener Dusche und kleiner Abstellkammer für Wäsche, Vorräte, Staubsauger. Flur mit ausreichend Platz für "meine" 2 bis 3 abwechselnd genutzten Saisonjacken, großem Schuhschrank und zur Begrüßung der Gäste. Dazu eine große 24 qm Terrasse .. eher Balkon, weil am Hang wohnend, dadrunter meine Garage

Es handelt sich um einen renovierten Altbau, den ich zur Miete bewohne und der nach meinen Wünschen renoviert worden ist.

Grundriss:

Grundriss eines Hauses mit farbig markierten Räumen: Küche, Wohnzimmer, Schlafzimmer, Flur.
 
Zuletzt aktualisiert 25.11.2025
Im Forum Grundrissplanung / Grundstücksplanung gibt es 2536 Themen mit insgesamt 88016 Beiträgen


Ähnliche Themen zu Grundriss Einfamilienhaus, ca. 200qm ohne Keller - Einschätzung
Nr.ErgebnisBeiträge
1 2 Vollgeschosse, Durchgang Garage, Hauswirtschaftsraum unter Treppe 25
2Grundriss-Entwurf Stadtvilla mit Doppelgarage - Seite 238
3Hausbau 2.0 - erster Grundriss-Entwurf - Seite 13155
4Entwurf Grundriss Einfamilienhaus (als Zweifamilienhaus im Alter möglich) in Hanglage - Seite 753
5Grundriss Entwurf Neubau Einfamilienhaus - Grundstück 610qm - Meinungen erwünscht - Seite 850
6Unser Grundriss-Entwurf, eure Meinungen 20
7Entwurf Einfamilienhaus mit Garage/Carport - bitte um Bewertung 22
8Grundriss-Entwurf: Einfamilienhaus mit Keller; 560qm Grundstück - Seite 765
9Grundriss Stadtvilla 150 m2- Eure Meinung ist gefragt :-) 45
10Grundriss kein konkretes Einfamilienhaus ca. 200m² mit 2 Wohnungen - Seite 1269
11Grundriss Einfamilienhaus 240 m² mit teilüberbauter Garage - Seite 296
12Bitte schaut kritisch über unseren Grundriss-Entwurf 13
13Grundriss Einfamilienhaus (ca. 170 qm) mit Garage - Hanglage 35
14Grundriss 140 m2 Einfamilienhaus mit Garage - Hausausrichtung ok? - Seite 218
15Grundriss-Entwurf: Einfamilienhaus mit 4 Schlafzimmern und Büro, 160qm - Seite 1482
16Grundriss mit Garage auf Grundstück realisierbar? - Seite 329
17Grundriss-Entwurf für Einfamilienhaus 135 qm - Ideen und Ratschläge gesucht 29
18Bungalow mit 140qm und Garage im Grundriss 13
19Grundriss erster Entwurf - Meinungen erwünscht 21
20Wie findet ihr diesen Grundriss? - Seite 211

Oben