Grundriss Neubau Einfamilienhaus optimieren

4,80 Stern(e) 4 Votes
Zuletzt aktualisiert 20.11.2025
Sie befinden sich auf der Seite 6 der Diskussion zum Thema: Grundriss Neubau Einfamilienhaus optimieren
>> Zum 1. Beitrag <<

H

hausvoraus

Anbei der neu geplante Grundriss, diesmal ohne Vorlage geplant und auf 3 Etagen. Änderungen u.a.:
  • Diele etwas kleiner
  • Treppe nicht mehr im Weg
  • Kochinsel ist größer/tiefer (wurde allerdings zur "Kochhalbinsel")
  • Kinderzimmer etwas besser geschnitten
  • Treppenmaße sind jetzt bekannt und stehen dran
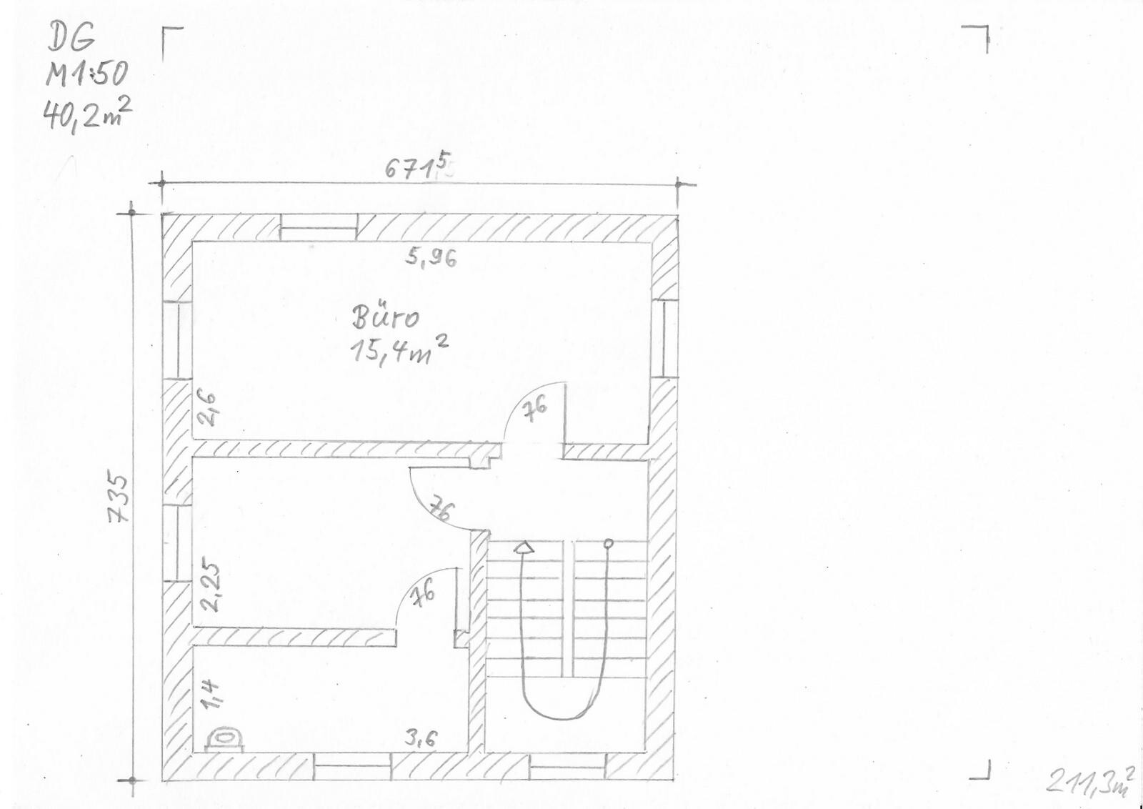
  • 3. Etage mit Büro, Abstellkammer und "Kreativraum" mit Waschbecken
Alle Türen sind 88 cm breit, außer bei den gekennzeichneten mit 76 cm. Geblieben sind u.a.:
  • Bauhaus-Stil mit Flachdach
  • Wanddicke außen 36,5 cm und innen 17,5 cm (nach der Statik-Berechnung später werden sicherlich einige Innenwände ca. 24 cm werden)
  • Nasszellen übereinander
  • möbel im Wohnbereich nicht optimal eingezeichnet (aber das ist momentan egal)
Was meint Ihr nun?

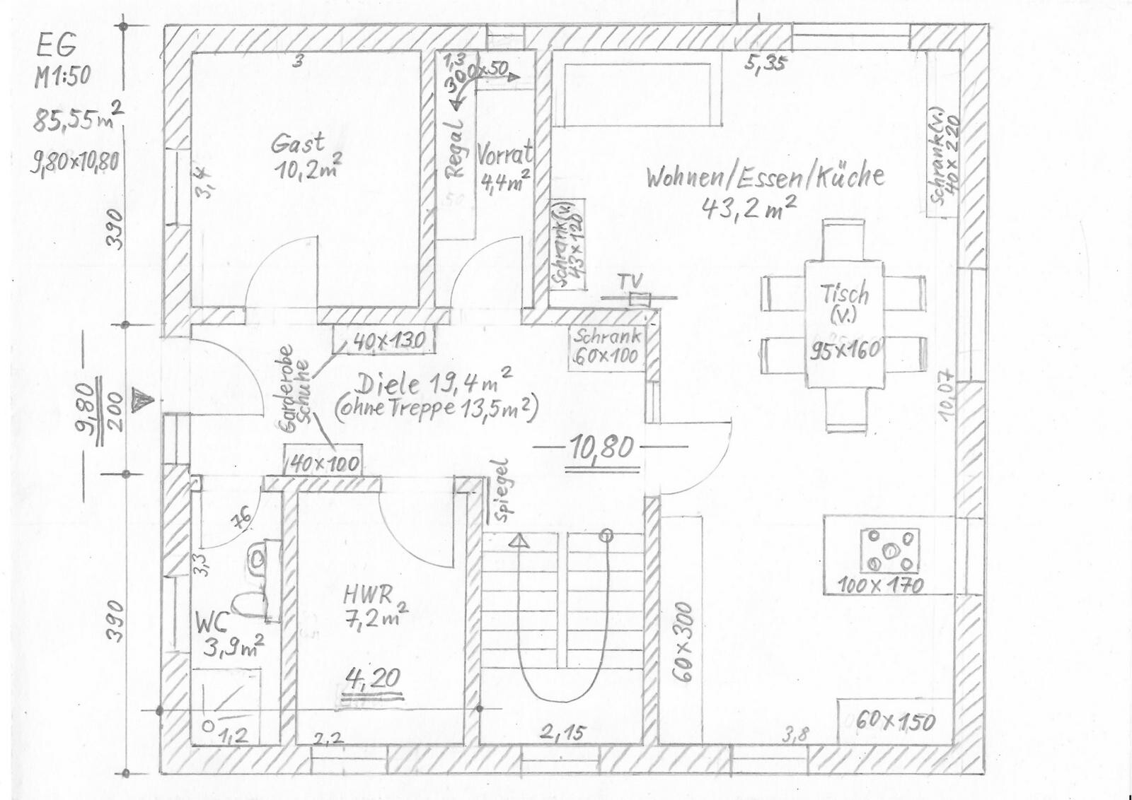
Grundriss eines Hauses mit Gästezimmer, Diele, HWR, WC, Vorrat, Küche und Esstisch.


Grundriss: Eltern links, Kind 1-3 rechts, Bad, Galerie und Treppe im Zentrum.


Handgezeichneter Dachgeschoss-Grundriss: Büro 15,4 m², Flur, Treppenhaus, Türen, Maße.
 
H

hausvoraus

Erläutere mal die Entstehung des neuen Planes.
Die Anforderungen waren die gleichen wie beim letzten (3 Kinderzimmer, 1 Arbeitszimmer, 1 Gästezimmer, ...) plus der Input aus dem Forum. Bloß diesmal haben wir keinen Grundriss als möglichst passende Basis gesucht, sondern haben bei 0 angefangen (mit einigen "Best Practices" aus dem letzten Entwurf im Hinterkopf). Zur Treppe haben wir uns ganz genau informiert (welche Steighöhe ist fürs Alter noch OK etc.). Zum Schluss den Grundriss noch verkleinert, soweit es geht, um Baukosten zu sparen.
 
E

Elokine

Treppe und 1. OG sind besser geworden.
Das EG wirkt aber, als seien alle Wünsche auf Biegen und Brechen reingequetscht.
Für 5 Personen ist der Sofabereich sehr klein und in die Ecke gequetscht.
Man könnte Küche und TV Bereich tauschen. Zugang So
Speis über Küche, dann hättet ihr auch mehr Garderobenfläche im Flur.
 
H

hampshire

Mit einem Satteldach würden sich folgende Optionen auftun:
  • Etwas Stauraum über Schlafzimmer, Bad und Gallerie, Zugang über klassische Klappe mit ausziehbarer Leiter.
  • Schlafemporen für die Kinder - besonders nett z.B. ein Einzelbett über dem "Schlaucheingang"
    • Mehr Platz für Spiel und Schreibtisch auf gleicher Fläche
Die Dusche im EG lieber von Wand zu Wand ausführen, abschüssig Fliesen und bodengleichen Einlauf über die gesamte Breite einsetzen. Tür vom Glasre ist preiswerter als Türe vom Badhersteller.

Verzicht auf die Symmetrie von außen bietet Dir die Möglichkeit das Fenster in der Küche dahin zu versetzen wie es die optimale Küche zulässt.

Die Symmetrie der Hausfront führt entweder zu einem zu kleinen Fenster im Gästezimmer oder zu einem zu großen Fenster im Gäste-WC. Auch hier lieber von innen nach draußen denken.

Es scheint, dass das Sofa nur dm TV-Genuss dient. Dieser Bereich ist ungesellig. Kein Problem wenn das Leben am Esstisch stattfindet. Wir haben auch keinen Couchbereich, der für Gäste mit nutzbar wäre, sitzen entweder am Esstisch oder "loungen" auf der Terrasse.

Ein über die Wand hinausragendes TV Gerät wird zum "Stein des Anstoßes". Lösbar mit einem Falt-Schwenkarm. Bleibt aber alltagsunpraktisch.

Die Anordnung der Möbel im Flur erinnert mich an diese Computerspiele, bei denen man Hindernissen ausweichen muss. Kann aber sehr gut aussehen.

Die Kinderzimmer sehen aus wie zuletzt eingezeichnet. Vielleicht kommt neue Kreativität aus, wenn die zuerst ins OG gezeichnet werden.

Einen Raum in den Keller zu tun ist eine gute Maßnahme. Könnte auch der Gast sein - vermutlich sind die seltener da als man zu Hause arbeitet.

Sympathische Anfrage und Zeichnung.


PS: Bin ich eigentlich die einzige Person hier, die immer bei den sogenannten "Villen" mit 10 x 8 m² Grundfläche schmunzeln muss? Dann lebte ich selbst in einer Villa, auch wenn ich diese nie so titulieren würde.
Ich schmunzele mit - das ist ein Marketing Euphemismus.
Bauhaus-Stil mit Flachdach
eckeig ist noch lange nicht Bauhaus.
 
Zuletzt aktualisiert 20.11.2025
Im Forum Grundrissplanung / Grundstücksplanung gibt es 2535 Themen mit insgesamt 87977 Beiträgen


Ähnliche Themen zu Grundriss Neubau Einfamilienhaus optimieren
Nr.ErgebnisBeiträge
1Grundriss von Architekten für Einfamilienhaus 240m2 Bauhaus - Seite 335
2Grundriss Satteldachhaus 172 qm - Bitte um eure Meinungen 23
3Meinungen zum Grundriss EG - Seite 210
4Grundriss Doppelhaushälfte mit Gästezimmer 53
5Grundriss Einfamilienhaus ohne Keller, 3 Kinderzimmer und Büro 18
6Grundriss die IV! :-) - Seite 318
7Grundriss 2 Vollgeschosse KFW 55, 136 qm Flachdach 94
8Grundriss Einfamilienhaus mit Keller, 150qm, nur eingeschossig erlaubt - Seite 3115
9Standard-Grundriss für Stadtvilla mit 130qm - Seite 425
10Unser anvisierter Grundriss - bitte um Einschätzungen 67
11Grundriss - Anregungen & Kritik erwünscht! - Seite 326
12Grundriss: Kritisches Feedback sehr erwünscht :) 36
13Bitte Meinungen zum Altbau-Grundriss 19
14Bungalow Grundriss ~16x9.5m ( außen ) in 1000m² mit Altbestand - Seite 9102
15Grundriss Einfamilienhaus Satteldach 1 Vollgeschoss 140qm - Seite 245
16Unser Grundriss-Entwurf für ein günstiges Haus - Seite 32348
17Grundriss: Doppelhaushälfte 8x12m Meinungen und kreative Ideen erwünscht :-) - Seite 4123
18Grundriss-Optimierung | Doppelhaushälfte am Hang mit 192m² Wohnfläche - Seite 1287
19Grundriss für 200qm Stadtvilla - Wünsche umsetzbar? - Seite 1298
20Grundriss Bungalow Meinungen 31

Oben