Grundriss Einfamilienhaus Satteldach 1 Vollgeschoss 140qm

4,00 Stern(e) 7 Votes
Zuletzt aktualisiert 19.11.2025
Sie befinden sich auf der Seite 2 der Diskussion zum Thema: Grundriss Einfamilienhaus Satteldach 1 Vollgeschoss 140qm
>> Zum 1. Beitrag <<

D

dumdidum!

@NatureSys Nein, ist mit Satteldach, aber etwas erhöhtem Drempel. Die 2m Linie ist zumindest bei einem der Grundrisse auch angegeben.

Ich würde das gerne oben editieren aber leider ist das nicht mehr möglich.
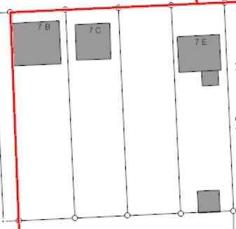
Daher füge ich hier die Lage des Grundstücks in Nord/Süd Ausrichtung sowie ein Querschnitt zum besseren Verständnis noch mal an.

Grundrissplan mit roter Umrandung und beschrifteten Bereichen 7B 7C 7E


Querschnitt eines Einfamilienhauses mit Dachstuhl, Innenaufteilung und Maßangaben
 
N

NatureSys

Wenn auf mehr als 2/3 des Obergeschosses die Deckenhöhe 2,30 Meter beträgt müsste es in Sachsen-Anhalt als Vollgeschoss gelten. Das müsste bei euch der Fall sein.
 
H

haydee

Kannst du mal bitte einen Lageplan einstellen und den Plan mit nordpfeil versehen

Zum Grundriss
Ich finde das Haus zu klein für eine gerade Treppe
Gerade im OG ist der Flur groß im Vergleich zum Kinderzimmer und Büro

Zeichnet eure vorhanden bzw. Gewünschten Möbel im Maßstab ein.

Eg

Große Diele, schöne Garderobe fehlt.
Die Küche könnte mehr Stauraum bieten, ohne Halbinsel (die recht klein ist) und ohne Essplatz der 3 Schritte vom Esstisch entfernt ist.

Hauswirtschaftsraum recht klein. Ihr habt dort alle Hausanschlüsse, Haustechnik und Hauswirtschaft untergebracht. Stauraum für Schmutzwäsche, Getränkekisten und Sporttasche fehlt

Wollt ihr wirklich eine Schiebetüre mit dem Sofa verstellen?

Ist es richtig das ihr ohne Kamin plant?

OG
Der Elternteil zum Schlafen ist so groß wie Flur und Kind zusammen
Kind schläft, spielt, lernt und trifft Freunde in seinem Zimmer

Das Bad ist unglücklich geplant
Tür auf und man läuft gegen die Dusche. Die Waschbecken die häufig genutzt werden sind versteckt
 
D

dumdidum!

Wenn auf mehr als 2/3 des Obergeschosses die Deckenhöhe 2,30 Meter beträgt müsste es in Sachsen-Anhalt als Vollgeschoss gelten. Das müsste bei euch der Fall sein.
Der Planer meinte, das geht so durch. Die sind hier auch nicht so auf Krawall gebürstet und geringfügige Änderungen werden auch genehmigt. Wir waren auch schon bei der zuständigen Behörde und haben uns das absegnen lassen.
 
Y

ypg

Zum Grundriss:

Mir fehlt da völlig die Westausrichtung: wenn man das Haus in Höhe des linken Nachbarn baut, hat man die Westseite frei von „Riesenkloppern“. Da würd ich mal ordentliche Fenster einbauen, um die Westsonne hereinzulassen.
offene Küche, Kochinsel = offen
Fehlt. Die eine Küche ist zu klein für eine Insel, die andere hat jetzt für eine Inselküche auch keine Traummasze.

Es fehlt noch eine ordentliche Garderobe, wo Ihr alle Jacken der Saisons und Schuhe verstauen könnt.

Grundsätzlich ist der Grundriss ja ein sehr gängiger, der oft gebaut wird.
Typisch eben ohne Garderobenschrank, kleines Kinderzimmer, großes Schlafzimmer.
Das Bad ist ok, aber würde ich anders möblieren.
Ich seh hier auch das Problem der Geraden Treppe. Sie zu überbauen ist nicht klug, da sie recht steil ausfallen wird. Eine Stufe fehlt.
Ein Abstellraum tut dem OG gut.
Ich würde wohl etwas länger (und schmaler) bauen und den Eingang seitlich. Wohn, Ess und Kü in einer Reihe auf die Westseite. Aber muss ja nicht

Gibt es ein Baufenster?
 
Zuletzt aktualisiert 19.11.2025
Im Forum Grundrissplanung / Grundstücksplanung gibt es 2536 Themen mit insgesamt 87971 Beiträgen


Ähnliche Themen zu Grundriss Einfamilienhaus Satteldach 1 Vollgeschoss 140qm
Nr.ErgebnisBeiträge
1Grundriss Einfamilienhaus ohne Keller, 3 Kinderzimmer und Büro 18
2Meinungen zum Grundriss EG 10
3Grundriss Einfamilienhaus 155m², ohne Keller, 3 Kinderzimmer, 1 Büro 38
4Wie findet ihr diesen Grundriss? - Seite 211
5Bungalow120 Meinung Tipps Grundriss 20
6Standard-Grundriss für Stadtvilla mit 130qm - Seite 425
7Grundriss - Anregungen & Kritik erwünscht! - Seite 326
8Stadtvilla mit gerader Treppe, offene moderne Bauweise, 140m² 18
9Grundrissplanung Einfamilienhaus (Stadtvilla) ca.140m² (3 Kinderzimmer) 42
10Bitte Meinungen zum Altbau-Grundriss 19
11Stadtvilla Grundriss - Änderungsvorschläge? 192
12alternativer Grundriss Bungalow 140m² 84
13Grundriss-Optimierung | Doppelhaushälfte am Hang mit 192m² Wohnfläche - Seite 1287
14Grundriss Neubau Einfamilienhaus optimieren - Seite 646
15Entwurf Grundriss Einfamilienhaus (als Zweifamilienhaus im Alter möglich) in Hanglage - Seite 753
16Grundriss-Planung Stadtvilla - Katalog-Grundriss Inspiration - Seite 478
17Planungsphase Grundriss Einfamilienhaus - Seite 315
18Grundriss-Planung, 2 Vollgeschosse, ca. 130-140 qm ohne Keller - Seite 22192
19Frage zu Grundriss, insbesondere Treppe 13
20Treppe Grundriss Planung, Auftritt und Unterzug 21

Oben