Stadtvilla Grundriss 185m² - Bitte um Feedback!

4,40 Stern(e) 7 Votes
Zuletzt aktualisiert 23.11.2025
Sie befinden sich auf der Seite 19 der Diskussion zum Thema: Stadtvilla Grundriss 185m² - Bitte um Feedback!
>> Zum 1. Beitrag <<

A

ALLuki83

Es ging mir darum, dass Ihr Euch mehr Gedanken zur Lage der Zimmer machen solltet (Himmelsrichtungen). Kann aber auch sein, dass Du uns nur die Infos nicht gegeben hast (s. Fragebogen) und wir hier sinnlos rumrätseln.

Balkon muss nicht sein. Wenn er so teuer ist, schon gar nicht.

UPS. Nicht jetzt schon durchdrehen.
Fragebogen ausfüllen wäre super. Sonderwünsche auflisten. Dann spielen wir mit Dir ein paar Varianten durch oder schauen nach passenden Vorlagen.
Sehr gern! mache ich!!!
 
A

ALLuki83

Bebauungsplan/Einschränkungen
Größe des Grundstücks: 517 m²
kein Hang
Randbebauung: Einfamilienhaus, alte Siedlung, Lückenbebauung

Anforderungen der Bauherren
Stilrichtung: modern
Dachform: Walmdach
Gebäudetyp: Stadtvilla
kein Keller
2 Vollgeschosse
Anzahl der Personen: 4, Alter: 35, 37, 13 und 6
Raumbedarf im EG: Wohnzimmer + Gästezimmer
OG: 2 Kinderzimmer, ein Schlafzimmer, eine Ankleide und Abstellraum
Büro: Familiennutzung
Schlafgäste pro Jahr: maximal 2
moderne Bauweise
offene Küche: ja, Kochinsel: ja
Anzahl Essplätze: in der Küche 4, im WZ: 8
Kamin: ja (Panoramakamin)
Musik: E-Klavier
Balkon nein, Dachterrasse nein
1 Garage 4,5 m breit oder Carport und Abstellraum
Nutzgarten evtl., Treibhaus nein
weitere Wünsche: Speisekammer in der Küche (für Gefrierfach + Regale + kleine Abstellfläche), Garderobe im Flur, Gäste-WC mit Dusche, Eingangsbereich geräumig, gefangene Ankleide als begehbarer Schrank evtl. mit Tageslicht und/oder eine Garderobe mit Durchgang ins Bad
Besonderheiten: Betontreppe, Wäscheschacht, Waschbecken im HAR, freistehende Badewanne
Schlafzimmer mit Fenster Richtung Osten
1 Kinderzimmer Richtung Straße (nicht zwangsläufig)


Hausentwurf
Von wem stammt die Planung:
Eigenentwurf, entstanden aus Anpassung eines Entwurfes aus Internet
Was gefällt besonders: Kamin als Raumteiler, große Fenster, L-Form des Hauses,
Was gefällt nicht? Flur sehr eng

favorisierte Heiztechnik: Gas mit Solar + zentrale Lüftungsanlage mit Wärmerückgewinnung
 
Zuletzt bearbeitet:
A

ALLuki83


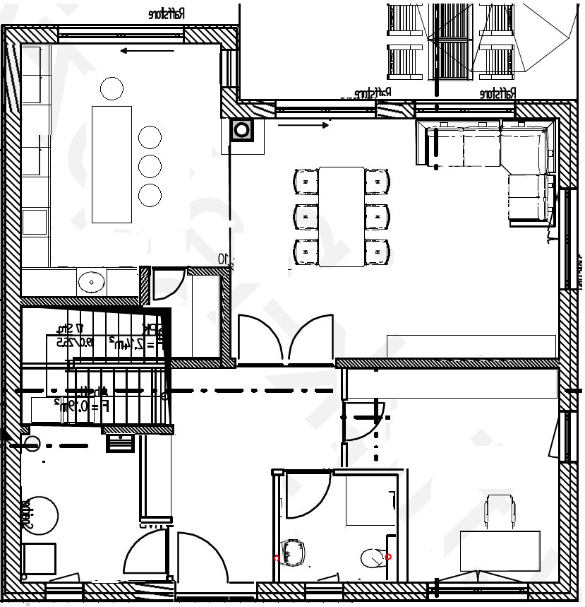
Grundriss eines Hauses: Küche mit Esstisch links, zentraler Essbereich, rechts Wohnzimmer und Flur.

Habe versucht, im Paint zu arbeiten. Ich kann noch keine Möbeln skizzieren, wir werden alles neu kaufen.
 
11ant

11ant

Ich kann noch keine Möbeln skizzieren, wir werden alles neu kaufen.
2. ist das im Budget berücksichtigt ?
1. aber Du kannst feststellen, wie groß der Tisch im Mustergrundriss ist. Diese Fläche klebst Du mal mit Malerkrepp auf Deinem tatsächlichen Tisch ab. Und dann schaust Du beim nächsten Mittag mal nach, wo keine Teller, Töpfe oder Gläser hinpassen würden, wenn Euer Tisch so klein wäre wie eingezeichnet. Ich erwarte, daß man den Knall des Lerneffekts bis ins Forum wird hören können
 
Zuletzt aktualisiert 23.11.2025
Im Forum Grundrissplanung / Grundstücksplanung gibt es 2535 Themen mit insgesamt 87992 Beiträgen


Ähnliche Themen zu Stadtvilla Grundriss 185m² - Bitte um Feedback!
Nr.ErgebnisBeiträge
1Bitte um Meinung zum Grundriss 12
2Fenster / Türen / Garderobe 13
3Grundriss Zugang von Küche in Speis / Abstellraum - Seite 329
4Größe vom Schlafzimmer und Kinderzimmer - Seite 338
5Kinderzimmer und Schlafzimmer - Welche Größe ist zu empfehlen? - Seite 256
6Grundrissplanung Hanghaus mit 5 Kinderzimmer - Seite 26370
7Grundriss Neubau Einfamilienhaus: Fenster/Türen/Innenwände Größe/Anordnung ok? - Seite 220
8Neubau einer ca. 8x11 Doppelhaushälfte, Einschätzung Grundriss und Fenster - Seite 235
9Grundriss Bungalow 150qm geschlossene Küche, überdachte Terrasse 40
10Einfamilienhaus ~190qm, drei Kinderzimmer, ohne Keller - Feedback wäre mega - Seite 219
11Neubau Einfamilienhaus 160-170qm, 3 Kinderzimmer 39
12OG Stadtville optimieren. Fenster Bodentief - Seite 13104
13Flur-Grundriss vergrößern REH von 1921: Tipps? - Seite 227
14 Küchenplanung mit tiefen Fenster - Seite 643
15Grundriss Einfamilienhaus geplant, Fenster gefallen uns - Seite 343
16Grundriss-Aufteilung OG - Elternbereich / 2 Kinderzimmer mit Bad 26
17Fliesen oder Vinyl in Küche und Flur 19
18Küche und Abstellraum Etagenwohnung Grundriss optimieren 34
19Umbau Kinderzimmer - Fenster in zwei Fenster aufteilen? 20
20Schallschutztür Schlafzimmer / Kinderzimmer 23

Oben