ᐅ Stadtvilla Grundriss 185m² - Bitte um Feedback!
Erstellt am: 21.05.19 09:41
Hallo in die Runde!
Ich würde gern eure Meinungen zu unserem langerarbeiteten Grundriss hören und deshalb erstelle ich kurz vor dem Bauantrag einen neuen Thread mit der aktuellen Planung unseres Einfamilienhauses.
Das sind die Vorabzüge für den Bauantrag und ich habe die letzte Chance, noch mal drüber zu schauen und auf Unpässlichkeiten hinzuweisen.
Eigentlich passt alles (für uns), aber vor der Feinplanung ist noch etwas Luft und evtl. könnte der Grundriss noch angepasst werden.
Für eure Hinweise, Ideen, Kritikpunkte wäre ich sehr dankbar!
Gruß aus Leipzig!



Ich würde gern eure Meinungen zu unserem langerarbeiteten Grundriss hören und deshalb erstelle ich kurz vor dem Bauantrag einen neuen Thread mit der aktuellen Planung unseres Einfamilienhauses.
Das sind die Vorabzüge für den Bauantrag und ich habe die letzte Chance, noch mal drüber zu schauen und auf Unpässlichkeiten hinzuweisen.
Eigentlich passt alles (für uns), aber vor der Feinplanung ist noch etwas Luft und evtl. könnte der Grundriss noch angepasst werden.
Für eure Hinweise, Ideen, Kritikpunkte wäre ich sehr dankbar!
Gruß aus Leipzig!
Hallo,
Könntest du bitte den Fragebogen ausfüllen? So fehlen wichtige Informationen. https://www.hausbau-forum.de/threads/grundrissplanung-unbedingt-vor-Beitrag-Erstellung-lesen.11714/
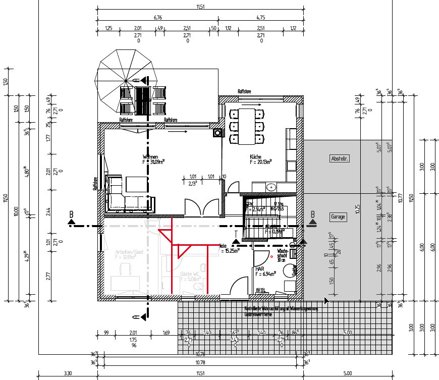
Ich hatte erst vermutet, dass ihr mit Keller baut. Aber ist das unter der Treppe die Waschmaschine? Scheint mir alles etwas eng.
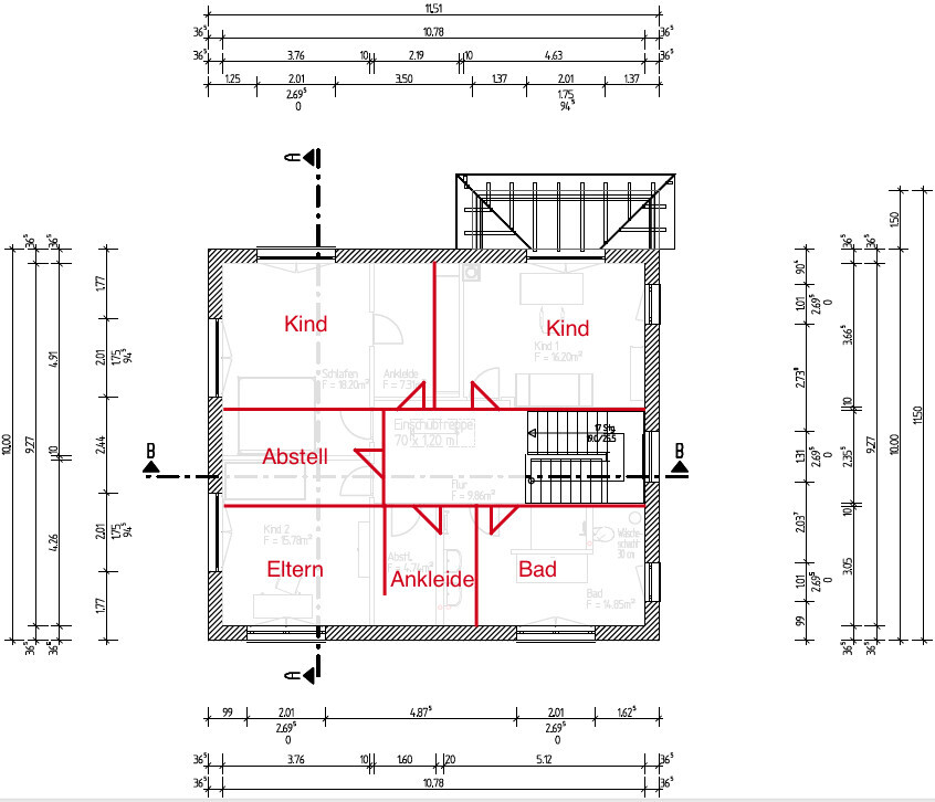
Ein oder zwei Kinder?
Ich will gar nicht groß darauf eingehen, aber mir ist eine Sache ins Auge gestoßen: Im Badezimmer ist die Toilette seltsam gesetzt. Erst muss man ewig weit laufen um dahin zu kommen und dann ist sie in die Ecke zum Wäscheschacht gequetscht? Reicht das denn vom Platz um sich nicht die Knie zu stoßen? Und will man so „stumpf“ vor die Wand schauen?
Elternschlafzimmer: eine dünne Wand hinterm Bett zum Kinderzimmer - das könnte unangenehm hellhörig werden.
So viel mal als ersten Aufschlag.
Könntest du bitte den Fragebogen ausfüllen? So fehlen wichtige Informationen. https://www.hausbau-forum.de/threads/grundrissplanung-unbedingt-vor-Beitrag-Erstellung-lesen.11714/
Ich hatte erst vermutet, dass ihr mit Keller baut. Aber ist das unter der Treppe die Waschmaschine? Scheint mir alles etwas eng.
Ein oder zwei Kinder?
Ich will gar nicht groß darauf eingehen, aber mir ist eine Sache ins Auge gestoßen: Im Badezimmer ist die Toilette seltsam gesetzt. Erst muss man ewig weit laufen um dahin zu kommen und dann ist sie in die Ecke zum Wäscheschacht gequetscht? Reicht das denn vom Platz um sich nicht die Knie zu stoßen? Und will man so „stumpf“ vor die Wand schauen?
Elternschlafzimmer: eine dünne Wand hinterm Bett zum Kinderzimmer - das könnte unangenehm hellhörig werden.
So viel mal als ersten Aufschlag.
Wo ist Norden? Oder übersehe ich etwas?
Mir fällt auf:
Mir fällt auf:
- Sind die möbel Maßstabsgetreu eingezeichnet? Der Tisch in der Küche wirkt eng, passt das?
- Was ist das für eine kleine Tür unten in der Küche?
- Ist die Küche so wirklich geplant? Kommt mir so vor als hättet ihr dann entweder wenig Stauraum oder wenig Arbeitsfläche
- Wollt ihr kein Fernsehen schauen oder wie ist die Anordnung im Wohnzimmer geplant?
- Mir wäre die Diele zu riesig. Da kann das Arbeitszimmer locker 0,5m breiter, das Gäste-WC 0,5m höher werden
- Beim Arbeitszimmer die Tür von der oberen Wand weg, damit man einen schrank dahinter stellen kann
- Was soll die Ecke der unteren Wand von Kind 1? Die Wand könnte problemlos von der Treppe durchlaufen.
- Klassisches Ankleideproblem: Wer früher aufsteht muss immer am Bett vorbei. Ich würde das Bett an die planlinke Wand stellen, die Ankleide etwas breiter und den Zugang zum Schlafzimmer über die Ankleide ermöglichen. Dann kann man auch überlegen, das Schlafzimmer zugunsten von Kind 2 etwas zu verkleinern, die 4,91m braucht man ja nicht um ein Bett zu stellen.
- Abstellraum hat eine ungünstige Tür, so könnt ihr an keine der Wände einen Hochschrank stellen, also lieber an die eine oder andere Seite verschieben
- Ziemlicher Marathon bis zur Toilette im OG
- Entweder Kind 1 oder Kind 2 hat wahrscheinlich eine unschöne Zimmerausrichtung, oder?
Meine kurzen Gedanken:
- An den Küchentisch kommt man schlecht ran und auch nicht aus der Schiebetür raus
- Küche gequetscht, Wohnzimmer Riesen verschenkter Raum
- kein Fernseher?
- ist das rechts unten der Nordpfeil? dann Nordausrichtung? Oh weh...
- Durchgang zur Küche.. naja
- Tür Garage Haus?
- Kind 1, warum der Knick?
- Beim Geschäft stößt man sich das Knie am Wäscheschacht
- Schlafzimmer sehr unpkratisch
- An den Küchentisch kommt man schlecht ran und auch nicht aus der Schiebetür raus
- Küche gequetscht, Wohnzimmer Riesen verschenkter Raum
- kein Fernseher?
- ist das rechts unten der Nordpfeil? dann Nordausrichtung? Oh weh...
- Durchgang zur Küche.. naja
- Tür Garage Haus?
- Kind 1, warum der Knick?
- Beim Geschäft stößt man sich das Knie am Wäscheschacht
- Schlafzimmer sehr unpkratisch
Lang erarbeitet, aber dann öffnet im OG fast jede Tür so, dass man gegen die Wand läuft, geschweige denn dass auf Stellmöglichkeiten hinter Türen oder allgemein Möblierbarkeit geachtet worden ist? Ich behaupte übrigens, dass die Kombi Küchenzeile-Esstisch mit zwei mal Stühlen viel zu eng wird und eine Stuhlreihe stattdessen eine Bank werden wird, wenn der Tisch dort bleiben soll, wo er aktuell gezeichnet ist. Geht, haben meine Eltern auch so- in der Wohnküche, nicht aber im Essbereich für Besuch.
Vielen Dank für eure Antworten!!!
Bin neu hier und dies ist mein erster Beitrag, bin noch etwas ungeschickt beim Antworten und Zitieren, bitte verzeiht..
Bebauungsplan/Einschränkungen
517 m²
kein Hang
2 Geschosse
Walmdach
modern
Südausrichtung
Anforderungen der Bauherren
Stadtvilla
kein Keller, 2 Geschosse
Anzahl der Personen: 4, Alter: 35 + 37
Gästezimmer im EG, 2 Kinderzimmer + Schlafzimmer im OG
Büro: Familiennutzung
Schlafgäste pro Jahr: 2
moderne Bauweise
offene Küche
Anzahl Essplätze: 6-8
Kamin
Garage
Hausentwurf
Von wem stammt die Planung:
-Planer eines Bauunternehmens
-Architekt
-Do-it-Yourself
Was gefällt nicht? Eingangsbereich gefühlt zu eng
favorisierte Heiztechnik: Gas + Solar + zentr. Lüftungsanöage mit Wärmerückgewinnung
Bin neu hier und dies ist mein erster Beitrag, bin noch etwas ungeschickt beim Antworten und Zitieren, bitte verzeiht..
Bebauungsplan/Einschränkungen
517 m²
kein Hang
2 Geschosse
Walmdach
modern
Südausrichtung
Anforderungen der Bauherren
Stadtvilla
kein Keller, 2 Geschosse
Anzahl der Personen: 4, Alter: 35 + 37
Gästezimmer im EG, 2 Kinderzimmer + Schlafzimmer im OG
Büro: Familiennutzung
Schlafgäste pro Jahr: 2
moderne Bauweise
offene Küche
Anzahl Essplätze: 6-8
Kamin
Garage
Hausentwurf
Von wem stammt die Planung:
-Planer eines Bauunternehmens
-Architekt
-Do-it-Yourself
Was gefällt nicht? Eingangsbereich gefühlt zu eng
favorisierte Heiztechnik: Gas + Solar + zentr. Lüftungsanöage mit Wärmerückgewinnung
Ähnliche Themen