Stadtvilla Grundriss 185m² - Bitte um Feedback!

4,40 Stern(e) 7 Votes
Zuletzt aktualisiert 22.11.2025
Sie befinden sich auf der Seite 12 der Diskussion zum Thema: Stadtvilla Grundriss 185m² - Bitte um Feedback!
>> Zum 1. Beitrag <<

H

haydee

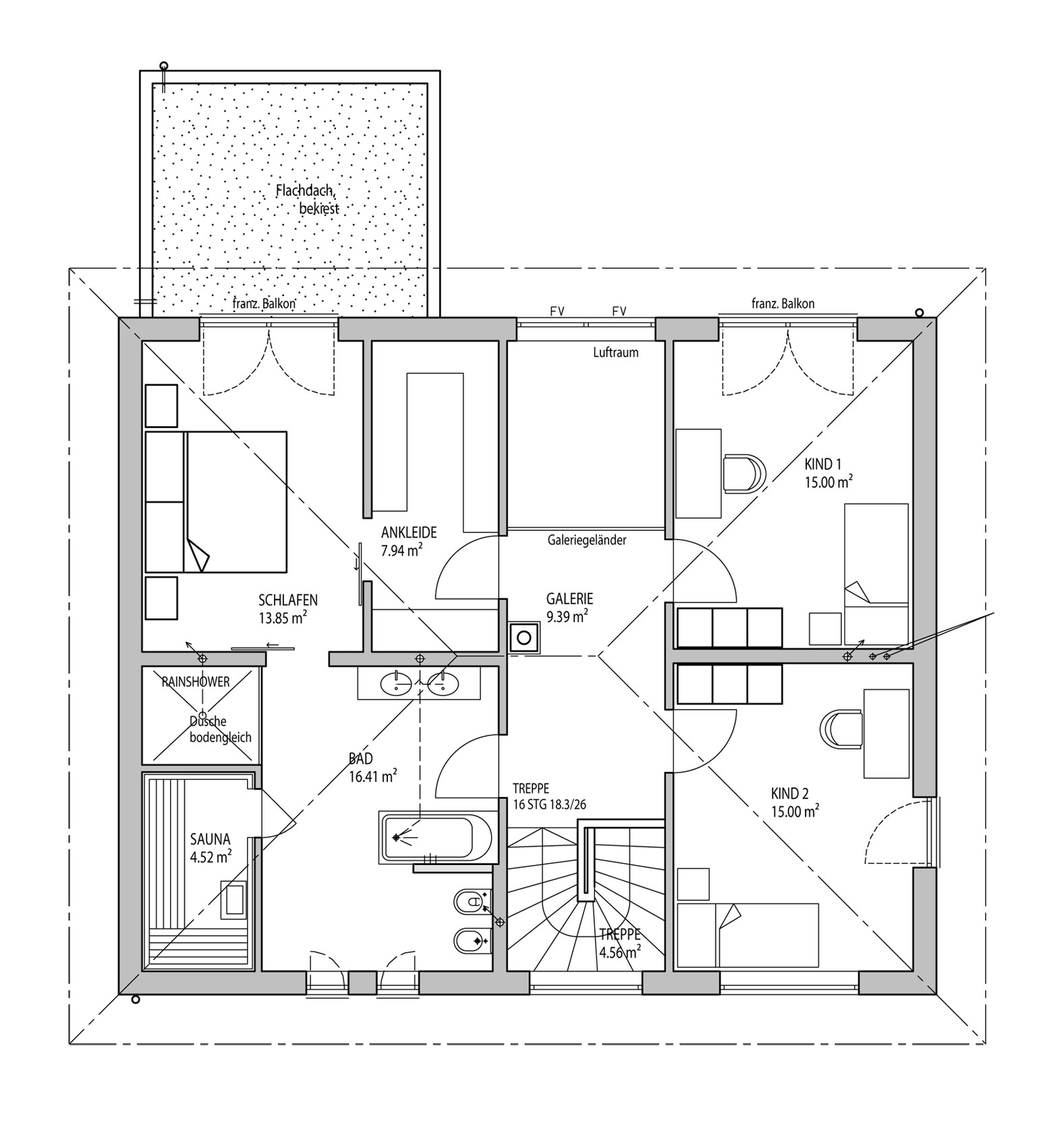
Ehrlich gesagt, habe ich noch nie einen Grundriss gesehen (und ich habe sehr sehr viele gesehen), der meinen Vorstellungen entsprechen würde. Mal fehlt die Speisekammer, mal die Abstellkammer, mal sind die Kinderzimmer zu klein... irgendwas ist immer. Jeder hat eben seine Vorstellungen.
Die Meisten Grundrisse passen irgendwie mehr oder weniger für alle.
Nur wir sind individuell
Der Grundriss muß an euch angepaßt werden
Ihr wollt diesen schicken Kamin. Streitet euch keiner ab

Ihr wollt einen großzügigen Eingang - bekommen habt ihr einen beengten Eingang und eine überdimensionierte Diele

Speisekammer bedenkt die wird nicht kühl in einem neuen Haus. Unsere Getränke stehen jetzt in der Garage

Zeichnet einmal so wie ihr jetzt Küche/Essen/Kamin wollt ein richtig im Maßstab, so wie ihr die möbel kaufen würdet mit Insel pipapo

Dann tauscht mal Küche und Wohnen und zeichnet mit nur 1 Essplatz ein
Ihr kommt ins Haus in einer nicht gerade großzügigen Garderobe, schaut an eine Wand und die große Diele (für was) wird nicht wahr genommen.
Qm sind nicht alles. Die Wirkung, wo geht das Auge hin, die Möblierbarkeit sind wichtiger
 
H

haydee

Hm... angenohmen, wir tauschen die Küche mit dem Wohnzimmer. Die Eckcouch in die rechte Ecke. Dann stellt sich die Frage wohin mit dem Fernsehen. Wohin der Kamin?
Gut, die Speisekammer würde dort bleiben können, nur die Tür müsste frontal platziert werden.
Und die Leitungen?
Klar könnte es schick aussehen, aber naja weiß ich nicht so richtig
TV wo wollt ihr ihn jetzt hinstellen?
Geht doch beim Tausch Küche Wohnen besser als im jetzigen Entwurf
Druckt den Plan aus und schiebt Möbel mit Bleistift
 
Y

ypg

Also, DANKE, aber du kannst ruhig in den anderen Themen rumgiften oder auch nicht...
Die Wahrheit ist kein Gift, kann nur sehr weh tun.
Wie ich gerade in Deinen versteckten Antworten gelesen habe, wird diese Woche das Bad bemustert. Insofern kann ich verstehen, dass Du meine Kritik als Gift empfindest.
Ich bin dann auch weg, weil Grundriss-Themen liegen mir überhaupt nicht, wie Du feststellen kannst.
 
Zuletzt aktualisiert 22.11.2025
Im Forum Grundrissplanung / Grundstücksplanung gibt es 2535 Themen mit insgesamt 87984 Beiträgen


Ähnliche Themen zu Stadtvilla Grundriss 185m² - Bitte um Feedback!
Nr.ErgebnisBeiträge
1Beleuchtung in Diele und Küche: Deckeneinbau-Strahler benötigt? 19
2Decken-Spots Diele oder Küche und Bad 10
3Grundrissplanung Wohnzimmer-Küche - Seite 218
4Grundrissfinalisierung Bungalow 130m² für 4 Personen - Seite 5199
5Einfamilienhaus mit seitlichem Eingang -Grundrissdiskussion? 17
6Wohnen/Essen/Küche: Wie wohnt ihr oder werdet ihr wohnen? - Seite 752
7Küche über ein Jahr vor Fertigstellung kaufen? - Seite 654
8Sichtschutz zwischen Küche und Wohnbereich 17
9Einteilung Grundriss Allraum Küche Wohnen Essen - Seite 358
10Der Einzug ins Haus - Möbel, Umzug Einrichten 91
11Küche: geschlossen oder offen? Welche Raumaufteilung? - Seite 1086
12Grundriss Zugang von Küche in Speis / Abstellraum - Seite 329
13Alte/frühere Möbel mitnehmen ins neue Haus oder "alles" neu? - Seite 342
14Grundriss: Offenes Wohnzimmer inkl. Kamin - Feedback 11
15Geschlossene oder offene Küche ? 11
16Grundriss, Ideen zur räumlichen Trennung innerhalb der Küche 23
17Varianten für eine Ecklösung in der Küche 18
18Planung Wohnraum & Küche eines Doppelhaushälfte in Nürnberg 13
19Probleme bei der aufteilung Küche, Essen , Wohnen 16
20Grundriss Halboffene Küche mit großem Essbereich - Detailfragen 12

Oben