google80
Hallo liebe Hausbau-Forum-Gemeinde,
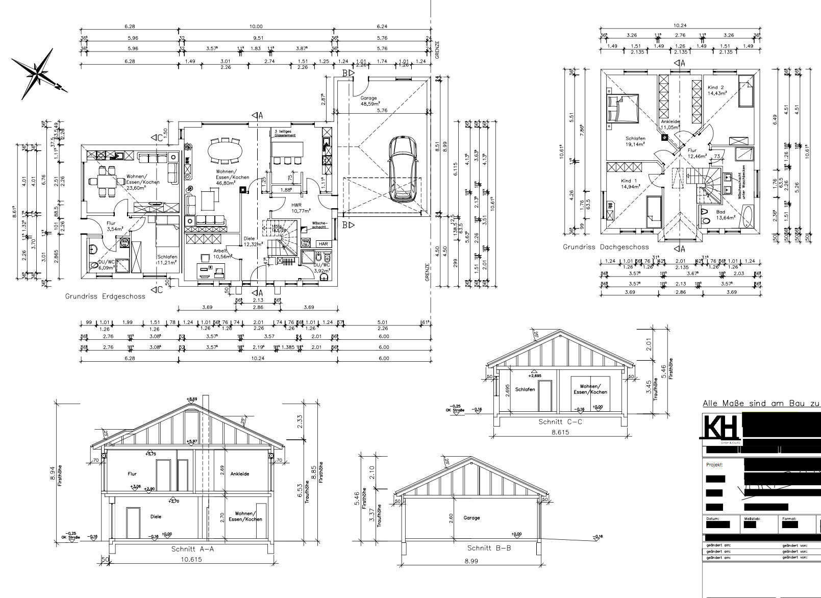
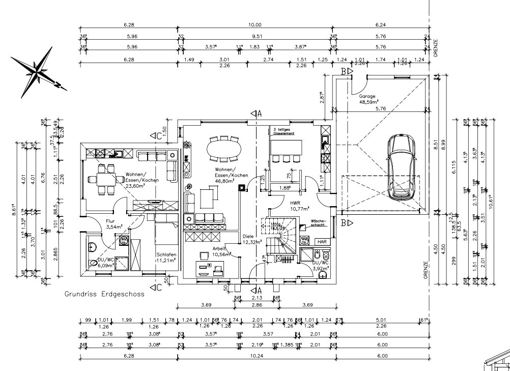
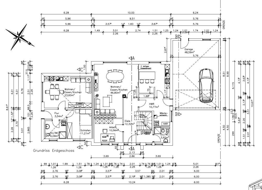
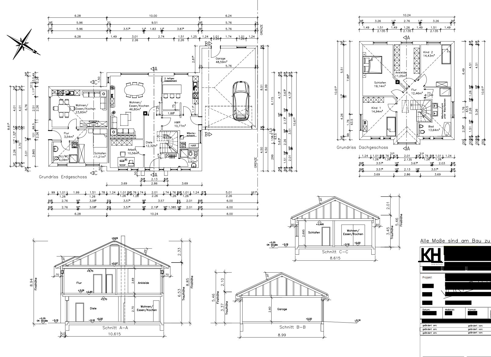
zunächst einmal ein dickes Lob an das Forum und an die User. Wir freuen uns über Eure Meinung zu unserem Bauvorhaben (Haupthaus verputzt + Einliegerwohnung (wird vermietet) + Doppelgarage) mit folgenden Daten freuen:
Bebauungsplan/Einschränkungen
Größe des Grundstücks: 808 m²
Hang: Nein
Grundflächenzahl: 0,3 (+25 %)
Geschossflächenzahl
Baufenster, Baulinie und -grenze: Ja, siehe Flächenplan (blaue Linie)
Randbebauung: Ja (Garage 9 x 6 m)
Anzahl Stellplatz:
Geschossigkeit: 1,5
Dachform: mind. 25 Grad
Stilrichtung: keine
Ausrichtung: keine
Maximale Höhen/Begrenzungen: 9 m
weitere Vorgaben: Keine Bodenversiegelung im Umkreis von 3 m um eingezeichnete Eichen (3 Stück)
Anforderungen der Bauherren
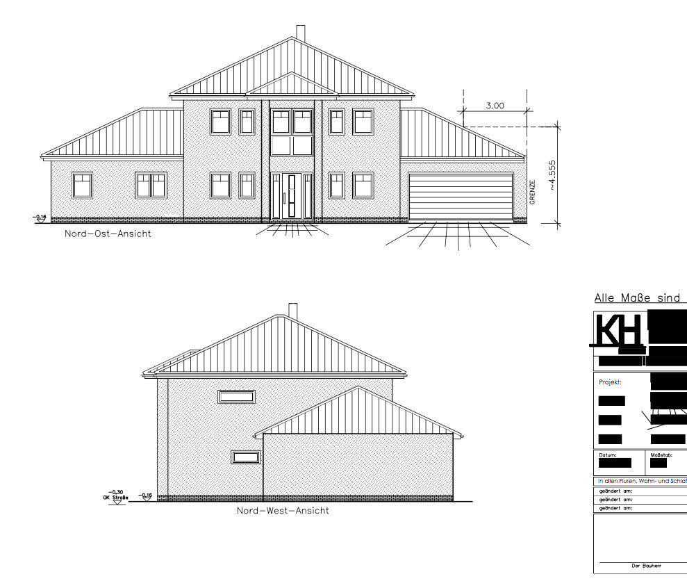
Stilrichtung, Dachform, Gebäudetyp: Stadtvilla mit Walmdach
Keller, Geschosse: Kein Keller,
Anzahl der Personen, Alter: Drei (inkl. Mieter), zwischen 20 und 40 Jahre
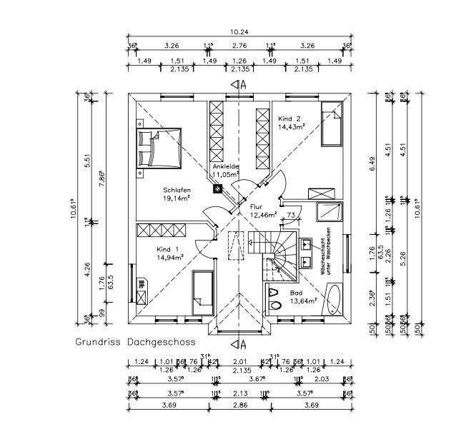
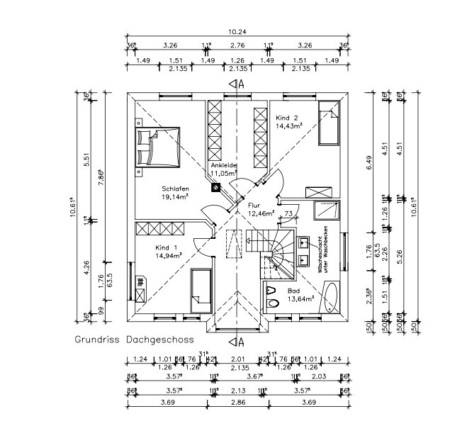
Raumbedarf im EG, OG: Einliegerwohnung 45 m², Haupthaus EG und OG je 90 m²
Büro: Wird als Gästezimmer genutzt
Schlafgäste pro Jahr: 12-24
offene oder geschlossene Architektur
konservativ oder moderne Bauweise: Moderne Stadtvilla
offene Küche, Kochinsel: Ja mit Kochinsel und 3 Glaselementen (1 feststehendes und 2 verschiebbare, um bei Bedarf eine geschlossene Küche zu haben)
Anzahl Essplätze: Küche und Wohnzimmer (analog Einliegerwohnung)
Kamin: vorbereitet
Musik/Stereowand: Teufel 5.1 Anlage
Balkon, Dachterrasse: nein
Garage, Carport: Doppelgarage abschließbar
Nutzgarten, Treibhaus: Nutzgarten
weitere Wünsche/Besonderheiten/Tagesablauf, gern auch Begründungen, warum dieses oder das nicht sein soll
Hausentwurf
Von wem stammt die Planung: Eigene Planung mit Zeichnung vom Architekten übernommen
Was gefällt besonders? Warum?:
Da keine 2 Geschosse zulässig sind (was jedoch gewünscht ist), wurde unter anderem eine Einliegerwohnung mit eingeplant (kostengünstig in der Herstellung im Vergleich zu Gebrauchtimmobilien, Steuervorteil und zur Aufbesserung der Rente - bin bereits im Besitz von Renditeobjekten). Des Weiteren finde ich die Anordnung der Räumlichkeiten durchdacht, wobei hier noch das Fenster im Hauswirtschaftsraum sich ändern kann (bewusst Oberlicht, um Stellfläche für Hausanschlüsse zu haben).
Was gefällt nicht? Warum?
Das Dach ohne Überstand der Garage (bedingt durch die Max. bebaubare Breite - Realisierung würde Wohnraum verkleinern mit Auswirkung auf Neuplanung aller Räumlichkeiten).
Die Treppe im Haupthaus, wobei jede Variante (siehe https://www.hausbau-forum.de/threads/grundrissplanung-unbedingt-vor-Beitrag-Erstellung-lesen.11714/) bereits geprüft wurde und uns die aktuelle Version noch am besten von allen gefällt.
Preisschätzung lt Architekt/Planer: 290 TEUR
Persönliches Preislimit fürs Haus, inkl Ausstattung: 320 TEUR
favorisierte Heiztechnik: Gas
Wenn Ihr verzichten müsst, auf welche Details/Ausbauten
-könnt Ihr verzichten: Kamin, 3-teilige Glaselemente in der Küche, hochwertige Außenanlagen (Geld soll ins Objekt fließen)
-könnt Ihr nicht verzichten: Garage mit Dach sowie Einliegerwohnung
Warum ist der Entwurf so geworden, wie er jetzt ist? Bedingt durch die eingetragenen Bäume, der Ausrichtung des Grundstücks sowie die Ideen von Musterhauspark und dem gewollten Lichteinfall in jedem Raum. Die Einliegerwohnung hat bewusst keine Fenster zu unserem Grundstück, damit der Mieter trotz angrenzendem Gebäude gefüllt weit weg ist. Deshalb bekommt dieser auch eine separate Zufahrt.
Jpgs zugefügt durch Moderation, ypg
zunächst einmal ein dickes Lob an das Forum und an die User. Wir freuen uns über Eure Meinung zu unserem Bauvorhaben (Haupthaus verputzt + Einliegerwohnung (wird vermietet) + Doppelgarage) mit folgenden Daten freuen:
Bebauungsplan/Einschränkungen
Größe des Grundstücks: 808 m²
Hang: Nein
Grundflächenzahl: 0,3 (+25 %)
Geschossflächenzahl
Baufenster, Baulinie und -grenze: Ja, siehe Flächenplan (blaue Linie)
Randbebauung: Ja (Garage 9 x 6 m)
Anzahl Stellplatz:
Geschossigkeit: 1,5
Dachform: mind. 25 Grad
Stilrichtung: keine
Ausrichtung: keine
Maximale Höhen/Begrenzungen: 9 m
weitere Vorgaben: Keine Bodenversiegelung im Umkreis von 3 m um eingezeichnete Eichen (3 Stück)
Anforderungen der Bauherren
Stilrichtung, Dachform, Gebäudetyp: Stadtvilla mit Walmdach
Keller, Geschosse: Kein Keller,
Anzahl der Personen, Alter: Drei (inkl. Mieter), zwischen 20 und 40 Jahre
Raumbedarf im EG, OG: Einliegerwohnung 45 m², Haupthaus EG und OG je 90 m²
Büro: Wird als Gästezimmer genutzt
Schlafgäste pro Jahr: 12-24
offene oder geschlossene Architektur
konservativ oder moderne Bauweise: Moderne Stadtvilla
offene Küche, Kochinsel: Ja mit Kochinsel und 3 Glaselementen (1 feststehendes und 2 verschiebbare, um bei Bedarf eine geschlossene Küche zu haben)
Anzahl Essplätze: Küche und Wohnzimmer (analog Einliegerwohnung)
Kamin: vorbereitet
Musik/Stereowand: Teufel 5.1 Anlage
Balkon, Dachterrasse: nein
Garage, Carport: Doppelgarage abschließbar
Nutzgarten, Treibhaus: Nutzgarten
weitere Wünsche/Besonderheiten/Tagesablauf, gern auch Begründungen, warum dieses oder das nicht sein soll
Hausentwurf
Von wem stammt die Planung: Eigene Planung mit Zeichnung vom Architekten übernommen
Was gefällt besonders? Warum?:
Da keine 2 Geschosse zulässig sind (was jedoch gewünscht ist), wurde unter anderem eine Einliegerwohnung mit eingeplant (kostengünstig in der Herstellung im Vergleich zu Gebrauchtimmobilien, Steuervorteil und zur Aufbesserung der Rente - bin bereits im Besitz von Renditeobjekten). Des Weiteren finde ich die Anordnung der Räumlichkeiten durchdacht, wobei hier noch das Fenster im Hauswirtschaftsraum sich ändern kann (bewusst Oberlicht, um Stellfläche für Hausanschlüsse zu haben).
Was gefällt nicht? Warum?
Das Dach ohne Überstand der Garage (bedingt durch die Max. bebaubare Breite - Realisierung würde Wohnraum verkleinern mit Auswirkung auf Neuplanung aller Räumlichkeiten).
Die Treppe im Haupthaus, wobei jede Variante (siehe https://www.hausbau-forum.de/threads/grundrissplanung-unbedingt-vor-Beitrag-Erstellung-lesen.11714/) bereits geprüft wurde und uns die aktuelle Version noch am besten von allen gefällt.
Preisschätzung lt Architekt/Planer: 290 TEUR
Persönliches Preislimit fürs Haus, inkl Ausstattung: 320 TEUR
favorisierte Heiztechnik: Gas
Wenn Ihr verzichten müsst, auf welche Details/Ausbauten
-könnt Ihr verzichten: Kamin, 3-teilige Glaselemente in der Küche, hochwertige Außenanlagen (Geld soll ins Objekt fließen)
-könnt Ihr nicht verzichten: Garage mit Dach sowie Einliegerwohnung
Warum ist der Entwurf so geworden, wie er jetzt ist? Bedingt durch die eingetragenen Bäume, der Ausrichtung des Grundstücks sowie die Ideen von Musterhauspark und dem gewollten Lichteinfall in jedem Raum. Die Einliegerwohnung hat bewusst keine Fenster zu unserem Grundstück, damit der Mieter trotz angrenzendem Gebäude gefüllt weit weg ist. Deshalb bekommt dieser auch eine separate Zufahrt.
Jpgs zugefügt durch Moderation, ypg
Anhänge
-
329,9 KB Aufrufe: 329
-
334 KB Aufrufe: 309
-
334,3 KB Aufrufe: 440
-
310,9 KB Aufrufe: 368
Zuletzt bearbeitet von einem Moderator: