Neubau Stadtvilla mit Einliegerwohnung und Doppelgarage

4,40 Stern(e) 11 Votes
Zuletzt aktualisiert 18.11.2025
Sie befinden sich auf der Seite 9 der Diskussion zum Thema: Neubau Stadtvilla mit Einliegerwohnung und Doppelgarage
>> Zum 1. Beitrag <<

google80

google80

Auf mich wirkt es so, als hätte man zuerst die äußere Hülle geplant und versucht nun verzweifelt darin die Nutzung irgendwie hinzubekommen.... Das wird nie perfekt, sondern bleibt ein einziger Kompromiss. Das ginge auf der Fläche definitiv besser.
Dann hau mal Deine Zeichnung für die Nachwelt raus, damit andere davon profitieren können und kein "Kompromiss-Haus" wie ich bauen müssen.
 
google80

google80

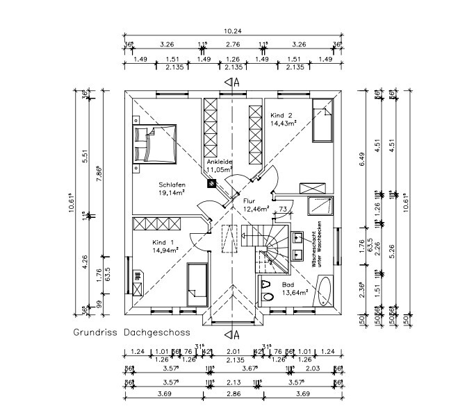
Toilettennische wirklich 100 cm breit?


ich habe die ca. 80 cm im Verhältnis errechnet. Die Wand links war ja im Ursprungsplan 357 cm .. ich setze voraus, das ist sie noch.

Und deinen Spruch zur Wanne verstehe ich gar nicht. Simuliere mal deine Wannensituation, so etwas kann man in Altbauten machen, wo man keine Chance hat, vorhandene Abflüsse etc. noch zu ändern, aber doch nicht im Neubau.


Leider kein Anhang dabei.
 
kbt09

kbt09

Jetzt ist der Anhang da ... dann vergleiche mal deinen Treppenausschnitt


mit dem eingezeichnetem Beispiel:
Dein Treppenausschnitt wird eben nicht über der zweiten Stufe liegen, sondern so wie du gezeichnet hast (ist ja leider alles ohne Maße) über der dritten Stufe.
 
kbt09

kbt09

Der Bereich für die Treppe im OG ist lt.

OG alt = 388 cm plus vielleicht noch weiterer 10 cm, die man bis zur Badtür rausholen kann:



Im OG neu sind dann auf diesen 388 cm bzw. evtl. bis 398 cm die Treppe, die Wand und wirklich 100 cm Nische im Bad? Dann funktioniert aber die Treppe nicht.
 
Climbee

Climbee

Des Menschen Wille ist sein Himmelreich...

Wenn es Dir selber nicht auffällt, daß das Bad so einfach eine Katastrophe ist, dann sind hier alle wohlmeinenden Ratschläge umsonst. Das gleiche gilt für die Küche.
Du willst es so.
Mach es so.

Du wirst auch sicher einen Architekten finden, der dir den Plan dann auch so pinselt. Wahrscheinlich kopfschüttelnd, aber egal... Der kriegt trotzdem sein Geld, DU (!!) mußt anschließend in diesem verkorkstem Haus wohnen.

Ansonsten hier noch mal eine klare Ansage: Du hast leider überhaupt weder Begabung noch das Wissen, was einen guten Grundriss ausmacht und was eine sinnvolle Anordnung von Küche und Bad bedeutet. Dafür stolperst du hier seit 6 Seiten im Forum rum, schlägst nahezu alle guten Ratschläge in den Wind, fühlst dich persönlich beleidigt und auf den Schlips getreten. Der Grundriss wird nicht besser und auch neue Vorschläge von Dir sind haarsträubend (ehrlich: ich hab bei der neuen Badaufteilung zweimal hinsehen müssen, damit ich auch wirklich geglaubt habe, daß das ernst gemeint ist; ich halte es bis jetzt noch für einen Witz!). Du scheinst noch nicht begriffen zu haben, daß hier keiner darauf aus ist, dir aus Jux und Dollerei ans Bein zu pinkeln. Wer hätte davon was? Hier versuchen mehrere, sehr engagierte Leute dich dahin gehend zu unterstützen, daß dein Haus angenehm zu bewohnen ist. Die Diskussion pro oder contra Einliegerwohnung gab es schon öfter, soll jeder machen wie er will. Aber auch ich sehe gravierende Schwächen in deinem Grundriss und jetzt hast du noch die Möglichkeit, diese zu beheben. Da muß man vielleicht auch mal die eine oder andere Kröte schlucken, eine Vorstellung aufgeben, die einem bisher ganz gut gefallen hat. Vor allem, wenn man, wie Du, an dem Entwurf schon ein Jahr herum macht. Da ist man gerne mal fest gefahren und kommt nicht weiter. Dann sollte die Fähigkeit aber da sein, das zu erkennen und entsprechend zu handeln. Das fehlt mir hier.
Wie gesagt: wenn du so willst, mach es. Aber es ist nicht sinnvoll. Gerade Küche und Bad - da krieg ich automatisches Dauerkopfschütteln. Die Lösung mit der Ankleide wär jetzt auch nicht meines, aber das ist Geschmacksache. (ich würde lieber durch die Ankleide ins Schlafzimmer) und diese schrägen Wände machen einfach keinen Sinn. Aber damit kann man leben. Die Sinnlosigkeit der Badaufteilung und in der Küche wiegen schwerer. Das mit der Treppe hab ich nicht nachgeprüft, aber ich denke ypg hat da genug Erfahrung und wenn sie sagt, das klappt so nicht, dann glaube ich ihr das auch.

Mein guter Ratschlag: gehe zu einem fähigen Architekten. Zeige ihm nicht die bisherigen Entwürfe, sage ihm, was Du willst und ich garantiere dir: selbst ein wenig begabter Mittelklassearchitekt wird hier einen besseren Grundriss liefern.
Hallo! Was Du hier willst ist echt keine Challenge: ein rechteckiges Haus auf ein rechteckiges Grundstück. Das ist in der Regel rel. sinnvoll zu schaffen. Halt wahrscheinlich nicht von Dir. Gehe zum Fachmann UND-LASS-DIR-WAS-SAGEN!!!

P.S. jpg kriegt man einfacher, wenn man pdfs mittels pdf creator (kostenfrei zum download) in jpg umwandelt. Geht easy und das Ergebnis ist besser, als wenn man den Plan abfotografiert.
 
Zuletzt aktualisiert 18.11.2025
Im Forum Grundrissplanung / Grundstücksplanung gibt es 2536 Themen mit insgesamt 87970 Beiträgen


Ähnliche Themen zu Neubau Stadtvilla mit Einliegerwohnung und Doppelgarage
Nr.ErgebnisBeiträge
1Vorplanung mit dem Architekten - eigener Grundriss sinnvoll? 18
2Grundriss 200qm mit integriertem Wintergarten und Galerie - Seite 332
3Meinungen zum Haus-Grundriss erwünscht 71
4Grundriss Doppelhaushälfte 7x16m auf 390qm in einer Siedlung 125
5Grundriss Halboffene Küche mit großem Essbereich - Detailfragen - Seite 212
6Wie findet ihr diesen Grundriss? - Seite 211
7Grundriss die IV! :-) 18
8Grundriss Bungalow, sucht wertvolle Tipps / Bemerkungen 24
9Grundriss Einfamilienhaus mit Doppelgarage und Terrasse - Seite 219
10Grundriss - Anregungen für 140m² Einfamilienhaus 19
11Grundriss Stadtvilla / Feedback Statik, Anordnung - Seite 228
12Ideenfindung für Grundriss 120m2 Einfamilienhaus 12
13Findet ihr den Grundriss unserer Stadtvilla so Ok? 46
14Grundriss EG + OG für Doppelhaushälfte - Seite 529
15Meinung zum Grundriss / Zwei verbesserungswürdige Punkte. 17
16Grundriss für ein 2-geschossiges Einfamilienhaus ohne Keller 17
17Grundriss Einfamilienhaus, ca. 200qm ohne Keller - Einschätzung - Seite 13172
18Plan, wie findet ihr den Grundriss??? 13
19Grundriss-Planung: Bungalow ~130m² - Seite 758
20Wieder mal ein Grundriss zur Kritik. 34

Oben