Treppe Grundriss Planung, Auftritt und Unterzug

4,40 Stern(e) 5 Votes
Zuletzt aktualisiert 22.11.2025
Sie befinden sich auf der Seite 2 der Diskussion zum Thema: Treppe Grundriss Planung, Auftritt und Unterzug
>> Zum 1. Beitrag <<

kbt09

kbt09

Ja, dann stell doch einfach den Grundriss rein. Aber dazu dann EG und OG, denn sonst kann man das nicht beurteilen, was da noch möglich ist.

Und, der Ausgang einer geraden Treppe ist doch an ganz anderer Stelle als der Ausgang einer gewendelten Treppe. Beliebiges Austauschen kann ich mir da einfach nicht vorstellen.
 
M

Milanni123

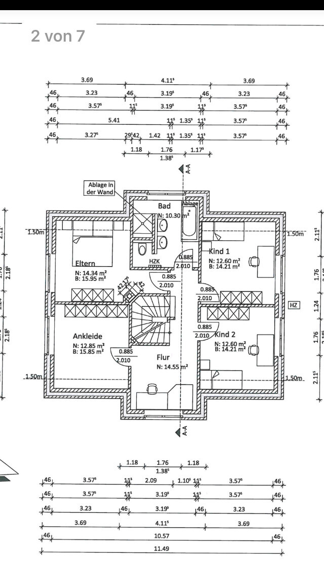
Ok. Hier sind die Grundrisse von OG und EG.

Also ich dachte auch nicht an eine ganz grade Treppe, sondern so eine wie im anderen Grundriss. Und dann die Frage, was denn nun besser aussieht...

Oh Mann... Komme mir richtig doof vor... Da gibt es einfach so viel zu beachten...
Aber ganz lieben Dank, fürs drüber schauen!

@knt09: Deine Änderungsvorschläge con den Räumen im OG und dem Bad werden übrigens umgesetzt.

Grundriss eines Einfamilienhauses: offener Wohn-/Essbereich, Küche, Diele, G-WC, HWR und Treppe.


Grundriss eines Hauses im Obergeschoss: Flur, Bad, Elternzimmer mit Ankleide, zwei Kinderzimmer
 
Y

ypg

Andere Treppe wird nicht möglich sein - sobald ihr viertelwendet kommt ihr nicht mehr in die Ankleide.
Was @BeHaElJa meint, ist, dass die Tür der Ankleide nicht verschoben werden kann.

Wenn es nach dem Planer in Ordnung geht, dass die ersten Stufen der Treppe aus erstem Bsp eine Betondecke bekommt, würde die ein-Viertel-gewendelte Treppe funktionieren.
Denn: Grundsätzlich kann man sagen, je weniger eine Treppe gewendelt ist, desto komfortabler. Man muss halt nur eine Drehung als Person oder mit Möbeln absolvieren, bei der geplanten 2-Viertel-Treppe 2 Drehungen -> das kann für sperrige Möbel unmöglich werden.
 
M

Milanni123

Ah ok... Wegen der Schräge. Oder?

Was meinst du mit: "erste Stufen der Treppe eine Betondecke bekommt"? Sry, aber irgendwie ist das alles zu hoch für mich...
 
Masipulami

Masipulami

Mal kurz zur Ankleide:
Soll die wirklich so bleiben? Find ich ohne direkten Zugang vom Schlafzimmer aus sehr unglücklich gelöst. so wie sie aktuell geplant ist muss man ja ne halbe Marathondistanz zurücklegen, um mal kurz vom Schlafzimmer zur Ankleide und dann evtl. wieder zurück zum Bad zu wollen.
 
Zuletzt aktualisiert 22.11.2025
Im Forum Grundrissplanung / Grundstücksplanung gibt es 2535 Themen mit insgesamt 87988 Beiträgen


Ähnliche Themen zu Treppe Grundriss Planung, Auftritt und Unterzug
Nr.ErgebnisBeiträge
1Grundriss Einfamilienhaus barrierefrei fürs Alter mit Eltern-Schlafzimmer im EG - Seite 744
2Grundriss Schlafzimmer, Ankleide und Bad en Suite 36
3Wie findet ihr diesen Grundriss? - Seite 211
4Mein Grundriss steht (fast), jetzt bräuchte ich eure Hilfe :-) 26
5Meinung zu Grundriss - 2-geschossiges Einfamilienhaus - Seite 338
6Grundriss Stadtvilla 11.00x11.00m - Seite 219
7Grundriss Einfamilienhaus mit Keller - Seite 213
8Grundriss Stadtvilla 160qm - Bitte um Tipps! - Seite 10284
9Grundriss - 135qm, 1,5-Geschosse, Satteldach - Seite 2138
10Grundriss Einfamilienhaus, ca. 200qm - Kommentare erwünscht - Seite 1281
11Grundriss Einfamilienhaus ca. 190qm mit Keller auf Millimeterpapier 78
12Grundriss-Optimierung 155 qm Einfamilienhaus - Seite 544
13Grundriss Stadtvilla - Danke für euer Feedback - Seite 315
14Anregungen zum Grundriss Einfamilienhaus ca. 175 qm, Satteldachhaus - Seite 12167
15Grundrissfrage: Tausch gerader Treppe durch L-Treppe 31
16Grundriss - Auf der Suche nach Tipps und Ideen von Experten 11
17Ideenfindung für Grundriss 120m2 Einfamilienhaus 12
18Unser Grundriss... bitte um Hilfe zur Optimierung.. 33
19Grundriss 200qm mit integriertem Wintergarten und Galerie - Seite 332
20Treppe im Flur, Grundriss steht eigentlich schon :o( 20

Oben