Grundriss wie verändern?

4,70 Stern(e) 6 Votes
Zuletzt aktualisiert 23.11.2025
Sie befinden sich auf der Seite 24 der Diskussion zum Thema: Grundriss wie verändern?
>> Zum 1. Beitrag <<

kaho674

kaho674

Nimm Deine Frau und überdenk das mal in Ruhe. Prioritätenliste, Kompromiss und langsam aufsteigende Ungeduld, ein Architekt, der keiner ist ... keine einfache Entscheidung, rückzurudern.
Vielleicht macht Ihr tatsächlich mal eine Liste. Was ist gut und was ist schlecht und am besten ein Gewicht (also wie wichtig ist es mir) mit dazu. So wie im Anhang.

Wenn die Summe im Soll zu hoch ist, würd ich vermutlich den Architekt wechseln bzw. mir einen nehmen, der wirklich seinen Grips investiert. Kannst ja trotzdem mit dem anderen bauen - weil ja hier die Auswahl begrenzt ist.

He Yvonne, was nimmst Du eigentlich die Stunde? Mach doch mal ein Angebot!
 

Anhänge

kaho674

kaho674

Also ich muss zugeben, das Grundstück ist echt knifflig. Irgend eine Kröte muss man schlucken.
Ich bin ja kein Architekt und deshalb frickel ich immer nur so rum. Nach ewigem Probieren komm ich nur auf einen Entwurf mit 2 Kinderzimmern, was gerade so ins Baufenster passt.
Von daher - Asche auf mein Haupt - ist der Entwurf möglicherweise nicht so schlecht, wie ich gedacht habe.

Ich stell trotzdem mal die alternative 2-Kind Variante rein zum Ideensammeln.
Ich bin vom sogenannten Bauhaus-Stil ausgegangen - da kann man sich ja beinahe alles erlauben. Ob man das überhaupt bauen kann, weiß ich gar nicht.

(Muss aber dazu sagen, dass mein Programm ein alter Hut ist und nicht alles darstellbar ist. Obwohl ich sonst kein Fan von Eckfenstern bin, bietet es ich bei diesem Grundstück an, damit man die Sonne in die Zimmer holt. Kann das Programm aber nicht. Außerdem lasse ich Fenster, die unproblematisch sind aus Faulheit immer weg.)

Schematischer Grundriss eines Hauses: Küche, Essen, Wohnen, Gästezimmer, Diele, Garderobe, WC.


Grundriss eines Hauses mit Schlafzimmer, Bad 1, Bad 2, Diele, Ankleide, Kind 1 und Kind 2
 
A

arnonyme

Also ich muss zugeben, das Grundstück ist echt knifflig. Irgend eine Kröte muss man schlucken.
Ich bin ja kein Architekt und deshalb frickel ich immer nur so rum. Nach ewigem Probieren komm ich nur auf einen Entwurf mit 2 Kinderzimmern, was gerade so ins Baufenster passt.
Von daher - Asche auf mein Haupt - ist der Entwurf möglicherweise nicht so schlecht, wie ich gedacht habe.

Hallo kaho674,

danke nochmals für den Input, wir haben jetzt endlich durch einen internen Wechsel des Architekten die Ideen umsetzen können. Leider konnten wir nicht mehr von vorne anfangen, da wir von der Stadt eine Frist bis nächste Woche bekamen, bis dahin wir die Pläne abgeben müssen. Wir haben versucht das Beste aus den Ideen umzusetzen.

Uns gefallen deine Ideen eigentlich richtig gut, bis auf den Flur im OG, der erscheint mir doch relativ schmal zu sein.
Meint ihr, das man diesen noch verbreitern müsste ?
Dieser ist ja nur 105cm breit, gibt es so etwas wie eine Mindestbreite, die man bauen sollte, dass man sich nicht zu beengt fühlt?

Edit:
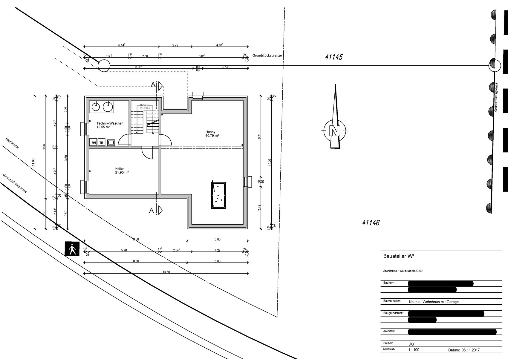
Bitte wundert euch nicht über die Garage. Es wurde uns als Auflage aufgezwungen, diese architektonisch ans Grundstück anzupassen. Wären wir nicht kurz vor dem Ziel würde ich den ganzen Quatsch einfach abblasen
Irgendwo hört der Spaß auf.

Grundriss eines Hauses mit Keller, Technik-Waschen, Hobby, Treppe und Maßlinien


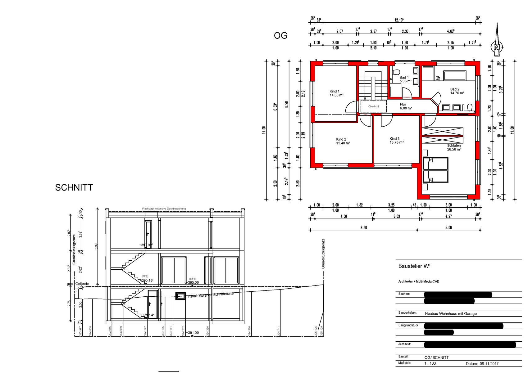
OG-Grundriss: Kind 1-3, Schlafzimmer, Bad, Flur; Maßstab 1:100


Moderne Villa mit Nord- und Südansicht auf geneigtem Gelände, Bäume und Garage.


Osten- und Westansicht eines modernen Hauses auf Hanggrundstück, Bäume und Detaillinien.
 

Anhänge

Zuletzt bearbeitet:
tomtom79

tomtom79

Dieser Grundriss hätte noch viel Potenzial

Tauscht du im Eg das Treppenhaus wäre das wc nichts versteckt und oben hättest du eine klare Trennung des Kinder Bades und vom Hauptbad.
 
A

arnonyme

Dieser Grundriss hätte noch viel Potenzial

Tauscht du im Eg das Treppenhaus wäre das wc nichts versteckt und oben hättest du eine klare Trennung des Kinder Bades und vom Hauptbad.
Die Treppe war ursprünglich vertauscht. Da war das Problem, dass die Anschlüsse im Keller ganz hinten wären, was kostenmäßig nicht so optimal wäre. Außerdem sind dadurch jetzt die Kinderzimmer um einiges größer.
 
Zuletzt aktualisiert 23.11.2025
Im Forum Grundrissplanung / Grundstücksplanung gibt es 2535 Themen mit insgesamt 87992 Beiträgen


Ähnliche Themen zu Grundriss wie verändern?
Nr.ErgebnisBeiträge
1Grundriss-Entwurf: Einfamilienhaus mit Keller; 560qm Grundstück - Seite 365
2Grundriss EFH165 qm erster Entwurf - Architekt unzufrieden - Seite 474
3Entwurf Grundriss Bungalow Meinungen - Seite 422
4Grundstück am Nordhang – nächste Schritte? - Seite 325
5Süd Hang Grundstück 700qm Einfamilienhaus ca. 150qm, Ideen Input? 43
6Unser Grundriss von 120qm auf 469qm Grundstück - Seite 673
7Einfamilienhaus-Grundriss Entwurf 23
8Planung Grundriss / Erster Entwurf für erstes Feedback 32
9Unser Grundriss-Entwurf, eure Meinungen 20
10Grundriss Haus / Grundstück 28
11Kostenabschätzung Architekt Einfamilienhaus. Eure Einschätzung - Seite 444
12Entwurf Einfamilienhaus mit Garage/Carport - bitte um Bewertung - Seite 222
13Ausrichtung der Räume bei Nord-Ost Grundstück - Seite 322
14Bau Garage auf Grenze geht lt. Architekt nicht. 11
15Architekt oder Bauträger? Was ist günstiger? 13
16Grundrissplanung für schmales Grundstück, 2. Versuch. 14
17Erst Haus planen und erst danach dann Grundstück kaufen? - Seite 479
18Haus, Garage / Carport auf dem Grundstück platzieren 93
19Erster Grundriss-Versuch für Kettenhaus auf kleinem Grundstück 94
20Grundrissplanung mit enger werdendem Grundstück - Seite 223

Oben