
kaho674
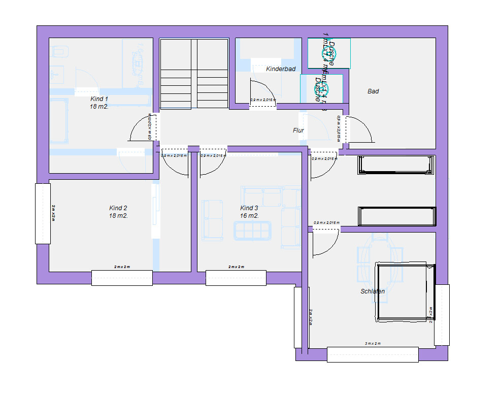
Ja, Du hast recht, vielleicht nimmt man besser in Kauf, dass 1 Kind - vielleicht das Kleinste, nur ein kleines Zimmer bekommt mit 13,8m². Die anderen dafür 2 annähernd gleich große Zimmer. Die m² stimmen hier leider nicht. Ist ein Programmfehler der rechnet die Wanddicke nicht ab.Man muss immer so 13% abziehen.Der Durchgang sieht relativ schmal aus.
Das könnte ein Knackpunkt sein.
Tja, aber so richtig rund ist das auch nicht. Aber vielleicht kannst Du Ideen zusammentragen und dann noch mit dem Architekten rumknobeln.