Ausrichtung der Räume bei Nord-Ost Grundstück

4,50 Stern(e) 4 Votes
Zuletzt aktualisiert 18.11.2025
Sie befinden sich auf der Seite 3 der Diskussion zum Thema: Ausrichtung der Räume bei Nord-Ost Grundstück
>> Zum 1. Beitrag <<

Y

ypg

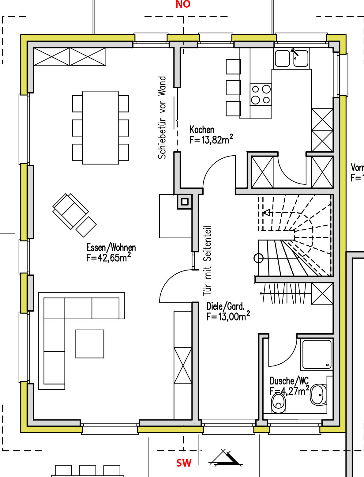
Ja sicher. Der erste Entwurf hat fast nur Ausblickfenster und im Süden und Westen kaum Möglichkeiten zur Terrassengestaltung, da nur Nebenräume. Im zweiten würde ich im Essbereich mal ein richtiges Fenster ab 2,40 planen, über die Ecke ebenso. Das gleiche dann im Wohnbereich.
Ihr könnt auch die Eingangstür aus Glas machen und ein Fensterband in die innenliegende Wohnzimmerwand integrieren, wodurch das Wohnzimmer vom Flur belichtet wird.
 
Zuletzt bearbeitet:
W

Watcher78

Wenn wir jetzt mal den 2 ten Entwurf 9 x 11 nehmen würden sollte man dann lieber die Wohnräume nach NW ausrichten oder wie auf dem Entwurf zu sehen nach OS. Stelle noch mal beide Entwürfe ein. Ich persönlich würde nach NW ausrichten, aber meine Frau möchte lieber nach OS ausrichten, weil uns Nachbar auf der NW Seite 2 grosse Fenster zu unserer Richtung plant.

Grundriss eines Hauses: Offener Ess-/Wohnbereich, Küche, Diele, Dusche/WC, Treppe.


Grundriss einer Wohnung: Küche mit Insel, Essbereich, Wohnzimmer, Flur, Treppe, Bad.
 
Kisska86

Kisska86

Ist das euer erster Entwurf? Wenn ja, würde ich den BU ruhig noch mal einen neuen mal machen lassen... Vielleicht mal mit einer geraden Treppe oder mit einem Seiteneingang... Einfach mal um was anderes noch zu sehen und mehr Eindrücke zu bekommen. Wie breit ist denn euer Grundstück?
 
W

Watcher78

Das Problem ist wenn eine gerade Treppe geplant ist dadurch viel Platz verloren geht. Auch gerade, weil es noch in den Keller runter gehen muss. Das Haus hat einen Grundriss von 10 x 10 kann aber in der Länge bzw. Breite verschoben werden. Das Grundstück ist knapp 20m breit und 35 m lang. Geplant ist eine Einzelgarage.
 
Y

ypg

Wenn wir jetzt mal den 2 ten Entwurf 9 x 11 nehmen würden sollte man dann lieber die Wohnräume nach NW ausrichten oder wie auf dem Entwurf zu sehen nach OS. Stelle noch mal beide Entwürfe ein. Ich persönlich würde nach NW ausrichten, aber meine Frau möchte lieber nach OS ausrichten, weil uns Nachbar auf der NW Seite 2 grosse Fenster zu unserer Richtung plant.
Im Winter, wo die Sonne eh kein intensives Licht abgibt, geht diese ca. im Südwest unter. Durch Hauptfenster im NW erreichst Du eine dunkle Bude, zumindest im Winter. Im Sommer ist der Vorteil des Lichts weniger groß.

Im SO die Fenster zu haben wäre für mich die größere Lichtabdeckung.
Ich würde aber immer SW dazu nehmen.
So seh ich das
 
Zuletzt bearbeitet:
W

Watcher78

Das würde bedeuten das man entsprechend den Entwurf mit rechten WHZ weiter verfolgen sollte da dieser von der Ausrichtung der bessere wäre.
 
Zuletzt aktualisiert 18.11.2025
Im Forum Grundrissplanung / Grundstücksplanung gibt es 2536 Themen mit insgesamt 87962 Beiträgen


Ähnliche Themen zu Ausrichtung der Räume bei Nord-Ost Grundstück
Nr.ErgebnisBeiträge
1Grundriss-Entwurf: Einfamilienhaus mit Keller; 560qm Grundstück - Seite 365
2Grundrissfrage, Treppe, Fenster, Ausrichtung 12
3Grundriss erster Entwurf - Meinungen erwünscht - Seite 221
4Entwurf Grundriss Bungalow Meinungen - Seite 422
5Unser Grundriss-Entwurf, eure Meinungen 20
6Entwurf - alle Richtungen bei Neubau vom Einfamilienhaus 91
7Entwurf Einfamilienhaus mit Garage/Carport - bitte um Bewertung - Seite 222
8Planung unseres Einfamilienhaus - Was meint ihr zum Entwurf? - Seite 656
9Einfamilienhaus als Reihenmittelhaus an Hanglage - Entwurf - Seite 318
10Grundriss-Entwurf Stadtvilla mit Doppelgarage - Seite 238
11Erster Entwurf des Grundrisses für 150m2 Haus 31
12Erster Entwurf Grundriss Einfamilienhaus (ca. 200qm) - Bitte um Feedback - Seite 746
13Meinungen zu unserem Grundriss Entwurf erwünscht - Seite 670
14Bitte schaut kritisch über unseren Grundriss-Entwurf 13
15Grundrissplanung mit enger werdendem Grundstück - Seite 223
16Einfamilienhaus 1,5-Geschosser ca. 150qm Grundrissplanung Do-It-Yourself Entwurf 23
17Bitte um Tipps zum Entwurf EG Grundriss 33
18Unser Grundriss-Entwurf für ein günstiges Haus - Seite 4348
19OG Stadtville optimieren. Fenster Bodentief - Seite 13104
20Entwurf Einfamilienhaus mit ca. 168m² Feedback - Seite 537

Oben