Grundriss: Kritisches Feedback sehr erwünscht :)

4,60 Stern(e) 5 Votes
Zuletzt aktualisiert 18.11.2025
Sie befinden sich auf der Seite 2 der Diskussion zum Thema: Grundriss: Kritisches Feedback sehr erwünscht :)
>> Zum 1. Beitrag <<

Y

ypg

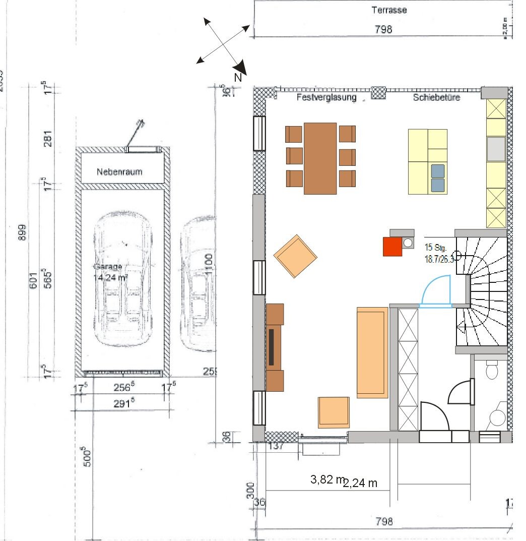
Ich würde oben auch die Wände begradigen. Zwar werden die Zimmer etwas kleiner, dafür läuft man sich im Flur nicht in die Arme: Wand bei den Eltern verlängern, sodass Kind1 verkleinert wird. Flur rechtwinklig gestalten, Kind2 ergibt sich.
Wo soll denn der Besuch schlafen?
Gibt es, auch finanziell, die Möglichkeit, im DG ein Duschbad zu integrieren? Ich würde dann (später) im DG den Elternbereich machen und in das Zimmer im OG als Gästezimmer planen. Grund: für Büro/Gast ist der Raum oben zu schade, außerdem braucht man Abgrenzung. (Wenn dann Kind 3 kommt, hätte man eine Kinderetage, für Besuch muss dann im DG abgeteilt werden... Oder er zieht den Kürzeren, aber das ja eh mit jeglicher Planung)

Seid ihr sicher, dass ihr eine Podesttreppe wollt?
Gibt es die Möglichkeit, die Garage weiter vorzuziehen?
Ich würde dann das mittlere Fenster seitlich weglassen (oder nur ein Fensterband ggü der Treppe) und das Fenster oben links auf 2 Meter Breite planen.
 
kbt09

kbt09

So schön ich Podesttreppen auch finde, sie erschweren im OG die Realisierung von Zimmerzugängen.

Ich würde dort zunächst 2 Kinderzimmer Richtung Südwesten planen.

Im EG ist scheinbar auch ein Kaminofen geplant. Den habe ich mal an der wohl ebenfalls notwendigen Stützsäule eingeplant.

Küche jetzt mit Schiebetür Richtung Terrasse, das macht es wesentlich einfacher nette Grillabende und so weiter zu verbringen.

Wohnen im beruhigten Bereich.

Statt einer Abstellkammer im EG fast 400 cm Garderoben/Staubsauger/Wischerschrank. Kellerabgang im Windfang.

Im OG bedeuten orange eingezeichnete Wände eine Wandhöhe von ca. 100 cm. Z. B. an der Treppenabtrennung im OG und im Bad als Trennung zwischen WC/Badewanne. Hellorange dort dann als Wannenhohe Ablage.

Grundriss eines Hauses mit Wohnzimmer, Küche, Essbereich, Treppe, Garage und Terrasse


Detaillierter Hausgrundriss mit Treppenhaus, Schlafzimmer, Bad und Küche im Plan
 
M

Maria16

Im Ausgangsplan ist als Stufenmaß 18,9/26 bzw zum DG sogar nur 18,9/25,5 angegeben.

Versucht mal eine Treppe mit den Maßen zu finden. Ich hab vor kurzem eine mit 18,3 Höhe ausprobiert und es schon arg unbequem gefunden. Auch die Stufentiefe könnte unschön sein. Durch andere Treppenmaße verändert sich aber der Platzbedarfs enorm!

Ggf. solltet ihr über eine eher gewandelte Form (U) nachdenken.
 
Winterkind

Winterkind

@Maria16,

danke für den Hinweis. Habe gleich einen Termin beim Treppenbauer vereinbart. Da hat uns der Zeichner wohl nicht genug beraten. Zeichnete es einfach. Zu den Treppen noch Folgendes:

@ypg

Wir haben uns u.a. für die Podesttreppe entschieden, weil sie wegen der Größe uns eine längere TV-Wand beschert. Wir kommunizieren mit Blickkontakt (Gebärden) und daher möchte ich, dass d. Sofa an der Wand steht. Wenn wir die gewandelte Treppe nehmen, dann ist die TV-Wand (das ist die Treppenwand) zu kurz. Wir müssten das Sofa in die Mitte des Raumes stellen und gegenüberliegend TV schauen. (siehe Bild: links wir, rechts Nachbar mit U-Treppe).

Wegen der Garage werde ich mich erkundigen, ob man diese vorziehen kann. Danke für den Hinweis!

Mein Mann meinte, wenn wir die Wände im OG gerade machen, und dann das Elternschlafzimmer doch an der Nordseite machen, haben wir keinen Platz für den Schrank. Man würde von der Türe vor dem Schrank stehen.

Duschbad: Hm, du hast schon Recht. Ist alles, wie du sagtest, eine Geldfrage. Mache mich diesbezüglich mal schlau.

@kbt09

WOW! Danke. Damit habe ich nicht gerechnet. Habe es gleich mal ausgedruckt und werde es heut Abend mit meinem Mann besprechen. Ganz anders. Nur das Wohnzimmer an der Straßenseite ist ziemlich ungewöhnlich für mich. In meinem Elternhaus war im Wohnzimmer eine sehr große Fensterfront. Muss mal darüber nachdenken.
Ja, Podesttreppen gefallen mir auch. Wir haben uns aber nicht nur wegen des Optischen dafür entschieden (siehe oben).
 
Winterkind

Winterkind


Zweidimensionaler Grundrissplan eines Gebäudes mit Treppen, Wänden, Türen und Maßangaben


@ypg @Maria16 @kbt09

Hier die Zeichnung, weswegen wir die Podesttreppe besser fanden. Sie verlängert die Wand im Wohnzimmer, die wir dann als TV-Wand nutzen wollten. Das Sofa stünde dann gegenüber an der Fensterfront.
 
Zuletzt aktualisiert 18.11.2025
Im Forum Grundrissplanung / Grundstücksplanung gibt es 2536 Themen mit insgesamt 87966 Beiträgen


Ähnliche Themen zu Grundriss: Kritisches Feedback sehr erwünscht :)
Nr.ErgebnisBeiträge
1Fenster im Gäste-WC/Gästezimmer trotz Garage möglich? - Seite 333
2Wohnzimmer: Wie Sofa, TV und Schränke stellen? - Seite 432
3Grundriss Einfamilienhaus, 200m2, 2 Vollgeschosse, Garage, ohne Keller 39
4Vorentwurf Einfamilienhaus zur Diskussion - Seite 421
5Planung Gäste-WC im Neubau - Wie groß muss es sein? (DIN?) - Seite 14107
6Grundriss für 150qm Einfamilienhaus mit Wohnzimmer nach Norden - Seite 321
73. Zimmer im 40qm Wohnzimmer unterkriegen. Ideen 74
8 Ratschläge und Tipps zu Hausgrundriss (Einfamilienhaus 1,5 Geschosse) 53
9Grundriss Bungalow 150m² - Meinungen erwünscht - Seite 430
10WC-Fenster Gäste-WC neben der Eingangstür - inzwischen nogo? 44
11Gäste-WC: Decke abhängen oder Rohr verkleiden? - Seite 216
12Einfamilienhaus ca. 180qm in ländlicher Lage 13
13Lichtanschluss falsche Stelle Gäste-WC 29
14Beispiel Kaltwasserhahn für Gäste-WC 12
15Lage Gäste-WC - Eingangsbereich? 28
16Gäste-WC (1,65qm) und Bad (4,88qm) Sanierung 21
17Gäste-WC Anordnung - Tipps? 19
18Rollladen im Gäste-WC ja oder nein? 35
19Planung Gäste-WC, brauche eure Tipps 17
20Entwürfe Gestaltung Fliesen Bad / Gäste-WC - Seite 319

Oben