Doppelhaus mit ungleichen Hälften = verschiedene Grundrisse

4,40 Stern(e) 10 Votes
Zuletzt aktualisiert 10.10.2025
Sie befinden sich auf der Seite 10 der Diskussion zum Thema: Doppelhaus mit ungleichen Hälften = verschiedene Grundrisse
>> Zum 1. Beitrag <<

MadameP

MadameP

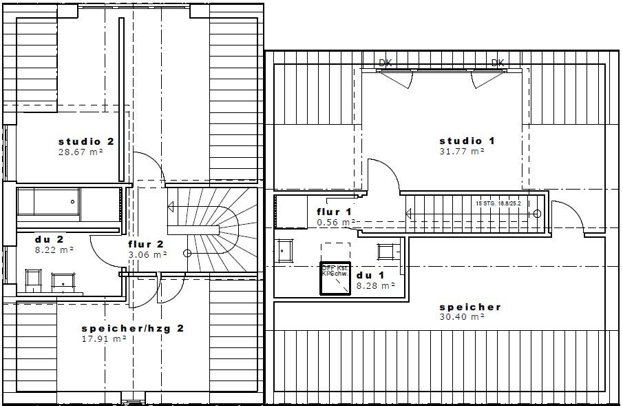
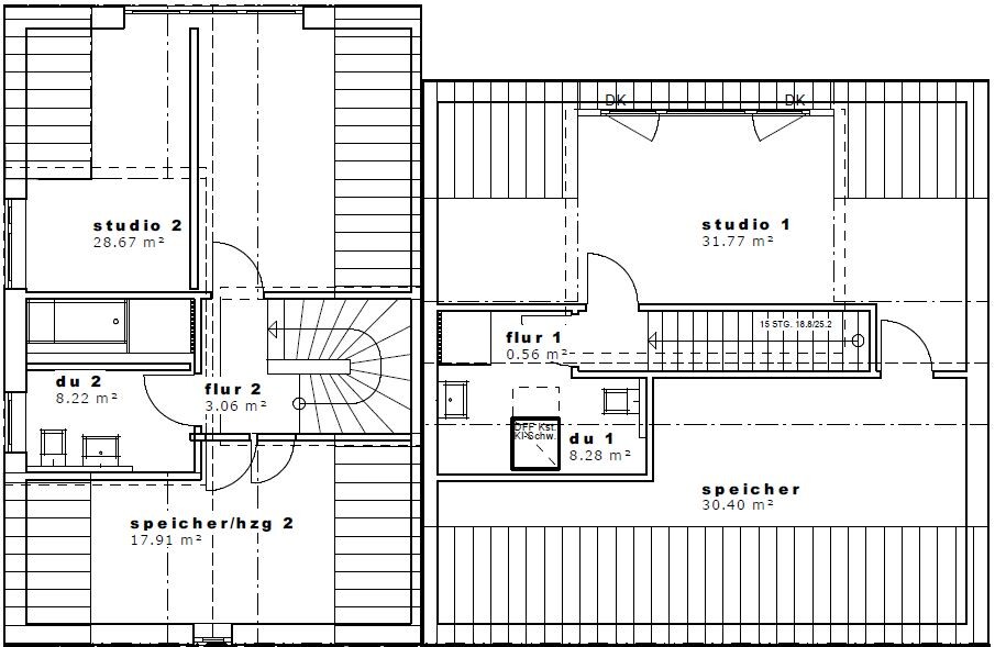
So, jetzt noch mal in komplett. Dazu ist zu sagen, dass das Entwurfsstadium ist, es wird also auch mal was auf die Schnelle geschoben und die Außenansichten stimmen noch nicht ganz bei Haus 2 (Verkauf).

Im Bad im OG bei Haus 1 (Nordhälfte) kommt planrechts eine Abseite hin und die Dusche wandert neben die Tür. Zugang zur Abseite dann zwischen Wanne und Dusche, dort kommt Wasch-/Trockenturm hinein sowie Regale für Handtücher, Putzmittel, Toilettenpapier etc.

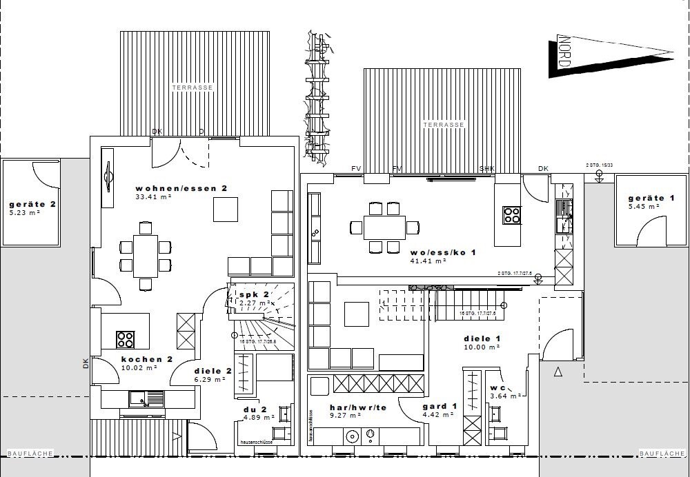
Der Esstisch im EG ist noch nicht richtig dimensioniert, das wird ein Tisch für 8-10 Personen.
Wir werden wahrscheinlich die Vorkehrungen für einen Kaminanschluss treffen lassen, der Kamin käme dann etwas erhöht auf die Split Level Stufen zwischen Essplatz und Sitzecke.

Grundriss eines Hauses mit Wohn-/Essbereich, Küche, Diele und Terrassen.


Grundriss eines Gebäudeteils mit zwei Studios, Fluren, Dusche und Speicher.


Grundriss eines Gebäudes mit zwei Studios, Fluren, Duschen, Speicher und Treppen.
 
Y

ypg

Ja, das ist mir auch aufgefallen. Habe überlegt, die Wand zwischen den Kinderzimmern noch ein Mü-chen nach planrechts zu schieben,
würde ich so lassen. Manche Räume haben nun mal gerade nur 2,40... in diesem Fall etwas mehr. Vlt wird es ein Büro?!

Die Wasserentsorgung im DG würde mir Sorgen machen. Führt die dann durchs Schlafzimmer? Würde überlegen, Heizung und Dusche 2 zu tauschen.
würd ich auch nicht als Problem sehen. Die Alternative mit dem Tausch ist faul, da hier die Dachschrägen stören.
Es handelt sich ja auch um _eine_ Familie, die das Haus bewohnt. Da sollte man sich nicht zu viele Sorgen seitens "Geräusche" machen.

Was ich, wenn es meines ist, verbessern würde: ich würde die Hochschränke der Küche dorthin setzen, wo die Terrassentür ist, also eine L-Küche anstreben. Dann die Insel an die Mittelwand des Hauses setzen, also weiter planrechts. Dort wo die Insel angedockt war, Terrassentür. Also alles im Dreieck rotieren lassen. Die Terrassentür dort, wo sie ist, stört nur im offenen Zustand.
 
MadameP

MadameP

Hier noch die vorläufigen Ansichten "auf die Schnelle", d.h. die Fenster stimmen teilweise nicht ganz und mit folgenden Änderungen:

Carport bei Haus 1 (hell) wird mit beantragt, werden wir wahrscheinlich aber erst mal nicht machen. Gefällt mir nicht... Geräteraum wird dafür evtl. etwas größer. Die Haustür wird natürlich nicht aus Glas, das ist hier falsch dargestellt.
Haus 2 (dunkel) bekommt keine Garage, sondern auch einen Geräteraum, evtl. mit Carport. Dort passt er besser.
Daher gehen dort auf der Seite im EG auch Fenster bzw. Terrassentür aus der Küche.

Moderne Villa auf Hang mit brauner Giebelfassade links, beige Blockfront und Glasfronten.


Modernes zweistöckiges Haus mit großer Glasfront, Anbau und Terrasse.


Modernes zweistöckiges Haus mit großen Fenstern, Holzterrasse und Garten.


Moderne zweigeschossige Hausansicht als Rendering mit großen Glasfenstern, Holzterrasse und Garten.


Modernes rotes Einfamilienhaus mit großen Glasfenstern, Giebeldach und Garage.
 
MadameP

MadameP

Was ich, wenn es meines ist, verbessern würde: ich würde die Hochschränke der Küche dorthin setzen, wo die Terrassentür ist, also eine L-Küche anstreben. Dann die Insel an die Mittelwand des Hauses setzen, also weiter planrechts. Dort wo die Insel angedockt war, Terrassentür. Also alles im Dreieck rotieren lassen. Die Terrassentür dort, wo sie ist, stört nur im offenen Zustand.
Du sprichst von der Südhälfte? Ich frage, weil ich gerade das komplette Projekt gepostet habe. Muss ich mal durchdenken, klingt aber spontan gut.

Mit der Küche in der Nordhälfte bin ich noch nicht glücklich, ich bezweifle, dass ich da alles unterbekomme, was ich will.
 
Zuletzt bearbeitet:
Y

ypg

Du sprichst von der Südhälfte? Ich frage, weil ich gerade das komplette Projekt gepostet habe. Muss ich mal durchdenken, klingt aber spontan gut.

Mit der Küche in der Nordhälfte bin ich noch nicht glücklich, ich bezweifle, dass ich da alles unterbekomme, was ich will.
Ja , die Südhälfte. Wir haben uns überschnitten....
 
Zuletzt aktualisiert 10.10.2025
Im Forum Grundrissplanung / Grundstücksplanung gibt es 2513 Themen mit insgesamt 87221 Beiträgen


Ähnliche Themen zu Doppelhaus mit ungleichen Hälften = verschiedene Grundrisse
Nr.ErgebnisBeiträge
1Haus-Entwurf Einfamilienhaus - Zukünftig als Zweifamilienhaus trennbar - Seite 1072
2Terrassentür ungleich Fenster, oder? 21
3Bodengleiche Dusche mit Fenster in der Nähe 13
4Dusche direkt am Fenster - kompatibel oder inkompatibel? - Seite 422
5Carport mit Geräteraum: Bestellen oder selbst bauen? 10
6Grundriss, Ideen zur räumlichen Trennung innerhalb der Küche 23
7Grundrissfrage, Treppe, Fenster, Ausrichtung 12
8Grobe Schnitzer im Grundriss? Küche zu klein? 39
9Küchenplanung - Ideenfindung und Planung Küche Neubau 20
10Haus, Garage / Carport auf dem Grundstück platzieren - Seite 493
11Nordterrasse und Küche im Süden? Feedback erwünscht 37
12Grundrissplanung: Badezimmer Dusche 47
13OG Stadtville optimieren. Fenster Bodentief - Seite 13104
14Geplanter Küche Ideen oder Anmerkungen? - Seite 442
15Grundriss 120 m², Einfamilienhaus 1,5, Carport. Meinungen, Ideen, Vorschläge 42
16Umbau geschlossene in Offene Küche 15
17Grundriss Einfamilienhaus 150qm - Fenster- und Badplanung - Seite 218
18Geschlossene oder offene Küche ? 11
19Neubau Einfamilienhaus inkl. Carport und Garage - Reale Kostenschätzung? 11
20Hilfe bei der Anordnung der Fenster benötigt! 32

Oben