Doppelhaus mit ungleichen Hälften = verschiedene Grundrisse

4,40 Stern(e) 10 Votes
Zuletzt aktualisiert 23.11.2025
Sie befinden sich auf der Seite 9 der Diskussion zum Thema: Doppelhaus mit ungleichen Hälften = verschiedene Grundrisse
>> Zum 1. Beitrag <<

MadameP

MadameP

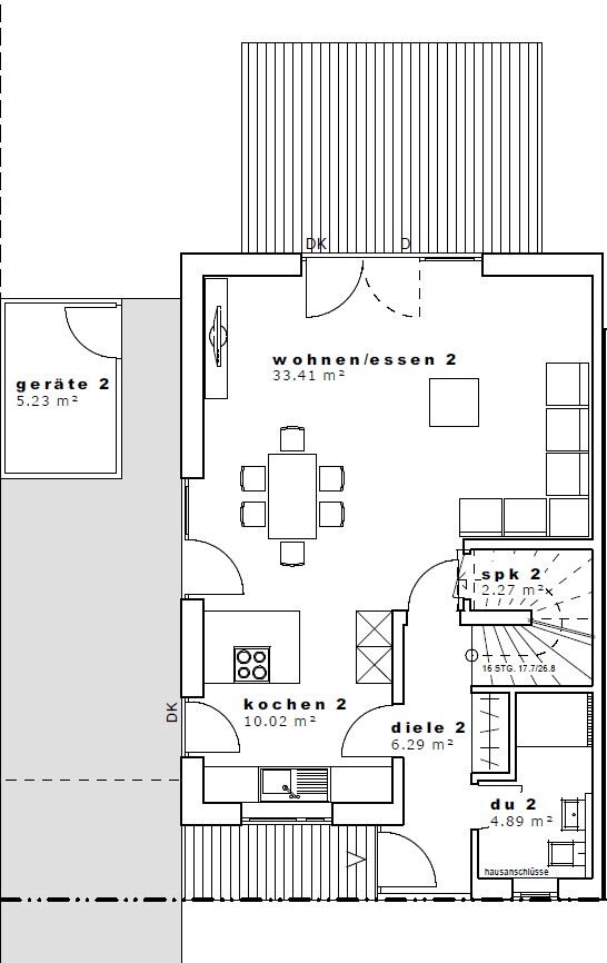
Sodele. Wir haben @11ant s Rat befolgt und verfolgen aktuell den Querhausentwurf weiter. Am Grundriss für die "Querhälfte" wird noch gefeilt, den für die "Längshälfte" kann ich hier schon mal teilen.
Im DG sind ein paar Flüchtigkeitswände geparkt; alles was nicht ganz korrekt ist, habe ich rosa markiert. Aber den Grundriss kann man erkennen.

Habt ihr Anmerkungen oder Verbesserungsvorschläge? Ich bin hier nicht ganz so emotional, weil es die Verkaufshälfte betrifft. Insgesamt finde ich den Grundriss aber gelungen mit einer guten Raumnutzung.
Insbesondere gefällt mir, dass der Treppenaufgang zum OG im Flur des EG abgeht, die Terrassentür zum Stellplatz (Carport noch offen), die großen Westfenster im Studio und die 3 Meter Schrankfläche im nicht riesigen Elternschlafzimmer.

Norden ist planrechts. Sorry habe den Nordpfeil vergessen.

Grundriss einer Wohnung: offener Wohn-/Essbereich, Küche, Diele, Bad, Treppe, Außenbereich.


Grundriss des oberen Stockwerks mit zwei Kinderzimmern, Schlafzimmer, Bad, Flur und Treppe.


Grundriss eines Stockwerks: Studio 2, du 2, Flur 2, Speicher/HZG 2, Treppenhaus.
 
11ant

11ant

Kind 2.1 hat geschätzt Zweisechzig Raumbreite, ansonsten scheint mir der Plan schon recht gelungen. Mein Traum wäre es so trotzdem nicht, aber in München oder Stuttgart fühlt man sich wohl schon als Glückspilz, so bauen zu können.

Ich bin hier nicht ganz so emotional, weil es die Verkaufshälfte betrifft.
Ich bin gerade zu faul zum Zurückblättern: wann wollt Ihr in deren Vermarktung eintreten ?
 
MadameP

MadameP

Ja, das ist mir auch aufgefallen. Habe überlegt, die Wand zwischen den Kinderzimmern noch ein Mü-chen nach planrechts zu schieben, auch wenn das eher Kosmetik sein dürfte. Ich hoffe ich bekomme diese Woche bemaßte Grundrisse.
In die Vermarktung wollen wir gehen, wenn der Bauantrag durch ist.
 
kaho674

kaho674

Die Wasserentsorgung im DG würde mir Sorgen machen. Führt die dann durchs Schlafzimmer? Würde überlegen, Heizung und Dusche 2 zu tauschen.
Ansichten sind mir auch noch nicht ganz klar.
 
Zuletzt aktualisiert 23.11.2025
Im Forum Grundrissplanung / Grundstücksplanung gibt es 2535 Themen mit insgesamt 87993 Beiträgen


Ähnliche Themen zu Doppelhaus mit ungleichen Hälften = verschiedene Grundrisse
Nr.ErgebnisBeiträge
1Grundriss - Haus mit Einliegerwohnung 23
2Wie findet ihr diesen Grundriss? - Seite 211
3Bitte um ehrliche Meinung zu unserem Grundriss!! 29
4Grobe Kostenrechnung anhand Grundriss 13
5Grundriss die IV! :-) 18
6Meinungen zum Grundriss EG 10
7Grundriss über 200qm - Was haltet die Experten davon? 13
8Einfamilienhaus, geschätzte Kosten und Anregungen Grundriss - Seite 649
9Eure Meinung zum Grundriss für das EG - Seite 528
10Meinung zum Grundriss eines geplanten Bauhauses 23
11Was sagt ihr zu unserem Grundriss? 15
12Grundriss Einfamilienhaus. Eure Anregungen sind gefragt. - Seite 317
13Grundriss, Wohnbereich zu eng, Ideen / Vorschläge 17
14Hilfe beim Grundriss des Hauses, Verbesserungsvorschläge? 28
15Grundriss, Ideen zur räumlichen Trennung innerhalb der Küche - Seite 223
16Stadtvilla -> Eure Meinung zum Grundriss, Vorschläge - Seite 321
17Grundriss erster Entwurf - Meinungen erwünscht 21
18Grundriss Bungalow, sucht wertvolle Tipps / Bemerkungen 24
19Unser Grundriss von 120qm auf 469qm Grundstück - Seite 1073
20Grundriss Einfamilienhaus mit Doppelgarage und Terrasse - Seite 219

Oben