ᐅ Doppelhaus mit ungleichen Hälften = verschiedene Grundrisse
Erstellt am: 06.11.18 21:56
MadameP06.11.18 21:56
Vorbemerkung: die größere Hälfte im Norden (planrechts) ist zur Eigennutzung gedacht. Die kleinere "Hälfte"im Süden (planlinks) wird verkauft. Für die Verkaufshälfte gab es nur die Vorgabe "sinnvolle Raumnutzung für 3, Max. 4 Personen. Ich gehe daher hier etwas detaillierter auf die eigene Hälfte ein.
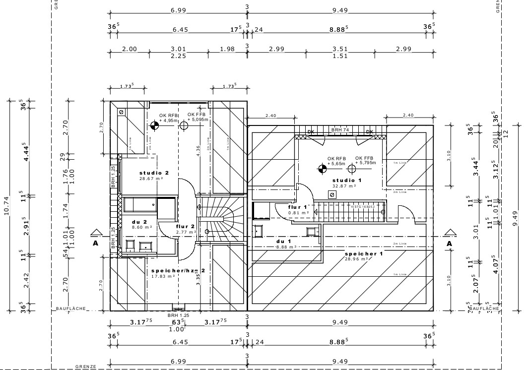
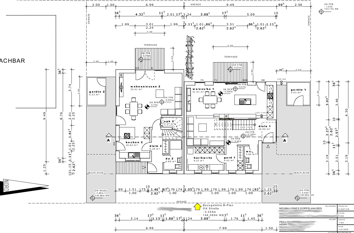
Weil es aus den Grundrissausschnitten so nicht erkennbar ist: die eigene Hälfte ist 8,75 m breit und 9 m tief, die Verkaufshälfte 6,10 m breit und 9,65 m tief (Außenmaße).
Bebauungsplan/Einschränkungen
Größe des Grundstücks: 479 qm, 23m breit, 20,80m tief
Hang: nach Südwesten abfallend, ca. 3m in der Diagonale NO-SW
Grundflächenzahl: 0,35
Geschossflächenzahl: 0,7
Baufenster, Baulinie und -grenze: 3m Baugrenze, kein Baufenster
Randbebauung: Garage der Nachbarn an der Südgrenze
Anzahl Stellplatz: 2 pro Wohneinheit
Geschossigkeit: 2 Vollgeschosse
Dachform: SD 25-45 Grad, WD, Krüppelwalmdach, VPD
Maximale Höhen/Begrenzungen: Max. FH 9,50m
weitere Vorgaben: nein
Anforderungen der Bauherren
Stilrichtung, Dachform, Gebäudetyp: modern, geradlinig, einfacher Baukörper, Satteldach
Keller, Geschosse: kein Keller, 2 Vollgeschosse, DG
Anzahl der Personen, Alter: 3 (2 Erw.+Kleinkind, mehr werden es nicht) / 2. Doppelhaushälfte soll für Familie mit Max. 2 Kindern ausgelegt werden
Raumbedarf im EG, OG eigene Hälfte:
EG: Gäste-WC, Garderobe, großer offener Wohn/Essbereich, Küche offen, HAR/Technik
OG: großes Kinderzimmer, Schlafzimmer, Familienbad, Hauswirtschaftsraum (Wäsche)
DG: Studio (Büro / Gästezimmer / Hobbyraum), Duschbad
Büro: Familiennutzung oder Homeoffice? sowohl als auch
Schlafgäste pro Jahr: ca. 20 Nächte, 1-4 Personen
offene oder geschlossene Architektur:
konservativ oder moderne Bauweise: modern
offene Küche, Kochinsel: beides
Anzahl Essplätze: 8
Kamin: unentschieden
Musik/Stereowand: nein
Balkon, Dachterrasse: nein
Garage, Carport: nein, Stellplätze
Nutzgarten, Treibhaus: nein
weitere Wünsche/Besonderheiten/Tagesablauf, gern auch Begründungen, warum dieses oder das nicht sein soll: Vorgabe für die eigene Hälfte war Podesttreppe, nicht über den Wohnbereich zugänglich. Gewünscht war ein Entwurf abseits vom "klassischen DH-Standard", auch äußerlich. Kein "Eingangsschlauch".
Hausentwurf
Von wem stammt die Planung: Architekt
Was gefällt besonders? Warum?
Eigene Hälfte:
- Split Level zum Wohnbereich, dadurch große Raumhöhe im Allraum und Ausnutzung der Topographie
- großer Garderobenbereich/Stauraum
- Stauraum unter Treppe nutzbar gemacht
- Hauswirtschaftsraum im OG
- großes Kinderzimmer (soll perspektivisch mit DG Studio getauscht werden, wenn Kind größer)
Verkaufshälfte:
- ?
Was gefällt nicht? Warum?
Eigene Hälfte:
- HAR nur von außen zugänglich (wtf?!)
- Allraum recht "klein"
- Küche klein, ohne Insel, Essplatz nur für 6 Pers.
- Gäste-WC verschwendet Platz
- insgesamt wenig/kleine Fenster
- Anordnung Familienbad: Austritt Dusche vor Tür, Toilette direkt neben Waschbecken
- leider keine Ankleide
- Bad DG: Austritt Dusche wieder genau vor Tür
- DG Studio Fenster: winzige Schießscharte nach Westen (die Seite mit dem wirklich tollen Ausblick), dafür 2 Dachflächenfenster. (mein nächster wtf Moment)
Verkaufshälfte:
- kein 2. Duschbad
- Bad OG winzig, keine Dusche
- langweiliger Grundriss
- 2. Zimmer DG ohne Fenster?! (schon wieder wtf Moment)
Preisschätzung lt. Planer: gerade noch im Budget (möchte aufgrund der Verkaufspläne die Zahlen nicht öffentlich diskutieren, bitte um Verständnis)
favorisierte Heiztechnik: am liebsten Erdwärme, falls noch im Budget
Wenn Ihr verzichten müsst, auf welche Details/Ausbauten
-könnt Ihr verzichten: Erdwärme, Bad DG (würden dann erst mal nur die Leitungen hochlegen, Ausbau später)
-könnt Ihr nicht verzichten: Podesttreppe
Warum ist der Entwurf so geworden, wie er jetzt ist?
Unsere Vorgaben, das Raumprogramm betreffend, wurden weitestgehend umgesetzt.
Welche Wünsche wurden vom Architekten umgesetzt?
Höhen- und Tiefenversatz der Haushälften, Treppe sich nicht vom Wohnraum aus erschließend, Hauswirtschaftsraum im OG
Was macht ihn in Euren Augen besonders gut oder schlecht?
Anordnung, Lage und Größe der Fenster lösen in mir große Fragezeichen aus.
Des weiteren will sich mir nicht erschließen, warum die Grundstücksbreite nicht ausgenutzt wird. Uns reichen seitlich 3,50 m für die Stellplätze, bei der Verkaufshälfte würden wir 3 Meter lassen um hinten nicht so viel Garten wegzunehmen. Die allererste Studie war noch viel schlauchiger, wir hatten schon darauf hingewiesen. Nun sind es im Norden trotzdem noch 4,12 Meter und im Süden 3,93 Meter seitlich. Warum?? Toter Platz neben den Autos, den wir nicht nutzen werden, im Gegensatz zu Gartenfläche nach Westen raus.
Was ist die wichtigste/grundlegende Frage zum Grundriss in 130 Zeichen zusammengefasst?
Was können wir besser machen?










Weil es aus den Grundrissausschnitten so nicht erkennbar ist: die eigene Hälfte ist 8,75 m breit und 9 m tief, die Verkaufshälfte 6,10 m breit und 9,65 m tief (Außenmaße).
Bebauungsplan/Einschränkungen
Größe des Grundstücks: 479 qm, 23m breit, 20,80m tief
Hang: nach Südwesten abfallend, ca. 3m in der Diagonale NO-SW
Grundflächenzahl: 0,35
Geschossflächenzahl: 0,7
Baufenster, Baulinie und -grenze: 3m Baugrenze, kein Baufenster
Randbebauung: Garage der Nachbarn an der Südgrenze
Anzahl Stellplatz: 2 pro Wohneinheit
Geschossigkeit: 2 Vollgeschosse
Dachform: SD 25-45 Grad, WD, Krüppelwalmdach, VPD
Maximale Höhen/Begrenzungen: Max. FH 9,50m
weitere Vorgaben: nein
Anforderungen der Bauherren
Stilrichtung, Dachform, Gebäudetyp: modern, geradlinig, einfacher Baukörper, Satteldach
Keller, Geschosse: kein Keller, 2 Vollgeschosse, DG
Anzahl der Personen, Alter: 3 (2 Erw.+Kleinkind, mehr werden es nicht) / 2. Doppelhaushälfte soll für Familie mit Max. 2 Kindern ausgelegt werden
Raumbedarf im EG, OG eigene Hälfte:
EG: Gäste-WC, Garderobe, großer offener Wohn/Essbereich, Küche offen, HAR/Technik
OG: großes Kinderzimmer, Schlafzimmer, Familienbad, Hauswirtschaftsraum (Wäsche)
DG: Studio (Büro / Gästezimmer / Hobbyraum), Duschbad
Büro: Familiennutzung oder Homeoffice? sowohl als auch
Schlafgäste pro Jahr: ca. 20 Nächte, 1-4 Personen
offene oder geschlossene Architektur:
konservativ oder moderne Bauweise: modern
offene Küche, Kochinsel: beides
Anzahl Essplätze: 8
Kamin: unentschieden
Musik/Stereowand: nein
Balkon, Dachterrasse: nein
Garage, Carport: nein, Stellplätze
Nutzgarten, Treibhaus: nein
weitere Wünsche/Besonderheiten/Tagesablauf, gern auch Begründungen, warum dieses oder das nicht sein soll: Vorgabe für die eigene Hälfte war Podesttreppe, nicht über den Wohnbereich zugänglich. Gewünscht war ein Entwurf abseits vom "klassischen DH-Standard", auch äußerlich. Kein "Eingangsschlauch".
Hausentwurf
Von wem stammt die Planung: Architekt
Was gefällt besonders? Warum?
Eigene Hälfte:
- Split Level zum Wohnbereich, dadurch große Raumhöhe im Allraum und Ausnutzung der Topographie
- großer Garderobenbereich/Stauraum
- Stauraum unter Treppe nutzbar gemacht
- Hauswirtschaftsraum im OG
- großes Kinderzimmer (soll perspektivisch mit DG Studio getauscht werden, wenn Kind größer)
Verkaufshälfte:
- ?
Was gefällt nicht? Warum?
Eigene Hälfte:
- HAR nur von außen zugänglich (wtf?!)
- Allraum recht "klein"
- Küche klein, ohne Insel, Essplatz nur für 6 Pers.
- Gäste-WC verschwendet Platz
- insgesamt wenig/kleine Fenster
- Anordnung Familienbad: Austritt Dusche vor Tür, Toilette direkt neben Waschbecken
- leider keine Ankleide
- Bad DG: Austritt Dusche wieder genau vor Tür
- DG Studio Fenster: winzige Schießscharte nach Westen (die Seite mit dem wirklich tollen Ausblick), dafür 2 Dachflächenfenster. (mein nächster wtf Moment)
Verkaufshälfte:
- kein 2. Duschbad
- Bad OG winzig, keine Dusche
- langweiliger Grundriss
- 2. Zimmer DG ohne Fenster?! (schon wieder wtf Moment)
Preisschätzung lt. Planer: gerade noch im Budget (möchte aufgrund der Verkaufspläne die Zahlen nicht öffentlich diskutieren, bitte um Verständnis)
favorisierte Heiztechnik: am liebsten Erdwärme, falls noch im Budget
Wenn Ihr verzichten müsst, auf welche Details/Ausbauten
-könnt Ihr verzichten: Erdwärme, Bad DG (würden dann erst mal nur die Leitungen hochlegen, Ausbau später)
-könnt Ihr nicht verzichten: Podesttreppe
Warum ist der Entwurf so geworden, wie er jetzt ist?
Unsere Vorgaben, das Raumprogramm betreffend, wurden weitestgehend umgesetzt.
Welche Wünsche wurden vom Architekten umgesetzt?
Höhen- und Tiefenversatz der Haushälften, Treppe sich nicht vom Wohnraum aus erschließend, Hauswirtschaftsraum im OG
Was macht ihn in Euren Augen besonders gut oder schlecht?
Anordnung, Lage und Größe der Fenster lösen in mir große Fragezeichen aus.
Des weiteren will sich mir nicht erschließen, warum die Grundstücksbreite nicht ausgenutzt wird. Uns reichen seitlich 3,50 m für die Stellplätze, bei der Verkaufshälfte würden wir 3 Meter lassen um hinten nicht so viel Garten wegzunehmen. Die allererste Studie war noch viel schlauchiger, wir hatten schon darauf hingewiesen. Nun sind es im Norden trotzdem noch 4,12 Meter und im Süden 3,93 Meter seitlich. Warum?? Toter Platz neben den Autos, den wir nicht nutzen werden, im Gegensatz zu Gartenfläche nach Westen raus.
Was ist die wichtigste/grundlegende Frage zum Grundriss in 130 Zeichen zusammengefasst?
Was können wir besser machen?
MadameP06.11.18 22:07
User081506.11.18 22:08
Nur kurz zu deinem "HAR nur von außen betretbar - wtf?": das muss so, weil die Technik auch für die andere Haushälfte ist. Nach § 5 Abs. 2 WEG dürfen Räume die der gemeinschaftlichen Nutzung dienen (wie eben Technikräume) kein Sondereigentum sein. Die Nachbarn müssen ja auch Zugriff haben, ohne immer darauf angewiesen zu sein, dass ihr da seid, ist ja schließlich auch ihre Technik. Ihr habt ja im OG noch einen Hauswirtschaftsraum.
MadameP06.11.18 22:11
User0815 schrieb:
Nur kurz zu deinem "HAR nur von außen betretbar - wtf?": das muss so, weil die Technik auch für die andere Haushälfte ist. Nach § 5 Abs. 2 WEG dürfen Räume die der gemeinschaftlichen Nutzung dienen (wie eben Technikräume) kein Sondereigentum sein. Die Nachbarn müssen ja auch Zugriff haben, ohne immer darauf angewiesen zu sein, dass ihr da seid, ist ja schließlich auch ihre Technik. Ihr habt ja im OG noch einen Hauswirtschaftsraum.Nein, die Südhälfte hat einen eigenen Technikraum im DG, Hausanschlüsse dort sind im Gäste-WC. Die Haushälften werden separat angeschlossen, jede erhält eigene Heiztechnik etc. Größtmögliche Trennung ist uns extrem wichtig. Daher mein wtf...
Snowy3606.11.18 22:14
Mir fällt ganz spontan ein dass ich auf die Entkopplung der Treppe der Nachbarn sehr stark achten würde gerade weil euer Schlafzimmer direkt daran grenzt
Wenn die Nachbarn die Treppe rauf und runter gehen wenn ihr schlaft solltet ihr davon nichts hören (müssen)
Wenn die Nachbarn die Treppe rauf und runter gehen wenn ihr schlaft solltet ihr davon nichts hören (müssen)
User081506.11.18 22:19
MadameP schrieb:
Nein, die Südhälfte hat einen eigenen Technikraum im DG, Hausanschlüsse dort sind im Gäste-WC. Die Haushälften werden separat angeschlossen, jede erhält eigene Heiztechnik etc. Größtmögliche Trennung ist uns extrem wichtig. Daher mein wtf...Dann nehm ich alles zurück, den hatte ich übersehen.Ähnliche Themen