ᐅ Grundrissplanung Einfamilienhaus (Stadtvilla) ca.140m² (3 Kinderzimmer)
Erstellt am: 05.07.18 10:59
R
rbommesHallo zusammen,
wir hatten das Glück ein Baugrundstück zugeteilt zu bekommen und beschäftigen uns aktuell sehr intenvis mit der Grundrissplanung.
Ich habe schon länger im Forum mitgelesen und bereits einige Ideen umgesetzt.
Langsam geht es bei uns in die heiße Phase und ich würde euch gerne unsere Planung vorstellen. Ich würde mich über euer Feedback freuen.
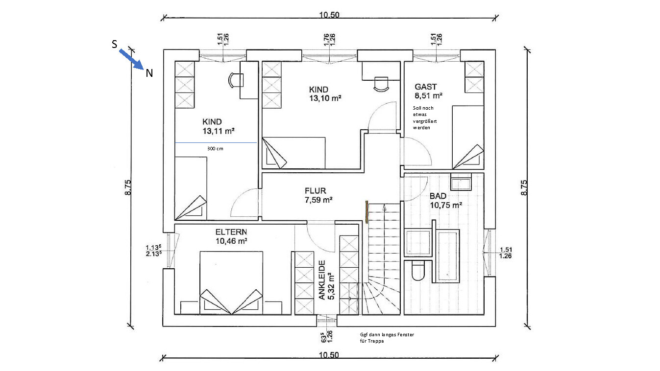
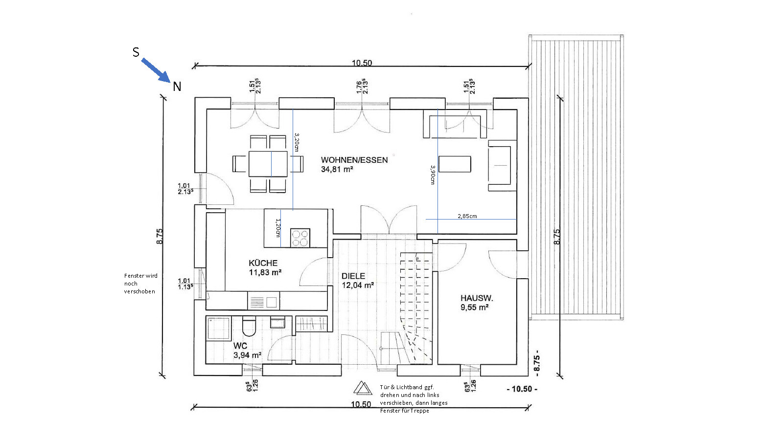
Würde z.B ein schmales, langes Fenster für die Treppe Sinn machen (wenn man die Türe mit Lichtband dreht)?
Die Fenster an der Front sind durch den Grundriss eher klein, seht ihr hier eine bessere Lösung? (Sonst kann es auch so bleiben, halten uns dort ja nicht auf und wäre nur für die Show)
Wo sollte das Außengerät der Luft-Wasser-Wärmepumpe hin?
Bebauungsplan/Einschränkungen
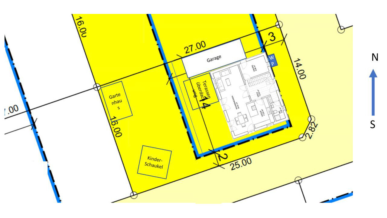
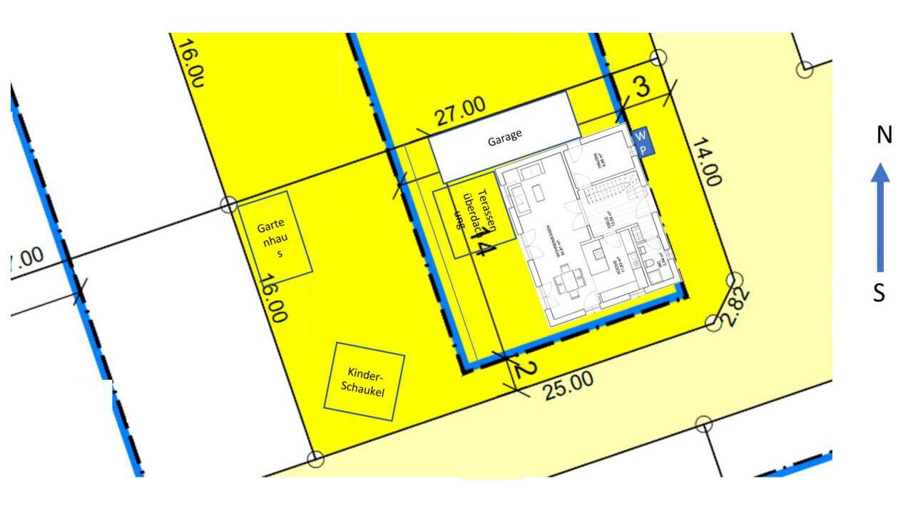
Größe des Grundstücks: 430m2
Hang: Nein
Grundflächenzahl: 0,8
Geschossflächenzahl: 0,4
Baufenster, Baulinie und -grenze: 11m x 14m
Randbebauung: Nein
Anzahl Stellplatz: 1-2 (Vor der Garage und neben dem Haus)
Geschossigkeit: 2
Dachform: Keine Einschränkungen
Stilrichtung: Keine Einschränkungen
Ausrichtung: Keine Einschränkungen
Maximale Höhen/Begrenzungen: Traufhöhe 6m, Firsthöhe 11m. Abstand zum Nachbarn 3m, Garage muss 5m nach hinten versetzt sein. Bebauung über das Baufenster mit Erkern, Überdachungen, Solar usw. erlaubt
Anforderungen der Bauherren
Stilrichtung, Dachform, Gebäudetyp: Stadtvilla, Walmdach
Keller, Geschosse: Kein Keller, 2 Geschosse
Anzahl der Personen, Alter: 4-5 (34; 30; 1,5; 1,5)
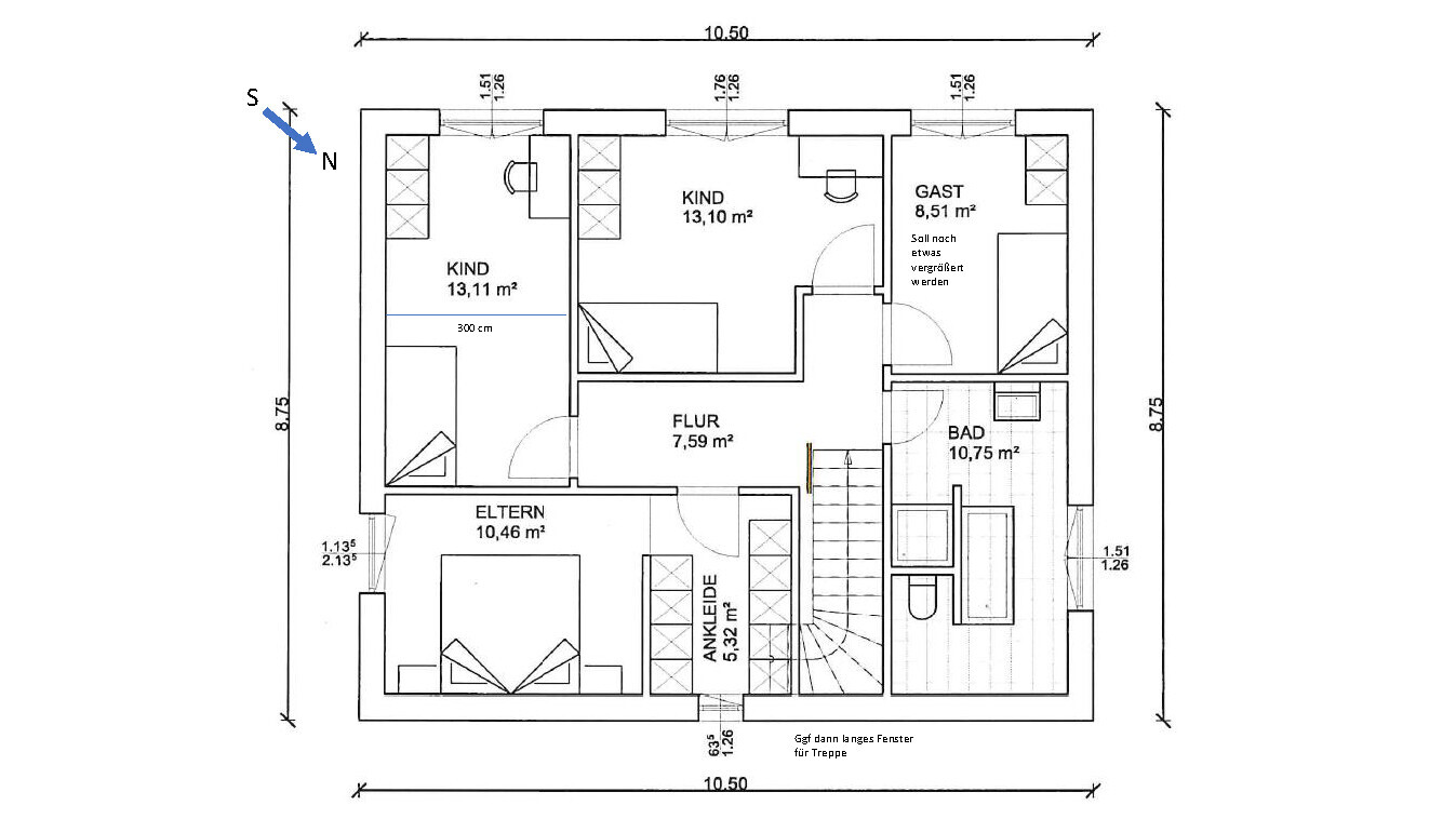
Raumbedarf im EG, OG: OG:3 Kinderzimmer für weitere Familienplanung
Büro: Familiennutzung oder Homeoffice?: Gastzimmer vorerst Büro/Hobbyzimmer, dann evtl. Kinderzimmer/Spielzimmer
Schlafgäste pro Jahr: kaum
offene oder geschlossene Architektur: unten offen, oben eher geschlossen
konservativ oder moderne Bauweise: modern
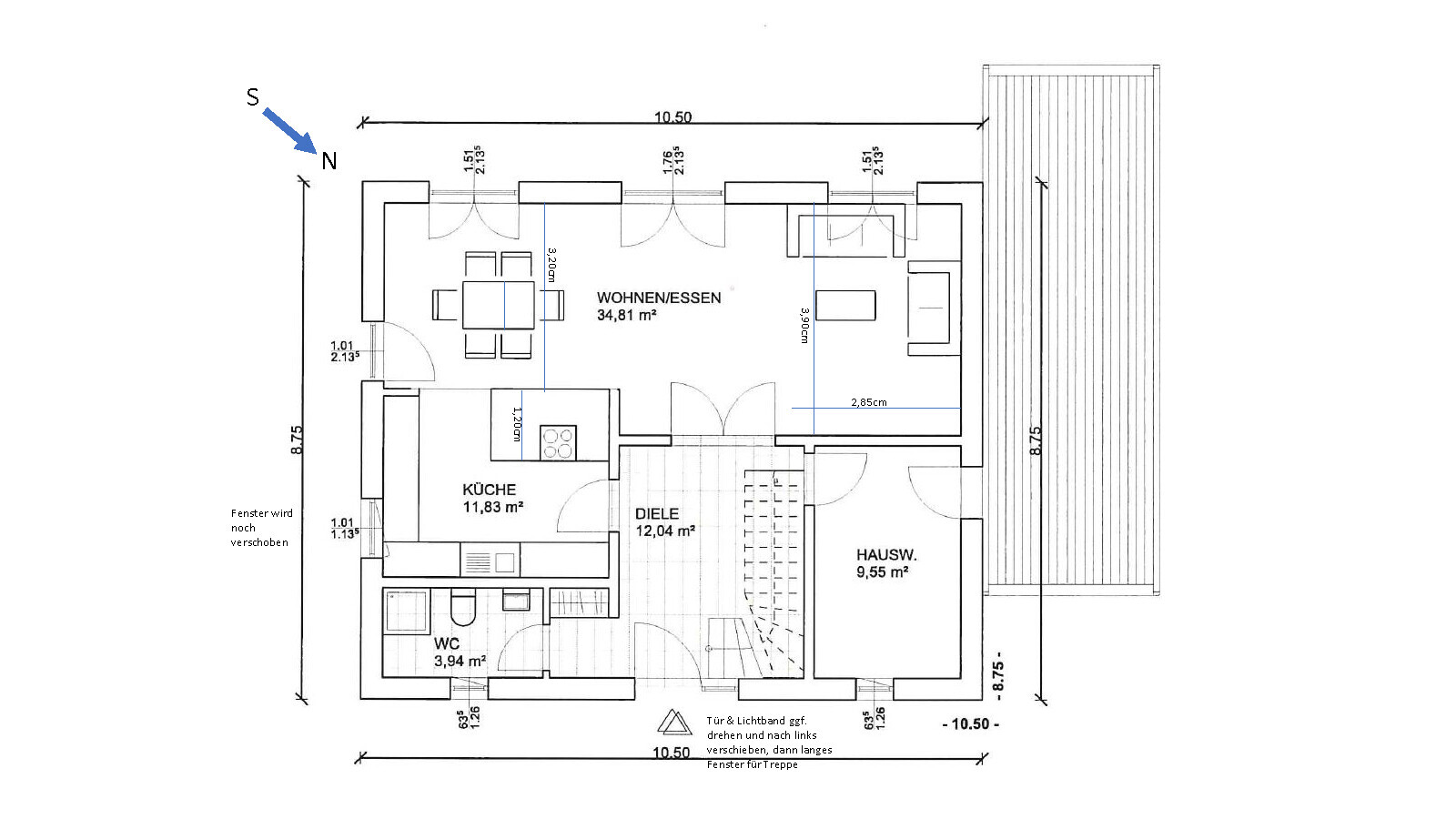
offene Küche, Kochinsel: Offene Küche & Kochinsel
Anzahl Essplätze: min. 6, Möglichkeit einer Tafel (große Familie)
Kamin: Nein
Musik/Stereowand: Nein
Balkon, Dachterrasse: Nein
Garage, Carport: Garage
Nutzgarten, Treibhaus: Ja (ggf. beim Gartenhaus)
Sonstiges: Stauraum, da kein Keller (lange Garage, Gartenhaus & HAR, kalter Dachboden)
Hausentwurf
Von wem stammt die Planung:
-Planer eines Bauunternehmens & Do-it-Yourself
Was gefällt besonders? Warum? Viel Haus auf kleinem Raum, Wünsche gut umgesetzt. Unten Bodentiefefesnter, oben nur im Elternzimmer
Was gefällt nicht? Warum?: Evtl. gibt es Kleinigkeiten, welche wir übersehen, Fenster optimieren?
Preisschätzung lt Architekt/Planer: 230.000 – 240.000€
Persönliches Preislimit fürs Haus, inkl Ausstattung: 240.000€
favorisierte Heiztechnik: Luft-Wasser-Wärmepumpe, Fußbodenheizung
Wenn Ihr verzichten müsst, auf welche Details/Ausbauten
-könnt Ihr verzichten: Bad kann anders gestaltet werden, Ankleidezimmer
-könnt Ihr nicht verzichten: Große Küche, Essbereich, drei Kinderzimmer
Warum ist der Entwurf so geworden, wie er jetzt ist? ZB
Standardentwurf vom Planer welchen wir mit anderen Entwürfen aus dem Netz optimiert haben.
Vielen Dank
wir hatten das Glück ein Baugrundstück zugeteilt zu bekommen und beschäftigen uns aktuell sehr intenvis mit der Grundrissplanung.
Ich habe schon länger im Forum mitgelesen und bereits einige Ideen umgesetzt.
Langsam geht es bei uns in die heiße Phase und ich würde euch gerne unsere Planung vorstellen. Ich würde mich über euer Feedback freuen.
Würde z.B ein schmales, langes Fenster für die Treppe Sinn machen (wenn man die Türe mit Lichtband dreht)?
Die Fenster an der Front sind durch den Grundriss eher klein, seht ihr hier eine bessere Lösung? (Sonst kann es auch so bleiben, halten uns dort ja nicht auf und wäre nur für die Show)
Wo sollte das Außengerät der Luft-Wasser-Wärmepumpe hin?
Bebauungsplan/Einschränkungen
Größe des Grundstücks: 430m2
Hang: Nein
Grundflächenzahl: 0,8
Geschossflächenzahl: 0,4
Baufenster, Baulinie und -grenze: 11m x 14m
Randbebauung: Nein
Anzahl Stellplatz: 1-2 (Vor der Garage und neben dem Haus)
Geschossigkeit: 2
Dachform: Keine Einschränkungen
Stilrichtung: Keine Einschränkungen
Ausrichtung: Keine Einschränkungen
Maximale Höhen/Begrenzungen: Traufhöhe 6m, Firsthöhe 11m. Abstand zum Nachbarn 3m, Garage muss 5m nach hinten versetzt sein. Bebauung über das Baufenster mit Erkern, Überdachungen, Solar usw. erlaubt
Anforderungen der Bauherren
Stilrichtung, Dachform, Gebäudetyp: Stadtvilla, Walmdach
Keller, Geschosse: Kein Keller, 2 Geschosse
Anzahl der Personen, Alter: 4-5 (34; 30; 1,5; 1,5)
Raumbedarf im EG, OG: OG:3 Kinderzimmer für weitere Familienplanung
Büro: Familiennutzung oder Homeoffice?: Gastzimmer vorerst Büro/Hobbyzimmer, dann evtl. Kinderzimmer/Spielzimmer
Schlafgäste pro Jahr: kaum
offene oder geschlossene Architektur: unten offen, oben eher geschlossen
konservativ oder moderne Bauweise: modern
offene Küche, Kochinsel: Offene Küche & Kochinsel
Anzahl Essplätze: min. 6, Möglichkeit einer Tafel (große Familie)
Kamin: Nein
Musik/Stereowand: Nein
Balkon, Dachterrasse: Nein
Garage, Carport: Garage
Nutzgarten, Treibhaus: Ja (ggf. beim Gartenhaus)
Sonstiges: Stauraum, da kein Keller (lange Garage, Gartenhaus & HAR, kalter Dachboden)
Hausentwurf
Von wem stammt die Planung:
-Planer eines Bauunternehmens & Do-it-Yourself
Was gefällt besonders? Warum? Viel Haus auf kleinem Raum, Wünsche gut umgesetzt. Unten Bodentiefefesnter, oben nur im Elternzimmer
Was gefällt nicht? Warum?: Evtl. gibt es Kleinigkeiten, welche wir übersehen, Fenster optimieren?
Preisschätzung lt Architekt/Planer: 230.000 – 240.000€
Persönliches Preislimit fürs Haus, inkl Ausstattung: 240.000€
favorisierte Heiztechnik: Luft-Wasser-Wärmepumpe, Fußbodenheizung
Wenn Ihr verzichten müsst, auf welche Details/Ausbauten
-könnt Ihr verzichten: Bad kann anders gestaltet werden, Ankleidezimmer
-könnt Ihr nicht verzichten: Große Küche, Essbereich, drei Kinderzimmer
Warum ist der Entwurf so geworden, wie er jetzt ist? ZB
Standardentwurf vom Planer welchen wir mit anderen Entwürfen aus dem Netz optimiert haben.
Vielen Dank
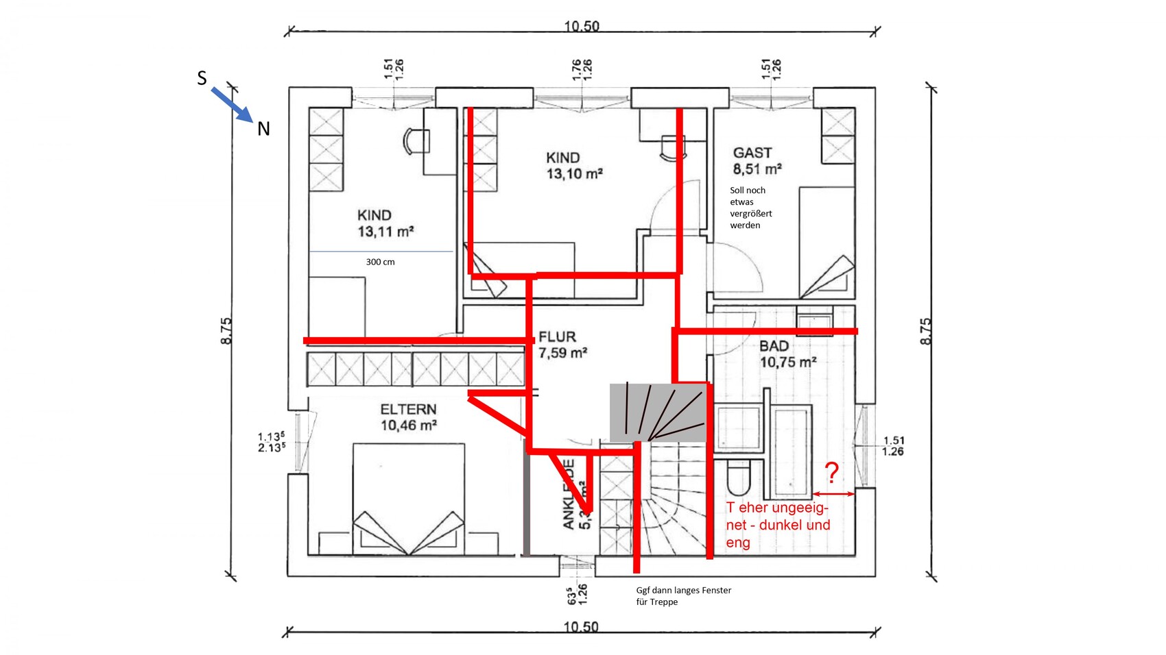
Für einem 140m² Grundriss wo alle Schlafzimmer oben sein sollen, ist:
- Die Diele unten mit der Treppe im EG pure Platzverschwendung
- Ebenso die Lösung mit dem T-Bad im OG samt Flur
- Das Dritte Kinderzimmer ist mit 8,5m² winzig. Man muss bedenken, dass da irgendwann noch ein Schreibtisch hin muss.
Wohlgemerkt ich bin kein Freund von 15-20m² Kinderzimmern aber 8,5m² ist echt übel zukünftig.
Zur Kostenschätzung sage ich mal nichts, dass werden schon andere übernehmen :-p
- Die Diele unten mit der Treppe im EG pure Platzverschwendung
- Ebenso die Lösung mit dem T-Bad im OG samt Flur
- Das Dritte Kinderzimmer ist mit 8,5m² winzig. Man muss bedenken, dass da irgendwann noch ein Schreibtisch hin muss.
Wohlgemerkt ich bin kein Freund von 15-20m² Kinderzimmern aber 8,5m² ist echt übel zukünftig.
Zur Kostenschätzung sage ich mal nichts, dass werden schon andere übernehmen :-p
Geschossflächenzahl = 0,4 und Grundflächenzahl = 0,8????
Eher andersrum, oder?
Ich mag keine pdfs öffnen, bitte als jpg einstellen, deswegen sag ich mal nichts zum Grundriss (da noch nicht gesehen) übernehme aber gerne als erste das, was Zaba12 anderen überläßt:
Mit 240.000 Limit für 140qm wirst du ein Problem bekommen. Da brauch ich die Pläne noch gar nicht sehen. Grob kalkuliert rechne mit 2.000€ pro qm (und das ist keine Luxusvilla), dann siehst du, wie weit man damit kommt. Entweder ihr könnt mehr ermöglichen, oder ihr müßt unter 120qm bleiben; mit evtl. drei Kindern wird das knapp. Geht, aber eher mit Wohnungsgefühl als Hausgefühl.
Eher andersrum, oder?
Ich mag keine pdfs öffnen, bitte als jpg einstellen, deswegen sag ich mal nichts zum Grundriss (da noch nicht gesehen) übernehme aber gerne als erste das, was Zaba12 anderen überläßt:
Mit 240.000 Limit für 140qm wirst du ein Problem bekommen. Da brauch ich die Pläne noch gar nicht sehen. Grob kalkuliert rechne mit 2.000€ pro qm (und das ist keine Luxusvilla), dann siehst du, wie weit man damit kommt. Entweder ihr könnt mehr ermöglichen, oder ihr müßt unter 120qm bleiben; mit evtl. drei Kindern wird das knapp. Geht, aber eher mit Wohnungsgefühl als Hausgefühl.
Danke, Katja!
Kein Keller? Wo soll der Stauraum sein? Ist das Walmdach so steil, daß ihr da Stauraum einrichten könnt?
Hauswirtschaftsraum dürfte mit Haustechnik und Waschmaschine/Trockner schon gut voll sein.
Wie wahrscheinlich ist Kind3? Wenn mehr als 50% finde ich die 8,5qm zu wenig.
Ein Waschbecken für bis zu 5 Personen ist auch eine glatte Fehlplanung: Wanne ins Eck wo jetzt das WB ist, Doppelwaschtisch da wo jetzt BW ist.
Insgesamt ist Küche/Wohnen/Essen im Vergleich zu den Zimmern üppig. Würde mir überlegen, ob ich nicht ein Schlafzimmer ins EG hole, Duschbad ist ja auch unten.
Aber ohne Keller oder Dachspitz seh ich ein massives Stauraumproblem.
Kein Keller? Wo soll der Stauraum sein? Ist das Walmdach so steil, daß ihr da Stauraum einrichten könnt?
Hauswirtschaftsraum dürfte mit Haustechnik und Waschmaschine/Trockner schon gut voll sein.
Wie wahrscheinlich ist Kind3? Wenn mehr als 50% finde ich die 8,5qm zu wenig.
Ein Waschbecken für bis zu 5 Personen ist auch eine glatte Fehlplanung: Wanne ins Eck wo jetzt das WB ist, Doppelwaschtisch da wo jetzt BW ist.
Insgesamt ist Küche/Wohnen/Essen im Vergleich zu den Zimmern üppig. Würde mir überlegen, ob ich nicht ein Schlafzimmer ins EG hole, Duschbad ist ja auch unten.
Aber ohne Keller oder Dachspitz seh ich ein massives Stauraumproblem.
Ab vom Budget find ich die Sache nicht schlecht.
Ein paar Knackpunkte:
Wie groß ist die Dusche im WC?
Ansonsten EG ganz nett. Es ist ein relativ kleines Haus. Man darf nicht zu viel erwarten - der Überflieger ist es m.E. nicht unbedingt, aber solide.
OG: das Minizimmer vergrößern sehe ich mit dieser Treppe nicht. Im EG fügt sich die Treppe ja ganz charmant ein aber für das OG ist sie unpassend. Eventuell Treppe als 1/2 gewinkelt könnte das Problem lösen.
Ankleide ist zu eng - lieber noch einen Abstellraum und Schränke im Schlafzimmer integrieren, siehe Skizze.

Ein paar Knackpunkte:
Wie groß ist die Dusche im WC?
Ansonsten EG ganz nett. Es ist ein relativ kleines Haus. Man darf nicht zu viel erwarten - der Überflieger ist es m.E. nicht unbedingt, aber solide.
OG: das Minizimmer vergrößern sehe ich mit dieser Treppe nicht. Im EG fügt sich die Treppe ja ganz charmant ein aber für das OG ist sie unpassend. Eventuell Treppe als 1/2 gewinkelt könnte das Problem lösen.
Ankleide ist zu eng - lieber noch einen Abstellraum und Schränke im Schlafzimmer integrieren, siehe Skizze.
Ähnliche Themen