ᐅ Grundriss Bungalow mit 140 qm - passt der Stauraum?
Erstellt am: 23.02.23 13:38
E
EinmalimLeben23.02.23 13:38Hallo! Ich möchte euch mal unsere Planungen vorstellen und wünsche mir die ein oder andere Anregung/ Verbesserungsmöglichkeit, konkreter weiter unten. Erstmal:
Bebauungsplan/Einschränkungen
-Größe des Grundstücks: 707 qm
-Hang: nein
-Grundflächenzahl: -
-Geschossflächenzahl: kein Bebauungsplan, wie Nachbarbebauung
-Baufenster, Baulinie und -grenze
Randbebauung: 3 m, Baulast berücksichtigt
-Anzahl Stellplatz: 2
-Geschossigkeit: 1
-Dachform: Walmdach
-Stilrichtung: Bungalow
;Ausrichtung: Einfahrt im Süden, Terrasse im Norden
-Maximale Höhen/Begrenzungen: -
-weitere Vorgaben: -
Anforderungen der Bauherren
-Stilrichtung, Dachform, Gebäudetyp
Keller, Geschosse: klein, aber fein 😉 Keine Treppen (Mann), Bungalow/ Landhausstil, kein Keller, Dachboden nicht ausbaubar
-Anzahl der Personen, Alter: 2 Erwachsene, 2 Kinder (2 und 5 Jahre)
- Raumbedarf: 140 qm
- Büro: Familiennutzung oder Homeoffice: beide Lehrer, daher schon notwendig, aber ein schreibtisch reicht.
-Schlafgäste pro Jahr: Oma oft (ca. jedes zweite Wochenende), sonst unregelmäßig Freunde oder einzelne Familienmitglieder
-offene oder geschlossene Architektur: beides
-konservativ oder moderne Bauweise: beides
-offene Küche, Kochinsel: ja, bereits erworben
-Anzahl Essplätze: 6
-Kamin: nein
-Musik/Stereowand: nein
-Balkon, Dachterrasse: nein
-Garage, Carport: Carport später geplant
-Nutzgarten, Treibhaus: Spielgeräte Kinder, ein wenig Garten für Gemüse, eher Naturgarten
-weitere Wünsche/Besonderheiten/Tagesablauf, gern auch Begründungen, warum dieses oder das nicht sein soll: unser Grundstück ist recht schmal, Traum war Bungalow und es passt gut aufs Grundstück, wenn auch weit weg von Zufahrt und Stellplätzen. Uns gefällt eher der Landhausstil, Haus wird rot verklinkert mit anthrazitfarbenem Dach, beide viel Zeit für Hobby und Gartenpflege am Nachmittag, aber auch die Kinder wollen ihren Spaß... Das große Gebäude im Osten auf dem Nachbargrundstück wird demnächst abgerissen und es entstehen auf dem Gelände drei große Häuser mit Seniorenwohnungen. Der Abstand zu uns ist dann etwas größer, allerdings haben diese drei Geschosse und es wird teilweise unsere Straße genutzt. Es ist also in der Umgebung einiges im Umbruch. Der Ort verfügt über zahlreiche Supermärkte, Drogerie, Freibad und Schulen, allerdings keinen Bahnhof und kein Gymnasium. Diese befinden sich in der nächsten größeren Stadt (15 Minuten per Bus/ Auto).
Hausentwurf
-Von wem stammt die Planung: Planerin eines Bauunternehmens mit uns
-Was gefällt besonders? Warum?
die Aufteilung, Badezimmer, Trennung Wohn-, und Schlafbereich, offene Küche
-Was gefällt nicht? Warum? Eventuell zu wenig Fläche im Technikraum und für schränke?
-Preisschätzung lt Architekt/Planer: Grundstück 80.000, Hauspreis 321.000 ohne Böden und Malerarbeiten aber gefliest in Küche, Bädern und HW, wir haben im April 22 unterschrieben und zeitgleich finanziert, Grundstück Niedersachsen ländlich, aber zwischen drei großen Städten gelegen, Nebenkosten bisher fürs Grundstück bezahlt 16.500 (Grundsteuern, Baumfällung, Vermessung...), Geplant weitere 30.000 für Baustraße, Aufpreis tieferer Bodenaushub, Drainage. Küche Bristol von Häcker in L-Form mit Insel bereits erworben und gelagert, 14.000 Euro da Ausstellungsküche und nur leicht umgeplant.
-Persönliches Preislimit fürs Haus, inkl Ausstattung: Böden 5000, Maler, Elektriker, Fliesen... 10.000, Küche 14.000, Möbel kommen mit, neues Sofa 1000 und ein paar neue Schränke: Ca. 360.000 Euro ohne Außenanlagen und Nebenkosten.
favorisierte Heiztechnik: wir bekommen Erdwärme
-Wenn Ihr verzichten müsst, auf welche Details/Ausbauten könnt Ihr verzichten: ich glaube wir haben schon auf viel unnötiges verzichtet. Carport vorerst
-könnt Ihr nicht verzichten: offene Küche, Kinderbad mit Dusche, Rollläden im Süden
-Warum ist der Entwurf so geworden, wie er jetzt ist? Gemeinsam mit Planer erarbeitet
- Entsprechende/Welche Wünsche wurden vom Architekten umgesetzt? Bungalow, Kinderzimmer 14 qm, Kinderbad mit Dusche
-Was macht ihn in Euren Augen besonders gut oder schlecht? Alles auf einer Ebene, Wünsche wurden umgesetzt, eventuell zu wenig Fläche für Zeugs?
Was ist die wichtigste/grundlegende Frage zum Grundriss in 130 Zeichen zusammengefasst?
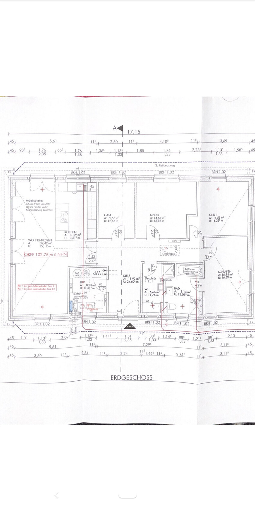
Uns gefällt der Grundriss so wie er ist und wir haben den Bauantrag hierzu bereits genehmigt bekommen. Ich würde gerne wissen, ob die Fläche im HW Raum ausreichend ist und ob die Fläche für Schränke ausreicht. Wir wohnen aktuell auf 73 qm und haben recht wenig, auch im Keller liegt nur ein wenig Weihnachtsdeko, Kinderkleidung fürs zweite Kind zum reinwachsen und Sachen für die Werkstatt vom Mann, was dann in einem Schuppen/Werkstatt soll. Die Kinder haben natürlich Spielsachen, aber teilen sich aktuell ein Zimmer (11qm). Wenn es sich dann im Haus auf zwei Zimmer verteilt, dürfte das locker reichen. Dennoch ist da manchmal ein wenig Angst, da viele hier sehr viel größer planen und mehr Stauraum einplanen...
Würdet ihr sonst etwas ändern oder übersehen wir etwas? Wir haben keine tragenden Wände und könnten noch etwas vor Baustart verschieben (auch wenn es dann kostet).






Bebauungsplan/Einschränkungen
-Größe des Grundstücks: 707 qm
-Hang: nein
-Grundflächenzahl: -
-Geschossflächenzahl: kein Bebauungsplan, wie Nachbarbebauung
-Baufenster, Baulinie und -grenze
Randbebauung: 3 m, Baulast berücksichtigt
-Anzahl Stellplatz: 2
-Geschossigkeit: 1
-Dachform: Walmdach
-Stilrichtung: Bungalow
;Ausrichtung: Einfahrt im Süden, Terrasse im Norden
-Maximale Höhen/Begrenzungen: -
-weitere Vorgaben: -
Anforderungen der Bauherren
-Stilrichtung, Dachform, Gebäudetyp
Keller, Geschosse: klein, aber fein 😉 Keine Treppen (Mann), Bungalow/ Landhausstil, kein Keller, Dachboden nicht ausbaubar
-Anzahl der Personen, Alter: 2 Erwachsene, 2 Kinder (2 und 5 Jahre)
- Raumbedarf: 140 qm
- Büro: Familiennutzung oder Homeoffice: beide Lehrer, daher schon notwendig, aber ein schreibtisch reicht.
-Schlafgäste pro Jahr: Oma oft (ca. jedes zweite Wochenende), sonst unregelmäßig Freunde oder einzelne Familienmitglieder
-offene oder geschlossene Architektur: beides
-konservativ oder moderne Bauweise: beides
-offene Küche, Kochinsel: ja, bereits erworben
-Anzahl Essplätze: 6
-Kamin: nein
-Musik/Stereowand: nein
-Balkon, Dachterrasse: nein
-Garage, Carport: Carport später geplant
-Nutzgarten, Treibhaus: Spielgeräte Kinder, ein wenig Garten für Gemüse, eher Naturgarten
-weitere Wünsche/Besonderheiten/Tagesablauf, gern auch Begründungen, warum dieses oder das nicht sein soll: unser Grundstück ist recht schmal, Traum war Bungalow und es passt gut aufs Grundstück, wenn auch weit weg von Zufahrt und Stellplätzen. Uns gefällt eher der Landhausstil, Haus wird rot verklinkert mit anthrazitfarbenem Dach, beide viel Zeit für Hobby und Gartenpflege am Nachmittag, aber auch die Kinder wollen ihren Spaß... Das große Gebäude im Osten auf dem Nachbargrundstück wird demnächst abgerissen und es entstehen auf dem Gelände drei große Häuser mit Seniorenwohnungen. Der Abstand zu uns ist dann etwas größer, allerdings haben diese drei Geschosse und es wird teilweise unsere Straße genutzt. Es ist also in der Umgebung einiges im Umbruch. Der Ort verfügt über zahlreiche Supermärkte, Drogerie, Freibad und Schulen, allerdings keinen Bahnhof und kein Gymnasium. Diese befinden sich in der nächsten größeren Stadt (15 Minuten per Bus/ Auto).
Hausentwurf
-Von wem stammt die Planung: Planerin eines Bauunternehmens mit uns
-Was gefällt besonders? Warum?
die Aufteilung, Badezimmer, Trennung Wohn-, und Schlafbereich, offene Küche
-Was gefällt nicht? Warum? Eventuell zu wenig Fläche im Technikraum und für schränke?
-Preisschätzung lt Architekt/Planer: Grundstück 80.000, Hauspreis 321.000 ohne Böden und Malerarbeiten aber gefliest in Küche, Bädern und HW, wir haben im April 22 unterschrieben und zeitgleich finanziert, Grundstück Niedersachsen ländlich, aber zwischen drei großen Städten gelegen, Nebenkosten bisher fürs Grundstück bezahlt 16.500 (Grundsteuern, Baumfällung, Vermessung...), Geplant weitere 30.000 für Baustraße, Aufpreis tieferer Bodenaushub, Drainage. Küche Bristol von Häcker in L-Form mit Insel bereits erworben und gelagert, 14.000 Euro da Ausstellungsküche und nur leicht umgeplant.
-Persönliches Preislimit fürs Haus, inkl Ausstattung: Böden 5000, Maler, Elektriker, Fliesen... 10.000, Küche 14.000, Möbel kommen mit, neues Sofa 1000 und ein paar neue Schränke: Ca. 360.000 Euro ohne Außenanlagen und Nebenkosten.
favorisierte Heiztechnik: wir bekommen Erdwärme
-Wenn Ihr verzichten müsst, auf welche Details/Ausbauten könnt Ihr verzichten: ich glaube wir haben schon auf viel unnötiges verzichtet. Carport vorerst
-könnt Ihr nicht verzichten: offene Küche, Kinderbad mit Dusche, Rollläden im Süden
-Warum ist der Entwurf so geworden, wie er jetzt ist? Gemeinsam mit Planer erarbeitet
- Entsprechende/Welche Wünsche wurden vom Architekten umgesetzt? Bungalow, Kinderzimmer 14 qm, Kinderbad mit Dusche
-Was macht ihn in Euren Augen besonders gut oder schlecht? Alles auf einer Ebene, Wünsche wurden umgesetzt, eventuell zu wenig Fläche für Zeugs?
Was ist die wichtigste/grundlegende Frage zum Grundriss in 130 Zeichen zusammengefasst?
Uns gefällt der Grundriss so wie er ist und wir haben den Bauantrag hierzu bereits genehmigt bekommen. Ich würde gerne wissen, ob die Fläche im HW Raum ausreichend ist und ob die Fläche für Schränke ausreicht. Wir wohnen aktuell auf 73 qm und haben recht wenig, auch im Keller liegt nur ein wenig Weihnachtsdeko, Kinderkleidung fürs zweite Kind zum reinwachsen und Sachen für die Werkstatt vom Mann, was dann in einem Schuppen/Werkstatt soll. Die Kinder haben natürlich Spielsachen, aber teilen sich aktuell ein Zimmer (11qm). Wenn es sich dann im Haus auf zwei Zimmer verteilt, dürfte das locker reichen. Dennoch ist da manchmal ein wenig Angst, da viele hier sehr viel größer planen und mehr Stauraum einplanen...
Würdet ihr sonst etwas ändern oder übersehen wir etwas? Wir haben keine tragenden Wände und könnten noch etwas vor Baustart verschieben (auch wenn es dann kostet).
Mich würden drei Dinge besonders stören:
- Der Knick im Kinderzimmer Eingang
- Garderobensituation
- Das unnötig große Gäste-WC mit Öffnung nach planoben
Ich glaube, dass ich das Gäste-WC zusammendampfen würde und den gesparten Platz in einen Kleiderschrank / Abstellraum umwandeln (siehe Anhang). Ggf. kann man die Wand zum Bad noch 10cm nach planrechts schieben, das gibt dem Gäste-WC dann wieder etwas Raum.

- Der Knick im Kinderzimmer Eingang
- Garderobensituation
- Das unnötig große Gäste-WC mit Öffnung nach planoben
Ich glaube, dass ich das Gäste-WC zusammendampfen würde und den gesparten Platz in einen Kleiderschrank / Abstellraum umwandeln (siehe Anhang). Ggf. kann man die Wand zum Bad noch 10cm nach planrechts schieben, das gibt dem Gäste-WC dann wieder etwas Raum.
H
hanghaus202323.02.23 17:40als 2 Personen und mit Bungalow 9,87x16m, ist die Erfahrung,
der Grundriss funktioniert.
Mit 4 Personen und Arbeitszimmer sehr platzsparend geschnitten.
Das Gästebad und abgeteilte Abstellkammer hat @motorradsilke so gemacht, und sie schwärmt von ihrer Kammer 😉 .
Die Dachbinder nehmt als Studiobinder,
es ist dann viel besser zum lagern. Lasst euch das zeigen.
Muss die Wandstärke 42cm sein, bei 36cm wächst eure Innenfläche?
der Grundriss funktioniert.
Mit 4 Personen und Arbeitszimmer sehr platzsparend geschnitten.
Das Gästebad und abgeteilte Abstellkammer hat @motorradsilke so gemacht, und sie schwärmt von ihrer Kammer 😉 .
Die Dachbinder nehmt als Studiobinder,
es ist dann viel besser zum lagern. Lasst euch das zeigen.
Muss die Wandstärke 42cm sein, bei 36cm wächst eure Innenfläche?
SoL schrieb:
Das unnötig große Gäste-WC mit Öffnung nach planobenDas ist das Kinderbad und da fände ich den Zugang von vor der Haustür schlecht. So wie geplant sehe ich als besser an.Ähnliche Themen