ᐅ Einfamilienhaus ~190qm, drei Kinderzimmer, ohne Keller - Feedback wäre mega
Erstellt am: 20.07.19 20:46
S
siftbosiftbo schrieb:
Servus miteinander!Hallo, kennen wir uns?
Kennen wir Dich?
Insofern einfach mal den im Grundrissforum, also hier, Fragebogen ausfüllen, und los geht’s.
Du hast auch https://www.hausbau-forum.de/threads/grundrissplanung-unbedingt-vor-Beitrag-Erstellung-lesen.11714/ gelesen?
Ist da alles dein Grundstück?

Straße links und und planunten?
Was bedeuten die Wellenlinien?
Warum die lange Auffahrt aus dem Süden und die in die Ecke gequetschte Terrasse?
Ist da alles dein Grundstück?
Straße links und und planunten?
Was bedeuten die Wellenlinien?
Warum die lange Auffahrt aus dem Süden und die in die Ecke gequetschte Terrasse?
Haus hat verbesserungspotential
Bitte den Fragebogen ausfüllen
Genau das wollte ich auch fragen
Bitte den Fragebogen ausfüllen
kbt09 schrieb:
Du hast auch https://www.hausbau-forum.de/threads/grundrissplanung-unbedingt-vor-Beitrag-Erstellung-lesen.11714/ gelesen?
Ist da alles dein Grundstück?
Straße links und und planunten?
Was bedeuten die Wellenlinien?
Warum die lange Auffahrt aus dem Süden und die in die Ecke gequetschte Terrasse?
Genau das wollte ich auch fragen
Sorry. Hab ich ganz vergessen ...
Bebauungsplan/Einschränkungen
Größe des Grundstücks: ca 2000qm
Hang: nein
Grundflächenzahl:0,4
Geschossflächenzahl:0,7
Baufenster, Baulinie und -grenze: siehe Übersichtsplan
Randbebauung: nein
Anzahl Stellplatz:
Geschossigkeit: EG und DG
Dachform: Satteldach
Stilrichtung: alpenländisch modern
Ausrichtung: Firstrichrung Ost/West
Maximale Höhen/Begrenzungen: 6m Traufe, 0,5 m über Gelände Niveau
weitere Vorgaben
Anforderungen der Bauherren
Stilrichtung, Dachform, Gebäudetyp: siehe oben
Keller, Geschosse: 2 Vollgeschosse
Anzahl der Personen, Alter: 2 erwachsene, drei Kinder
Raumbedarf im EG, OG: 190qm
Büro: Familiennutzung oder Homeoffice? :Homeoffice
Schlafgäste pro Jahr: 2
offene oder geschlossene Architektur: offen, jedoch Wohn-Essbereich abzrennbar
konservativ oder moderne Bauweise: gemischt
offene Küche, Kochinsel: Küche
Anzahl Essplätze: 10
Kamin: ja
Musik/Stereowand: nein
Balkon, Dachterrasse: Nein
Garage, Carport: Garage oder Carport mit Werkstatt und Lagerraum. Da bin ich mir noch nicht sicher
Nutzgarten, Treibhaus: Nutzgarten
weitere Wünsche/Besonderheiten/Tagesablauf, gern auch Begründungen, warum dieses oder das nicht sein soll
Hausentwurf
Von wem stammt die Planung:
-Architekt: ja
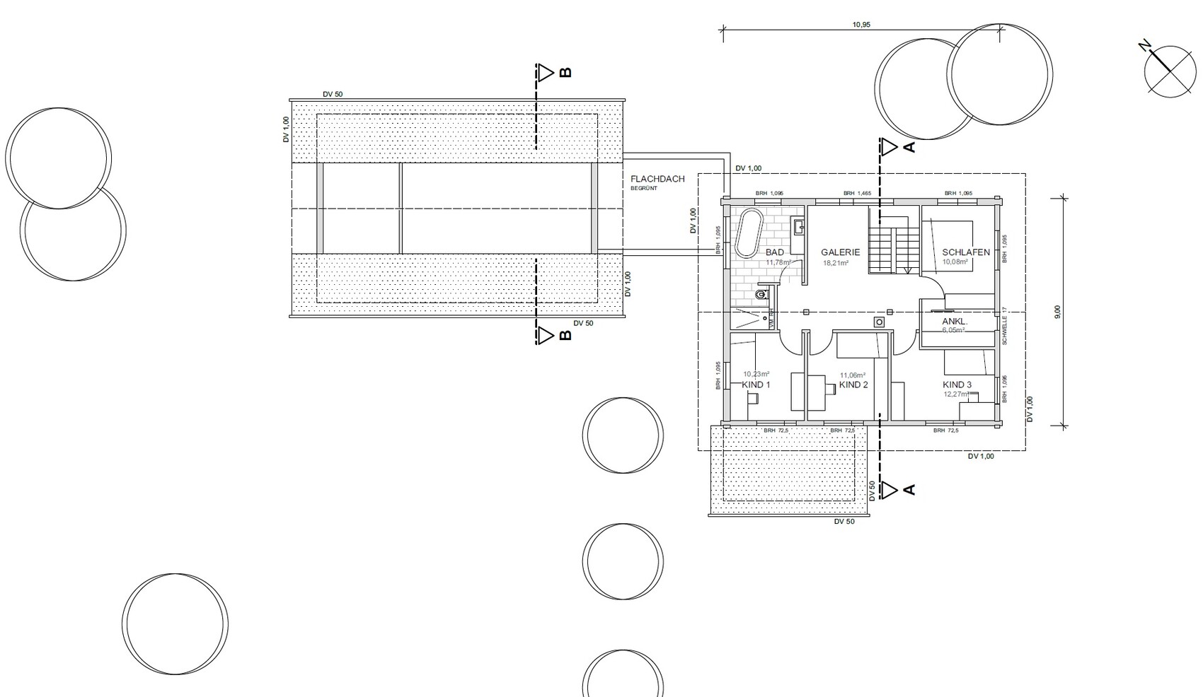
Was gefällt besonders: Treppenhaus mit Galerie; Wohn-Essbereich, da das mit der Eckbank und Terrasse endlich klappt
Was gefällt nicht? Bad und Aufteilung Kinderzimmer das eine Kinderzimmer ist zu klein. Die Bandaufteilung ist noch nicht so optimal
Warum ist der Entwurf so geworden, wie er jetzt ist? ZB
Entwurf wurde gemeinsam mit Architekt so erarbeitet.
Bebauungsplan/Einschränkungen
Größe des Grundstücks: ca 2000qm
Hang: nein
Grundflächenzahl:0,4
Geschossflächenzahl:0,7
Baufenster, Baulinie und -grenze: siehe Übersichtsplan
Randbebauung: nein
Anzahl Stellplatz:
Geschossigkeit: EG und DG
Dachform: Satteldach
Stilrichtung: alpenländisch modern
Ausrichtung: Firstrichrung Ost/West
Maximale Höhen/Begrenzungen: 6m Traufe, 0,5 m über Gelände Niveau
weitere Vorgaben
Anforderungen der Bauherren
Stilrichtung, Dachform, Gebäudetyp: siehe oben
Keller, Geschosse: 2 Vollgeschosse
Anzahl der Personen, Alter: 2 erwachsene, drei Kinder
Raumbedarf im EG, OG: 190qm
Büro: Familiennutzung oder Homeoffice? :Homeoffice
Schlafgäste pro Jahr: 2
offene oder geschlossene Architektur: offen, jedoch Wohn-Essbereich abzrennbar
konservativ oder moderne Bauweise: gemischt
offene Küche, Kochinsel: Küche
Anzahl Essplätze: 10
Kamin: ja
Musik/Stereowand: nein
Balkon, Dachterrasse: Nein
Garage, Carport: Garage oder Carport mit Werkstatt und Lagerraum. Da bin ich mir noch nicht sicher
Nutzgarten, Treibhaus: Nutzgarten
weitere Wünsche/Besonderheiten/Tagesablauf, gern auch Begründungen, warum dieses oder das nicht sein soll
Hausentwurf
Von wem stammt die Planung:
-Architekt: ja
Was gefällt besonders: Treppenhaus mit Galerie; Wohn-Essbereich, da das mit der Eckbank und Terrasse endlich klappt
Was gefällt nicht? Bad und Aufteilung Kinderzimmer das eine Kinderzimmer ist zu klein. Die Bandaufteilung ist noch nicht so optimal
Warum ist der Entwurf so geworden, wie er jetzt ist? ZB
Entwurf wurde gemeinsam mit Architekt so erarbeitet.
Ähnliche Themen