ᐅ Grundriss, längliches Einfamilienhaus, integrierte Garage kein Keller
Erstellt am: 24.07.17 10:46
O
onyx.dopHallo zusammen,
bei uns stehen derzeit die Grundrissplanungen an. Mit folgenden Vorgaben sind wir an einen GU herangetreten:
Und hier noch der ausgefüllte Fragebogen:
Bebauungsplan: §34
Größe des Grundstücks: > 1.000m²
Hang: nein
Anzahl Stellplatz: 2
Geschossigkeit: 2 Vollgeschosse
Dachform: Satteldach
Stilrichtung: klassisch, schlicht
Ausrichtung: SW
Anzahl der Personen, Alter: 4 Personen, (0 - 35)
Raumbedarf im EG, OG: siehe oben
Schlafgäste pro Jahr: selten
offene oder geschlossene Architektur: offen
konservativ oder moderne Bauweise: konservativ
offene Küche, Kochinsel: gerne
Anzahl Essplätze: wenn möglich 8
Kamin: ja
Musik/Stereowand: nein
Balkon, Dachterrasse: nein
Garage, Carport: ja, siehe Grundrisse
Nutzgarten, Treibhaus: nein
Hausentwurf
Von wem stammt die Planung: Planer eines Bauunternehmens
Preisschätzung lt Architekt/Planer:
Persönliches Preislimit fürs Haus, inkl Ausstattung: 350.000€
favorisierte Heiztechnik: Luft-Wasser-Wärmepumpe + Thermie + Holzofen oder Gas-BW-Therme + Thermie + Holzofen
Warum ist der Entwurf so geworden, wie er jetzt ist?: Vorgaben an Planer des BU. Entwurf 2 (ohne integrierter Garage) wurde erstellt, nachdem der Bereich Wohnen/Essen/Küche in Entwurf 1 sich klein anfuehlte.
Weiter zu beachten: ca. 5m suedoestlich vom Haus befindet sich eine ca. 25m hohe Buche (Verschattung, Verschmutzung, ...). Ausblick in alle Richtungen (ausser O, SO, sehr gut).




bei uns stehen derzeit die Grundrissplanungen an. Mit folgenden Vorgaben sind wir an einen GU herangetreten:
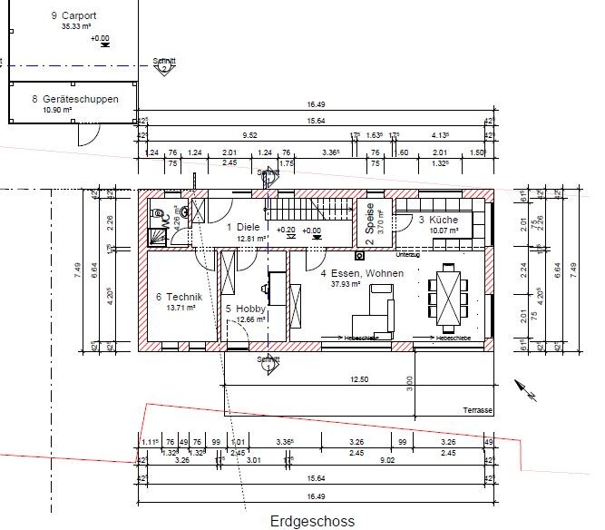
- Außenmaße ca. 18,0 x 7,5m, Massiv mit 42,5cm Ziegel
- Raumprogramm EG: Eingangsbereich, Garderobe, Technik/Lager, WC inkl. Dusche, gerade Treppe, Speisekammer, Wohnen/Essen/Küche (Küche nordseitig mit Blick auf Einfahrt), (Garage)
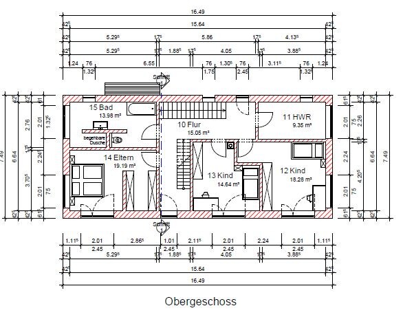
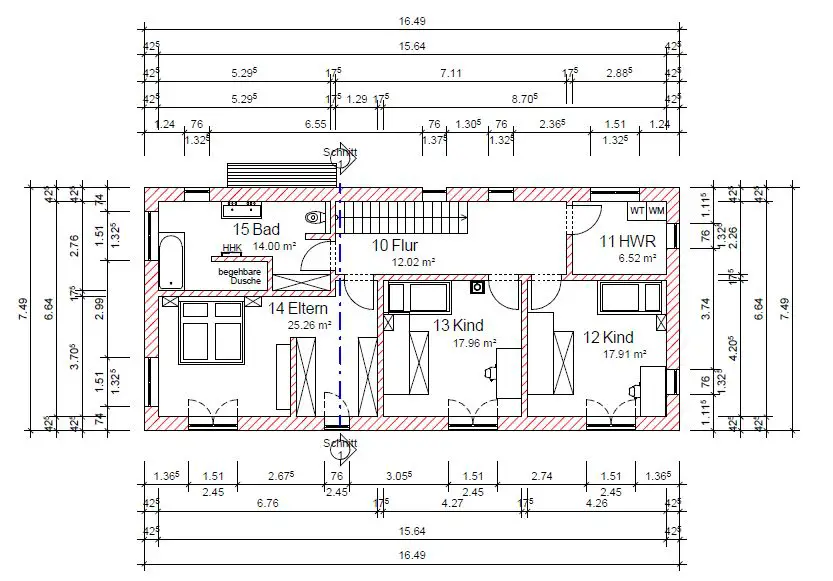
- Raumprogramm OG: 3 Schlafzimmer, Bad, Hauswirtschaftsraum + Hobby
- Zwei Vollgeschosse, DG mit 45°
Und hier noch der ausgefüllte Fragebogen:
Bebauungsplan: §34
Größe des Grundstücks: > 1.000m²
Hang: nein
Anzahl Stellplatz: 2
Geschossigkeit: 2 Vollgeschosse
Dachform: Satteldach
Stilrichtung: klassisch, schlicht
Ausrichtung: SW
Anzahl der Personen, Alter: 4 Personen, (0 - 35)
Raumbedarf im EG, OG: siehe oben
Schlafgäste pro Jahr: selten
offene oder geschlossene Architektur: offen
konservativ oder moderne Bauweise: konservativ
offene Küche, Kochinsel: gerne
Anzahl Essplätze: wenn möglich 8
Kamin: ja
Musik/Stereowand: nein
Balkon, Dachterrasse: nein
Garage, Carport: ja, siehe Grundrisse
Nutzgarten, Treibhaus: nein
Hausentwurf
Von wem stammt die Planung: Planer eines Bauunternehmens
Preisschätzung lt Architekt/Planer:
Persönliches Preislimit fürs Haus, inkl Ausstattung: 350.000€
favorisierte Heiztechnik: Luft-Wasser-Wärmepumpe + Thermie + Holzofen oder Gas-BW-Therme + Thermie + Holzofen
Warum ist der Entwurf so geworden, wie er jetzt ist?: Vorgaben an Planer des BU. Entwurf 2 (ohne integrierter Garage) wurde erstellt, nachdem der Bereich Wohnen/Essen/Küche in Entwurf 1 sich klein anfuehlte.
Weiter zu beachten: ca. 5m suedoestlich vom Haus befindet sich eine ca. 25m hohe Buche (Verschattung, Verschmutzung, ...). Ausblick in alle Richtungen (ausser O, SO, sehr gut).
Hallo,
Als erstes, schön mal wieder nen Entwurf zu sehen, der aus der Reihe tanzt.
In Bayern gibt es das sogenannte 16m Privileg.
Wenn ihr also eine Hauswand länger als 16m plant, steigen somit die notwendigen Abstandsflächen.
War auch bei uns der Grund, warum wir genau 15,99m lang wurden und nicht 16,49
Da ich nicht weiß, wie das Haus auf dem Grundstück platziert wird, kann ich dazu keine Aussage treffen, ihr solltet das allerdings berücksichtigen.
Zu den Grundrissen:
1. Woher kommt bei euch der Wunsch nach den Außenmaßen des Hauses? Durch was wird die Hausform vorgegeben? Da ihr die Vorgaben (18x7,5) ja selbst gegeben habt, müsst ihr euch ja was dabei gedacht haben. Was ist der Grund dafür?
2. Wieso der explizite Wunsch nach 42er MW? Für die Erfüllung der Energieeinsparverordnung ist er ja nicht notwendig.
Wir haben ebenso eine Hausbreite von 7,49, allerdings bei 36,5er MW. Geschickt aufgeteilt, merkt man solch einem Haus die geringe Tiefe überhaupt nicht an. Da gilt es allerdings, jeden cm Tiefe geschickt zu nutzen.
Da setzt auch mein größter Kritikpunkt an eurem Entwurf an.
- Bei EG1 wäre mir Essen/Wohnen definitiv zu schmal. Da finde ich EG 2 besser.
- Allerdings will mir bei beiden Entwürfen die Aufteilung des Allraums nicht so gefallen. Ich würde in eurem Fall auf die Speisekammer verzichten, dann kann man einen Küchenzugang auch direkt vom Flur aus machen, somit wird das Wohnzimmer nicht mehr zum reinen Durchgangsraum.
- OG 1 finde ich geschickter gestaltet als OG2. Der Zugang zu Kind "12" im OG2 Plan schränkt das andere Zimmer schon enorm ein.
- Die T-Lösung wird in beiden Fällen definitiv nicht klappen. das wird alles viel zu eng.
Am Wichtigsten finde ich jedoch immer noch die Sache mit den 16m. Damit steht und fällt nämlich die Machbarkeit beider Entwürfe.
Grüße
Als erstes, schön mal wieder nen Entwurf zu sehen, der aus der Reihe tanzt.
In Bayern gibt es das sogenannte 16m Privileg.
Wenn ihr also eine Hauswand länger als 16m plant, steigen somit die notwendigen Abstandsflächen.
War auch bei uns der Grund, warum wir genau 15,99m lang wurden und nicht 16,49
Da ich nicht weiß, wie das Haus auf dem Grundstück platziert wird, kann ich dazu keine Aussage treffen, ihr solltet das allerdings berücksichtigen.
Zu den Grundrissen:
1. Woher kommt bei euch der Wunsch nach den Außenmaßen des Hauses? Durch was wird die Hausform vorgegeben? Da ihr die Vorgaben (18x7,5) ja selbst gegeben habt, müsst ihr euch ja was dabei gedacht haben. Was ist der Grund dafür?
2. Wieso der explizite Wunsch nach 42er MW? Für die Erfüllung der Energieeinsparverordnung ist er ja nicht notwendig.
Wir haben ebenso eine Hausbreite von 7,49, allerdings bei 36,5er MW. Geschickt aufgeteilt, merkt man solch einem Haus die geringe Tiefe überhaupt nicht an. Da gilt es allerdings, jeden cm Tiefe geschickt zu nutzen.
Da setzt auch mein größter Kritikpunkt an eurem Entwurf an.
- Bei EG1 wäre mir Essen/Wohnen definitiv zu schmal. Da finde ich EG 2 besser.
- Allerdings will mir bei beiden Entwürfen die Aufteilung des Allraums nicht so gefallen. Ich würde in eurem Fall auf die Speisekammer verzichten, dann kann man einen Küchenzugang auch direkt vom Flur aus machen, somit wird das Wohnzimmer nicht mehr zum reinen Durchgangsraum.
- OG 1 finde ich geschickter gestaltet als OG2. Der Zugang zu Kind "12" im OG2 Plan schränkt das andere Zimmer schon enorm ein.
- Die T-Lösung wird in beiden Fällen definitiv nicht klappen. das wird alles viel zu eng.
Am Wichtigsten finde ich jedoch immer noch die Sache mit den 16m. Damit steht und fällt nämlich die Machbarkeit beider Entwürfe.
Grüße
Hier mal ein Vorschlag zur Anregung, aber mit 15,99m Länge, falls das relevant werden sollte.
Die Garage flog raus, dafür mit Carport, wie bei deinem 2. Entwurf.
Wenn man zusätzlich noch nen Zugang zum Wohnzimmer möchte, könnte man Hobby + Technik verkleinern, damit man in die Planobere WZ-Wand noch ne Tür rein bekommt. Alternativ anders Möblieren.
Für was ist eigentlich der Hobby-Raum geplant?
Wenn es unbedingt 42er MW sein muss, sollte das bei dem Entwurf auch möglich sein, allerdings erschließt sich mir der Sinn dahinter noch nicht (Siehe Frage oben)
Da das alles ziemlich geräumige Raumgrößen sind, könnte man jetzt beliebig spielen und tauschen:
Vorschlag 1:
Die Beiden Kinderzimmer mit Bad+Eltern Tauschen. Dadurch sollte eine Bessere Aufteilung der Ankleide/Schlafzimmer möglich werden. Vorlauf Sogar mit separatem Kinderbad anstatt dem Abstellraum?
Vorschlag 2:
Hobby+Technik ausm EG mit dem Elternbereich ausm OG tauschen. Kommt halt darauf an, wofür der Hobbyraum gedacht ist. Im OG Ein Kinderbad, im EG ein Elternbad mit separatem WC für Gäste.
Somit hätte man für´s Alter alles wirklich Relevante auf der unteren Ebene beisammen.


Die Garage flog raus, dafür mit Carport, wie bei deinem 2. Entwurf.
Wenn man zusätzlich noch nen Zugang zum Wohnzimmer möchte, könnte man Hobby + Technik verkleinern, damit man in die Planobere WZ-Wand noch ne Tür rein bekommt. Alternativ anders Möblieren.
Für was ist eigentlich der Hobby-Raum geplant?
Wenn es unbedingt 42er MW sein muss, sollte das bei dem Entwurf auch möglich sein, allerdings erschließt sich mir der Sinn dahinter noch nicht (Siehe Frage oben)
Da das alles ziemlich geräumige Raumgrößen sind, könnte man jetzt beliebig spielen und tauschen:
Vorschlag 1:
Die Beiden Kinderzimmer mit Bad+Eltern Tauschen. Dadurch sollte eine Bessere Aufteilung der Ankleide/Schlafzimmer möglich werden. Vorlauf Sogar mit separatem Kinderbad anstatt dem Abstellraum?
Vorschlag 2:
Hobby+Technik ausm EG mit dem Elternbereich ausm OG tauschen. Kommt halt darauf an, wofür der Hobbyraum gedacht ist. Im OG Ein Kinderbad, im EG ein Elternbad mit separatem WC für Gäste.
Somit hätte man für´s Alter alles wirklich Relevante auf der unteren Ebene beisammen.
Hallo matte1987, ypg,
leider habe ich derzeit keinen Lageplan zur Hand. Hintergrund für die eher laengliche Form ist die Nähe zu einem Baudenkmal. 18,5m oder 16,5m oder 7,5m sind nicht in Stein gemeißelt und noch variabel, so lange die Gesamtform "laenglich" ist.
Danke für den Hinweis auf das 16m-Privileg. Da muss ich mich mal einlesen.
Welche Art von Mauerwerk/Ziegel ist ebenso noch nicht definiert. Nur in die Planung starten wir derzeit mit 42,5cm.
Die 3,70m Breite bei EG1 für den Allraum/Essen-Wohnen finde wir auch etwas knapp. 4,20m wiederum verengt die Diele dann etwas. Oder sind 2,26m für Treppe+Diele noch ausreichend?
Die Speis zu entfernen und in den Technikraum zu integrieren haben wir auch überlegt. Nur dazu durchgerungen haben wir uns bisher nicht (2 Türen von Küche bis zum Lager)...
Der Hobbyraum dient u.a. dem Radfahren im Winter, dem Nähen, dem Computer/Büro.
Die Aufteilung des OG2 gefällt uns auch noch nicht wirklich, hinsichtlich der Kinderzimmer. Auch die Lösung hinsichtlich Erreichbarkeit des Dachgeschosses finde ich bisher nur suboptimal, wobei mir der Bereich vor dem Antritt der zweiten Treppe recht gemütlich (abgeschieden, Fenster, ...) erscheint.
Interessante Idee das Eltern-Schlafzimmer mit dem Hobby im EG zu tauschen. Das ueberdenken wir mal.
Danke schon mal für euren Input.
leider habe ich derzeit keinen Lageplan zur Hand. Hintergrund für die eher laengliche Form ist die Nähe zu einem Baudenkmal. 18,5m oder 16,5m oder 7,5m sind nicht in Stein gemeißelt und noch variabel, so lange die Gesamtform "laenglich" ist.
Danke für den Hinweis auf das 16m-Privileg. Da muss ich mich mal einlesen.
Welche Art von Mauerwerk/Ziegel ist ebenso noch nicht definiert. Nur in die Planung starten wir derzeit mit 42,5cm.
Die 3,70m Breite bei EG1 für den Allraum/Essen-Wohnen finde wir auch etwas knapp. 4,20m wiederum verengt die Diele dann etwas. Oder sind 2,26m für Treppe+Diele noch ausreichend?
Die Speis zu entfernen und in den Technikraum zu integrieren haben wir auch überlegt. Nur dazu durchgerungen haben wir uns bisher nicht (2 Türen von Küche bis zum Lager)...
Der Hobbyraum dient u.a. dem Radfahren im Winter, dem Nähen, dem Computer/Büro.
Die Aufteilung des OG2 gefällt uns auch noch nicht wirklich, hinsichtlich der Kinderzimmer. Auch die Lösung hinsichtlich Erreichbarkeit des Dachgeschosses finde ich bisher nur suboptimal, wobei mir der Bereich vor dem Antritt der zweiten Treppe recht gemütlich (abgeschieden, Fenster, ...) erscheint.
Interessante Idee das Eltern-Schlafzimmer mit dem Hobby im EG zu tauschen. Das ueberdenken wir mal.
Danke schon mal für euren Input.
Ein "Servus" in die Runde,
der nächste Stand der Planung ist vorhanden. Habe nun noch die Außenansichten angehängt.
Was haben wir geändert:
Gibt es Ideen zum Bereich der Speis (oder komplett entfallen lassen und Großteil in "Technik" integrieren und Kleinteil im Staubereich unter der Treppe)?
Wie seht ihr den Eingangsbereich von Diele ins Wohnzimmer? Gefühlt für mich noch nicht wirklich passend. Evtl. Schiebetür? Oder den Ofen in die linke obere Ecke des WZ verlegen und den Eingang in WZ/Küche zusammenlegen?
Evtl. Ideen für die Aufteilung des OG-Bades?
Grüße,
Christoph.




der nächste Stand der Planung ist vorhanden. Habe nun noch die Außenansichten angehängt.
Was haben wir geändert:
- es bewegt sich in Richtung "ohne integrierte Garage", dafür mit separatem Carport/Geräteschuppen
- der Bereich der Speise im EG wurde geändert, aber für uns noch nicht zufriedenstellend
- im OG Entfall des "senkrechten" Flurs, dafür Integration ins Eltern-Schlafzimmer, welches mittlerweile echt groß ist
- Vergrößern/Angleichen der Kinderzimmer (durch Verkleinern des Hauswirtschaftsraum)
- Grundriss Bad-OG, aber noch nicht 100%ig zufrieden
Gibt es Ideen zum Bereich der Speis (oder komplett entfallen lassen und Großteil in "Technik" integrieren und Kleinteil im Staubereich unter der Treppe)?
Wie seht ihr den Eingangsbereich von Diele ins Wohnzimmer? Gefühlt für mich noch nicht wirklich passend. Evtl. Schiebetür? Oder den Ofen in die linke obere Ecke des WZ verlegen und den Eingang in WZ/Küche zusammenlegen?
Evtl. Ideen für die Aufteilung des OG-Bades?
Grüße,
Christoph.
Ähnliche Themen