Terrassen: Welche Anzahl und wohin?

4,60 Stern(e) 7 Votes
P

Pinkiponk

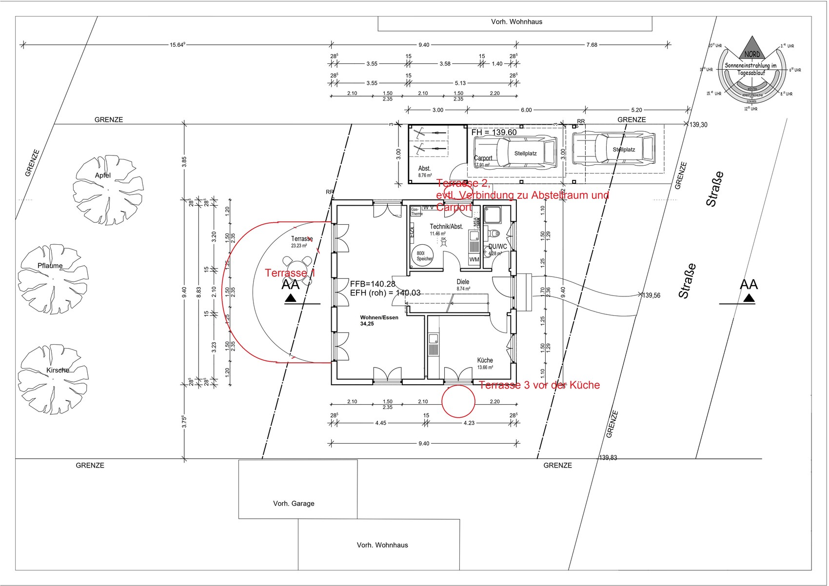
Ich habe ein weiteres Anliegen, da wir demnächst mit dem Tiefbauer besprechen wollen, wo er den Boden für Terrassen vorbereiten kann/soll.

Eure Meinung ist, in Hinsicht auf Ästhetik und Praxistauglichkeit erwünscht, was die Anzahl und Form unserer Terrasse/n angeht.

Zu erst einmal habe ich 3 Terrassen angedacht: Hauptterrasse nach hinten in den Garten (Terrasse 1), kleine Terrasse um von der Küche aus mal kurz im Freien einen Tee oder Sekt zu trinken (Terrasse 3) und eine weitere kleine Terrasse bei unserem Technik/Hauswirtschaftsraum (Terrasse 2) um einen Wäscheständer rauszustellen, einen Eimer Wasser zu entleeren oder einfach mal dort stehen und "gucken" (schwäbisch für schauen oder sehen).

Hinsichtlich der Form/en bin ich unsicher. Ich mag runde, halbrunde, organische Formen, weiß aber nicht, ob das zu einem quadratischen Haus (9,40m x 9,40m) passt. Des Weiteren gefallen mir "Pflasterkreise", von denen ich einige auf den Terrassen/Carport unterbringen möchte. In weiß nicht, ob Pflasterkreise in runden Terrassen besser aussehen als in eckigen. Oder ob es dann zu viel "rund" ist. Wenn Ihr gelungene Fotos habt, zeigt sie mir gerne.

Auch hier möchte ich die Gelegenheit nutzen, Euch allen und Euren Familien ein gutes Neues Jahr, mit vielen glücklichen Stunden, innerhalb ;-) und außerhalb des Forums zu wünschen. Bitte lasst uns alle weiterhin so schön und hilfreich zusammenkommen.

--> Und wer mit Hampshire Kontakt hat, möchte ihn bitte mit allen zur Verfügung stehenden Mitteln zur Rückkehr bewegen. Er fehlt bei uns sehr.

Noch ein Hinweis zu meinen Einzeichnungen in den Fotos. Ich bekam keine halbrunden Formen eingezeichnet, deswegen habe ich teilweise die Form "oval/rund" gewählt. Ich hoffe, meine Fragen sind trotzdem verständlich.


Grundriss eines Einfamilienhauses mit Terrasse, Garten, Carport und Grenzlinien



Runde Pflasterfläche aus Ziegeln im Garten vor Holzhäuschen, Gras drumherum.
 
Y

ypg

Ich mag runde, halbrunde, organische Formen, weiß aber nicht, ob das zu einem quadratischen Haus (9,40m x 9,40m) passt.
Warum sollte das nicht passen? Natur ist organisch und die meisten Gärten und Parks sind organisch angelegt (Außer es handelt sich um geplante Anlagen mit anderen Stilmitteln oder Stilen)
Deine Terrasse 2 ist auf einer Tiefe von ca. 70cm wie gemeint? Wo soll da Wäsche getrocknet werden? Das ist ein Gang, nichts weiter.
Da eine Umrandung wohl auch geplant ist, würde ich das so in der Art machen. Rot ist eine Wäschespinne (ich geh mal davon aus, dass so etwas geplant ist bei Dir). Wassereimer würde ich auf Rasen oder in Beeten leeren.
Braun sind Beete für Stauden und Sträucher, grün dann die Pflasterung.
Die eigentliche Terrasse wird ja von Möbeln beherrscht, da muss man selbst wissen, wohin man von innen schaut bzw. ob man auf einen Baum, Stauden oder auf Möblierung schauen will.
Wenn Du das so halbrund und symmetrisch machen willst, dann mach das doch so.

Grundriss eines Hauses mit umlaufendem Garten, Terrasse und Carport (Lageplan).
 
P

Pinkiponk

Warum sollte das nicht passen? Natur ist organisch und die meisten Gärten und Parks sind organisch angelegt (Außer es handelt sich um geplante Anlagen mit anderen Stilmitteln oder Stilen)
Deine Terrasse 2 ist auf einer Tiefe von ca. 70cm wie gemeint? Wo soll da Wäsche getrocknet werden? Das ist ein Gang, nichts weiter.
Da eine Umrandung wohl auch geplant ist, würde ich das so in der Art machen. Rot ist eine Wäschespinne (ich geh mal davon aus, dass so etwas geplant ist bei Dir). Wassereimer würde ich auf Rasen oder in Beeten leeren.
Braun sind Beete für Stauden und Sträucher, grün dann die Pflasterung.
Die eigentliche Terrasse wird ja von Möbeln beherrscht, da muss man selbst wissen, wohin man von innen schaut bzw. ob man auf einen Baum, Stauden oder auf Möblierung schauen will.
Wenn Du das so halbrund und symmetrisch machen willst, dann mach das doch so.
Oh, das hast Du aber schön skizziert. So machen wir das. Außer der Wäschespinne, die finde ich immer zu dominant ... es muß auch nicht jeder Nachbar meine Wäsche sehen. ;-)
 
B

barfly666

Ist das echt so gewollt, 80 cm zwischen Haus und Garage/Abstellkammer?

Das Fenster/Türe des Hauswirtschaftsraum: da gebe ich zu bedenken, das da die Stelle sein wird, wo der nicht eingeladene Besucher sich ungestört und ungesehen alle Zeit der Welt lassen kann um einzutreten ….

insgesamt ist der Schlauch nicht optimal (kommt man da überhaupt mit einem Rad schiebenderweise durch, ohne den Lenker abzumontieren?). Den Abstellraum an der Garage würde ich daher eher als offenen Fahrradport konzipieren, den Schlauch würde ich dann noch lichtdurchlässig überdachen und zur Strasse hin ein gescheites Tor o.ä.
 
H

hanse987

Diesen schmalen Schlauch zwischen Hauswirtschaftsraum und Abstellraum ist mir auch aufgefallen. Würde ich nie so machen.

Wenn dies so bleiben soll, dann kannst du vom Hauseck bis zum Ende des Abstellraums komplett pflastern, denn Gras wird dort nie wachsen.
 
P

Pinkiponk

Ist das echt so gewollt, 80 cm zwischen Haus und Garage/Abstellkammer?

Das Fenster/Türe des Hauswirtschaftsraum: da gebe ich zu bedenken, das da die Stelle sein wird, wo der nicht eingeladene Besucher sich ungestört und ungesehen alle Zeit der Welt lassen kann um einzutreten ….

insgesamt ist der Schlauch nicht optimal (kommt man da überhaupt mit einem Rad schiebenderweise durch, ohne den Lenker abzumontieren?). Den Abstellraum an der Garage würde ich daher eher als offenen Fahrradport konzipieren, den Schlauch würde ich dann noch lichtdurchlässig überdachen und zur Strasse hin ein gescheites Tor o.ä.
Ich hoffe noch, dass mein Mann dort an der Stelle auf den Abstellraum verzichtet und wir nur einen schönen, luftigen Stellplatz für das Auto, mit Kreispflaster, ;-) haben werden oder der Abstellraum statt 3m breit nur 1,5m breit sein wird. Ich darf halt nicht alleine entscheiden.

Ein Tor möchte ich nicht. Vorerst will ich noch rundherum alles offen lassen. Das hatten wir bei unserem letzten Haus so und ich fand es toll.
 
Zuletzt aktualisiert 09.12.2025
Im Forum Terrassenplatten - Terrassenböden gibt es 118 Themen mit insgesamt 840 Beiträgen


Ähnliche Themen zu Terrassen: Welche Anzahl und wohin?
Nr.ErgebnisBeiträge
1Zugang von der Garage in den Hauswirtschaftsraum 49
2 2 Vollgeschosse, Durchgang Garage, Hauswirtschaftsraum unter Treppe - Seite 325
3Nebeneingangstür Garage / Haus, Hauswirtschaftsraum Garagenverordnung Niedersachsen - Seite 314
4Einfamilienhaus 172qm mit Garage und Sauna - Seite 654
5Grundriss Bungalow 150qm mit Garage - Seite 1379
6Reicht der Hauswirtschaftsraum auch als Abstellkammer aus? - Seite 422
7Grundriss für Einfamilienhaus mit 200m² mit Einliegerwohnung 75 +Keller 140m² +Garage 56m² - Seite 259
8Garage - Bauantrag - Verwirrung - Seite 636
9Ikea Pax Hauswirtschaftsraum/Waschküche System? - Was habt ihr? - Seite 264
10Grundriss Einfamilienhaus (ca. 170 qm) mit Garage - Hanglage 35
11Technik / Hauswirtschaftsraum im OG Meinungen? - Seite 227
12Holzdecke und Teilisolierung für Keller mit Garage 15
13Extra-Bad vom Schlafzimmer oder doch Abstellraum? 29
14Knifflige Grundstücksplanung: Garage + Eingang nach SW oder NO? - Seite 321
15Technikraum in Garage einbauen? Ist dies möglich? 35
16Grundriss mit Garage auf Grundstück realisierbar? - Seite 329
17Bauen ohne Keller - Carport, Garage? 18
18Hauswirtschaftsraum Raum ohne Fenster - Lüftungsanlage ausreichend? 26
19Neubau Einfamilienhaus ohne Garage in Eigenleistung - Seite 967
20Grundriss 140 m2 Einfamilienhaus mit Garage - Hausausrichtung ok? - Seite 218

Oben