Haus und Garage, Carport Platzierung auf Hinterliegergrundstück

4,80 Stern(e) 5 Votes
N

Nico79Bln

Hallo, jeder fängt hier ja mit seinem ersten Beitrag an und heute ist es bei mir soweit.
Meine Partnerin und ich tun uns echt schwer mit der Positionierung des zukünftigen Hauses und der Garage/Carport sowie der Einfahrt
Zunächst einmal die Grunddaten:

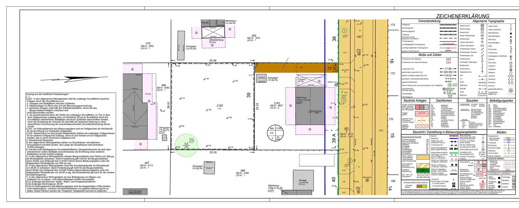
Größe des Grundstücks: 677m²
Hang: keine Hanglage, flaches Grundstück
Grundflächenzahl: 0,2 = 135,4m² + zusätzliche 30m² mit Ausnahmegenehmigung
Baufenster, Baulinie und -grenze: Hauptgebäude 3m Grenzabstand, Garage oder Carport: die entlang der Grundstücksgrenzen errichteten Außenwände dürfen insgesamt eine Länge von 15 m und entlang einer Grundstücksgrenze eine Länge von 9 m nicht überschreiten
Anzahl Stellplatz: 2
Geschossigkeit: I + DG
Dachform: Sattel-, Walm-, oder Krüppelwalmdach
Stilrichtung: Stadtvilla

Wie man auf dem Lageplan und den Bildern sehen kann, handelt es sich um ein Hinterliegergrundstück. Die Zufahrt erfolgt aus Richtung Norden.
Der Blick in Richtung Süden wird leider durch eine sehr dichte Bepflanzung mit ca. 20-25m hohen Fichten getrübt. Wir tendieren also dazu den
Garten in Richtung Westen / Südwesten auszurichten weil wir eine Menge Schattenwurf aus Richtung Süden erwarten.


Luftbild eines Wohnviertels mit Garten, Bauarbeiten im Hinterhof und Bauequipment



Wir würden das Haus jetzt soweit wie möglich an der nordöstlichen Grundstücksgrenze platzieren (unter Berücksichtigung des Grenzabstandes).
Bei der Garage/Carport sind wir uns unsicher. Wir mögen eigentlich die Idee aus den beiden Entwürfen im Anhang um trockenen Fusses in unser Haus zu kommen sind aber etwas unsicher ob wir die 25m Einfahrt und die Kurve auf unser Grundstück immer rückwärts fahren wollen.


Luftbild eines Gartenplans mit Haus, Garage, Terrassen, Wegen und Bäumen.


Lageplan: Haus mit Terrasse, umliegende Gärten, Wege, Bäume und Parkflächen.


Verwandte und Bekannte haben auch die Ideen mit ins Spiel gebracht die Garage direkt an der Grundstückseinfahrt zu platzieren und davor maximal noch Platz für ein weiteres Fahrzeug zu lassen. Das würde natürlich die Idee unseres Gartens mit Westausrichtung etwas zu Nichte machen aber Zuwegung sparen. Alternativ kam der Vorschlag die Zufahrt über das komplette Grundstück zu verlängern und die Garage in der Südwestecke des Grundstücks zu platzieren.

Ich würde mich über Meinungen und Ideen freuen.

Vielen Dank!
Anhang anzeigen grundstuecksplanung-grundriss-hausbau.jpg
Anhang anzeigen baugrundstueck-leergrund-zaun-baeume-erdarbeiten-vorbereitung-bau.jpg
 
WilderSueden

WilderSueden

Grundflächenzahl: 0,2 = 135,4m² + zusätzliche 30m² mit Ausnahmegenehmigung
Das wird der Knackpunkt. Ich nehme an, mit der Ausnahmegenehmigung ist dann die Überschreitung durch die Grundflächenzahl-2 ausgeschlossen?
Falls ja, bleibt euch eigentlich nur, die Stellplätze möglichst weit vorne zu platzieren, da auch noch die Terrasse sowie eventuelle Gartenhüttchen berücksichtigt werden müssen
 
Y

ypg

Wie willst Du bei Eingeschossigkeit eine Stadtvilla realisieren?

Ihr habt einige Gedankenfehler.
Zum einen: es regnet nicht ständig und immer. Ihr kommt auch trocken ins Haus, wenn die Garage keine Verbindung zum Haus hat. Meistens bzw fast immer zumindest. Der Gang vom Carport zum Hauseingang beschwingt die meisten stolzen Besitzer, wenn sie ihr Haus und Garten sehen.
Im Süden sind zwar Fichten, dennoch ist dort die Sonne am höchsten. Im Westen sind ja auch nicht gerade niedrige Bäume. Ich gehe mal zusätzlich zu bedenken, dass man sich aussuchen sollte, wohin der schönste Blick geht. Zusätzlich sollte man den Sonnenstand im Sommer wir auch im Winter vergleichen.

Ich sage jedes Mal: es ist für einen Garten nicht wichtig, ob er 10 oder 11 Meter tief ist. Aber es macht einen Unterschied, ob man für das Auto 3 oder 4 Meter Breite bietet.
Ich würde deshalb nicht den Fehler machen, alles fürs Auto auf eng zu planen. Eine Garage oder ein Carport ist oft besser befahrbar, wenn sie nicht auf einer Grundstücksgrenze klebt.
Carport auf Südwestecke ist purer Quatsch.

Mir fällt gerade die Problematik mit dem Postwagen ein: darf er den Zufahrtsweg nutzen?

wie kommst Du darauf, dass ein Carport in NW Euch den Garten nimmt?

Ich mache mal den Vorschlag, dass ihr Grundstück, Haus und Carport ausdruckt, ausschneidet und anfangt, manuell auf dem Tisch und Grundstück die Schablonen zu schieben und jede Idee abfotografiert. Das ist flexibler und schneller als ein Programm, wo man einige Minuten braucht, das Haus neu zu arrangieren und deshalb dann nur zwei Optionen, die nahezu identisch von der Lage sind, gezeigt werden.
Ihr werdet dann schnell selbst auf mögliche Optionen kommen.
Ps ich würde das Haus auch nicht unbedingt parallel zur Grundstücksgrenze sehen (ein Dreieck als Fläche bietet sich gut zum wenden an ;) )
 
J

Jurassic135

Wir haben auch ein Hinterliegergrundstück. Im Prinzip ist die Anordnung wie bei euch. Um die Ecke würde ich nicht fahren wollen - schon gar nicht rückwärts. Ich denke, da wirst du dich nur ärgern. Wir haben das Carport auch am Anfang des Grundstücks und davor noch etwas Platz, da parkt z.B. der Besuch. So müssen wir nur rückwärts gerade raus, was für ungeübte schon lästig genug ist, da man so dann auf die Straße raus muss.
 
E

elminster

Ich sage jedes Mal: es ist für einen Garten nicht wichtig, ob er 10 oder 11 Meter tief ist. Aber es macht einen Unterschied, ob man für das Auto 3 oder 4 Meter Breite bietet.
Ich würde deshalb nicht den Fehler machen, alles fürs Auto auf eng zu planen. Eine Garage oder ein Carport ist oft besser befahrbar, wenn sie nicht auf einer Grundstücksgrenze klebt.
Das sehe ich genauso! Es kann sehr mühsam und dauerhaft nervend sein, bei jedem Rein- und Rausfahren beengt zu sein oder beim Ausladen nicht links und rechts die Autotüren aufzubekommen. Da bin ich auch eher dabei, um das Auto bzw. die Zufahrt einen Meter exgra zu spendieren.
 
Zuletzt aktualisiert 16.11.2025
Im Forum Grundrissplanung / Grundstücksplanung gibt es 2535 Themen mit insgesamt 87923 Beiträgen


Ähnliche Themen zu Haus und Garage, Carport Platzierung auf Hinterliegergrundstück
Nr.ErgebnisBeiträge
1Garage, Carport oder beides? 12
2Bebaute Fläche: Gehören Garage / Carport zur bebauten Fläche? 19
3Zufahrt zum Carport wird durch Laterne behindert 17
4Stadtvilla 190m² mit Einfahrt & Garten zur Südseite 30
5Länge / Gefälle Einfahrt Garage / Carport 10
6Grundflächenzahl Außenanlagen versickerungsfähiges Pflaster 11
7Platzierung Stellplätze / Carport auf dem Grundstück - Seite 342
8Haus und Garage - Ideen für die Planung erwünscht - Seite 221
9Platzierung Haus und Garage auf leerem Grundstück - Ideen? 17
10Garage genehmigt, aber Carport gebaut 23
11Haus, Garage / Carport auf dem Grundstück platzieren - Seite 493
12Carport/Garage Breite - Reichen 2.50m oder ist das eher zu schmal 29
13Bauen ohne Keller - Carport, Garage? - Seite 318
14Garage im Haus oder Carport daneben 10
15Carport oder Garage, was macht mehr Sinn? - Seite 244
16Grundriss: 150qm Einfamilienhaus+Einliegerwohnung - Carport / Garage + Schuppen / Werkstatt - Seite 245
17Garage, Carport mit Fahrradschuppen - Grundstücksplanung - Seite 222
18Planung optimale Anordnung Haus, Garage und Einfahrt 13
194m Zufahrt ausreichend zur Garage? 13
20Grenzbebauung Doppelgarage/Carport 6x9m Niedersachsen - Seite 529

Oben